
Lenovo Heavy Duty Rack Cabinets
Product Guide
Heavy Duty Rack Cabinets
Lenovo Heavy Duty Rack Cabinets are industry-standard 19-inch datacenter cabinets that are designed for high performance and high availability server and storage environments. They are optimized to help maximize floor space utilization, expedite installation, simplify cable management, and increase accessibility for improved serviceability while providing market leading configuration flexibility.
The rack cabinets are available in both 42U and 48U rack units heights designed to affordably, safely, and securely handle shipping fully loaded configurations up to 3500 lb (1588 kg) and 4000 lb (1814 kg) respectively. This enables you to receive your most capable and highest performing Lenovo solutions fully installed and integrated in the rack and ready to instantly deploy into your data center.

Figure 1. Lenovo 42U and 48U Heavy Duty Rack Cabinets in Pearl-White and Onyx-Black
Did you know?
Lenovo Heavy Duty Rack Cabinets support a variety of Lenovo Neptune™ liquid cooling solutions. You can
equip them with passive Rear Door Heat Exchangers to remove up to 35kW (42U) and 45kW (48U) into
16°C cold water at 25°C ambient temperature or go up to 50°C hot-water cooling when integrating Lenovo
ThinkSystem SD650 V2 and ThinkSystem SD650-N V2 for leading performance density.
Click here to check for update
Key features
The features of the Heavy Duty Rack Cabinets include:
- Designed for high performance and high availability environments
- 600mm x 1200mm industry standard footprint both in 42U and in 48U EIA capacity.
- Four easily adjustable leveling pads ensure stability and prevent rolling on casters.
- Compliance with the EIA-310-E industry standard for 19-inch, type A rack cabinets.
- Lockable doors and side panels provide a more secure environment for equipment and data
- Highly customizable to your environment and preferences
- Choice of beautiful Onyx (black) and Pearl (white) color for the most stunning datacenters in the world.
- Choice of perforated rear door for ambient air cooling or Rear Door Heat Exchanger for room neutral liquid cooling.
- Choice of side panels for standalone or isolated use-cases or side-by-side in rowconfiguration.
- Choice of extension kits for the front to supportthermally optimal and easily serviceable cabling and the rear to provide additional space for manifold or 0U components.
- Supporting the densest and most component-rich solutions
- Support shipping ready for instant deployment fully integrated solutions up to 4000 lb (1814 kg).
- Robust frame, mounting rails, and shock re-usable packaging to protect the heaviest loads in transit.
- Integrated outriggers for dynamic tilt stability and safety at maximum loads.
- Supports Lenovo Neptune Direct-Water Cooled solutions with rack level manifolds.
- Provides full configurability for all the power you need
- Up to six (42U) or eight (48U) sidewall compartments to support installation of 1U PDUs without unnecessarily taking up valuable rack space.
- Up to four mounting points for 0U PDUs conserves valuable EIA space for IT equipment, simplifies cable management, reduces installation time and increases accessibility.
Components and connectors
The Heavy Duty Rack Cabinets are delivered on a reusable shock-resistant pallet ready for transport. The following figure shows the features of the Heavy Duty Rack Cabinets including the outriggers that aid the stability of the rack during movement, especially when the racks are fully loaded.

Figure 2. Front and rear views of the Heavy Duty Rack Cabinets
Standard specifications
The following table compares the specifications of the racks.
Table 1. Standard specifications
| Description | 42U Rack Cabinet | 48U Rack Cabinet |
| Machine types (general business / LeSI) | 7D6D / 1410 | 7D6E / 1410 |
| Can be shipped with servers installed (ship loadable) | Yes | Yes |
| Rack mount flange hole type | Square | Square |
| EIA Capacity | 42U | 48U |
| Optional rack extensions (adds 180mm depth) | 2 (1 front, 1 rear) With RDHX installed, only 1x front supported | 2 (Front and Rear) With RDHX installed, only 1x front supported |
| Sidewall compartments | 6 | 8 |
| 0U PDU mounting points | 4 6 with rear rack extension | 4 6 with rear rack extension |
| Removable lockable reversible front and rear doors | Yes | Yes |
| Optional Rear Door Heat Exchanger (RDHX) | Yes | Yes |
| Removable lockable side panels | Yes | Yes |
| Height | 2011 mm (79.2 in) | 2277 mm (89.6 in) |
| Width (without outriggers) | 600 mm (23.6 in) | 600 mm (23.6 in) |
| Depth (without extensions) | 1200 mm (47.2 in) | 1200 mm (47.2 in) |
| Rack weight (empty) | 248 kg (547 lb) | 264 kg (582 lb) |
| Static/dynamic load capacity | 1588 kg (3500 lb) | 1814 kg (4000 lb) |
For additional dimensions and weights, see the Physical specifications section.
Models
Models of the Heavy Duty Rack Cabinets can be configured by using the Lenovo Data Center Solution Configurator (DCSC).
Configure-to-order (CTO) models are used to create models with factory-integrated server customizations.
For CTO models, three base machine types are available for the Heavy Duty Rack Cabinet as listed in the following table, 7D6D, 7D6E and 1410:
- The 7D6D (42U) and 7D6E (48U) base machine types are for general business and is selectable by choosing General Purpose or HPC & AI ThinkSystem Hardware mode in DCSC.
- The 1410 base machine type is intended for Lenovo Scalable Infrastructure (LeSI) configurations and is enabled using the HPC & AI LeSI Solutions mode in DCSC. 1410 configurations can also be built using System x and Cluster Solutions Configurator (x-config).
The following table lists the base CTO models of the Heavy Duty Rack Cabinet.
Table 2. CTO base models
| Base mode | Feature Code | Description |
| General business models | ||
| 7D6DCTO1WW | BHC3 | Lenovo Think System 42U Onyx Heavy Duty Rack Cabinet |
| 7D6DCTO2WW | BJ5V | Lenovo Think System 42U Pearl Heavy Duty Rack Cabinet |
| 7D6ECTO1WW | BHCG | Lenovo Think System 48U Onyx Heavy Duty Rack Cabinet |
| 7D6ECTO2WW | BJ63 | Lenovo Think System 48U Pearl Heavy Duty Rack Cabinet |
| Lenovo Scalable Infrastructure models* | ||
| 1410-O42 | BHC4 | Lenovo Every Scale 42U Onyx Heavy Duty Rack Cabinet |
| 1410-P42 | BJ5W | Lenovo Every Scale 42U Pearl Heavy Duty Rack Cabinet |
| 1410-O48 | BHCH | Lenovo Every Scale 48U Onyx Heavy Duty Rack Cabinet |
| 1410-P48 | BJ64 | Lenovo Every Scale 48U Pearl Heavy Duty Rack Cabinet |
* Lenovo EveryScale models are only available through Lenovo Scalable Infrastructure enabling fully integrated High Performance Computing solutions with solution-level interoperability support.
The following table lists the pre-configured models of the Heavy Duty Rack Cabinet. Listed in the table are standalone rack cabinets as well as rack cabinets without side panels that are intended to be attached to an existing rack cabinent as an expansion cabinet.
Table 3. Preconfigured models
| Part number | Description |
| Primary Rack Cabinets (standalone rack cabinets) | |
| 7D6DA007WW | Lenovo Think System 42U Onyx Primary Heavy Duty Rack Cabinet |
| 7D6DA008WW | Lenovo Think System 42U Pearl Primary Heavy Duty Rack Cabinet |
| 7D6EA009WW | Lenovo Think System 48U Onyx Primary Heavy Duty Rack Cabinet |
| 7D6EA00AWW | Lenovo Think System 48U Pearl Primary Heavy Duty Rack Cabinet |
| Expansion Rack Cabinets (rack cabinets without side panels) | |
| 7D6D0001WW | Lenovo Think System 42U Onyx Expansion Heavy Duty Rack Cabinet |
| 7D6DA000WW | Lenovo Think System 42U Pearl Expansion Heavy Duty Rack Cabinet |
| 7D6EA000WW | Lenovo Think System 48U Onyx Expansion Heavy Duty Rack Cabinet |
| 7D6EA001WW | Lenovo Think System 48U Pearl Expansion Heavy Duty Rack Cabinet |
Configuration options
The Heavy Duty Rack Cabinets can be customized for your preferences and specific use case or deployment scenario.
- Extensions
- Rear doors
- Side Panels
- Cable management options
Extensions
The 1200mm standard depth of the rack cabinets can be extended by 180mm both in the front and the rear. The front extension can provide additional space for optimal front cabling, which can be beneficial both from a servicing point of view and from a thermal point of view. The rear extension can provide additional space for additional 0U PDUs or deeper than usual systems within the rack cabinet.
Use with RDHX: Only a front extension can be used with a rack cabinet with a Rear Door Heat Exchanger installed on the rear of the cabinet.
Ordering information is listed in the following table.
Table 4. Extensions
| Part number | Feature code | Description | Maximum supported |
| 42U extension options | |||
| 4M17A61254 | BHC9 | Think System 42U Onyx Heavy Duty Rack Extension | 2† |
| 4M17A61290 | BJ62 | Think System 42U Pearl Heavy Duty Rack Extension | 2† |
| 48U extension options | |||
| 4M17A61255 | BHCP | Think System 48U Onyx Heavy Duty Rack Extension | 2† |
| 4M17A61291 | BJ6A | Think System 48U Pearl Heavy Duty Rack Extension | 2† |
| Extension location (for CTO orders) | |||
| None | BJ2N | Extension Kit Front installation* | 1 |
| None | BJ2M | Extension Kit Rear installation | 1 |
† Only 1 extension, installed at the front, is supported with racks that have a Rear Door Heat Exhanger (RDHX) attached
* One Extension Kit and the Front installation must be selected for front-cabled systems.
All extensions come with four 178mm by 89mm openings to allow for inter-rack cabling without having to leave the rack through the top to overhead trays or through the bottom into a raised floor. The following figure shows the contents of the rack extension part numbers. As well as the two sides [1] and [2], the kit includes one top cover [3], two front covers [4] and necessary screws to attach the extension to the rack cabinet [5], [6] and [7].

Figure 3. Contents of Rack Extension part numbers
Rear doors
Depending on the choice of cooling and preference of aesthetics the Heavy Duty Rack Cabinet can be ordered with a perforated rear door for ambient air cooling, a passive Rear Door Heat Exchanger leveraging Lenovo Neptune technology for liquid cooling or no rear door at all to, for example, show case a beautiful cabling job.
Ordering information is listed in the following table.
Table 5. Rear doors
| Part number | Feature code | Description | Maximum supported |
| 42U rear door options | |||
| 4M17A61319 | BJPA | Think System 42U Onyx Heavy Duty Rack Rear Door | 1 |
| 4M17A61320 | BJ5Z | Think System 42U Pearl Heavy Duty Rack Rear Door | 1 |
| 4M17A61292 | BJ2K | Rear Door Heat Exchanger for 42U Rack | 1 |
| 48U rear door options | |||
| 4M17A61321 | BHCL | Think System 48U Onyx Heavy Duty Rack Rear Door | 1 |
| 4M17A61322 | BJ67 | Think System 48U Pearl Heavy Duty Rack Rear Door | 1 |
| 4M17A61256 | BHCN | Rear Door Heat Exchanger for 48U Rack | 1 |
| Additional options | |||
| 4M27A13685 | A4ZA | Rear Door Heat Exchanger Bleed Tool (air-purging tool) | Not applicable |
The following figure shows the standard rear door and the Rear Door Heat Exchanger, installed in 42U rack cabinets.

Figure 4. Standard rear door and the Rear Door Heat Exchanger
Side Panels
The Heavy Duty Rack Cabinets can be configured with and without side panels or even just one with the choice of side, to map exactly to your requirements. Choose both side panels if the rack cabinet will be placed standalone or you want to isolate airflow, choose one side panel with left or right placement for racks that are at the end of a rack row and leave them off for racks that are placed inside the row.
Attachment brackets to connect and secure adjacent racks together are included with all racks.
Table 6. Side Panels
| Part number | Feature code | Description | Maximum supported |
| 42U side panel options | |||
| 4M17A61323 | BHC7 | Think System 42U Onyx Heavy Duty Rack Side Panel | 2 |
| 4M17A61324 | BJ60 | Think System 42U Pearl Heavy Duty Rack Side Panel | 2 |
| 48U side panel options | |||
| 4M17A61325 | BHCM | ThinkSystem 48U Onyx Heavy Duty Rack Side Panel | 2 |
| 4M17A61326 | BJ68 | ThinkSystem 48U Pearl Heavy Duty Rack Side Panel | 2 |
| Additional options | |||
| None | BJPB | Side Panel Left Installation* | 1 |
| None | BJPC | Side Panel Right Installation* | 1 |
* Left and Right are as seen from the rear of the cabinet looking towards the front of the cabinet, also referred to as “proper left” and “proper right”.
Cable management options
Proper cable management is a crucial part of a rack design to allow for optimal airflow and also easy serviceability of the populated rack cabinet. For that reason, the Heavy Duty Rack Cabinet comes by default equipped with rear cable management anchor points for a clean and beautiful cabling.
Additionally there is a choice for front cable management brackets to provide additional anchor points for front-cabled systems, and cable management brackets for use in the rear when 0U PDUs are installed.
Table 7. Cable management options
| Part number | Feature code | Description | Maximum supported |
| Default cable management options | |||
| 00Y3026 | A4WW | Cable Installation Tool for Racks | Not Applicable |
| 4M17A61327 | BJPD | 21U Front Cable Management Bracket | 2* |
| 48U additional cable management options | |||
| 4M17A61328 | BJ2L | 6U Front Cable Management Bracket | 1* |
| Other cable management options | |||
| 00Y3011 | A4WU | 1U Rack Pass Through Bracket | Not Applicable |
| CTO only | BNVL | 42U Rear Cable Management Bracket Kit for 0U PDUs (contains 6 brackets) | 1** |
| CTO only | BNVM | 48U Rear Cable Management Bracket Kit for 0U PDUs (contains 8 brackets) | 1** |
* The Front Cable Management Brackets must be selected if front-cabled systems are configured in the rack cabinet.
** The Rear Cable Management Bracket must be selected if 0U PDUs are used.
Power Distribution Units
The Heavy Duty Rack Cabinets support both 0U power distribution units (PDUs) mounted vertically in the rear as well as 1U PDUs that can be installed either within the horizontal rack space or the vertical rack side pockets.
The following table lists the power distribution units (PDUs) that are offered by Lenovo.
Table 8. Power distribution units
| Part number | Feature code | Description | ANZ | ASEAN | Brazil | EET | MEA | RUCIS | WE | HTK | INDIA | JAPAN | LA | NA | PRC |
| 0U Basic PDUs | |||||||||||||||
| 00YJ776 | ATZY | 0U 36 C13/6 C19 24A 1 Phase PDU | N | Y | Y | N | N | N | N | N | N | Y | Y | Y | N |
| 00YJ777 | ATZZ | 0U 36 C13/6 C19 32A 1 Phase PDU | Y | Y | N | Y | Y | Y | Y | Y | Y | N | N | Y | Y |
| 00YJ778 | AU00 | 0U 21 C13/12 C19 32A 3 Phase PDU | Y | Y | N | Y | Y | Y | Y | Y | Y | N | N | Y | Y |
| 0U Switched and Monitored PDUs | |||||||||||||||
| 00YJ783 | AU04 | 0U 12 C13/12 C19 Switched and Monitored 48A 3 Phase PDU | N | N | Y | N | N | N | Y | N | N | Y | Y | Y | N |
| 00YJ781 | AU03 | 0U 20 C13/4 C19 Switched and Monitored 24A 1 Phase PDU | N | N | Y | N | Y | N | Y | N | N | Y | Y | Y | N |
| 00YJ782 | AU02 | 0U 18 C13/6 C19 Switched and Monitored 32A 3 Phase PDU | Y | Y | Y | Y | Y | Y | Y | Y | Y | N | Y | N | Y |
| 00YJ780 | AU01 | 0U 20 C13/4 C19 Switched and Monitored 32A 1 Phase PDU | Y | Y | Y | Y | Y | Y | Y | Y | Y | N | Y | N | Y |
| 1U Switched and Monitored PDUs | |||||||||||||||
| 4PU7A81117 | BNDV | 1U 18 C19/C13 switched and monitored 48A 3P WYE PDU – ETL | N | N | N | N | N | N | N | N | N | N | N | Y | N |
| 4PU7A77467 | BLC4 | 1U 18 C19/C13 Switched and Monitored 80A 3P Delta PDU | N | N | N | N | N | N | N | N | N | Y | N | Y | N |
| 4PU7A77469 | BLC6 | 1U 12 C19/C13 switched and monitored 60A 3P Delta PDU | N | N | N | N | N | N | N | N | N | N | N | Y | N |
| 4PU7A77468 | BLC5 | 1U 12 C19/C13 switched and monitored 32A 3P WYE PDU | Y | Y | Y | Y | Y | Y | Y | Y | Y | N | Y | Y | Y |
| 4PU7A81118 | BNDW | 1U 18 C19/C13 switched and monitored 48A 3P WYE PDU – CE | Y | Y | Y | Y | Y | Y | Y | Y | Y | N | Y | N | Y |
| 1U Ultra Density Enterprise PDUs (9x IEC 320 C13 + 3x IEC 320 C19 outlets) | |||||||||||||||
| 71763NU | 6051 | Ultra Density Enterprise C19/C13 PDU 60A/208V/3PH | N | N | Y | N | N | N | N | N | N | Y | Y | Y | N |
| 71762NX | 6091 | Ultra Density Enterprise C19/C13 PDU Module | Y | Y | Y | Y | Y | Y | Y | Y | Y | Y | Y | Y | Y |
| 1U C13 Enterprise PDUs (12x IEC 320 C13 outlets) | |||||||||||||||
| 39M2816 | 6030 | DPI C13 Enterprise PDU Plus Module (WW) | Y | Y | Y | Y | Y | Y | Y | Y | Y | Y | Y | Y | Y |
| 39Y8941 | 6010 | DPI C13 Enterprise PDU Module (WW) | Y | Y | Y | Y | Y | Y | Y | Y | Y | Y | Y | Y | Y |
| 1U C19 Enterprise PDUs (6x IEC 320 C19 outlets) | |||||||||||||||
| 39Y8948 | 6060 | DPI C19 Enterprise PDU Module (WW) | Y | Y | Y | Y | Y | Y | Y | Y | Y | Y | Y | Y | Y |
| 1U Front-end PDUs (3x IEC 320 C19 outlets) | |||||||||||||||
| 39Y8938 | 6002 | DPI Single-phase 30A/120V Front-end PDU (US) | Y | Y | Y | Y | Y | Y | Y | Y | Y | Y | Y | Y | Y |
| Part number | Feature code | Description | ANZ | ASEAN | Brazil | EET | MEA | RUCIS | WE | HTK | INDIA | JAPAN | LA | NA | PRC |
| 39Y8939 | 6003 | DPI Single-phase 30A/208V Front-end PDU (US) | Y | Y | Y | Y | Y | Y | Y | Y | Y | Y | Y | Y | Y |
| 39Y8934 | 6005 | DPI Single-phase 32A/230V Front-end PDU (International) | Y | Y | Y | Y | Y | Y | Y | Y | Y | Y | Y | Y | Y |
| 39Y8940 | 6004 | DPI Single-phase 60A/208V Front-end PDU (US) | Y | N | Y | Y | Y | Y | Y | N | N | Y | Y | Y | N |
| 39Y8935 | 6006 | DPI Single-phase 63A/230V Front-end PDU (International) | Y | Y | Y | Y | Y | Y | Y | Y | Y | Y | Y | Y | Y |
| 1U NEMA PDUs (6x NEMA 5-15R outlets) | |||||||||||||||
| 39Y8905 | 5900 | DPI 100-127V NEMA PDU | Y | Y | Y | Y | Y | Y | Y | Y | Y | Y | Y | Y | Y |
| Line cords for 1U PDUs that ship without a line cord | |||||||||||||||
| 40K9611 | 6504 | 4.3m, 32A/380-415V, EPDU/IEC 309 3P+N+G 3ph wye (non-US) Line Cord | Y | Y | Y | Y | Y | Y | Y | Y | Y | Y | Y | Y | Y |
| 40K9612 | 6502 | 4.3m, 32A/230V, EPDU to IEC 309 P+N+G (non-US) Line Cord | Y | Y | Y | Y | Y | Y | Y | Y | Y | Y | Y | Y | Y |
| 40K9613 | 6503 | 4.3m, 63A/230V, EPDU to IEC 309 P+N+G (non-US) Line Cord | Y | Y | Y | Y | Y | Y | Y | Y | Y | Y | Y | Y | Y |
| 40K9614 | 6500 | 4.3m, 30A/208V, EPDU to NEMA L6-30P (US) Line Cord | Y | Y | Y | Y | Y | Y | Y | Y | Y | Y | Y | Y | Y |
| 40K9615 | 6501 | 4.3m, 60A/208V, EPDU to IEC 309 2P+G (US) Line Cord | N | N | Y | N | N | N | Y | N | N | Y | Y | Y | N |
| 40K9617 | 6505 | 4.3m, 32A/230V, Souriau UTG Female to AS/NZ 3112 (Aus/NZ) Line Cord | Y | Y | Y | Y | Y | Y | Y | Y | Y | Y | Y | Y | Y |
| 40K9618 | 6506 | 4.3m, 32A/250V, Souriau UTG Female to KSC 8305 (S. Korea) Line Cord | Y | Y | Y | Y | Y | Y | Y | Y | Y | Y | Y | Y | Y |
For more information, see the Lenovo Press documents in the PDU category: https://lenovopress.com/servers/options/pdu
The following table lists the supported power distribution units (PDUs) that are offered by Lenovo through the Vendor Logo Hardware (VLH) program. VLH products are resold through Lenovo but supported directly from the original manufacturer.
Table 9. PDUs through VLH program
| Part number | Feature code | Description | Vendor model |
| None | BK9X | VLH – 1U 12 C19/C13 switched and monitored 32A 3P WYE PDU | Vertiv Geist DS30203 PDU |
RDHX performance
Expected performance of the 42U heat exchanger is illustrated in the following figure for a typical inlet air temperature of 27°C (80.6°F), with a fully populated rack, near uniform power dissipation, and a 30-40 kW heat load.

Figure 5. Typical performance of the 42U heat exchanger, 30 kW heat load
Performance data is shown in the following figure for a 20 kW heat load. Because of the lower heat load, a specific level of cooling can be achieved with warmer water, a lower flow rate, or both.

Figure 6. Typical performance of the 42U heat exchanger, 20 kW heat load
By selecting the correct water inlet temperature and water flow rate, you can achieve the necessary heat removal. A heat removal of 100% indicates that an amount of heat equivalent to that generated by the devices has been removed by the heat exchanger and the average air temperature leaving the heat exchanger is identical to that entering the rack (27°C /80.6°F in this example).
Heat removal in excess of 100% indicates that the heat exchanger not only removed all of the heat generated by the devices but further cooled the air so that the average air temperature leaving the rack is actually lower than that entering the rack.
A given water temperature may be used only if the system that is supplying the water is able to measure the room dew point and automatically adjust the water temperature accordingly. Otherwise, the water temperature must be above the maximum dew point that is allowed at that data center installation.
Customers should work with their Lenovo Sales Architects and Datacenter Infrastructure Specialists for an exact sizing for their project.
Physical specifications
The following table lists the dimensions and weight of the rack cabinets.
Table 10. Physical specifications
| Description | 42U Rack Cabinet | 48U Rack Cabinet |
| Cabinet dimensions | ||
| Height | 2011 mm (79.2 in) | 2277 mm (89.6 in) |
| Width (without outriggers) | 600 mm (23.6 in) | 600 mm (23.6 in) |
| Width (with outriggers) | 770 mm (30.3 in) | 770 mm (30.3 in) |
| Depth (without extensions) | 1200 mm (47.2 in) | 1200 mm (47.2 in) |
| Depth (with 1 extension) | 1380 mm (54.3 in) | 1380 mm (54.3 in) |
| Depth (with 2 extensions) | 1560 mm (61.4 in) | 1560 mm (61.4 in) |
| Packaging dimensions | ||
| Packaging height | 2205 mm (86.1 in) | 2472 mm (97.3 in) |
| Packaging width | 1100 mm (43.3 in) | 1100 mm (43.3 in) |
| Packaging depth | 1760 mm (69.3 in) | 1760 mm (69.3 in) |
| Weight | ||
| Empty (Front Door only) | 176 kg (388 lb) | 183 kg (403 lb) |
| Rear Door | 11 kg (24 lb) | 12 kg (26 lb) |
| Outriggers | 8 kg (18 lb) | 8 kg (18 lb) |
| Stabilizer | 7 kg (15 lb) | 7 kg (15 lb) |
| Empty Expansion Rack (without side panels) | 202 kg (445 lb) | 210 kg (463 lb) |
| Side Panels | 23 kg (51 lb) | 27 kg (60 lb) |
| Empty Primary Rack | 248 kg (547 lb) | 264 kg (582 lb) |
| Maximum Load (Dynamic and Static) | 1588 kg (3501 lb) | 1814 kg (3999 lb) |
| Packaging | 244 kg (538 lb) | 251 kg (553 lb) |
| Anchor brackets | 6 kg (13 lb) | 6 kg (13 lb) |
| Empty ship weight (with packaging) | 498 kg (1098 lb) | 521 kg (1148 lb) |
| Full Load ship weight (with packaging) | 2086 kg (4599 lb) | 2335 kg (5148 lb) |
| Rear Door Heat Exchanger (empty) | 39 kg (86 lb) | 49 kg (108 lb) |
| Extension Kit | 16 kg (35 lb) | 18 kg (40 lb) |
| Maximum empty weight (with RDHX and extension) | 292 kg (644 lb) | 319 kg (703 lb) |
| Rear Door Heat Exchanger (filled) | 48 kg (106 lb) | 58 kg (128 lb) |
| Maximum deployed weight | 1845 kg (4068 lb) | 2087 kg (4601 lb) |
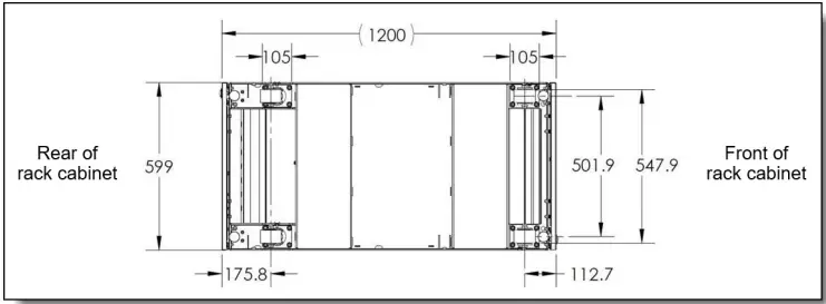
The following image shows the location of the casters (wheels) in relation to the overall dimensions of the rack cabinet.

Figure 7. Location of the casters (distances in millimeters)
Operating environment
The Heavy Duty Rack Cabinets have the following operating environment requirements:
RDHX water requirements
The water requirements for the Rear Door Heat Exchanger is as follows:
- Water Temperature:
- Above dewpoint
- 18°C / 64.4°F for ASHRAE Class 1 Environment
- 22°C / 71.6°F for ASHRAE Class 2 Environment
- Water volume: 9 liters (2.4 gallons)
- Maximum pressure: 689.66 kPa (20psi) / 6.9 bars
- Minimum water flow rate: 22.7 liters (6 gallons) per minute
- Maximum water flow rate: 56.8 liters (15 gallons) per minute
- Water connections: 3/4 quick connect
Note: The water required to initially fill the system side cooling loop must be reasonably clean, bacteria free water (<100 CFU/ml) such as de-mineralized water, reverse osmosis water, de-ionized water, or distilled water. The water must be treated with anti-biological and anti-corrosion measures. The water cannot originate from the primary chilled-water system for the building but must be supplied as part of a secondary, closed-loop system.
Important: Do not use glycol solutions, because they can adversely affect the cooling performance of the heat exchanger
Tilt, shock and vibration
The rack cabinets have the following tilt, vibration and shock limits:
- Tilt:
- 42U cabinet: 12.5 degrees
- 48U cabinet: 10 degrees
- Vibration: 0.8 G rms at 2 Hz to 200 Hz for 15 minutes
- Shock: See the following table
Table 11. Shock data for 42U and 48U cabinets (Guided Platen Shock)
| Number of drops | Free-fall drop height | Velocity change | Duration |
| 10 | 40 mm (1.5 inches) | 1020 mm/sec (40 in/sec) | 2-3 ms |
| 2 | 70 mm (2.75 inches) | 1400 mm/sec (55 in/sec) | 2-3 ms |
For additional information, see the Specifications section of the Setup Guide for the rack cabinet, available from the Lenovo Think System Information Center, https://thinksystem.lenovofiles.com/help/index.jsp
Regulatory compliance
The Heavy Duty Rack Cabinets conform to the following international standards:
- UL 2416
- China VOC (GB 30981-2020)
Warranty
The Heavy Duty Rack Cabinets have a 3 year warranty:
- Lenovo Think System 42U Heavy Duty Rack Cabinet (7D6D) – 3 year warranty
- Lenovo Think System 48U Heavy Duty Rack Cabinet (7D6E) – 3 year warranty
- Lenovo Every Scale Heavy Duty Rack Cabinet (1410) – 3 year warranty
The standard warranty terms are customer-replaceable unit (CRU) and onsite (for field-replaceable units FRUs only) with standard call center support during normal business hours and 9×5 Next Business Day Parts Delivered.
Lenovo’s additional support services provide a sophisticated, unified support structure for your data center, with an experience consistently ranked number one in customer satisfaction worldwide. Available offerings include:
- Premier Support
Premier Support provides a Lenovo-owned customer experience and delivers direct access to technicians skilled in hardware, software, and advanced troubleshooting, in addition to the following:- Direct technician-to-technician access through a dedicated phone line
- 24x7x365 remote support
- Single point of contact service
- End to end case management
- Third-party collaborative software support
- Online case tools and live chat support
- On-demand remote system analysis
- Warranty Upgrade (Preconfigured Support)
Services are available to meet the on-site response time targets that match the criticality of your systems.- 3, 4, or 5 years of service coverage
- 1-year or 2-year post-warranty extensions
- Foundation Service: 9×5 service coverage with next business day onsite response
- Essential Service: 24×7 service coverage with 4-hour onsite response or 24-hour committed repair (available only in select markets)
- Advanced Service: 24×7 service coverage with 2-hour onsite response or 6-hour committed repair (available only in select markets)
- Managed Services
Lenovo Managed Services provides continuous 24×7 remote monitoring (plus 24×7 call center availability) and proactive management of your data center using state-of-the-art tools, systems, and practices by a team of highly skilled and experienced Lenovo services professionals.
Quarterly reviews check error logs, verify firmware & OS device driver levels, and software as needed. We’ll also maintain records of latest patches, critical updates, and firmware levels, to ensure you systems are providing business value through optimized performance. - Technical Account Management (TAM)
A Lenovo Technical Account Manager helps you optimize the operation of your data center based on a deep understanding of your business. You gain direct access to your Lenovo TAM, who serves as your single point of contact to expedite service requests, provide status updates, and furnish reports to track incidents over time. In addition, your TAM will help proactively make service recommendations and manage your service relationship with Lenovo to make certain your needs are met. - Enterprise Server Software Support
Enterprise Software Support is an additional support service providing customers with software support on Microsoft, Red Hat, SUSE, and VMware applications and systems. Around the clock availability for critical problems plus unlimited calls and incidents helps customers address challenges fast, without incremental costs. Support staff can answer troubleshooting and diagnostic questions, address product comparability and interoperability issues, isolate causes of problems, report defects to software vendors, and more. - Health Check
Having a trusted partner who can perform regular and detailed health checks is central to maintaining efficiency and ensuring that your systems and business are always running at their best. Health Check supports Lenovo-branded server, storage, and networking devices, as well as select Lenovo-supported products from other vendors that are sold by Lenovo or a Lenovo-Authorized Reseller.
Examples of region-specific warranty terms are second or longer business day parts delivery or parts-only base warranty.
If warranty terms and conditions include onsite labor for repair or replacement of parts, Lenovo will dispatch a service technician to the customer site to perform the replacement. Onsite labor under base warranty is limited to labor for replacement of parts that have been determined to be field-replaceable units (FRUs). Parts that are determined to be customer-replaceable units (CRUs) do not include onsite labor under base warranty.
If warranty terms include parts-only base warranty, Lenovo is responsible for delivering only replacement parts that are under base warranty (including FRUs) that will be sent to a requested location for self-service. Parts-only service does not include a service technician being dispatched onsite. Parts must be changed at customer’s own cost and labor and defective parts must be returned following the instructions supplied with the spare parts.
Lenovo Service offerings are region-specific. Not all preconfigured support and upgrade options are available in every region. For information about Lenovo service upgrade offerings that are available in your region, refer to the following resources:
- Service part numbers in Lenovo Data Center Solution Configurator (DCSC): http://dcsc.lenovo.com/#/services
- Lenovo Services Availability Locator http://lenovolocator.com/
For service definitions, region-specific details, and service limitations, please refer to the following documents:
- Lenovo Statement of Limited Warranty for Infrastructure Solutions Group (ISG) Servers and System Storage http://pcsupport.lenovo.com/us/en/solutions/ht503310
- Lenovo Data Center Services Agreement http://support.lenovo.com/us/en/solutions/ht116628
Table 12. Warranty upgrades
|
Description | Part numbers | |
| Standard support | Premier support | |
| Lenovo ThinkSystem 42U Heavy Duty Rack Cabinet (7D6D) | ||
| Foundation Service w/Next Business Day Response, 3Yr | 5WS7A92564 | 5WS7A92614 |
| Foundation Service w/Next Business Day Response, 4Yr | 5WS7A92566 | 5WS7A92616 |
| Foundation Service w/Next Business Day Response, 5Yr | 5WS7A92568 | 5WS7A92618 |
| Essential Service w/24×7 4Hr Response, 3Yr | 5WS7A92579 | 5WS7A92629 |
| Essential Service w/24×7 4Hr Response, 4Yr | 5WS7A92581 | 5WS7A92631 |
| Essential Service w/24×7 4Hr Response, 5Yr | 5WS7A92583 | 5WS7A92633 |
| Advanced Service w/24×7 2Hr Response, 3Yr | 5WS7A92594 | 5WS7A92644 |
| Advanced Service w/24×7 2Hr Response, 4Yr | 5WS7A92596 | 5WS7A92646 |
| Advanced Service w/24×7 2Hr Response, 5Yr | 5WS7A92598 | 5WS7A92648 |
| Lenovo Think System 48U Heavy Duty Rack Cabinet (7D6E) | ||
| Foundation Service w/Next Business Day Response, 3Yr | 5WS7A92664 | 5WS7A92714 |
| Foundation Service w/Next Business Day Response, 4Yr | 5WS7A92666 | 5WS7A92716 |
| Foundation Service w/Next Business Day Response, 5Yr | 5WS7A92668 | 5WS7A92718 |
| Essential Service w/24×7 4Hr Response, 3Yr | 5WS7A92679 | 5WS7A92729 |
| Essential Service w/24×7 4Hr Response, 4Yr | 5WS7A92681 | 5WS7A92731 |
| Essential Service w/24×7 4Hr Response, 5Yr | 5WS7A92683 | 5WS7A92733 |
| Advanced Service w/24×7 2Hr Response, 3Yr | 5WS7A92694 | 5WS7A92744 |
| Advanced Service w/24×7 2Hr Response, 4Yr | 5WS7A92696 | 5WS7A92746 |
| Advanced Service w/24×7 2Hr Response, 5Yr | 5WS7A92698 | 5WS7A92748 |
| Lenovo EveryScale 42U Heavy Duty Rack Cabinet (1410-O42, -P42) | ||
| Foundation Service w/Next Business Day Response, 3Yr | 5WS7A92764 | 5WS7A92814 |
| Foundation Service w/Next Business Day Response, 4Yr | 5WS7A92766 | 5WS7A92816 |
| Foundation Service w/Next Business Day Response, 5Yr | 5WS7A92768 | 5WS7A92818 |
| Essential Service w/24×7 4Hr Response, 3Yr | 5WS7A92779 | 5WS7A92829 |
| Essential Service w/24×7 4Hr Response, 4Yr | 5WS7A92781 | 5WS7A92831 |
| Essential Service w/24×7 4Hr Response, 5Yr | 5WS7A92783 | 5WS7A92833 |
| Advanced Service w/24×7 2Hr Response, 3Yr | 5WS7A92794 | 5WS7A92844 |
| Advanced Service w/24×7 2Hr Response, 4Yr | 5WS7A92796 | 5WS7A92846 |
| Advanced Service w/24×7 2Hr Response, 5Yr | 5WS7A92798 | 5WS7A92848 |
| Lenovo EveryScale 48U Heavy Duty Rack Cabinet (1410-O48, -P48) | ||
| Foundation Service w/Next Business Day Response, 3Yr | 5WS7A92864 | 5WS7A92914 |
| Foundation Service w/Next Business Day Response, 4Yr | 5WS7A92866 | 5WS7A92916 |
| Foundation Service w/Next Business Day Response, 5Yr | 5WS7A92868 | 5WS7A92918 |
| Essential Service w/24×7 4Hr Response, 3Yr | 5WS7A92879 | 5WS7A92929 |
| Essential Service w/24×7 4Hr Response, 4Yr | 5WS7A92881 | 5WS7A92931 |
| Essential Service w/24×7 4Hr Response, 5Yr | 5WS7A92883 | 5WS7A92933 |
| Advanced Service w/24×7 2Hr Response, 3Yr | 5WS7A92894 | 5WS7A92944 |
| Advanced Service w/24×7 2Hr Response, 4Yr | 5WS7A92896 | WS7A92946 |
| Advanced Service w/24×7 2Hr Response, 5Yr | 5WS7A92898 | 5WS7A92948 |
Services
Lenovo Services is a dedicated partner to your success. Our goal is to reduce your capital outlays, mitigate your IT risks, and accelerate your time to productivity.
Note: Some service options may not be available in all markets or regions. For more information, go to https://www.lenovo.com/services. For information about Lenovo service upgrade offerings that are available in your region, contact your local Lenovo sales representative or business partner.
Here’s a more in-depth look at what we can do for you:
- Asset Recovery Services
Asset Recovery Services (ARS) helps customers recover the maximum value from their end-of-life equipment in a cost-effective and secure way. On top of simplifying the transition from old to new equipment, ARS mitigates environmental and data security risks associated with data center equipment disposal. Lenovo ARS is a cash-back solution for equipment based on its remaining market value, yielding maximum value from aging assets and lowering total cost of ownership for your customers. For more information, see the ARS page, https://lenovopress.com/lp1266-reduce-ewaste-and-grow-your-bottom-line-with-lenovo-ars. - Assessment Services
An Assessment helps solve your IT challenges through an onsite, multi-day session with a Lenovo technology expert. We perform a tools-based assessment which provides a comprehensive and thorough review of a company’s environment and technology systems. In addition to the technology based functional requirements, the consultant also discusses and records the non-functional business requirements, challenges, and constraints. Assessments help organizations like yours, no matter how large or small, get a better return on your IT investment and overcome challenges in the ever-changing technology landscape. - Design Services
Professional Services consultants perform infrastructure design and implementation planning to support your strategy. The high-level architectures provided by the assessment service are turned into low level designs and wiring diagrams, which are reviewed and approved prior to implementation. The implementation plan will demonstrate an outcome-based proposal to provide business capabilities through infrastructure with a risk-mitigated project plan. - Basic Hardware Installation
Lenovo experts can seamlessly manage the physical installation of your server, storage, or networking hardware. Working at a time convenient for you (business hours or off shift), the technician will unpack and inspect the systems on your site, install options, mount in a rack cabinet, connect to power and network, check and update firmware to the latest levels, verify operation, and dispose of the packaging, allowing your team to focus on other priorities. - Deployment Services
When investing in new IT infrastructures, you need to ensure your business will see quick time to value with little to no disruption. Lenovo deployments are designed by development and engineering teams who know our Products & Solutions better than anyone else, and our technicians own the process from delivery to completion. Lenovo will conduct remote preparation and planning, configure & integrate systems, validate systems, verify and update appliance firmware, train on administrative tasks, and provide post-deployment documentation. Customer’s IT teams leverage our skills to enable IT staff to transform with higher level roles and tasks. - Integration, Migration, and Expansion Services
Move existing physical & virtual workloads easily, or determine technical requirements to support increased workloads while maximizing performance. Includes tuning, validation, and documenting ongoing run processes. Leverage migration assessment planning documents to perform necessary migrations.
Lenovo Financial Services
Lenovo Financial Services reinforces Lenovo’s commitment to deliver pioneering products and services that are recognized for their quality, excellence, and trustworthiness. Lenovo Financial Services offers financing solutions and services that complement your technology solution anywhere in the world.
We are dedicated to delivering a positive finance experience for customers like you who want to maximize your purchase power by obtaining the technology you need today, protect against technology obsolescence, and preserve your capital for other uses.
We work with businesses, non-profit organizations, governments and educational institutions to finance their entire technology solution. We focus on making it easy to do business with us. Our highly experienced team of finance professionals operates in a work culture that emphasizes the importance of providing outstanding customer service. Our systems, processes and flexible policies support our goal of providing customers with a positive experience.
We finance your entire solution. Unlike others, we allow you to bundle everything you need from hardware and software to service contracts, installation costs, training fees, and sales tax. If you decide weeks or months later to add to your solution, we can consolidate everything into a single invoice.
Our Premier Client services provide large accounts with special handling services to ensure these complex transactions are serviced properly. As a premier client, you have a dedicated finance specialist who manages your account through its life, from first invoice through asset return or purchase. This specialist develops an in-depth understanding of your invoice and payment requirements. For you, this dedication provides a high-quality, easy, and positive financing experience.
For your region-specific offers, please ask your Lenovo sales representative or your technology provider about the use of Lenovo Financial Services. For more information, see the following Lenovo website:
https://www.lenovo.com/us/en/landingpage/lenovo-financial-services/
For more information, see these resources:
- Lenovo Press Rack Cabinet Reference: https://lenovopress.com/lp0658-lenovo-rack-cabinet-reference
- Heavy Duty Rack Cabinets product publications https://thinksystem.lenovofiles.com/help/topic/hdc_rackcabinet/ic_introduction.html
- User Guide
- Unpacking Instructions
- Rear Door Heat eXchanger V2 Installation and Maintenance Guide
- LeSI product page: https://www.lenovo.com/us/en/data-center/servers/high-density/Lenovo-ScalableInfrastructure/p/WMD00000276
- DCSC configurator: https://dcsc.lenovo.com/
- x-config configurator: https://lesc.lenovo.com/products/hardware/configurator/worldwide/bhui/asit/x-config.jnlp
Related product families
Product families related to this document are the following:
- Rack Cabinets
Notices
Lenovo may not offer the products, services, or features discussed in this document in all countries. Consult your local Lenovo representative for information on the products and services currently available in your area. Any reference to a Lenovo product, program, or service is not intended to state or imply that only that Lenovo product, program, or service may be used. Any functionally equivalent product, program, or service that does not infringe any Lenovo intellectual property right may be used instead. However, it is the user’s responsibility to evaluate and verify the operation of any other product, program, or service. Lenovo may have patents or pending patent applications covering subject matter described in this document. The furnishing of this document does not give you any license to these patents. You can send license inquiries, in writing, to:
Lenovo (United States), Inc. 8001 Development Drive
Morrisville, NC 27560 U.S.A.
Attention: Lenovo Director of Licensing
LENOVO PROVIDES THIS PUBLICATION ”AS IS” WITHOUT WARRANTY OF ANY KIND, EITHER EXPRESS OR IMPLIED, INCLUDING, BUT NOT LIMITED TO, THE IMPLIED WARRANTIES OF NON-INFRINGEMENT, MERCHANTABILITY OR FITNESS FOR A PARTICULAR PURPOSE. Some jurisdictions do not allow disclaimer of express or implied warranties in certain transactions, therefore, this statement may not apply to you.
This information could include technical inaccuracies or typographical errors. Changes are periodically made to the information herein; these changes will be incorporated in new editions of the publication. Lenovo may make improvements and/or changes in the product(s) and/or the program(s) described in this publication at any time without notice.
The products described in this document are not intended for use in implantation or other life support applications where malfunction may result in injury or death to persons. The information contained in this document does not affect or change Lenovo product specifications or warranties. Nothing in this document shall operate as an express or implied license or indemnity under the intellectual property rights of Lenovo or third parties. All information contained in this document was obtained in specific environments and is presented as an illustration. The result obtained in other operating environments may vary. Lenovo may use or distribute any of the information you supply in any way it believes appropriate without incurring any obligation to you.
Any references in this publication to non-Lenovo Web sites are provided for convenience only and do not in any manner serve as an endorsement of those Web sites. The materials at those Web sites are not part of the materials for this Lenovo product, and use of those Web sites is at your own risk. Any performance data contained herein was determined in a controlled environment. Therefore, the result obtained in other operating environments may vary significantly. Some measurements may have been made on development-level systems and there is no guarantee that these measurements will be the same on generally available systems. Furthermore, some measurements may have been estimated through extrapolation. Actual results may vary. Users of this document should verify the applicable data for their specific environment.
© Copyright Lenovo 2022. All rights reserved.
This document, LP1498, was created or updated on March 8, 2022.
Send us your comments in one of the following ways:
- Use the online Contact us review form found at: https://lenovopress.lenovo.com/LP1498
- Send your comments in an e-mail to: [email protected]
This document is available online at https://lenovopress.lenovo.com/LP1498.
Trademarks
Lenovo and the Lenovo logo are trademarks or registered trademarks of Lenovo in the United States, other countries, or both. A current list of Lenovo trademarks is available on the Web at https://www.lenovo.com/us/en/legal/copytrade/.
The following terms are trademarks of Lenovo in the United States, other countries, or both:
Lenovo®
Lenovo Neptune®
Lenovo Services
System x®
ThinkSystem
The following terms are trademarks of other companies:
Microsoft® is a trademark of Microsoft Corporation in the United States, other countries, or both.
Other company, product, or service names may be trademarks or service marks of others.
Lenovo Heavy Duty Rack Cabinets
References
DCSC - Data Center Solution Configurator
Services Availability Locator
Lenovo Statement of Limited Warranty for Data Center Group (DCG) Servers, System Storage and Networking - Lenovo Support US
Lenovo Infrastructure Solutions Group Services Agreement - Lenovo Support US
DCSC - Data Center Solution Configurator
Lenovo Rack Cabinet Reference > Lenovo Press
Lenovo Scalable Infrastructure (LeSI) Solutions Product Guide > Lenovo Press
Reduce E-Waste and Grow Your Bottom Line with Lenovo Asset Recovery Services (ARS) > Lenovo Press
Reduce E-Waste and Grow Your Bottom Line with Lenovo Asset Recovery Services (ARS) > Lenovo Press
Power Distribution Units > Lenovo Press
Lenovo Heavy Duty Rack Cabinets Product Guide > Lenovo Press
Rack Cabinets > Lenovo Press
Lenovo Heavy Duty Rack Cabinets > Lenovo Press
Lenovo System x and Cluster Solutions Configurator (x-config)
Lenovo ThinkSystem Documentation
ThinkSystem Heavy Duty Full Depth Rack Cabinets | ThinkSystem Heavy Duty Rack Cabinets | Lenovo Docs
Lenovo Official US Site | Laptops, PCs, Tablets & Data Center | Lenovo US
Lenovo Scalable Infrastructure | Lenovo US
Lenovo Financial Services | Lenovo US
Copyright and Trademark Information | Lenovo US | Lenovo US
















