VOGUE 234122 Vera Accessibility Toilet Suite with Non Slim Seat
Dear Plumber,
Please ensure that these installation instructions are left with the end user for future reference. It is recommended that the toilet seat and cover be installed after all trade-work is finished.
Note: All measurements for rough-in should be taken from finished wall/floor. Please check all measurements against the actual toilet before commencing as variances do occur.
FEATURES
Recommended use: Domestic, Hotel, Commercial
Material: Vitreous China
Colors available: White
Fixing: Toilet Pan screwed and silicone to floor. Cistern bolted directly to Pan. Standards: AS 1172-1 & AS 1172-2
Cistern Fixing: Bolt directly to pan using bolts provided.
The rim of Pan: Boxrim
Trap Configurations: P trap (Convert to S trap using approved plastic bend.)
Set Out: Strap 80mm to 220mm depending on the type of plastic bend required.
P trap 180mm fixed (height from floor to center of outlet on pan, allow for 8mm fall to point in wall.) Seat: matching top fix seat provided. (Top fix makes it away to replace the seat when the toilet is installed) Water Inlet: R&T back inlet.
Water Rating: Complies with Australian standards at 4.5L full flush and 3L half flush.
Outlet Valve: Quality outlet valve for reliability and quiet operation. (Easy quick release washer change feature saves time and money.)
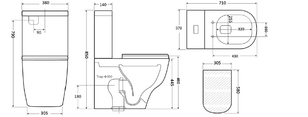
Dimensions
INSTALLATION

- Rough-in position for the waste outlet and floor fixing bracket holes. Ensure that the water inlet connection is not obstructed by the toilet.
- Assemble the cistern to the pan. Place the foam coupling seal into the pan recess (do not use sealant.) Connect the flexible hose to the inlet valve at the base of cistern (if bottom inlet) or back of cistern (if back inlet). Position the fixing bolts into base of the cistern ensuring that the black washers are on the inside of the cistern. Lift the cistern over the pan. Line up the fixing bolts with the holes in the pan. Using the nuts and washers provided, tiQhten down the cistern evenly to the pan.
- Feed flexible hose through either the right or left hand hole in pan. (if bottom inlet)
Feed flexible hose through back hole in cistern (if back inlet) (Depending on your water inlet connection position.) - Lubricate the rubber fins of the pan bend and position this in the waste pipe at the correct height. Fix the pan connector back to the wall using the screw fitting and collar. (The screw fittings need to be cut down to size so that pan connector is fixed in the vertical position.)
STRAP INSTALLATION
- Remove the plastic cover and rubber from the front of the pan connector. Cut the front of pan connector down to the required length. Take care to ensure the cut is even and straight. Lubricate the rubber then replace it and then the plastic cap onto the pan connector.
- Make sure the inlet hose is pulled through the hole inside of the pan. Align and push the fully assembled pan and cistern back to the wall, connecting the pan spigot into the pan connector. Bucket flush and check for leaks.

PTRAP INSTALLATION
- Set up the waste pipe so that the end of the pan collar extends 240mm from finished wall.
- Make sure that the inlet hose is pushed through hole inside of the pan. Align and push the fully assembled pan and cistern back to the wall, connecting the pan spigot to the pan collar. Bucket fiush and check for leaks.

- Connect the flexible water inlet hose to stop tap in the wall. Fill cistern and ensure correct water level. (See line inside of cistern for water level.) Water level can be adjusted by using the screw fitting at the top of the float on the inlet valve.
- Ensure that the pan is level and that the cistern aligns/ with the wall. Make minor adjustments if necessary.
(Note: walls may be out of square with floors which may create a gap behind the cistern. This can be covered up by using a suitable flexible gap filler.) - Fix the pan to the floor using the screws and caps provided.
- Silicone the pan to the floor and remove excess sealant.
Cleaning recommendations:
The high quality vitreous china finish can be maintained by simply using mild soapy water and wiping over. Sanitary ware should not be cleaned with abrasive materials e.g. steel wool/scourers. Do not use any corrosive or abrasive cleaning agents containing acids or scouring agents as this may lead to surface damage. Bleaches can also discolour seats and hinges and therefore should not be used. Do not use any toilet cleaners in the cistern, as the chemical compound may affect the internal mechanisms. After cleaning, rinse with clean water and polish with a clean soft cloth.





















