little tikes 637995X2C Jr. Jump‘n Slide Bouncer Instruction Manual
ATTENTION: Please DO NOT return to the store.
If you encounter problems, or have questions, please call our qualified customer service technicians at 1-800-321-0183
Contents

- A 1 Jr. Jump ‘n Slide™ Bouncer
- B 1 carrying bag
- C 1 blower with GFCI plug
- D 4 blower stakes
- E 8 bouncer stakes
- F 4 repair patches
Safety Warnings: ELECTRICAL BLOWER
DANGER
CAUTION: ELECTRICALLY OPERATED PRODUCT
DANGER – TO PREVENT ELECTRIC SHOCK, DO NOT IMMERSE IN WATER. WIPE CLEAN WITH A DAMP CLOTH.
WARNING: FAILURE TO FOLLOW THESE INSTRUCTIONS COULD RESULT IN SERIOUS INJURY OR DEATH. ADULT SET-UP AND SUPERVISION REQUIRED.
CAUTION: The blower is a high volume blower, and is capable of moving lots of air very quickly.
Place the blower in an area where it will not suck in dirt or leaves. Keep away from water and traffic.
Keep children away from the blower. Only the blower supplied should be used for inflation.
INSTRUCTIONS FOR BLOWER INSTALLATION
NOTE: Set up as close to power source as possible. The product should be periodically examined for potentially unsafe conditions such as: damaged cord, plug, housing or parts, and that in the event such damage is found, the product should not be used until properly repaired. Never leave the blower outside in the rain or exposed to the elements when not in use. When in use, do not place the cord across traffic areas, water or damp areas. The blower should be placed on a stable surface and anchored per product instructions. The power cord of the blower is equipped with a Ground Faulty Circuit Interrupter (GFCI) plug.
- Make sure that the blower switch is in the “OFF” position. Plug the blower into a 110-120V GFCI outlet.
- If the GFCI has been tripped, press the “RESET” button to restore power to the blower.
- Set the power switch of the blower to “ON” to inflate. After use, turn the power to “OFF”.
- To disconnect, have an adult grip it tightly and pull the plug from the wall outlet.
WARNING
FOLLOW ANCHORING INSTRUCTIONS
User must read and follow anchoring instructions to ensure the proper: number of anchors used, soil conditions, and stake installation.
WARNING: Failure to follow these instructions could result in serious injury or death.
- Cautionary statements which should be read before beginning assembly.
- ADULT SET-UP AND SUPERVISION REQUIRED.
- Use only with Ground Fault Circuit Interrupt (GFCI) receptacle.
- This blower is for residential use only. It is not intended to be used in commercial or industrial settings.
- Never insert fingers, pencils or any other object through the grill at ANY time.
- Do not operate blower with a damaged cord or plug, after the appliance malfunctions or has been dropped or damaged in any manner.
- Do not operate in the presence of explosive and/or flammable fumes.
- Never connect the blower to any solid – state speed control device.
- To reduce the risk of fire or electric shock, do not use this blower with any solid-state speed control device.
- Always unplug the blower before servicing.
- Outdoor use only.
WARNING
Electrocution Hazard- DO NOT USE
EXTENSION CORDS WITH THIS PRODUCT.
INSTRUCTIONS FOR BLOWER CLEANING AND STORAGE
Do not immerse the blower in water. Unplug the blower before cleaning. To clean: wipe with a damp cloth. The blower does not require any lubrication and has no user serviceable parts. Do not attempt to service the blower. When not in use, store the blower indoors in a dry place. Store the blower upright on a stable surface. Loosely coil the cord and place it beside the blower.
USE ONLY ON GFCI PROTECTED RECEPTACLES
CAUTION
GROUNDING INSTRUCTIONS FOR ALL GROUNDED, CORD-CONNECTED PRODUCTS
This product should be grounded. In the event of an electrical short circuit, grounding reduces the risk of electric shock by providing an escape wire for the electric circuit. This product is equipped with a cord having a grounding wire with an appropriate grounding plug. This plug must be plugged into an outlet that is properly installed and grounded in accordance with all local codes and ordinances. DANGER – Improper installation of the grounding plug can result in a risk of electric shock. If repair or replacement of the cord or plug is necessary, do not connect the grounding wire to either flat blade terminal. The wire with insulation having an outer surface that is green, with or without yellow stripes, is the grounding wire. Check with a qualified electrician or serviceman if the grounding instructions are not completely understood, or if in doubt as to whether the product is properly grounded. Do not modify the plug provided; if it will not at the outlet, have the proper outlet installed by a qualified electrician. For a grounded, cord-connected product, rated less than 15 amperes and intended for use on a nominal 110-120-volt supply circuit, these instructions should be followed. This product is for use on a nominal 110-120-volt supply circuit, and has a grounding plug that looks like the plug illustrated in sketch A. Temporary adapters should not be used. Do not use product until a properly grounded outlet (sketch A) can be installed by a qualified electrician.
This blower is not a toy. Use under the direct supervision of a competent adult. Keep away from children.
READ AND SAVE THESE INSTRUCTIONS.
Safety Warnings: SET UP
ADULT SUPERVISION AND SET UP REQUIRED. This product should be inflated or deflated only by a competent adult. Follow all instructions provided.
WARNING! Falls onto hard surfaces can result in head or other serious injuries. Never place on concrete, asphalt, wood, packed earth, grass or other hard surfaces. Carpet over floors may not prevent injury.
- WARNING! Only for domestic use. Intended for outdoor domestic family use only. Not for use in public areas or as a rental.
- Product is heavy. Use caution when lifting.
- Product should never be dragged across concrete, pavement or other rough surfaces.
- WARNING! Keep away from fire. Keep fabric clear of all ame and ignition sources.
- Do not set up in windy or rainy conditions: sudden gust of wind may lift the product off of the ground.
- Product can be installed in any orientation in relation to the sun, since there are no metal components or surfaces that can absorb excessive solar radiation.
• Set-up in outdoor location only that meets the following criteria:- Place on level ground and firm grass or soil to allow proper use of stakes.
- Placing on slanted or uneven surfaces may cause the product to tip.
- Stakes should be placed straight down for better anchorage, should be driven under the ground to prevent tripping.
- Minimum clearance zones 6.6 ft. (2 m) in any direction: Place at least other objects. Objects to be avoided include but are not limited to fences, buildings, trees. overhead branches, laundry lines, electrical wires, walls, or bodies or sources of water.
- Make sure the area around the product is secure by adding safety barriers, if necessary, to keep young children and pets from gaining access.
- Electrical cord must not be passed under the air filled devices (inflatable bouncer) and interfere with its operation.
- The bouncer uses a main powered blower (air pump) to maintain pressure, only to be used by an adult.
- Only the blower supplied should be used for inflation.
- Do not use extension cords with this product. Set up as close to power sources as possible. The blower should be securely anchored to the ground before use.
- CAUTION: the blower is capable of moving large volumes of air very quickly. Place the blower in an area where it will not draw in dirt or leaves. Keep blower and power cord away from children, water and traffic.
- ATTENTION: Blower should remain on and continuously inflate bouncer during use. Airflow through seams is normal. Do not try to seal or repair seams.
- Keep power cord away from water.
- Do not use the product if wind speed exceeds 20 mph or in windy conditions as illustrated in Fig. 1:

Safety Warnings: FAILURE TO FOLLOW THESE INSTRUCTIONS COULD RESULT IN SERIOUS INJURY OR DEATH.

- Constant, competent adult supervision of children and other young users is required at all times in front of the device where all parts of play areas can be seen.
- Keep the area around the product clean, and clear of objects, to prevent slips and falls.
- Do not allow children to play in the product until it is fully inflated.
- This is not an aquatic toy. It is not to be used in water.
- Instruct children on proper use of this product:
- Children should not wear loose or baggy clothing, scarves, hoods or clothing with drawstrings or long cords while playing in this product.
- Children must remove helmets, loose clothing, scarves, headgear, shoes and glasses, as well as any sharp or hard objects from their pockets, as they may puncture the bounding surface.
- Toys and other objects should never be allowed inside the bouncer.
- Instruct children not to attach items to the product that are not specifically designed for use with the equipment, such as but not limited to, jump ropes, clothesline, pet leashes, cables and chains as they may cause a strangulation hazard.
- Keep pets away from product.
- Children should bounce away from others and stay away from openings and side walls.
- Children should not jump onto or off the product.
- Do not allow users to climb or hang on containment walls.
- Do not allow users to do somersaults or rough play.
- Do not allow food, drink or gum inside unit.
- Total weight of children must not exceed 160 lbs. (72.5 kg) No more than 2 children should play on the Jr. Jump ‘n Slide™ Bouncer at the same time.
- Do not allow children to play together who are unevenly matched in weight and height.
- Children must not slide down head first on their stomach.
- Before and during use, check for air loss. Check blower is properly connected.
- If applicable, remove water and debris from pocket steps after each play cycle.
- After inflation, the blower should run continuously while children are playing.
- Prior to deflating, remove all children.
- To be used on soft ground only, the impact absorbing material (eg. Rubber mulch, engineered wood fiber (EWF) etc) shall be at least 2 m (6.6 ft) from opening in all directions away from the inflatable device.
- The Critical fall height of inflatable device is 24 inches (61 cm).
- Users must be discouraged from attempting any unauthorized modification.
- Always check the product and all its anchorage points before and during use, and to re-secure as appropriate.
- Stakes are to be driven straight down until the top of the stake is below ground level. Do not drive stakes at an angle (See Fig. 2) For best holding strength, drive stakes into hard, dry soil. In loose or wet soil, or both, stake holding strength will be reduced.

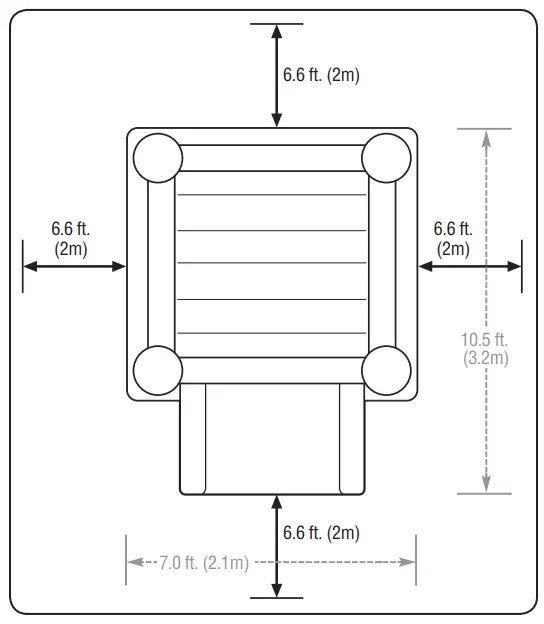
Minimum Clearance Zones

MINIMUM CLEARANCE ZONES
Make sure that there is a 6.6-feet (2m) obstacle-free zone around the product, including the slide and overhead.
INFLATABLE SIZE:
7.0W x 10.5D x 5H feet (2.1 x 3.2 x 1.5 m)

Set-up




BLOWER CAUTIONS:
- Do not open or try to service the blower. If blower needs servicing, take it to a reputable dealer.
- Clearly mark the path of the power cord to avoid tripping and/or damage by yard equipment such as lawn mowers, etc.
- Do not leave blower unattended.
- Do not allow blower to be used or played with by children.
- Do not cover the air intakes when blower is being used and do not insert small objects into any part of the blower.
- WARNING – Electrical Hazard – DO NOT USE EXTENSION CORDS WITH THIS PRODUCT.
- Disconnect the blower from the power source when moving the slide.
- WARNING – To reduce the risk of fire or electric shock, do not use this blower with any solid – state speed control device.
- The blower should be securely staked to the ground before use.
Attach fabric tube to blower unit making sure the tube is not twisted (6).
Wrap drawstring around the tube and end of blower once, and tie tightly in place (7).
Test the blower AC Adapter:
- Plug GFCI into receptacle.
- Press reset button.
- Press test button.
- Press reset button to use product. Do not use if the button fails to disable fan.
WARNING:
If the blower remains ON when the “test” button is pushed, the unit is NOT working properly. DO NOT USE THE UNIT. Take the unit to a certified electrician immediately.

Inflation & Staking
Switch power ON. If blower does not operate when switched on, press the reset button on the GFCI adaptor.
Blower should remain on and continuously inflate bouncer during use. Airflow through seams is normal.
Do not try to seal or repair seams.
NOTE: Dispose of tissue paper packed inside bouncer after inflation.

Deflation & Storage






Repair Patch Instructions
WARNING: NOT A TOY. ADULT USE ONLY.
Repair Patch. Keep away from children.

WARNING: Repair patches must be applied by an adult only. KEEP OUT OF REACH OF CHILDREN.
REPAIR PATCH INSTRUCTION
- Deflate the item, clean the area and allow to dry thoroughly.
- Cut a portion of the patch to the size needed and round the corners. (See Fig. 1 & 2).
- Remove the adhesive backing from the patch material, position the patch over the damaged area and smooth out any bubbles.
- Allow to sit for 30 minutes before re-inflating
Instructions for Bouncer Maintenance
- As an outdoor product, the bouncer is subject to wear and deterioration. Inspect for signs of fabric failure; weak or torn surfaces must be repaired promptly.
- To keep the product clean: wipe the bouncer or blower using a dry cloth or a cloth dampened with a neutral, non-flammable, non-toxic cleaning and sanitizing solution or pure water.
- Product should never be stored wet. Allow to dry before rolling up.
- The product should be periodically examined for potentially unsafe conditions such as: damaged cord, plug, housing, or parts, and that in the event such damage is found, the product should not be used until properly repaired. Never leave the fan outside in the rain or elements when not in use. Minor repairs can be made using the enclosed repair patches.
- Blower must be unplugged before servicing.
- Product should be periodically examined for potentially unsafe conditions such as damaged cord, plug, housing, or parts, and that in the event such damage is found, the product should not be used until properly repaired. If these checks are not carried out, the product could overturn or otherwise become a hazard.
- The blower does not require any lubrication and has no user serviceable parts. Do not attempt to service the blower.
- Do not immerse the fan in water. To clean, wipe with a damp cloth.
- Regularly check the intake and output openings and keep free of dirt, leaves, etc.
- When not in use, store the blower indoors in a dry place.
- Store the blower upright on a stable surface.
- Loosely coil the cord and place it beside the blower.
- When in use, do not place the cord across traffic areas, water or damp areas.
- The blower is a high volume blower, and is capable of moving large volumes of air very quickly. Place the blower in an area where it will not draw in dirt or leaves.
- Do not operate any fan with a damaged cord or plug. Discard fan or return to an authorized service facility for examination and/or repair.
- Do not run cord under carpeting. Do not cover cord with throw rugs, runners, or similar coverings. Do not route cord under furniture or appliances. Arrange cord away from traffic area and where it will not be tripped over.
Disposal
- Disassemble and dispose of the equipment in such a manner that no hazardous conditions at the time equipment is discarded.
- Blower should be returned to a collection center capable of processing electrical/electronic waste.
Limited Warranty
The Little Tikes Company makes fun, high quality toys. We warrant to the original purchaser that this product is free of defects in materials or workmanship for one year * from the date of purchase (dated sales receipt is required for proof of purchase). At the sole election of The Little Tikes Company, the only remedies available under this warranty will be either replacement of the defective part or replacement of the product. This warranty is valid only if the product has been assembled and maintained per the instructions. This warranty does not cover abuse, accident, cosmetic issues such as fading or scratches from normal wear, or any other cause not arising from defects in material and workmanship.
Wet and Dry Inflatable Bouncers Warranty: We warrant to the original purchaser that the fabric in this product is free of defects in materials or workmanship for 90 days from the date of purchase, and the blower is free of defects in material or workmanship for one year from the date of purchase (dated sales receipt is required for proof of purchase).
U.S.A and Canada: For warranty service or replacement part information, please visit our website at www.littletikes.com, call 1-800-321-0183 or write to: Consumer Service, The Little Tikes Company, 2180 Barlow Road, Hudson OH 44236, U.S.A.
Some replacement parts may be available for purchase after warranty expires contact us for details.
Outside U.S.A and Canada: Contact place of purchase for warranty service.
This warranty gives you specific legal rights, and you may also have other rights, which vary from state to state. Some states do not allow the exclusion or limitation of incidental or consequential damages, so the above limitation or exclusion may not apply to you. *The warranty period is three months for daycare or commercial purchasers.
‘Let’s care for the environment!’
The wheelie bin symbol indicates that the product must not be disposed of with other household waste. Please use designated collection points or recycling facilities when disposing of the item.
Please keep this manual as it contains important information.
© The Little Tikes Company, an MGA Entertainment company.
LITTLE TIKES® is a trademark of Little Tikes in the U.S. and other countries. All logos, names, characters, likenesses, images slogans, and packaging appearance are the property of Little Tikes.
Little Tikes Consumer Services
2180 Barlow Road
Hudson, Ohio 44236 USA
(800) 321-0183
Printed in China
www.littletikes.com
www.littletikes.co.uk





















