
MDT Dali Control 64 Gateway
Instructions
SCN-DA641.04 Dali Control 64 Gateway
MDT DALI Control 64 Gateway, MDRC
| Version | ||
| SCN-DA641.04 | DALI Control 64 Gateway | 4SU MDRC, 64 ECGs/16 DALI groups |
| SCN-DA642.04 | DALI Control 2 x 64 Gateway | 4SU MDRC, 2 x 64ECGs/16 DALI groups (2 DALI outputs) |
The MDT DALI Control Gateway is the interface between DALI lights and the KNX installation and offers many new possibilities, such as the light control in the HSV colour space.
The MDT DALI Control Gateway allows the inividual control of up to 64 ECGs/16 DALI groups. (SCN-DAL642.04 > 2 x 64 EVGs/16 DALI groups, 2 DALI outputs).
For each group the functions switching, dimming and brightness value are available. The DALI Control Gateway supports various colour control modes (according to DALI DT8 standard) such as HSV colour space, RGB / RGBW, XY colour and the colour control mode Tunable White. With the integrated colour control module 16 individual time-dependent lighting moods with up to to 300 control commands can be created. The scene control allows to assign all 16 groups (SCN-DALI32.03 > 32 groups) to the 16 possible scenes as desired with individual dimming times.
The MDT DALI Control Gateway provides the operating modes normal operation, continuous operation, night operation, staircase operation and panic operation. The individual light groups can be switched between 1-8 and 9-16 using the buttons for manual operation. Faulty ECGs can be detected individually or at group level. In the event of a fault, a simple quick exchange of the affected ECG is possible.
The free DCA app is used for the commissioning of the DALI bus system, the configuration of the scenes and the time-dependent lighting moods.
The MDT DALI Control Gateway is a modular installation device for fixed installation in dry rooms. It fits on 35mm rails in power distribution boards or closed compact boxes.
For project design and commissioning of the MDT DALI Control Gateway it is recommended to use the ETS.
Please download the application software at www.mdt.de/Downloads.html

- Production in Germany certified according to ISO 9001
- Individual control of up to 64 ECGs/16 DALI groups (SCN-DAL642.04 > 2 x 64 EVGs/16 DALI groups, 2 DALI outputs)
- Supports DALI and DALI-2 standard, as well as DALI DT6/DT8 ECG
- Innovative HSV colour control, RGB, RGBW and XY colour according to DALI DT8 standard
- Tunable White, colour temperature control
- Integrated colour control module for time dependent controlling of the luminous colour in up to 300 steps
- Operation modes like normal operation, continuous operation, night operation, stairwell and panic operation, Manual operation
- 16 scenes with individual dimming times
- Energy saving function for switching off the ECGs in the DALI groups (via additional KNX switch actuator)
- Fault detection of lamp faults and faulty ECGs
- Quick exchange of ECG
- Free DCA app for commissioning the DALI bus system and configuration of the scenes and time control
- Commissioning with ETS5. 3 years warranty
| Technical Data | SCN-DA641.04 | SCN-DA642.04 |
| Outputs | ||
| Number of groups | 16 | 2 x 16 |
| Number of ECG | 64 | 2 x 64 |
| Maximum Dali voltage (typical) | 16VDC | 16VDC |
| Maximum Dali current | 250mA | 250mA |
| Specification KNX Interface | TP-256 with Long Frame support for ETS5 | TP-256 with Long Frame support for ETS5 |
| Available application software | ETS5 | ETS5 |
| Permitted wire gauge | ||
| Screw terminal (max. 0,5Nm tightening torque) | 0,5 – 4,0mm2 solid core 0,5 – 2,5mm2 finely stranded | 0,5 – 4,0mm2 solid core 0,5 – 2,5mm2 finely stranded |
| KNX busconnection terminal | 0,8mm 0, solid core | 0,8mm 0, solid core |
| Power Supply | 230VAC/50Hz | 230VAC/50Hz |
| Power consumption mains 230VAC typ. | < 5W | < 5W |
| Operation temperature range | 0 bis + 45°C | 0 bis + 45°C |
| Enclosure | IP 20 | IP 20 |
| Dimensions MDRC (Space Units) | 4SU | 4SU |
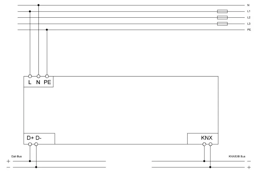
Exemplary circuit diagram SCN-DA641.04

Exemplary circuit diagram SCN-DA642.04

MDT technologies GmbH
51766 Engelskirchen
Papiermühle 1
Tel.: + 49 – 2263 – 880
Fax: + 49 – 2263 – 4588
[email protected]
www.mdt.de
Stand: 0921



















