DEMA 681AG.1 Single Station Blend Center Instruction Manual
PARTS CHECKLIST
- Blend Center Assembly
- Vinyl Tubing and Foot Valve Assembly
- Vinyl tubing and Foot Valve
- Ceramic Weight
- Vinyl Outlet Tubing
- #8 Screw/Anchor Kit Set
- Label Card
- Metering Tip Ki
This product is designed only to be used as described in this instruction sheet. Adhere to all warnings and cautions identified in this document
WARNING: Installations must conform to all local and national plumbing codes and use approved backflow prevention and pressure relief devices where required.
ALWAYS DISCONNECT DISPENSER FROM WATER SOURCE WHEN DISPENSER IS NOT IN USE.
Always read SDS for all chemicals used and follow personal protective guidelines.
INSTALLATION
Note: Pressure indicating tee is to be installed with existing faucets according to local plumbing codes in the state of Wisconsin and any other state that requires the use of a pressure indicating tee.
Mounting and water supply:
Remove Blend Center lid and hold unit in position to locate the mounting screw positions. Install the mounting screws, leaving approximately 1/8″ extension between the wall and screw head. Mount the Blend Center by inserting the screw heads through the keyhole slots in the base and tighten the screws (See Figure 1). The water inlet is equipped with a female garden hose fitting (with strainer washer) for attaching a water supply hose. The fitting may be removed to permit direct connection to a 3/8″ NPT pipe. The unit is designed so water can be supplied to either side by interchanging the pipe plug and the female hose fitting. Note: Apply pipe dope, hand tighten, and then turn 12 times with a wrench. DO NOT OVER TIGHTEN.
Pressure Indicating Tee Installation:
Screw female quick disconnect to faucet and attach pressure indicating tee to female quick disconnect. Attach female end of reinforced hose to male threads of tee, then attach the male end to the female garden hose fitting at the water inlet of the Blend Center (See Figure 3). Water supply should not exceed 125 psi and water temperature must not exceed 160°F.
Chemical supply:
Place the chemical containers in a convenient location not more than 6 feet below the blend center (greater lifts will reduce injection capacities). Insert the vinyl supply tubing with the foot valve ends into the chemical containers. Cut the vinyl tubes to any convenient length that will allow them to extend from the bottom of the chemical container to the proportioner inlet barbs. (See figure 1). Gummed labels are provided for product labeling.
Outlet:
Cut the 9/16″ I.D. outlet tubing to the desired lengths and attach them to the proportioner outlets. Longer lengths may be used up to 10 feet. The 7″ long tubing must be left on the 1 GPM proportioner to insure priming.
Chemical injection adjustment:
WARNING: USE CARE WHEN HANDLING HAZARDOUS CHEMICALS. Chemical feed rates are controlled by metering tips screwed into the proportioner barbs. Select a tip for each barb using Table 1 or 2 as a guide.
1 cps (centipoise) is equal to the viscosity of water
75 cps is approximately equal to the viscosity of 10 weight motor oil
200 cps is approximately equal to the viscosity of most dishwashing detergents
OPERATION
The Blend Center is now ready for use. Depressing a push button opens the valve, allowing water to flow through the chemical proportioner that mixes chemical at the desired rate. The buttons are spring loaded to prevent accidental overflow if unattended but may be converted to locking buttons by cutting off the tab at the notch. (See Figure 2) Pushing the button and tubing it 1/4 turn clockwise at the end of its travel allows the valve to lock on. This makes it unnecessary for the attendant to hold the button in while filling large containers. Turning the button in a counterclockwise direction will release it, allowing the valve to shut off.
SERVICING
CAUTION: TURN OFF WATER SUPPLY BEFORE SERVICING.
Proportioner fails to draw chemical:
- Pinch outlet tube to create back pressure which will cause unit to prime. The foot valve will keep the inlet tube primed.
- Insufficient water supply pressure. 20 PSI is the minimum allowable.
Proportioner stops drawing chemical:
- Inspect foot valve for dried chemical or dirt. Soak in hot water to clean.
- Proportioner metering tip clogged with dried chemical. Remove tip and try injecting hot water to clear interior passages.
Proportioner continues to draw chemical
after water valve closes: Chemical supply is higher than bottom of discharge tube creating a natural siphon. Lower the chemical supply or hang up outlet tubing after use.
Valve malfunction:
Check that the button moves freely up & down and that a “click” can be heard when the button is pushed and released, indicating that the magnet is activating the plunger properly. Remove cover. To inspect internal parts, unscrew magnet housing and carefully pull off the enclosing tube so as not to drop the plunger, kick-off spring, and spacer. Check for dirt of damage impending plunger and kick-off spring movement. Inspect the diaphragm, making sure the two small pin holes (bleed holes) in the diaphragm convolution are clear to allow the valve to close.
CAUTION: When servicing unit, be sure that replacement parts have been installed according to drawing.
TABLE 1 – 164 BAG (1 GPM FLOW RATE PROPORTIONER – 1/4″ BARB AND TUBING)
| Metering Tip Color | Injection Rates for Viscosities Shown | |||||
| 1 cps | 75 cps | 200 cps | ||||
| Oz/Gal | Ratio | Oz/Gal | Ratio | Oz/Gal | Ratio | |
| Tan | 1.25 | 102-1 | 0.90 | 142-1 | 0.60 | 213-1 |
| Orange | 1.70 | 75-1 | 1.20 | 107-1 | 0.80 | 160-1 |
| Turquoise | 2.15 | 60-1 | 1.55 | 83-1 | 1.10 | 116-1 |
| Pink | 3.00 | 43-1 | 2.00 | 64-1 | 1.50 | 85-1 |
| Light Blue* | 3.90 | 33-1 | 2.75 | 47-1 | 1.80 | 71-1 |
| Brown | 4.55 | 28-1 | 3.00 | 43-1 | 2.00 | 64-1 |
| Red | 5.80 | 22-1 | 3.60 | 36-1 | 2.30 | 56-1 |
| White | 7.00 | 18-1 | 4.45 | 29-1 | 2.70 | 47-1 |
| Green | 7.90 | 16-1 | 5.00 | 26-1 | 3.00 | 43-1 |
| Blue | 9.80 | 13-1 | 5.75 | 22-1 | 3.30 | 39-1 |
| Yellow | 14.80 | 9-1 | 7.35 | 17-1 | 3.55 | 36-1 |
| Black | 20.15 | 6-1 | 8.50 | 15-1 | 3.70 | 35-1 |
| Purple | 27.80 | 5-1 | 9.80 | 13-1 | 3.80 | 34-1 |
| Gray | 31.60 | 4-1 | 10.50 | 12-1 | 3.90 | 33-1 |
| No Tip | 35.70 | 3.6-1 | 11.80 | 11-1 | 4.50 | 28-1 |
TABLE 2 – 164 AG (1 GPM FLOW RATE PROPORTIONER- 3/8″ BARB AND TUBING)
| Metering Tip Color | Injection Rates for Viscosities Shown | |||||
| 1 cps | 75 cps | 200 cps | ||||
| Oz/Gal | Ratio | Oz/Gal | Ratio | Oz/Gal | Ratio | |
| Clear | 1.40 | 91-1 | 1.00 | 128-1 | 0.85 | 151-1 |
| Purple | 2.15 | 60-1 | 1.75 | 73-1 | 1.40 | 91-1 |
| Yellow | 4.00 | 32-1 | 3.25 | 39-1 | 2.80 | 46-1 |
| Green | 6.70 | 19-1 | 5.40 | 24-1 | 4.50 | 28-1 |
| Pink | 8.70 | 15-1 | 7.00 | 18-1 | 5.60 | 23-1 |
| Turquoise | 14.15 | 9-1 | 11.15 | 11-1 | 8.15 | 16-1 |
| Black | 17.25 | 7-1 | 13.50 | 9-1 | 10.00 | 13-1 |
| Gray | 22.60 | 6-1 | 16.75 | 8-1 | 11.60 | 11-1 |
| Red | 25.15 | 5-1 | 19.50 | 7-1 | 13.50 | 10-1 |
| Blue | 27.50 | 4.7-1 | 21.65 | 6-1 | 14.25 | 9-1 |
| Brown | 31.00 | 4-1 | 24.25 | 5-1 | 15.60 | 8-1 |
| White | 33.50 | 3.8-1 | 26.25 | 4.9-1 | 16.70 | 7.7-1 |
| Orange | 35.40 | 3.6-1 | 28.00 | 4.6-1 | 17.40 | 7.4-1 |
| Lt. Blue* | 36.50 | 3.5-1 | 29.00 | 4.4-1 | 18.20 | 7-1 |
| Tan* | 37.80 | 3.4-1 | 29.90 | 4.3-1 | 18.65 | 6.9-1 |
| No Tip | 38.30 | 3.3-1 | 30.90 | 4.1-1 | 21.30 | 6-1 |
These tips are not included in standard tip kit. Leaner dilutions can be achieved by ordering DEMA ultra lean metering tip kit 100-15KU.
TABLE 3 – 163 BAG (4 GPM FLOW RATE PROPORTIONER – 1/4″ BARB AND TUBING) *Metering tip color was formerly clear.
| Metering Tip Color | Injection Rates for Viscosities Shown | |||||
| 1 cps | 75 cps | 200 cps | ||||
| Oz/Gal | Ratio | Oz/Gal | Ratio | Oz/Gal | Ratio | |
| Tan | 0.30 | 427-1 | 0.20 | 640-1 | 0.15 | 853-1 |
| Orange | 0.40 | 320-1 | 0.30 | 427-1 | 0.25 | 512-1 |
| Turquoise | 0.60 | 213-1 | 0.40 | 320-1 | 0.30 | 427-1 |
| Pink | 0.80 | 160-1 | 0.50 | 256-1 | 0.40 | 320-1 |
| Light Blue* | 1.00 | 128-1 | 0.70 | 183-1 | 0.45 | 284-1 |
| Brown | 1.20 | 107-1 | 0.80 | 160-1 | 0.50 | 256-1 |
| Red | 1.50 | 85-1 | 0.90 | 142-1 | 0.60 | 213-1 |
| White | 1.85 | 69-1 | 1.10 | 116-1 | 0.70 | 183-1 |
| Green | 2.00 | 64-1 | 1.25 | 102-1 | 0.80 | 160-1 |
| Blue | 2.50 | 51-1 | 1.50 | 85-1 | 0.82 | 156-1 |
| Yellow | 4.00 | 32-1 | 1.85 | 69-1 | 0.90 | 142-1 |
| Black | 5.50 | 23-1 | 2.00 | 64-1 | 0.94 | 136-1 |
| Purple | 8.80 | 15-1 | 2.40 | 53-1 | 0.96 | 133-1 |
| Gray | 11.65 | 11-1 | 2.50 | 51-1 | 1.00 | 128-1 |
| No Tip | 16.20 | 8-1 | 3.00 | 43-1 | 1.20 | 107-1 |
TABLE 4 – 163 AG (4 GPM FLOW RATE PROPORTIONER – 3/8″ BARB AND TUBING)
*These tips are not included in standard tip kit. Leaner dilutions can be achieved by ordering DEMA ultra lean metering tip kit 100-15KU.
| Metering Tip Color | Injection Rates for Viscosities Shown | |||||
| 1 cps | 75 cps | 200 cps | ||||
| Oz/Gal | Ratio | Oz/Gal | Ratio | Oz/Gal | Ratio | |
| Clear | 0.90 | 142-1 | 0.30 | 427-1 | 0.20 | 640-1 |
| Purple | 1.10 | 116-1 | 0.50 | 256-1 | 0.40 | 320-1 |
| Yellow | 1.80 | 71-1 | 1.00 | 128-1 | 0.70 | 183-1 |
| Green | 2.50 | 51-1 | 1.50 | 85-1 | 1.20 | 107-1 |
| Pink | 3.00 | 43-1 | 2.00 | 64-1 | 1.50 | 85-1 |
| Turquoise | 4.50 | 28-1 | 3.15 | 41-1 | 2.30 | 56-1 |
| Black | 4.80 | 27-1 | 3.75 | 34-1 | 2.80 | 46-1 |
| Gray | 6.70 | 19-1 | 4.80 | 27-1 | 3.35 | 38-1 |
| Red | 8.15 | 16-1 | 5.80 | 22-1 | 3.80 | 34-1 |
| Blue | 9.20 | 14-1 | 6.60 | 19-1 | 4.20 | 30-1 |
| Brown | 11.10 | 12-1 | 7.75 | 17-1 | 4.70 | 27-1 |
| White | 13.20 | 10-1 | 9.15 | 14-1 | 5.00 | 26-1 |
| Orange | 15.00 | 9-1 | 10.10 | 13-1 | 5.30 | 24-1 |
| Lt. Blue* | 16.70 | 8-1 | 11.10 | 12-1 | 5.50 | 23-1 |
| Tan* | 18.50 | 7-1 | 11.80 | 11-1 | 5.80 | 22-1 |
| No Tip | 19.40 | 6.6-1 | 13.00 | 10-1 | 6.20 | 21-1 |
RETURNS
NO MERCHANDISE MAY BE RETURNED FOR CREDIT WITHOUT DEMA’S WRITTEN PERMISSION. RETURN MERCHANDISE AUTHORIZATION NUMBER REQUIRED IN ADVANCE OF RETURN.
WARRANTY
DEMA products are warranted against defective material and workmanship under normal use and service for one year from the date of manufacture. This limited warranty does not apply to any products which have a normal life shorter than one year or failure and damage caused by chemicals, corrosion, improper voltage supply, physical abuse, or misapplication. Rubber and synthetic rubber parts such as “O”- rings, diaphragms, squeeze tubing and gaskets are considered expendable and are not covered under warranty. This warranty is extended only to the original buyer of DEMA products. If products are altered or repaired without prior approval of DEMA, this warranty will be void.
Defective units or parts should be returned to the factory with transportation prepaid. If inspection shows them to be defective, they will be repaired or replaced without charge, F.O.B. factory. DEMA assumes no liability for damages. Return merchandise authorization number, to return units for repair or replacement, must be granted in advance of return.
DEMA 681AG.1, 681AG.2, 681AG.3, 681AG.4, & 681AG.5 BLEND CENTER INSTALLATION INSTRUCTIONS


ALL INFORMATON CONTAINED IN THIS DOCUMENT IS RELEVENT TO DEMA’S 681BLEND CENTERS REGARDLESS OF QUANTITIES SHOWN FOR STATION SET UP
PRESSURE INDICATING TEE INSTALLATION

DEMA 681AG.1, 681AG.2, 681AG.3, 681AG.4, & 681AG.5 BLEND CENTER INSTALLATION INSTRUCTIONS

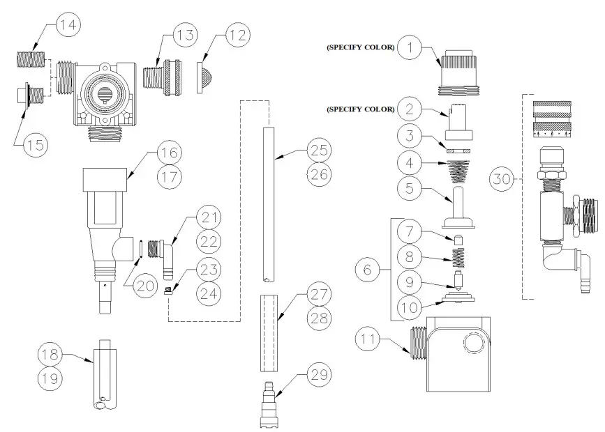
| NO. | PART NO. | DESCRIPTION |
| 1 | 66-139 | MAGNET HOUSING |
| 2 | 66-140 | PUSH BUTTON |
| 3 | 63-35 | MAGNET |
| 4 | 63-36 | SPRING |
| 5 | 41-7-25 | ENCLOSING TUBE |
| 6 | 63-87 | VALVE REPAIR KIT |
| 7 | 63-37 | SPACER |
| 8 | 41-1-8 | KICKOFF SPRING |
| 9 | 63-38 | PLUNGER |
| 10 | 41-15-10 | DIAPHRAGM, EP |
| 11 | 63-39 | VALVE BODY |
| 12 | 100-38 | STRAINER WASHER |
| 13 | 93-44 | PIPE TO GARDEN HOSE ADAPTOR |
| 14 | 66-31 | CLOSE NIPPLE |
| 15 | 66-153 | PIPE PLUG ASSY |
| 16 | 61-22GAP-2 | 4 GPM AIR GAP PROPORTIONER (WHITE) |
| 17 | 61-99GAP-2 | 1 GPM AIR GAP PROPORTIONER (GREEN) |
| 18 | 61-21 | ½” ID X 6’ LONG VINYL OUTLET TUBE (4 GPM) |
| 19 | 16-3-6 | 1/3” ID X 6’ LONG VINYL OUTLET TUBE (1 GPM) |
| 20 | 63-78 | O-RING EP |
| 21 | 63-79 | INLET BARB (1/4”) |
| 22 | 63-80 | INLET BARB (3/8”) |
| 23 | 100-15K | METERING TIP KIT (1/4” BARB) |
| 24 | 61-9K | METERING TIP KIT (3/8” BARB) |
| 25 | 100-12 | ¼” ID X 8’ LONG VINYL SUPPLY TUBING |
| 26 | 100-12L | 3/8” ID X 8’ LONG VINYL SUPPLY TUBING |
| 27 | 61-107-2 | CERAMIC WEIGHT FOR ¼” TUBING |
| 28 | 61-107 | CERAMIC WEIGHT FOR 3/8” TUBING |
| 29 | 100-16E-1 | FOOT VALVE |
| 30 | 68-6-QD2 | PRESSURE INDICATING TEE |


















