
Novy Flatline
7640 – 7642 – 7645
7650 – 7655
7660 – 7665
Instruction Manual
SAFETY AND ASSEMBLY REGULATIONS
Further information on Novy products, accessories and services may be found on the internet: www.novy.com
These are the installation instructions for the appliance as shown on the front. The directions for use are in a separate booklet supplied with the appliance.
These installation instructions make use of a number of symbols. The meanings of the symbols are shown below.
| Symbol | Meaning | Action |
| Indication | Explanation of an indication on the hood. | |
![]() | Warning | This symbol indicatesan important tip or a dangerous situation |
Observe this instruction in order to prevent injury anddamage to property.
Warnings before installation
− This appliance complies with the applicable safety instructions. However, inexpert installation may cause personal injury or damage to the appliance.
− The appliance is intended exclusively for household use (preparation of food) and excludes all other domestic, commercial or industrial use. Do not use the appliance outside.
− Check the condition of the appliance and the installation fittings as soon as you remove them from the packaging. Remove the appliance from the packaging with care. Do not use sharp knives to open the packaging.
− Do not install the appliance if it is damaged, and in that case inform Novy.
− Check on the basis of the drawing A that all the materials for installation have been supplied. The grease filters are in the appliance.
− Novy is not liable for damage resulting from incorrect assembly, incorrect connection, incorrect use or incorrect operation.
− The installation and electrical connection of the appliance should be left to a recognised expert.
− Safety is guaranteed only with expert installation in accordance with the installation manual. The installing technician is responsible for proper operation at the installation location.
− For easier installation of the appliance, it is advisable to carry it out with at least 2 people.
− Read the directions for use and the installation instructions before installing and using this appliance. You will find important information here for the assembly and use of the appliance.
− Metal parts may have sharp edges, and you may injure yourself on them. For that reason, wear protective gloves during installation.
Exhaust or recirculation
Before starting to install, you need to have decided whether you are making an extraction duct to the outside, or whether you are going to use the extractor hood as a recirculation extractor hood. If opting for recirculation, you will find the recirculation kit with the accessories in these installation instructions.
Install the exhaust duct
For optimum performance of the cooker hood it is important to pay attention to the following points:
− The motor outlet has a diameter of 150 mm. It is recommended to connect an exhaust duct with a diameter of 150 mm to this.
− You will achieve the best operation and lowest possible noise level for the appliance by connecting the extraction duct by as short a route as possible, with as few bends as possible and using the prescribed diameter.
− Use smooth, non-flammable pipes with an internal diameter that is equal to the external diameter of the connection nozzle of the hood. − Use flat duct with rounded corners and with air deflectors. Available at Novy.
− Do not reduce the exhaust diameter. This will lower the capacity and raise the noise level.
− Avoid right-angle bends. Use rounded bends for effective airflow.
− Use of a flexible extraction hose should be kept to a minimum, and it should only be used for making small bridging sections, for example as the link between the outlet nozzle and the extraction duct. Maximally extend flexible ducts and cut them to size
− Ensure that the extraction duct is not crushed and that there are no kinks in the duct.
− Use a hose clamp or aluminum tape for airtight con- nections.
− With a horizontal extraction duct, install it at a slight incline to ensure that condensation does not run back to the appliance.
− Condensation may arise as a result of temperature differences if the extraction duct passes through cool rooms. Ensure that the extraction duct is insulated.
− In case of an exhaust pipe through the outside wall passing a cavity wall, make sure that the exhaust ductfully bridges the cavity and slightly declines to the outside.
− In case of an exhaust pipe through the wall, use a wall vent.
− In case of an exhaust pipe through the roof, use a doublewalled roof passage with adequate outlet capacity.
− When connecting to a short extraction duct, it may be desirable to install a non-return valve in the duct in order to prevent backdraught from wind.
− Make sure that sufficient air is supplied. Fresh air can be supplied by slightly opening a window or an outside door or by installing an inlet grate.
− The appliance may not be connected to a flue or chimney that is currently in use, or that serves as ventilation for rooms with hearths.
Air supply
However large the kitchen or the room with open kitchen is, only so much air can be extracted from the room as is supplied. Too little air supply could result in a yield loss of 50% and more.
If the extraction is used at the same time as a combustion system (for example heaters fired by gas, oil, wood or coal, hot water boilers using gas, gas hobs and gas ovens), combustion gases may be sucked back in and lead to poisoning.
A combustion system uses air from the room as combustion air. Combustion gases arise as a result, which are removed to the outside by an extraction system.
The appliance sucks in air from the kitchen and adjacent rooms. Negative pressure occurs if the air supply is inadequate. The toxic gases are then sucked back from the chimney or extraction duct into the room.
With simultaneous use of the appliance and combustion appliances in the same room, the negative pressure may not exceed 4 Pa (=0.04 mBar). Negative pressure can be prevented by allowing sufficient air into the room through openings that cannot be closed (for example through windows or doors, in combination with a ventilation cabinet in the wall).
Have an expert assess the overall ventilation system in your home for a proposal on suitable measures in the area of air supply.
When using the appliance with an internal or external motor (unit) with air extraction to the outside, there must be adequate air supply in the room where the appliance has been installed / is positioned, so that fresh air can flow in. Fresh air can be provided by tilting a window, opening a door or installing an inlet grille. With an appliance with recirculation, there must be a minimum of ventilation in the room where the appliance has been installed / is positioned. Ventilation can be provided by the overall ventilation in the home or by tilting a window or opening a door.
Certain appliances are fitted with a connection for a window contact switch (see the technical specifications for your appliance). If the appliance is to operate at the same time as a heating appliance that needs air from the room, and if the required supply can only take place through a single open window, there is the option of connecting the appliance to a window contact switch (not included). This ensures that the appliance operates only when the window is open. If the window is closed, the fan cannot be switched on.
Contact your technician for the correct accessories for your appliance.
Installation instructions for the outlet
− The appliance may only be connected with the power plug to a socket with an earth (230 V – 50 Hz).
− Safety is only assured when the appliance is connected to an earth cable in accordance with the instructions laid down.
− The appliance must be able to be disconnected from the power at any desired point.
− Position the socket in such a way that the power plug of the appliance can be inserted easily.
− Do not use an extension cable for the connection to the electrical mains.
− Electric shock: never switch on a faulty appliance, this could cause an electric shock. Take the power plug out of the socket, or switch off at the distribution cabinet. Contact the Novy service department.
− Repairs and replacing faulty or damaged wiring must only be carried out by technicians who have undergone instruction by Novy.
− Moisture that has got into the appliance may cause an electric shock. Do not use a high pressure or steam cleaner.
Mount the remote motor unit
For the models 7645, 7655 and 7665 the remote motor unit of the chimney hood is mounted. A choice can be made between an internal motor, an external wall motor or a roof motor. With an external wall motor the minimum distance between the hood and the external motor must be 5 meters. The hood is connected to an earthed wall socket. The hood and the motor unit are electrically connected by means of a 6-pole plug connection. Additional information can be found in the mounting instructions of the motor involved.
ACCESSORIES
Recirculation
If you choose for recirculation, Novy offers the recirculation kit, type 7640400. This kit includes a recirculation box that is mounted behind the upper shaft and a Monoblock recirculation filter.
Extension cable
When mounting the motor unit remotely, it may be desirable to mount a longer cable between the cookerhood and the motor. The extension cable is connected to the existing cable. The extension cable has a length of 5m.
Accessories circular exhaust tube
− Cir cular exhaust tube length 1000 mm Ø150 mm 906.415
− Connection piece Ø150 mm 906.417
− Curve 90° Ø150 mm 906.416
− Aluminium external grill for Ø150 mm 906.178
− Wall conduct kit for ducting Ø150 mm including built-in heat retention non-return valve 906.420
− Non-return valve Ø150 mm 906.432
General accessories
− Hose clamp adjustment Ø60-215 mm 906.291
− Aluminium tape roll 50 m 906.292
− Stainless steel cleaner: maintenance product for cleaning the stainless steel 906.060
InTouch
InTouch offers you the possibility to control the Novy cooker hood from the Novy InTouch induction cooking plate. The ceiling hood may, as a default, be combined with InTouch induction cooking plates.
Visit the website for the different models of induction cooking plates with InTouch.
Window switch
This hood is equipped with a connection for a con tact window switch. If the hood is to work simultane ously with a heating appliance that pulls air from the room, and if the required supply of fresh air can only be through an open window, it is possible to connect a window contact switch (not supplied) to the hood.
This ensures the hood only works if the window is open. When the window is closed, the fan can not be turned on. A window contact cable set is available as an accessory (part number 990.033). Using the cable set, it is possible to make a connection between the hood controller to the outside of the hood. A window contact switch can then be connected (not included).Further information on Novy products, accessories and
services may be found on the internet: www.novy.com


- First measure the distance between the work surface and the ceiling (A). Choose the height between the bottom of the chimney hood and the worktop (B) as follows:
• The recommended mounting height for an electrical or ceramic hob is min. 600 mm and max. 850 mm.
• The mounting height for a gas or induction hob is min. 650 mm and max. 850 mm.
Now the distance C has been determined and it is set with the help of the suspension frame of the island chimney hood. - The distance C is set by sliding the suspension frame of the island chimney hood. As soon asthe chosen height has been set, the frame can be fastened using 4 bolts (906133). Firmly tighten the bolts.



- Only when mounting an extension chimney (accessory):
Demount the suspensionframe of the cookerhood y loosening the 4 bolts that keep the frame fixed to the cookerhood. Mount the larger suspensionframe by sliding it into the cookerhood. Set the distance C as shown on the image and fix the frame to the cookerhood by turning the bolts.
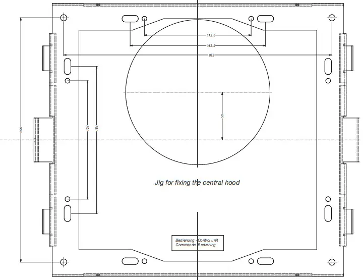
Place the cookerhood carefully on its side, open the bottom panel and take the grease filter out of the hood like shown on the image. Turn the 6 outer screws loose and shove the 2 chimney pieces off the hood. Place the 2 new chimney pieces onto the cookerhood and fasten the 6 screws again. The drilling jig is supplied with these mounting instructions. Position the drilling jig against the ceiling into the correct direction (see the indication for operation) at the place where the island chimney hood is to be mounted. Mark the fastening holes on the ceiling. Drill the holes with a 8 mm bit. Insert the 4 plugs (906155) supplied. Take the ceiling frame and the screws (906143) and fasten the ceiling frame onto the ceiling.
Pick up the chimney hood with at least 2 persons and lift it towards the ceiling frame. Press the suspension frame into the ceiling frame until you hear a ‘click’. Partly screw the 4 bolts (906133) into both frames. Level the island chimney hood and then firmly tighten the 4 bolts.


Place the exhaust pipe on a connection nozzle of the motor using aluminium tape or a hose clamp. If you use a fixed pipe, first place the supplied draught strip on the edge of the blow-off nozzle of the motor.
Put the plug into the wall socket.- Slide up the internal shaft part unto the ceiling. Do this carefully in order to prevent the chimney hood or the shafts from being damaged. Fasten them with the 2 stainless steel screws (906035).
MOUNT THE REMOTE MOTOR UNIT
For the models 7645, 7655 and 7665 the remote motor unit of the chimney hood is mounted. A choice can be made between an internal motor, an external motor for outside mounting or a roof motor. With an external motor the minimum distance between the hood and the external motor must be 5 metres. hood is connected to an earthed wall socket. The hood and the motor unit are electrically connected by means of a 6-pole plug connection.
The Additional information can be found in the mounting instructions of the motor involved.
Dimensions
7640 – 7642 – 7645
Dimensions
7650 – 7655
Dimensions
7660 – 7665
NOVY nv reserves the right at any time and without reservation to change the structure and the prices of its products.

NOVY nv
Noordlaan 6
B – 8520 KUURNE
Tel. 056/36.51.00
Fax 056/35.32.51
[email protected]
www.novy.com
United Kingdom: +44 (0)207 866 249























