CERBERUS PYROTRONICS U-MMT Series 8-Tone Horn

ENGINEER AND ARCHITECT SPECIFICATIONS
- Universal Mount: 1, 2 Gang or 4fl Square back Box Mounting
- Horn or Horn / Strobe Units
- 24 Vdc Units Available with 15/75, 30/75, 60/75, 75 or 110 Candela Strobes
- Electronic Selectable 8-Tone: Horn, Temporal, Bell, Hi-Lo, Chime, Siren, Slow-Whoop, and Single Stroke Bell
- Raised Mounting Design – Eliminating the Need for Deeper Back Box
- Very Low Inrush Current
- Available for Wall or Ceiling Mount Devices (in Red or White Colors)
- Light Plastic Grill Construction
- Low Operating Current – DC or Full Wave
- ADA/UL 1971 Horn-Strobe Versions
- Screw Terminals Accept #12 AWG
- Listed, CSFM, NYMEA & FM Approvals Pending
Description
Maximum dBA output, very low inrush current, and the lowest operating current DC or Full Wave are characteristics of all new Cerberus Pyrotronics devices. The electronic
U-MMT horns provide maximum reliability and low current drain for every application.
The U-MMT series 8-tone horn operates on a current of 20 to 40ma at 24Vdc depending on the tone selected. The audio portion of the signal provides a 91 to 97 dB output. The U-MMT mounts on a single gang, while all other units are either 1, 2 gang, or 4fl square mounting. Cerberus Pyrotronics notification devices are designed with the installer in mind. The U-MMT series devices are constructed with all of the electronics in the housing and not in the box. This design helps eliminate possible ground faults from jamming everything in the box. Units are also available in two different colors, red or white.
The U-MMT horn/strobe unit construction consists of a Xenon flash tube with solid-state circuitry for maximum reliability and efficiency. The full range of new strobes has a rounded dome shape made of clear Lexan®. fiFIREfl letters are visible on the front mounting plate. The overall lens is 2.0fl x 2 7/8fl with a height of 1 3/8fl. Strobe units can also be synchronous when used with the SCM-F sync or DSC (Dual Sync Control) units. To order a device in fiwhitefl use a fi-Wfl at the end of the model number (i.e., U-MMT-W).
Ordering Information
U-MMT Series Horn Wall Mount
| Model Number | Description | Part Number | 8-Tone Horn Current | dB Rating @ 10′ |
| U-MMT-1G | Electronic Horn 24 VDC | 500-696604 | Bell-20ma HiLo-25ma Chime-28ma SS.Bell-26ma Horn/Temporal-23ma Siren/Sl.Whoop-40ma | 91 dB 96 DB 93 dB 93 dB 97 dB 96 dB |
| U-MMT-1G-W | Electronic Horn 24 VDC | 500-696605 | ||
| U-MMT | Electronic Horn 24 VDC | 500-696606 | ||
| U-MMT-W | Electronic Horn 24 VDC | 500-696607 |
U-MMT Series Horn/Strobe Wall Mount
| Model Number | Description | Part Number | Strobe Current | 8-Tone Horn Current | dB Rating @ 10′ |
| U-MMT-S17 | 15/75CD Strobe | 500-696608 | 59 ma |
Bell – 20 ma Hi-Lo – 25 ma Chime – 28 ma SS.Bell –
Horn/Temporal –
Siren/Sl.Whoop |
91 dB
96 dB
93 dB
93 dB
93 dB
96 dB |
| U-MMT-S17-W | 15/75CD Strobe | 500-696609 | 59 ma | ||
| U-MMT-S17S | 15/75CD Strobe | 500-696610 | 59 ma | ||
| U-MMT-S17S-W | 15/75CD Strobe | 500-696611 | 59 ma | ||
| U-MMT-S30 | 30/75CD Stobe | 500-696612 | 88 ma | ||
| U-MMT-S30-W | 30/75CD Strobe | 500-696613 | 88 ma | ||
| U-MMT-S30S | 30/75CD Sync | 500-696614 | 88 ma | ||
| U-MMT-S30S-W | 30/75CD Sync | 500-696615 | 88 ma | ||
| U-MMT-S60 | 60/75CD Stobe | 500-696616 | 155 ma | ||
| U-MMT-S60-W | 60/75CD Strobe | 500-696617 | 155 ma | ||
| U-MMT-S60S | 60/75CD Sync | 500-696618 | 155 ma | ||
| U-MMT-S60S-W | 60/75CD Sync | 500-696619 | 155 ma | ||
| U-MMT-S75 | 75CD Stobe | 500-696620 | 166 ma | ||
| U-MMT-S75-W | 75CD Strobe | 500-696621 | 166 ma | ||
| U-MMT-S75S | 75CD Sync | 500-696622 | 170 ma | ||
| U-MMT-S75S-W | 75CD Sync | 500-696623 | 170 ma | ||
| U-MMT-S110 | 110CD Stobe | 500-696624 | 249 ma | ||
| U-MMT-S110-W | 110CD Strobe | 500-696625 | 249 ma | ||
| U-MMT-S110S | 110CD Sync | 500-696626 | 249 ma | ||
| U-MMT-S110S-W | 110CD Sync | 500-696627 | 249 ma |
U-MMT Series Horn/Strobe Ceiling Mount
| Model Number | Description | Part Number | Strobe Current | 8-Tone Horn Current | dB Rating @ 10′ |
| U-MMT-S17-C | 15/75CD Strobe | 500-696904 | 59 ma |
Bell – 20 ma Hi-Lo – 25 ma Chime – 28 ma SS.Bell –
Horn/Temporal – 23 ma
Siren/Sl.Whoop 40 ma |
91 dB
96 dB
93 dB
93 dB
93 dB
96 dB |
| U-MMT-S17-W-C | 15/75CD Strobe | 500-696905 | 59 ma | ||
| U-MMT-S17S-C | 15/75CD Sync | 500-696914 | 59 ma | ||
| U-MMT-S17S-WC | 15/75CD Sync | 500-696915 | 59 ma | ||
| U-MMT-S30-C | 30/75CD Stobe | 500-696906 | 88 ma | ||
| U-MMT-S30-W-C | 30/75CD Strobe | 500-696907 | 88 ma | ||
| U-MMT-S30S-C | 30/75CD Sync | 500-696916 | 88 ma | ||
| U-MMT-S30S-WC | 30/75CD Sync | 500-696917 | 88 ma | ||
| U-MMT-S60-C | 60/75CD Stobe | 500-696908 | 155 ma | ||
| U-MMT-S60-W-C | 60/75CD Strobe | 500-696909 | 155 ma | ||
| U-MMT-S60S-C | 60/75CD Sync | 500-696918 | 155 ma | ||
| U-MMT-S60S-WC | 60/75CD Sync | 500-696919 | 155 ma | ||
| U-MMT-S75-C | 75CD Stobe | 500-696910 | 166 ma | ||
| U-MMT-S75-W-C | 75CD Strobe | 500-696911 | 166 ma | ||
| U-MMT-S75S-C | 75CD Sync | 500-696920 | 170 ma | ||
| U-MMT-S75S-WC | 75CD Sync | 500-696921 | 170 ma | ||
| U-MMT-S110-C | 110CD Stobe | 500-696912 | 249 ma | ||
| U-MMT-S110-WC | 110CD Strobe | 500-696913 | 249 ma | ||
| U-MMT-S110S-C | 110CD Sync | 500-696922 | 249 ma | ||
| U-MMT-S110S-WC | 110CD Sync | 500-696923 | 249 ma |
Listed operating range is 20 to 31 Vdc/FWR
Minimum UL measurements are 85-88dB taken in free air at 360° around the device and averaged. Typical readings are frontal sound readings taken with a dB meter with a signal mounted on the wall. Rated for indoor use at 32°F to 120°F, (0°C to 49°C) with 85% RH.
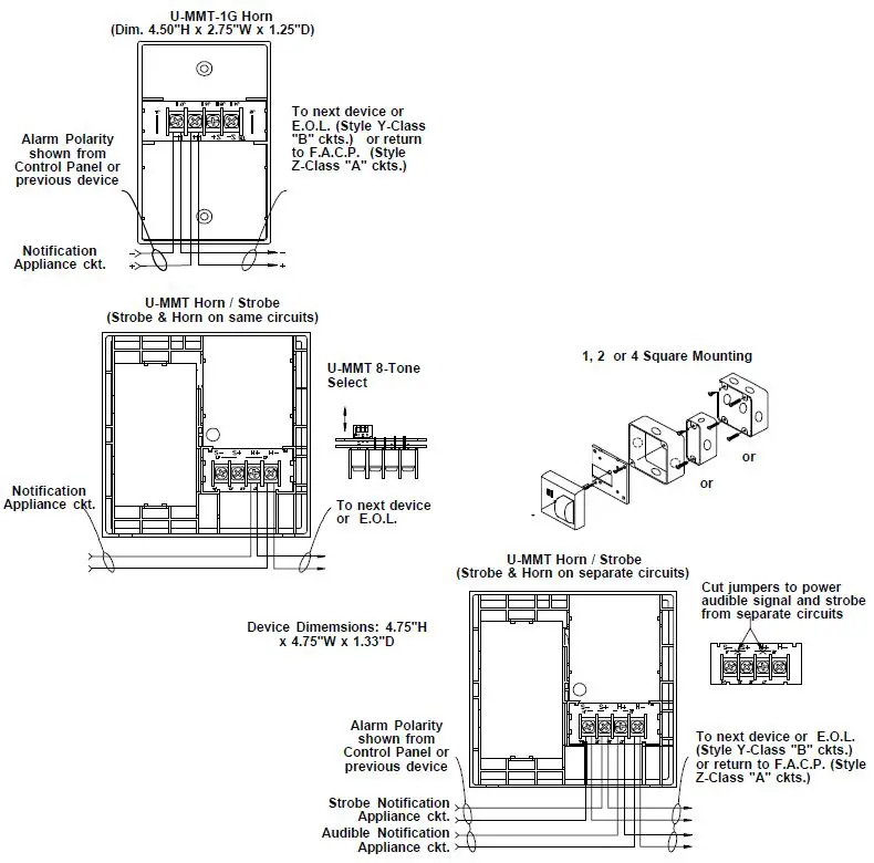
Typical Wiring

Notes:
U-MMT-1G, U-MMT, and U-MMT Horn/Strobes devices must be connected to compatible non-pulsing signal circuits when the temporal tone is chosen. Steady
current output and appropriate voltage are required. When the audible signal and strobe are connected to the same notification appliance circuit, the current rating is a combination of the audible signal and the strobe current.
- (Add “-C” for Canadian ULC listed model)
- (Add “-CF” for Canadian French ULC listed model)
Cerberus Pyrotronics
8 Ridgedale Ave. Cedar Knolls, NJ 07927
Tel: (201) 267-1300
FAX: (201) 397-7008
6/96 5M CPY-IG Printed in the U.S.A.
Cerberus Pyrotronics
50 East Pearce Street Richmond Hill, Ontario L4B, 1B7 CN
Tel: (905) 764-8384
FAX: (905) 731-9182




















