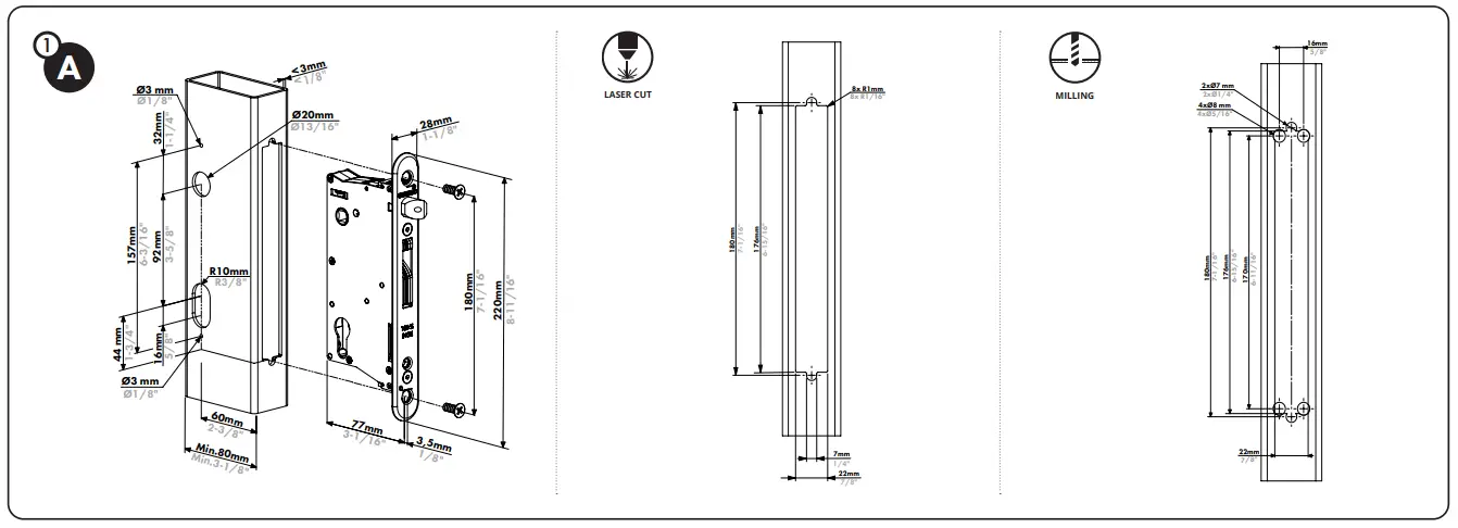
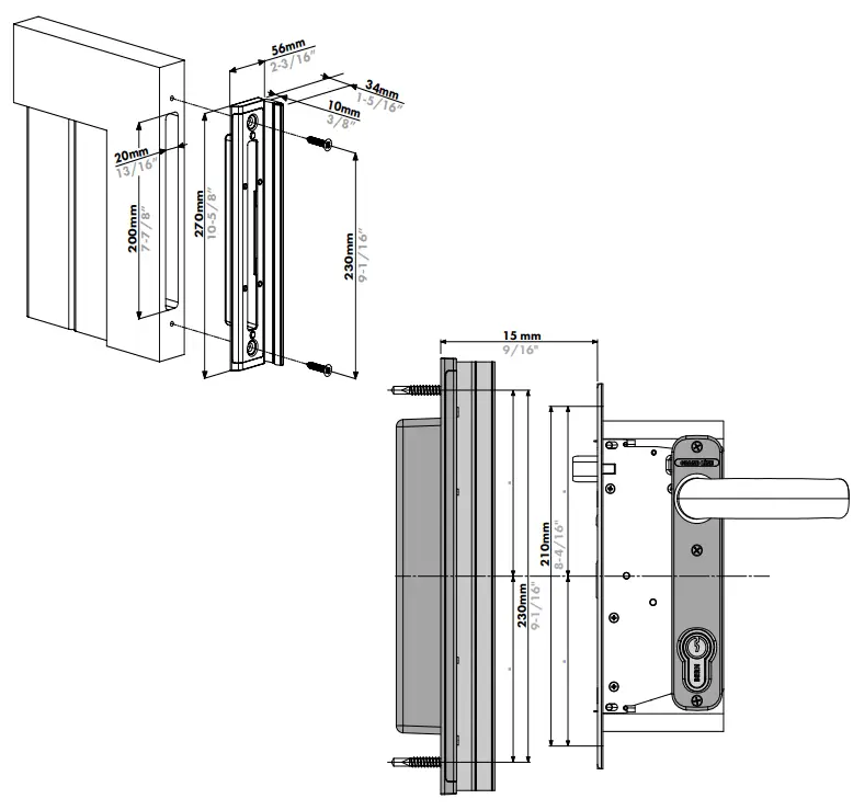
LOCINOX EIGHTYLOCK Insert Lock with 60mm Backset

INSTALLATION INSTRUCTION





SFKB

SFKМ


SFKO & MODULEC-SF

SUCCESSFUL INSTALLATION?
Please send us your pictures & videos
Doc. Nr.: MANU-000453
- Locinox NV • Mannebeekstraat 21 • 8790 Waregem • Belgium
- Locinox CEE • Irysowa 9 • 55-040 Bielany Wroctawskie • Poland
- Locinox LLC • 460 Windy Point Drive • Glendale Heights – IL 60139 • USA
- [email protected]


















