Hearth Products Controls Co
CSA CERTIFIED-OUTDOOR USE ONLY
FOR COMMERCIAL AND RESIDENTIAL USE


AVAILABLE IN:
- 120VAC OR 24VAC
- On/Off OR Hi/Low
MATERIAL: 304 STAINLESS STEEL
Hi/Lo MODELS HAVE A 40% REDUCTION IN BTU ON LOW SETTING
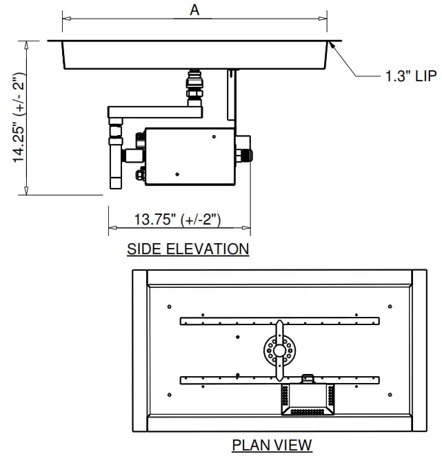
| PART NUMBERS | STND BTU | DIMENSION CHART | ||
| A” | B” | C” | ||
| 24X12SSEI-H | 75K | 24 | 12 | 56LX28W |
| 30X1255E1-H | 100K | 30 | 12 | 56LX28W |
| 36X14S5E1-H | 125K | 36 | 14 | 64LX32W |
| 42X1455E1-H | 150K | 42 | 14 | 64LX32W |
| 54X16S5E1-H | 200K | 54 | 16 | 76LX38W |
| 66X16SSEI-H | 250K | 66 | 16 | 88LX38W |
| 78X1655E1-H | 300K | 78 | 16 | 90LX38W |
| 90X1655E1-H | 350K | 90 | 16 | 112LX38W |
Notes:
- PROPER VENTING
● ENCLOSURES: Recommend 4 each 18 sq. in. vents on opposing sides (Minimum 2 each 18 sq. in. vents).
● BOWLS (Copper, concrete, or metal) – Bowl to be raised above the mounting surface minimum of 3/4″ gap; Bowl to have a minimum of 6″ diameter hole in the bottom.
GAS SUPPLY – FOR USE WITH FIXED PIPING SYSTEMS ONLY – NOT FOR USE WITH SMALL TANKS.
● Natural Gas: Operating Supply Pressure: Minimum: 6.0″ W.C.; Maximum: 7.0″ W.C.
● LP Gas: Operating Supply Pressure: Minimum: 10.0″ W.C.; Maximum: 11.0″ W.C.
IMPORTANT: Ensure any flex line that may be used from the permanent main fuel supply to the product is rated to the stated max BTU of the product and certified to ANSI Z21.75*CSA 6.27.
1. MODIFICATION OF THE PRODUCT WILL VOID ANY CERTIFICATION AND WARRANTY.
2. FOLLOW ALL MANUFACTURER INSTALLATION INSTRUCTIONS AND LOCAL CODES.
3. ALL DIMENSIONS ARE CONSIDERED TRUE AND REFLECT THE MANUFACTURER’S SPECIFICATIONS AS OF THE REVISION DATE.
4. DO NOT SCALE DRAWING.
5. THESE DRAWINGS ARE FOR SIZING AND PLANNING PURPOSES. ALL INFORMATION CONTAINED HEREIN WAS CURRENT AT THE
TIME OF DEVELOPMENT. THE MANUFACTURER’S RESPONSIBLE FOR THE ACCURACY OF THE DRAWING.
6. CONTRACTOR’S NOTE: FOR PRODUCT AND COMPANY INFORMATION VISIT www.CADdetails.com/info
REFERENCE NUMBER 771-044.
ELECTRONIC IGNITION
EI RECTANGLE – H BURNER – FLAME SENSING WITH ELECTRONIC HOT SURFACE IGNITION
HEARTH PRODUCTS CONTROLS
3050 PLAINFIELD RD.
KETTERING, OH 45432
TOLL-FREE: 1-877-433-7001
PHONE: (937) 433-7000
FAX: (937) 433-0704
www.hpcfire.com
















