VEVOR KM-CTG-2302 Outdoor Kitchen Drawers User Manual
PRODUCT PARAMETERS
| product name: | Outdoor KitchenDrawers |
| product material: | Non-magnetic stainlesssteel |
| product color: | Stainless steel color |
| Furniture structure: | Box frame construction |
| Style positioning: | Economical |
| Design elenents: | Joining together |
WARNING:
Read this material before using this product. Failure to dosocanresultinserious injury.SAVE THISMANUAL
ASSEMBLY PRECAUTIONS
- Assemble needs to follow these instructions. Incorrect assemblycanbea hazard.
- Wear safety goggles and heavy-duty work gloves duringassembly.
- Do not assemble when tired or when under the influenceof alcohol,drugs or medication.
- Keep the assembly area clean and well-lit.
- Keep bystanders out of the area during assembly.
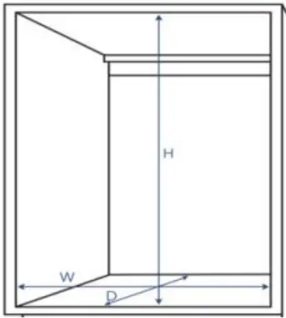
- Refer to the installation size of the outdoor cabinet for opening, installation, to ensure the bottom of the level of the installationposition,soas not to affect the normal use of the product

USE PRECAUTIONS
WARNING: TO PREVENT SERIOUS INJURYANDDEATHFROMTIPPING:
- This product is not a toy. Do not allow children to play withor approachthis item.
- Use as intended only. Do not sit or stand on the product.
- Inspect before every use. Do not use it if parts are looseor damaged.
- Use on Kitchen cabinet only and Do not use it alone onthegroundoronthe desktop.
- Do not exceed the listed weight capacity. Tighten all knobssecurelybefore applying load. Be aware of dynamic loading! Thesuddenloadmovement may briefly create an excess load, causing product failure.
- To prevent tipping, push/pull using supplied handle only.
- Use as intended only.
- Inspect before every use; do not use if parts are looseor damaged.
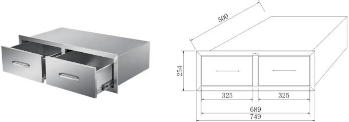
PRODUCT LIST
Model:KM-CTG-2302-SKU1
Product Size(inch):17Wx30Hx21D
Installation size(mm):386Wx712Hx515D
Model:KM-CTG-2302-SKU2
Product Size(inch):16Wx28.5Hx20.5D
Installation size(mm):354Wx676Hx530D
Model:KM-CTG-2302-SKU3
Product Size(inch):18Wx23Hx23D
Installation size(mm):412Wx550Hx600D
Model:KM-CTG-2302-SKU4
Product Size(inch):14Wx20.25Hx23.2D
Installation size(mm) :310 Wx470Hx590D
Model:KM-CTG-2302-SKU5
Product Size(inch):16Wx21.5Hx18D
Installation size(mm):360Wx505Hx460D
Model:KM-CTG-2302-SKU6
Product Size(inch):15Wx25Hx18.7D
Installation size(mm):330Wx600Hx490D
Model:KM-CTG-2302-SKU7
Product Size(inch):17.7Wx22.8Hx22.6D
Installation size(mm):405Wx 590Hx 590D
Model:KM-CTG-2302-SKU8
Product Size(inch):19.7Wx26.5Hx15.7D
Installation size(mm):454Wx680Hx410D
Model:KM-CTG-2302-SKU9
Product Size(inch):13.6Wx26Hx19.3D
Installation size(mm):298Wx605Hx508D
Model:KM-CTG-2302-SKU10
Product Size(inch):16Wx22Hx16D
Installation size(mm):360Wx569Hx416D
Model:KM-CTG-2302-SKU11
Product Size(inch):30Wx 10Hx20D
Installation size(mm):710Wx208Hx530D
Model:KM-CTG-2302-SKU12
Product Size(inch):14Wx8.5Hx23D
Installation size(mm) :310Wx168Hx595D
Model:KM-CTG-2302-SKU13
Product Size(inch):18Wx 20.6Hx12.7D
Installation size(mm) :405Wx475Hx325D
Model:KM-CTG-2302-SKU14
Product Size(inch):13Wx 20.4Hx20.8D
Installation size(mm) :265Wx470Hx540D
Model:KM-CTG-2302-SKU15
Product Size(inch):14Wx 14.3Hx23D
Installation size(mm) :310 Wx317Hx600D
Model:KM-CTG-2302-SKU16
Product Size(inch):29.5Wx22.6Hx21.7D
Installation size(mm):705Wx525Hx565D
Model:KM-CTG-2302-SKU17
Product Size(inch):32.5Wx21.6Hx20.5D
Installation size(mm):780Wx505Hx535D
Model:KM-CTG-2302-SKU17
Product Size(inch):32.5Wx21.6Hx20.5D
Installation size(mm):780Wx505Hx535D
Cleaning
- For cleaning, wipe the surface with a damp (not wet) cloth or wipedrywithaclean, lint-free cotton cloth
- Window cleaning liquid or a similar cleaning liquidcanbeusedtoclean the surface
Address:Baoshanqu Shuangchenglu 803long 11hao 1602A-1609shi Shanghai
Imported to AUS: SIHAO PTY LTD, 1 ROKEVA STREETEASTWOODNSW 2122 Australia
Imported to USA: VEVOR STORE INC, 9448 RINCHMONDPL#ERANCHO CUCAMONGA, California, 91730 United States of America
Support and E-Warranty Certificate
www.vevor.com/support


















