Gro-350b Reverse Osmosis Water Filtration System
Instruction Manual
Gro-350b Reverse Osmosis Water Filtration System
IMPORTANT: Before installing this reverse osmosis system, make certain your water supply complies with the following operating specifications. Failure to do so may reduce the effectiveness of the system and will void the warranty.
SPECIFICATIONS
| Pressure Range: | 40 to 100 psi (2.75–6.89 bar) |
| Temperature Range: | 40–100°F (4.4–37.8°C) |
| TDS: | <2000 ppm |
| Maximum Hardness†: | <10 gig (170 mg/L) |
| Sulfide, Iron and Manganese‡ : | <0.1 ppm |
| Chlorine in Water Supply: | <2 ppm |
| pH Limits: | 3–11 |
| Overall Dimensions: | 11.32″W x 5.46″D x 12.54″H (288mm x 139mm x 319mm) |
| Weight: | 7.1 lbs. (3.2 kg) |
| Tank Dimensions: | 8.94″DIA x 13.83″H (227mm DIA x 351mm) |
| Tank Capacity Max: | 2.1 gal (7.9 L) |
| Tank Air Pressure Empty: | 5-7 psi (0.34-0.48 bar) |
| Tank Weight (Full): | 19.50 lb. (8.8 kg) |
† If the hardness of your water is above 10 gig (171 mg/L), lime scale will build up rapidly on the membrane. Scale buildup will plug the membrane and make the system ineffective. We do not recommend these reverse osmosis systems to be used with water in excess of 10 gig (171 mg/L) hardness.
‡ A maximum total level of approximately 0.01 ppm sulfide, iron or manganese is permissible. See your local dealer to reduce these substances in your water.
PARTS INCLUDED:
- System with cartridges
- Storage Tank
- Installation Hardware Kit
- Lead-free drinking water faucet with air gap
Tools and Materials Required
- Hand or electric drill (cordless preferred)
- (2) Adjustable wrenches
- Slotted and Phillips screwdrivers
- File
- Safety glasses
- Drill bits: 1/8″, 3/16″, 1/4″, 3/8″
- Tube cutter or utility knife
- Pencil
- Towel
- Bucket
- Screwdriver bits: 1/8″, 3/16″, 1/4″, 3/8″
If sink does not have hole for separate faucet: - Center punch
- 3⁄4″ hole saw or drill bit
- Safety mask
NOTE: All tools may not be necessary for installation. Read installation procedures before starting to determine what tools are necessary.
CALIFORNIA PROPOSITION 65 WARNING
WARNING: This product contains chemicals known to the State of California to cause cancer or birth defects or other reproductive harm.
PRECAUTIONS
GENERAL
WARNING: Do not use with water that is microbiologically unsafe or of unknown quality without adequate disinfection before or after the system. Systems certified for cyst reduction* may be used on disinfected waters that may contain filterable cysts.
*NSF/ANSI Standard 58 certified to reduce cysts such as Cryptosporidium and Giardia by mechanical means.
CAUTION: RO System must be protected against freezing, which can cause cracking of the RO components and water leakage.
NOTE:
- Your water must be within required limits for satisfactory operation. If not, your membrane life may be shortened and your warranty will be voided (see Specifications on page 3).
- This reverse osmosis system will not protect against disease-causing bacteria or remove naturally-occurring harmless bacteria. Install on cold water line only.
- Make certain that installation complies with all state and local laws and regulations.
- The replacement cartridges and reverse osmosis element included with this system have limited service lives. Changes in taste, odor, and color of the water being filtered indicate that the cartridge should be replaced.
- After prolonged periods of non-use (such as during a vacation) it is recommended that the system be flushed for five (5) minutes before it is used.
- A drinking water cartridge may contain carbon fines (very fine black powder). After installation, flush the system for five (5) minutes to remove the carbon fines before using the water.
- It is recommended that you run the tap at least 20 seconds prior to using water for drinking or cooking purposes.
- The contaminants or other substances removed or reduced by this water treatment device are not necessarily present in your water.
HOW REVERSE OSMOSIS WORKS
The GRO-350B Reverse Osmosis (RO) System uses a semipermeable membrane to reduce dissolved salts and minerals, improving the taste and odor of your water. The RO membrane is made of layers of micron-thin film wound around a hollow center core. Water molecules can pass through the membrane, but dissolved salts and minerals are rejected.
The GRO-350B Reverse Osmosis System features 3-stage filter action. Your water supply is pre-filtered to reduce dirt and chlorine that may foul the membrane. The RO membrane separates this pre-filtered water into PRODUCT WATER and DRAIN or REJECT WATER. Incoming water pressure forces the product water through the membrane and into the storage tank. Dissolved solids and other contaminants cannot pass through the membrane and are sent to the drain as reject water. When you open the drinking water faucet, product water is drawn from the storage tank through an activated carbon post-filter, providing you with cleaner, great-tasting water.
For each gallon of water produced, several gallons are discharged as reject water. The storage tank can hold up to 2.1 gallons (7.9 L) of water at a time, for drinking and cooking needs. When used under the Specifications on page 3 of the manual, your Reverse Osmosis membranes should last 12-24 months.
INSTALLATION
- Please read all instructions and precautions before installing and using your GRO-350B.
- For standard, under-sink installation on 3/8″ (9.52 mm) steel, brass, or copper cold water line.
- When selecting a mounting location of the system and tank, take into consideration the length of tubing required for connections between existing plumbing and system components. Some installation sites may require more tubing than provided in the kit.
- For replacement parts visit pentair.com
- Numbered diagrams correspond with numbered steps.

- Installing the Water Supply Adapter
The supply adapter fits 1/2″-14 NPS supply threads or 3/8″ x 3/8″ compression. If local codes permit, it may be used to connect the system to the cold water supply line. If local codes do not permit the use of the supply adapter, alternate connectors can be obtained from your local supplier.
Directions:
(A) Turn off cold water supply line. If cold water line does not have a shut-off valve under the sink, you should install one.
(B) Turn on the cold water faucet and allow all water to drain from line.
(C) Disconnect riser cold water supply valve.
(D) Ensure the sealing gasket is fully seated into the feed adapter valve female thread.
(E) Install feed adapter valve onto supply valve as desired. The feed adapter valve may be installed at the bottom of the supply hose or the top of the cold water line. Hand tighten only.
(F) Connect the riser to the feed adapter valve.
NOTE: Be careful not to cross-thread.
- Selecting the Faucet Location
The drinking water faucet should be positioned with function, convenience, and appearance in mind. An adequate flat area is required to allow faucet base to rest securely. The faucet fits through a 3/4″ hole. Most sinks have pre-drilled 1-3⁄8″ or 1-1⁄2″ diameter holes that may be used for faucet installation. If these pre-drilled holes cannot be used or are in an inconvenient location, it will be necessary to drill a 3/4″ hole in the sink to accommodate the faucet.
CAUTION: This procedure may generate dusts which can cause severe irritation if inhaled or come in contact with the eyes. The use of safety glasses and safety mask for this procedure is recommended.
CAUTION: DO NOT ATTEMPT TO DRILL THROUGH AN ALL-PORCELAIN SINK. If you have an all-porcelain sink, mount the faucet in pre-drilled sprayer hole or drill through countertop next to sink.
CAUTION: When drilling through a countertop, make sure the area below the drilled area is free of wiring and piping. Make certain that you have ample room to make the proper connections to the bottom of the faucet.
CAUTION: Do not drill through a countertop that is more than 1″ thick.
CAUTION: Do not attempt to drill through a tiled, marble, granite or similar countertop. Consult a plumber or the countertop manufacturer for advice or assistance.
The following instructions apply to stainless steel sinks ONLY.
(A) Line bottom of sink with newspaper to prevent shavings, parts or tools from falling down the drain.
(B) Place masking tape over the area to be drilled to help prevent scratches if drill bit slips.
(C) Mark point with center punch. Use a 1/4″ drill bit to drill a pilot hole through sink.
(D) Use a 1-1 ⁄4″ hole saw to enlarge hole. Smooth rough edges with a file. - Mounting the Faucet
WARNING: Due to variance in installation sites, it is highly recommended to install the 1/4″ red drain tubing to the RO system manifold before fully mounting the faucet. Make note of the 1/4″ red drain tubing length required to reach from the RO system manifold to the faucet connection and plan accordingly in relation to mounting location of system components. Furthermore, the 1/4″ red drain tubing includes a flow controller installed in one end of the tubing. The end of the tubing with the flow restrictor must be securely installed into the RO system manifold before attaching to the faucet. DO NOT cut off the flow restrictor.
NOTE: Not all parts provided with the faucet may be needed for installation.
(A) Slide chrome plate and black rubber washer onto faucet by threading both drain tubes through the holes on the plate and washer.
(B) Attach large diameter red 3/8″ drain tube to barb fitting at the faucet base.
This tube should be long enough to reach the drain clamp in Step 4.
(C) Locate the small diameter red 1/4″ drain tube connected to the drain port of the GRO element. Route the tubing to the faucet and cut off the excessive length of tubing.
(D) Slide white extension spacer onto long threaded section of faucet. Open end of extension should come in contact with base of faucet.
(E) Screw washer, lock washer, and locking nut onto end of faucet threads
(F) Screw quick connector onto end of faucet threads.
(G) Wet end of 3/8″ blue tube. Push into bottom of quick connector. Tug gently to be sure connection is complete.
NOTE: To remove the tube, push on the fittings’ collar and pull the tube out.
(H) Holding the faucet, feed the three tubes through the hole in the sink. Position the faucet handle at a desired location
(I) Center the faucet and slip slotted disc between the white extension spacer and the bottom of the counter or sink. Tighten the locking nut with a wrench until it is tight. - Installing the Drain Clamp
NOTE: If you have a single-basin sink with a disposal unit, call Technical Support for options.
NOTE: Before installing the drain clamp, check the drainpipes under the sink for corrosion. Corroded pipes should be replaced before continuing with installation.
(A) Attach the drain clamp to a vertical section of the drainpipe, about 6″ above the trap. Make sure the opening on the drain clamp is facing towards the drinking water faucet.
(B) Using the fitting hole of the drain clamp as a guide, drill a 1/4″ hole through one side of the drainpipe.
(C) Remove the drain clamp from the drainpipe and enlarge the hole with a 3/8″ drill bit. Use a file to remove rough edges from the drilled hole.
(D) Make sure the black rubber gasket is adhered to the inside of the drain clamp and place the drain clamp assembly over the drilled hole. Look through the hole and position the clamp so that the center of the clamp hole is slightly higher (about 1/16″) than the center of the drilled hole. Tighten the clamp securely.
(E) Screw the plastic compression nut onto the drain clamp until hand-tight. - Connecting the Faucet to the Drain
CAUTION: This is a gravity drain line. Any loops, kinks or sharp bends must be eliminated before proceeding. Failure to create a straight line to the drain may result in reject water leaking through the air gap in the faucet onto the countertop and below the faucet.
(A) Align the larger reject 3/8″ red tubing from the faucet with the compression nut on the drain clamp. Create as straight and smooth a path as possible with the tubing. Do not kink tube. Cut the tubing squarely and remove any internal and external burrs. Insert inner tube insert (white cone) into end of 3/8″ red tubing. Remove compression nut from the drain clamp. Place compression nut on end of 3/8″ red tubing.
(B) Insert the tubing into the drain port until it stops. Tighten the compression nut with fingers, then tighten 1 to 2 turns with a wrench to secure tubing to drain port. - Mounting the System
WARNING: When selecting a mounting location of the system and tank, take into consideration the length of tubing required for connection between components. Some installation sites may require more tubing than provided in the kit.
• Select a location under the sink, or other suitable area where the system will be installed.
NOTE: The system carton can be used to determine the operational footprint required for installation of the system and replacement cartridges. (Figure 6)
• Mount the system vertically. Ensure mounting is level. Remove filter cartridges for easier access to bracket mounting holes. Place a pencil mark in the upper slots of the bracket mounting holes. (Figure 4b). Alternate mounting option: If mounting the system near the floor, place the pencil marks above each of the mounting holes on the bracket to ensure enough space resides below the cartridge and the floor for cartridge replacement (Figure 4c). Use the 3/32″ drill bit to create pilot holes for mounting.
WARNING: The system should be mounted to a firm, solid surface that is able to support the weight of the system. - Connecting the Faucet to the System
(A) Determine the length of plastic blue tubing needed to connect to the outlet (right) side of the filter from the faucet. Be sure to allow enough tubing to prevent kinking and cut the tubing squarely. Use a marker to mark one end of the tubing 5/8″ from the end. Wet the end of the 3/8″ tube and push into the outlet (right) connection of the system up to the mark.
CAUTION: Do not bend or crimp tube while inserting.
(B) Gently pull back on the tube to ensure it is connected properly.
- Connecting the Storage Tank to the System
CAUTION: When tank is full, it weighs approximately 19.50 lbs. (8.8 kg.) Provide ample support under the tank.
(A) To prevent leaks, apply 3 or more wraps of plumber tape to threads on tank.
Thread the tank valve onto the top of the tank opening. Turn tank so handle is in line with tubing.
CAUTION: The tank/valve connection will leak if not properly sealed. Plumber tape will normally seal the threaded connection.
(B) Locate the 3/8″ blue tubing. Place a mark on the tubing 5/8″ from one end. Moisten the marked end of the tubing with water and insert with a twisting motion into the port of the tank valve until the 5/8″ mark is flush with the quick connect fitting. Then locate the tank near the system’s installation area.
(C) Cut the tubing to correct length. Install free end of tubing into white quick-connect fitting on the system. Ensure the tubing does not kink. Retain remaining blue tubing for use in connecting system to water supply adapter. Some installation sites may require additional tubing not provided in kit.
(D) Place entire system over mounting screws on wall and slide down.
CAUTION: Make certain system is firmly attached to wall to prevent it from falling and possibly becoming damaged.
NOTE: Use caution not to bend or pinch the tubing behind the system while attaching to mounting screws. - Connecting the System to the Water Supply Adapter
• Locate remaining length of 3/8″ plastic blue tubing.
• Place a mark on the tubing 5/8″ from the end. Moisten the end of the tubing with water and insert with a twisting motion push into white quick connect fitting on the left side of system. Depending on the installation, the system may need to be removed from the mounting surface to access the left side of the system.
• Cut the tube to a length that will allow connection to the Water Supply Adapter. Ensure the tubing does not kink. Place a mark on the tubing 5/8″ from the end. Moisten the end of the tubing with water and insert with a twisting motion push into quick connect fitting on the Water Supply Adapter. - Faucet Operation
(A) For controlled water flow, push the handle down.
(B) For constant water flow, lift the faucet handle to lock it in the open position.
- System Start-up
NOTE: The reverse osmosis membrane is treated with a food grade sanitizing agent that may cause an undesirable taste. Although it is not harmful, it should be flushed from the system.
NOTE: The post-polishing filter may contain fine black carbon particles. These fines are harmless, but may make the water appear gray in color. The carbon fines are flushed from the system with the first tank full of water.
NOTE: The RO system does not produce a high volume of water on demand as an ordinary filter does. Water is produced at a slow, drop-by-drop rate. The system requires about 2 to 4 hours to fill the storage tank. As water is taken from the tank, the system automatically starts the cycle of replacing the water and then stops water production when the tank is full.
CAUTION: Visually check the entire system for leaks. If a leak is present, see Troubleshooting Guide.
(A) Turn off valve at top of storage tank.
(B) Turn on the cold water supply slightly, and ensure the supply adapter valve is open.
(C) Lift the faucet handle to lock it in the open position and let it drip for 30 min.
(D) Completely open the cold water supply until it comes to a stop. Allow water to drip from the faucet for 12 more hours. Then close the faucet and open the valve on the storage tank. The tank valve is open when the handle lines up with the tubing connection.
(E) Allow three (3) hours for the tank to fill. Continue to periodically check the installation for leaks. After the storage tank is filled, open the faucet to flush the post-filter cartridge. Allow 4 to 5 minutes for all of the water to drain from the tank. Close faucet and allow tank to fill.
(F) Repeat step E four times.
NOTE: Initially, the water may appear cloudy. This is a result of air trapped in the post-polishing filter. It is not harmful and will disappear in a matter of minutes. It may take up to a week after installing a new post-polishing filter for the trapped air to dissipate.
The system is ready for operation. You can now enjoy quality water from your Reverse Osmosis System.
TESTING YOUR REVERSE OSMOSIS SYSTEM
Model GRO-350B Reverse Osmosis System Total Dissolved Solids (TDS) Test
NOTE: It is highly recommended that you (the consumer) have your water tested at least every 6 months to verify that your system is performing satisfactorily.
SAMPLING INSTRUCTIONS:
Sampling instructions are included with the Total Dissolved Solids (TDS) Test Kit.
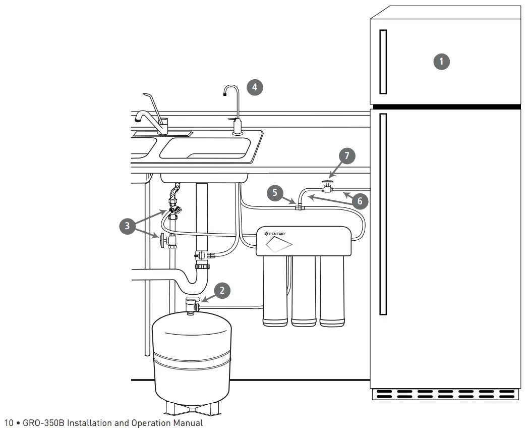
OPTIONAL INSTALLATION
Connecting your Reverse Osmosis System to Refrigerator Icemaker / Water Dispenser
CAUTION: If you are connecting this unit to your refrigerator/icemaker with initial RO installation, wait to turn on the icemaker until the post-polishing filter has been flushed according to Step 11.
CAUTION: Use plastic tubing and fittings. Do not use copper tubing or brass fittings.
NOTE: For optimum performance, it is recommended that the distance between the RO system and the refrigerator icemaker/water dispenser be no greater than 10 feet (3 m). At distances greater than 10 feet, the water pressure from the system may not be adequate to deliver water to the refrigerator.
MATERIALS REQUIRED(available from your local hardware store):
- 3/8″ x 3/8″ x 3/8″ (0.952 mm x 0.952 mm x 0.952 mm) compression or quick-connect tee
- 10 feet (3 m) of 3/8″ (0.952 mm) polyethylene tubing
- Shut-off valve
- Turn off refrigerator water supply and icemaker (consult manufacturer’s guidelines).
- Close tank valve (on top of storage tank).
- Turn off water to RO system at the cold water supply, or at the feed water supply adapter.
- Open drinking water faucet to relieve pressure.
- Locate tubing (permeate) leading to your drinking water faucet. Cut and insert the 3/8″ x 3/8″ x 3/8″ compression or quick-connect tee into the permeate tubing.
Consult manufacturer’s guidelines before installing the supply adapter.
NOTE: When cutting the permeate tubing, you may experience some water leakage. - Using a length of 3/8″ polyethylene tubing, connect the
icemaker/dispenser line with the free port on the compression tee. - The shut-off valve should be installed as close to this port of the tee as possible. Shut-off valve should be installed in the OFF position Consult manufacturer’s guidelines before installing the shut-off valve.

- Completely open cold water supply.
- Open tank valve.
- Turn off the drinking water faucet.
- Turn on water to RO system at cold water supply.
- Turn on icemaker and open shut-off valve. Consult manufacturer’s instructions.
- Check for leaks and tighten connections if necessary.
Filter Cartridge Replacement
NOTE: The life of the filter cartridges depends on water volume used and the quality of the feed water. It is recommended that the filter cartridges be replaced every 6- 12 months, or every 750 gallons, or when there is a noticeable change in taste, odor, or flow of filtered water.
Ensure the correct cartridge is purchased for the system.
Model GRO-350B uses FDF1-RC, GRO50-RC, and F1GC-RC Replacement Cartridges
- Cartridge Replacement
A. Relieve pressure by turning off the water supply to the system and opening a faucet until water flow stops (wait 5 to 10 minutes after water stops to relieve pressure in RO membrane). Place a bucket or towel under the system to catch any water drips.
B. Lift the locking bar upward until the filter cartridge disengages from the filter head assembly (Figure A).
C. Pull the cartridge away from the filter head assembly and ensure the locking bar remains in the fully up position (Figure B).
D. Align the posts on the filter cartridge with the ports in the filter head assembly. Slide the cartridge filter into the filter head assembly (engaging with the locking bar causing it to drop forward and down). (Figure C).
E. Pull down the locking bar until it snaps into place (Figure D).
F. Flush system following the procedure in Step 11, System Start-up on page 9.
Troubleshooting
Leaks between filter head assembly and filter cartridge
- Relieve pressure by turning off the water supply to the system and opening faucet until water flow stops. Place a bucket or towel under the system to catch any water drips.
- Remove cartridge and inspect O-rings to make sure they are seated and clean.
- Install filter cartridge. Place system into operation and check for leaks. If leaks persist, turn off the water supply and contact Technical Support at 1-800-279-9404.
Leaks from tubing fittings
- Relieve pressure by turning off the water supply to the system and opening faucet until water flow stops. Place a bucket or towel under the system to catch any water drips.
- Depress collet on system or inlet supply adapter tubing fittings and pull tubing from fitting. Inspect surface of tubing for scratches or debris. Clean or cut back tubing to access clean surface.
- Wet the end of the inlet tubing and press into the inlet fitting of the system. Ensure the tubing is fully pushed past the fitting O-rings. Place system into operation and check for leaks. If leaks persist, turn off the water supply and contact Technical Support at 1-800-279-9404.
Cartridge Sequence
GRO-350B


TROUBLESHOOTING GUIDE
Leaks on tank valve assembly
- Open drinking water faucet to drain storage tank. Let drinking water faucet run until it drips. Turn off cold water supply.
- Push in on white collar of tank valve fitting and pull out tubing. Unscrew the tank valve from the storage tank. Rewrap threads on top of the tank with plumber tape. Screw tank valve back onto tank. Trim 1/2″ from end of tubing and reinsert 5/8″ into tank valve fitting.
- Open the cold water supply and shut off the reverse osmosis faucet. Let the system pressurize for several hours and check for leaks. Check again after tank is fully pressurized.
Leaks on quick-connect fittings
- Close the cold water supply and tank valve.
- Depress plastic collar and pull out tubing.
- Cut off 1″ of tubing and place a mark 5/8″ from end of tubing. Tubing should be cut squarely. The internal and external burrs should be removed.
- Push tubing 5/8″ into fitting.
- Open the cold water supply and tank valve. If leaks persist, call Technical Support.
High TDS in Product Water
If high levels of TDS (Total Dissolved Solids) are detected in your product water as determined by the TDS Monitor or by the TDS test kit, the cartridge membrane may need to be replaced or the reject flow control may be clogged. See your dealer or plumber to check product water TDS.
Reduced production
Slow or no product water flow usually indicates a clogged cartridge.
Gradual return of taste and odor
Gradual return of unpleasant taste and odor over a period of time may indicate that your cartridges need to be replaced.
Sudden return of taste and odor
If shortly after complete servicing noticeable taste and odors return, contact Technical Support.
No water pressure from the drinking water faucet or low volume in storage tank
- Close the cold water supply to system.
- Lift storage tank to see if it is empty. If not, open the drinking water faucet to empty water from tank.
NOTE: It may be necessary to pump a small amount of air into the tank with a bicycle pump to remove all the water from the tank. - When tank is empty, use a pressure gauge to check tank pressure. An empty tank should contain 5 to 7 psi pressure. Increase or decrease the air pressure in the tank accordingly.
- Open cold water supply. Let system run for 3 hours to fill tank, then check system performance. If performance has not improved, call Technical Support.
GRO-350B PARTS GUIDE

| ITEM NO. | PART NO. | DESCRIPTION | QTY |
| 1 | 4005008 | ASSY, RO 3-STAGE | 1 |
| 2 | 4003597 | KIT, RO SYSTEMS 50 GPD | 1 |
| 3 | 244820 | FAUCET AIR-GAP | 1 |
| 4 | 244833 | TANK, RO 1/4″ NPT | 1 |
| 5 | 655123-96 | FDF1-RC Cartridge Filter | 1 |
| 6 | 655121-96 | GRO50-RC Cartridge Membrane | 1 |
| 7 | 655117-96 | F1GC-RC Cartridge Filter | 1 |
For replacement parts visit pentair.com
PERFORMANCE DATA
IMPORTANT:
Read this performance data and compare the capabilities of this system with your actual water treatment needs.
It is recommended that before installing a water treatment system, you have your water supply tested to determine your actual water treatment needs.
This system has been tested according to NSF/ANSI 58 for the reduction of substances listed below. The concentration of the indicated substances in water entering the system was reduced to a concentration less than or equal to the permissible limit for water leaving the system as specified in NSF/ANSI 58.
The GRO-350B shall only be used for arsenic reduction on chlorinated water supplies containing detectable residual free chlorine at the system inlet. Water systems using an in-line chlorinator should provide a one-minute chlorine contact time before the RO system.
WARNING: Do not use with water that is microbiologically unsafe or of unknown quality without adequate disinfection before or after the system. Systems certified for cyst reduction may be used on disinfected waters that may contain filterable cysts.
NOTE: Substances reduced are not necessarily in your water.
Filter must be maintained according to manufacturer’s instructions, including replacement of filter cartridges. The tested efficiency rating for these systems is 22.05%. Efficiency rating means the percentage of the influent water to the system that is available to the user as reverse osmosis treated water under operating conditions that approximate typical daily usage.
The tested recovery rating is 38.65%. Recovery rating means the percentage of the influent water to the membrane portion of the system that is available to the user as reverse osmosis treated water when the system is operated without a storage tank or when the storage tank is bypassed.
The GRO-350B has been tested for the treatment of water containing pentavalent arsenic [also known as As(V), As(+5), or arsenate] at concentrations of 0.050 mg/L or less. This system reduces pentavalent arsenic, but may not remove other forms of arsenic. This system is to be used on water supplies containing a detectable free chlorine residual or on water supplies that have been demonstrated to contain only pentavalent arsenic. Treatment with chloramine (combined chlorine) is not sufficient to ensure complete conversion of trivalent arsenic to pentavalent arsenic. Please see the Arsenic Facts section of the Performance Data Sheet for further information.
EPA # 082989-CHN-001
| System Production Rate: | 14.96 gpd (56.63 Lpd) |
| Recovery Rating: | 38.65% |
| Efficiency Rating: | 22.05% |
| TDS Rejection: | 96.90% |
System Tested and Certified by NSF International against NSF/ANSI Standard 42, 58, and CSA B483.1 for the reduction of the claims specified on the Performance Data Sheet.
GRO-350B SYSTEM INSTALLED WITH FDF1-RC, GRO50-RC, F1GC-RC FILTER CARTRIDGES
Model GRO-350B
| Substance | Influent Challenge Concentration | Max Permissible Product Water Concentration | Reduction Requirements | Average Reduction |
| Standard 42 | I | |||
| Chlorine Taste and Order | 2.0 mg/L ± 10% | .501)/0 | 96.% | |
| Standard 58 | ||||
| Total Dissolved Solids | 750 ± 40 mg/L | 187 mg/L | 97.% | |
| Pentavalent Arsenic | 0.050 mg/L ± 10% | 0.010 mg/L | 88.% | |
| Fluoride | 8.0 mg/L ± 10% | 1.5 mg/L | 94.% | |
| Cysts* | Minimum 50,000/mL | 100.% | >99.99% | |
| Turbidity | 11 mg/L ± 1 NTU | 0.5 NTU | >99.1% | |
| Lead | 0.15 mg/L ± 10% | 0.010 mg/L | 99.% | |
| Selenium | 0.10 mg/L ± 10% | 0.05 mg/L | 98.% | |
| Copper | 3.0 mg/L ± 10% | 1.3 mg/L | 99.% | |
| Cadmium | 0.03 mg/L ± 10% | 0.005 mg/L | 99.% | |
| Hexavalent Chromium | 0.3 mg/L ± 10% | 0.1 mg/L | 96.% | |
| Trivalent Chromium | 0.3 mg/L ± 10% | 0.1 mg/L | 98.% | |
| Radium 226/228 | 25 pica/L ± 10% | 5 pica/L | 80.% | |
| Barium | 10.0 mg/L ± 10% | 2.0 mg/L | 96.% |
Tested under standard laboratory conditions as specified above. Actual performance may vary depending on influent water conditions.
*NSF/ANSI Standard 58 certified to reduce cysts such as Cryptosporidium and Giardia by mechanical means.
Arsenic Fact Sheet
Arsenic (abbreviated As) is found naturally in some well water. Arsenic in water has no color, taste or odor. It must be measured by a lab test. Public water utilities must have their water tested for arsenic. You can get the results from your water utility. If you have your own well, you can have the water tested. The local health department or state environmental health agency can provide a list of certified labs. There are two forms of arsenic: pentavalent arsenic [also called As(V), As(+5), and arsenate] and trivalent arsenic [also called As(III), As(+3) and arsenite]. In well water, arsenic may be pentavalent, trivalent, or a combination of both. Special sampling procedures are needed for a lab to determine what type and how much of each type of arsenic is in the water. Check with the labs in your area to see if they can provide this type of service. Reverse osmosis (RO) water treatment systems do not remove trivalent arsenic from water very well. RO systems are very effective at removing pentavalent arsenic. A free chlorine residual will rapidly convert trivalent arsenic to pentavalent arsenic. Other water treatment chemicals such as ozone and potassium permanganate will also change trivalent arsenic to pentavalent arsenic. A combined chlorine residual (also called chloramine) may not convert all the trivalent arsenic. If you get your water from a public water utility, contact the utility to find out if free chlorine or combined chlorine is used in the water system. The GRO-350B system is designed to remove pentavalent arsenic. It will not convert trivalent arsenic to pentavalent arsenic. The system was tested in a lab. Under those conditions, the system reduced 0.050 mg/L (ppm) pentavalent arsenic to 0.010 mg/L (ppm)(the USEPA standard for drinking water) or less. The performance of the system may be different at your installation. Have the treated water tested for arsenic to check if the system is working properly. The RO component of the GRO-350B system must be replaced every 12-24 months to ensure the system will continue to remove pentavalent arsenic. The component identification and locations where you can purchase the component are listed in the installation/operation manual.
NOTES
For Pentair
Product Warranties visit: Pentair.com/assets/residential-filtration-warranty
13845 BISHOPS DR., SUITE 200, BROOKFIELD, WI 53005
CUSTOMER CARE: 800.279.9404 | [email protected] | pentair.com
©2022 Pentair. All rights reserved. All indicated Pentair trademarks and logos are property of Pentair.
Third party registered and unregistered trademarks and logos are the property of their respective owners..
4006799 Rev A AU22

CAUTION: This procedure may generate dusts which can cause severe irritation if inhaled or come in contact with the eyes. The use of safety glasses and safety mask for this procedure is recommended.
(B) Using the fitting hole of the drain clamp as a guide, drill a 1/4″ hole through one side of the drainpipe.
(A) Align the larger reject 3/8″ red tubing from the faucet with the compression nut on the drain clamp. Create as straight and smooth a path as possible with the tubing. Do not kink tube. Cut the tubing squarely and remove any internal and external burrs. Insert inner tube insert (white cone) into end of 3/8″ red tubing. Remove compression nut from the drain clamp. Place compression nut on end of 3/8″ red tubing.

(C) Cut the tubing to correct length. Install free end of tubing into white quick-connect fitting on the system. Ensure the tubing does not kink. Retain remaining blue tubing for use in connecting system to water supply adapter. Some installation sites may require additional tubing not provided in kit.
• Cut the tube to a length that will allow connection to the Water Supply Adapter. Ensure the tubing does not kink. Place a mark on the tubing 5/8″ from the end. Moisten the end of the tubing with water and insert with a twisting motion push into quick connect fitting on the Water Supply Adapter.
(A) Turn off valve at top of storage tank.

















