HOMEDEPOT SXB0812AAB Black Velvet Upholstered Frame Queen Platform Bed with Channel Tufting and Nailhead Trim

Thank you for purchasing this quality product. Be sure to check all packing material carefully for the small parts that may have come loose inside the carton during shipment.
ASSEMBLY INSTRUCTIONS
- Item No: WF290811-WF290812
- Description: UPHOLSTERED BED


TOOLS REQUIRED (Not provided)
![]()
- Screwdriver
HARDWARE LIST

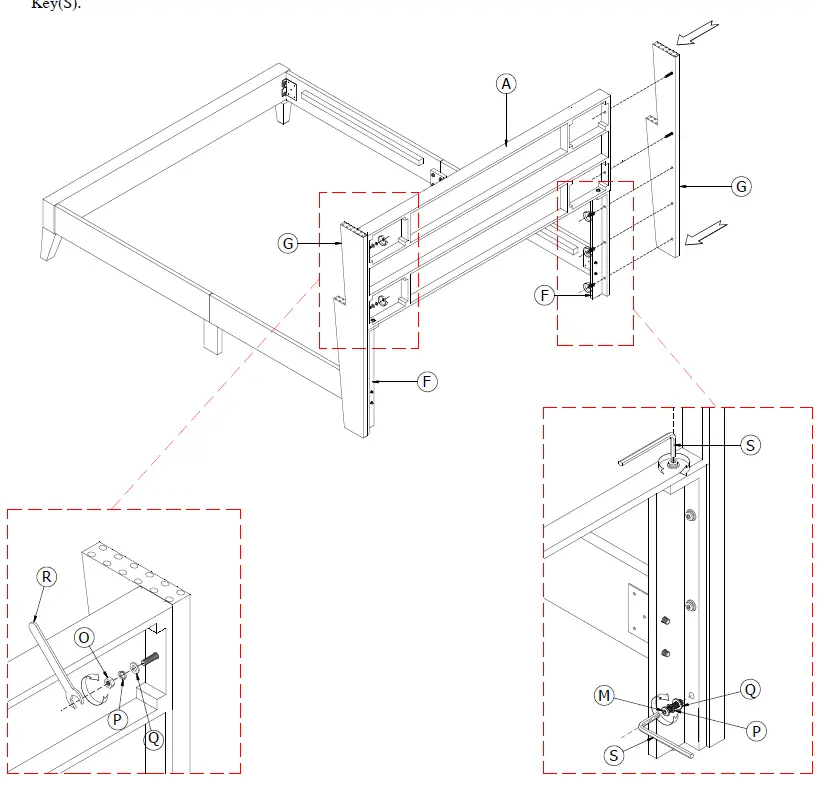
Step 1: Attach the Thread Bolt(N) to the HB Posters L/R(G) cushion, onto pre-drilled holes and secure by hand. Then put, the Leg(C) with the Footboard(B) by using the Bolt(L), Spring Washer(P), Flat Washer(Q), and Allen Key(S).


Step 2: Put the Side Rail(D;E) symmetrical. Next put the Support Side Rail(K) them with the by using the Bolt(M),Spring Washer(P), Flat Washer(Q) and Allen Key(S).


Step 3: Before performing this step, please loosen the Bolts of the Leg Pillar L/R(F) cushion and Footboard(B), intended to hook metal Rail(D;E) is securely inserted into the Bolts, then tighten them with the Allen KeyS).


Step 4: Put the Headboard(A) up Leg Pillar(F) Next the by using the Bolt(M), Spring Washer(P), Flat Washer(Q) and Allen Key(S).
Note: in this step only use the hand to turn the bolt.


Step 5: Take HB Posters L/R(G)) cushion already installed the Thread Bolt(N). Put and align the drill holes to link with Headboard(A), by using the Flat Washer(Q), Spring Washer(P), Hexagonal Nut(O). At the same time, use the Bolt(M), Spring Washer(P), Flat Washer(). Finally, then tighten them with by using use the Open Wrench(R) and Allen Key(S).



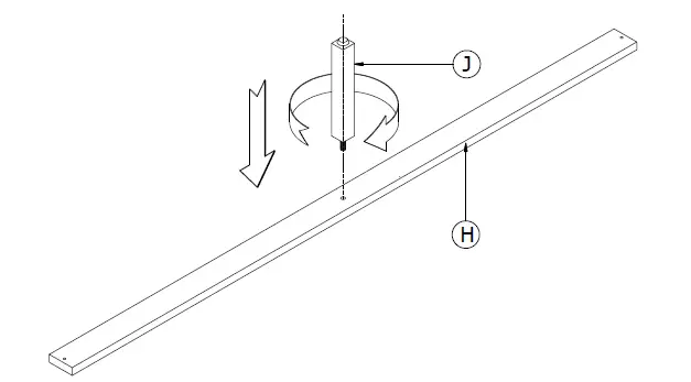
- Take use the Support leg(U) to the hole center of the Slats(H) one by one, and tighten them together.

Step 6: Put the Slat clusters on the Side rail(D;E) of the bed to be neat, then tighten they are by Screws(T).


MADE IN VIETNAM




















