ella Acrylic Elite Walk-In Tub

Unpacking and Inspecting

Inspect the carton for damage: Take a picture if possible. CAREFULLY RECORD ALL PERCEIVED DAMAGE DO NOT LIFT THE TUB BY THE PLUMBING. Doing so can result in leaks, for which the installer is responsible. All Walk-In Tubs are water tested before they leave our factory and the bath tub you have purchased has passed inspection. Inspect the plumbing for any fittings that may have loosened in transit.
You must follow all the instructions in this manual.
FAILURE TO READ AND COMPLY WITH ALL INSTRUCTIONS CAN RESULT IN PRODUCT DAMAGE OR INJURY TO BOTH INSTALLER AND HOMEOWNER. IT WILL ALSO RESULT IN ASSUMPTION OF ALL LIABILITY BY SAID INSTALLER
NOTE: Returns are only accepted in original packaging used for shipping. Use caution so as not to damage cardboard crate or its wooden pallet. Do not dispose of shipping material until installation is complete. Please visit our website, www.ellasbubbles.com for complete details of return/exchange policy.
Warnings and Labels
Your Ella’s bathtub comes with several warning label stickers throughout and are as follows:
- WARNING: GRAB BAR WASHERS MUST BE INSTALLED TO PREVENT CRACKING OF THE ACRYLIC SHELL WARRANTY IS VOID OTHERWISE.

- MAKE SURE AIR PIPE CONNECTION TO PUSH CONTROLS IS PROPERLY TIGHTENED AND THAT PUSH CONTROLS ARE FUNCTIONING PROPERLY BEFORE FINALIZING INSTALLATION OF TUB.

- REMOVE END PANELS BEFORE ATTEMPTING TO MOVE OR CARRY. FAILURE TO DO SO CAN LEAD TO DAMAGING AIR JETS AND OTHER COMPONENTS OF THE BATHTUB.

- Backnut MUST be securely tightened. Failure to do so will cause loosening over time resulting in it coming apart and falling down the drain.

- Drain must open completely to drain properly and close completely to avoid unnecessary drainage.

PLEASE READ BEFORE BEGINNING INSTALLATION
WARNING: Do not attach the hand held shower to the wall unless you have an extension hose with a barrel protection. This may cause water to leak behind your walk in tub.
TO INSTALL BARREL EXTENSION HOSE:

- Star by unscrewing your shower head mixer from the hose.
- Next take your stainless steel barrel and screw it on the end of the hose.

- Take your extension hose and screw t end to the opposite side of the barrel.
- Place th barrel in the shower base to plug the hole.
- Finally, screw on the shower head mixer to the other end of the extension hose.
Moving your Ella Walk in Bath

- Remove all four (4) access panels before moving the tub
- Take off the screw caps
- Unscrew the screws with a Philips head screwdriver
- Remove the end access panel
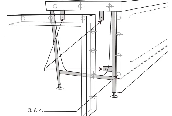
WARNING: Do not carry the walk in tub by the panels. Be careful when carrying the tub, avoid front panel contact with the floor or stairs to prevent damages. Make sure no loose parts are hanging down. Remove all four (4)access panels before carrying the tub to prevent them from falling out and breaking.
WARNING: Lift and carry the tub only by the frame. Protect the bottom of the tub to avoid breaking the air jets positioned on the bottom of the tub.
Important Safety Instructions
Read through the entire manual completely before beginning installation
Contract a licensed plumber and electrician for installation. Be sure you and your contractor are aware and follow all local plumbing and electrical codes. Your Ella Walk
in Bath is not intended for outdoor use. Install the tub in accordance with the instructions
in the manual. Use ONLY the parts and accessories provided or as recommended by the manufacturer.
CAUTION:
When using this product, basic precautions should always be followed. Read and follow all instructions pertaining to risk of fire, electric shock and injury. Make sure and have your licensed electrician test all connections to the dedicated line, including the GFCI.
Risk of electric shock; Do not permit electric appliances within 3 feet (1.5m) of the tub. i.e.: hair dryers, lamps, phones, radios, televisions, etc.
To reduce the risk of injury, do not permit children or persons with disabilities to use this product unless they are supervised by an able-bodied adult at all times. Never drop or insert any objects into any openings.
Do not turn on the Hydro jets without water reaching the waterline. The waterline is the point where all jets are covered with water.
DANGER:
Temperature in excess of 100.4 Fahrenheit (38 Celsius) may be harmful to your health. Check and adjust the temperature before use. Consult your physician before using your Ella Walk in Bath if you have a heart condition or other health issues. People using medications, herbal remedies, sleep aids, and/or having adverse medical history should consult a physician before using this product.
Pregnant women should NOT use this product before consulting their physician. Avoid the use of alcohol, drugs or other medications while using your walk in bath.
Be aware, hyperthermia is a risk when raising body temperature. Do no keep body submerged in heated bath for extended periods of time. The symptoms of hyperthermia include an increase in body temperature which can cause dizziness, lethargy, drowsiness and fainting. Avoid using the heated bath after strenuous activity.
Exercise caution while entering and exiting your Ella Walk in Bath.
USE TUB ONLY AS INTENDED! FAILURE TO DO SO CAN LEAD TO INJURY OR DEATH
WARNING: BATHER SHOULD ONLY SIT AS SHOWN IN FIGURE TO THE LEFT. SIT FULLY IN SEAT WITH BACK ON THE BACKREST. DO NOT ATTEMPT TO SLOUCH OR LIE DOWN IN THE FOOT WELL AREA! DO NOT ATTEMPT TO PUT YOUR FEET UP ON OPPOSITE SIDE OF TUB!
In the case of bathers who do not have all functioning limbs or are paralyzed, bather must be attended by caregiver at all times and use an installed safety belt at all times.
WRONG POSITIONING
Required Steps Prior to Installation
Protecting the Bath
Cover and protect the bath shell and fixtures from scratches or other damages during the installation and tests. Remove the access panels when moving the Walk in Bath and always lift the bathtub from the frame.
Electrical
The unit MUST be connected to a circuit protected by a ground fault circuit interrupter
(GFCI) provided and installed by a licensed electrician and tested periodically (refer to instructions provided by GFCI manufacturer). Electrical requirements vary based on package; please refer to package diagrams included in the specifications. A licensed electrician for your area is required to install and test the electrical installation process. DO NOT use any kind of extension cords to power the unit.
Operating the pumps without first filling the bath to above the jets can cause permanent damage to your equipment.
Push the GFCI “test” button into “reset” mode. If the GFCI fails to operate in this manner, there is a ground current flow or a device malfunction, indicating the possibility of electrical shock. If this occurs, turn OFF the power and do not use the bathtub until the source of the problem has been identified and corrected.
Water Test
It is important to test that the Hydro and Air Pumps are functioning properly before final in-wall installation to avoid unnecessary repairs or removal.
- Place the tub on a completely flat surface in an area where it may be drained after testing.
- Using a clean rag and warm water wipe down seal to insure it is free of debris.
- Seal the drains (this can be done with tape) and fill the tub to at least three inches above the highest jet, or to the bottom of the grab bar if no jets are present.
- Allow the water to stand in tub for 30 minutes and then inspect all plumbing and seals for leaks.
- Using appropriately rated three-prong extension cords, all plugged in to separate outlets, operate all electrical components (air blower, water pump, and heater if applicable) for another 30 minutes and inspect for leaks again. Inspect the unions around the pump and heater.
- If a leak persists at a union after tightening, it may have been over-tightened or might have a displaced O-ring. Disassemble it and make sure the O-ring was seated properly. Do the same if a leak persists at the heater. Verify that the heater threads match the pipe threads.
2″ T Type Dual Port Dual Drain

Drain and Plumbing Positioning Options for 2″ T Type Dual Port Drain Systems

Door and Frame Adjustments
Prepare the sub-floor for the drain and ensure that the area is level. The supporting sub-floor must be able to support the total weight of the bathtub, bather and water and must meet local construction code requirements.
Use a level and make sure that the sub-floor below the tub is leveled. If the floor is not perfectly level, adjust the appropriate leveling legs to re-align the tub to perfect level. It is important that all of the leveling legs are completely supporting the tub (touching the floor with equal weight distribution) and the tub is leveled for the door seal to work properly. If the tub is not perfectly leveled, it may cause frame and shell warping which can cause changes in door alignment resulting in water leakage and void the warranty.
DISCLAIMER: The frame specifications and configuration vary based on model. If the sub-floor does not support the total weight of the bath, bather and the water, it can result in warping of the shell, misalignment of the door and/or create leaks and could lead to damage of your home.
Your walk in bathtub has been tested and leveled properly before leaving our facility. Our walk in bathtubs have been set on a perfectly level surface to ensure no leaks and proper door closing. It is up to your installer to test and make any adjustments necessary to ensure that all leveling legs support the tub frame and that the door is aligned correctly to prevent any leaks. The door must close smoothly to create a water tight seal.
Extending or shortening the legs will help correct any alignment issues to close the gap between the door and the frame. Please call us immediately if any issues arise or if you have any concerns. 1-800-480-6850.
DISCLAIMER: The frame specifications and configuration vary based on model. If the sub-floor does not support the total weight of the bath, bather and the water, it can result in warping of the shell, misalignment of the door and/or create leaks and could lead to damage of your home.
WARNING: Failure to level the tub correctly WILL RESULT IN MISALIGNMENT! The drawings below illustrate some examples of what types of frame warping will occur if the legs are not level with the floor.
Service Access and Ventilation
It is the responsibility of the installer or owner to provide access for service required, per code. Ella is not responsible for any costs related to obtaining access for repair. The owner shall assume responsibility for such costs, and if appropriate, must seek recovery from the installer.
Do not insulate around the tub equipment. The tub, frame and all parts have been engineered to provide the proper ventilation. Any obstructions may cause the pumps or other electrical components to overheat.
Door Seal
Please keep in mind that the door has been closed for an extended period of time throughout shipping and the bathtub has been stored in various temperatures. It is possible for the silicone seal to stick to the frame when stored for extended periods of time. When the bathtub is received, the door seal should be checked for deformations from shipping and re-formed and adjusted where necessary. To restore the door seal, the seal must be released and allowed to relax with the door open. This is done by squeezing the seal with your finger tips and pulling it away from the door frame to regain its flexibility and original form. It is recommended that the door be kept open when not in use to increase the lifetime of the door seal and maintain its flexibility.
Installation of Deck Mount Grab Bar

Parts List:
- Chrome grab bar x (1)
- Escutcheon x (2)
- Rubber washers x (4)
- Metal washers x (2)
- Bolts x (2)
WARNING: GRAB BAR WASHERS MUST BE INSTALLED TO PREVENT CRACKING OF THE ACRYLIC SHELL, FAILURE TO DO SO WILL VOID THE WARRANTY.
To install the supplied grab bar first locate all the parts needed for installation. See drawing shown above. Ready the bolt assembly by first placing a metal washer onto the bolt followed by a rubber washer. Feed the bolt up through the tub shell and place another rubber washer over the extruded bolt followed by the escutcheon. You may start the threading into the grab bar to hold the assembly loosely in position and then repeat the process for the second bolt. Once the entire assembly is in place, tighten the bolts with the supplied Allen wrench.
Installing Extension Kits

- Deluxe Dimensions: 5″W x 29 1/2″L x 37″H
- Elite Dimensions: 7″W x 29 3/4″L x 37 3/4″H
- Royal Dimensions: 7″W x 31 3/4″L x 37 3/4″H
- Petite Dimensions: 7″W x 27 2/4″L x 37 3/4″H
- L” Stainless Steel Brackets ………………………Qty (3)
- L” Acrylic Bracket ………………………………….Qty (1)
- 1″ x 1/8″ Bolts ………………………………………..Qty (7)
- 1″ x 1/4″ Bolts ………………………………………..Qty (7)
- 1″ Screw ……………………………………………….Qty (1)
- 1/2″ Nuts ……………………………………………….Qty (9)
- 3/8″ Nuts ……………………………………………….Qty (7)
- Medium Washers …………………………………..Qty (14)
- Small Washers ……………………………………….Qty (14)
- Plastic Washer ………………………………………Qty (1)
- Plastic Cap ……………………………………………Qty (1)

- I nstall 3 extension support brackets provides in the kit.
- Clamp in place, the extension panel to the walk in tub shell, lining up the facade of top and front.
- Pre-drill (+3/8″) slightly wider holes than mounting screws to allow for final adjustment to the panel.
- Mount extension with 7 screws, washers and bolts.
- Apply Silicone or white caulking as needed.
Finishing Installation
After all of the water and electrical testing is completed and all fixtures are checked, the tub can be installed to the surrounding wall or walls. Ella Walk in Baths come with low rise tile flange which allows for two or one wall installations. The extension panel of the bathtub can be installed as needed for 60″ openings.
The tub can be finished and tiled over as shown in images. Caulking must be applied to joints, as needed after the bathtub, is installed.
Threshold Lowering Option
Lowering the threshold is an option that can be chosen during installation. Because your Ella Walk in Bath is set up for easy installation, lowering the threshold requires the drain option to be set up below the floor. To lower the Walk in Bath threshold; First, remove the toe kick panel to expose the adjustable leg supports. Adjust the height of the tub while keeping the Walk in Bath plumb level on all four corners. Finish the installation with baseboard.
NOTE: Any alterations or installed additions are the responsibility of the installer. Ella Accessible Bathrooms is not responsible for any damage to the unit or for water damage, which could occur due to improper installation.
LED Chromatherapy Light
Press the button once for a continuous stream of changing lights. To maintain a solid color (8 colors to choose from), continue to press the button until your desired light shines. To turn off, press and hold the button.
- Push Control Option: Push ON/OFF control labeled “Light” to turn the light On/Off.
- Digital Control Option: Push the button with the light bulb symbol to turn the light On/Off.
LED Light Shown Below
Warranty Information
This limited lifetime warranty is extended to the first purchaser to be free from defects in workmanship and material under normal use and conditions from the date of the original purchase. This warranty is nontransferable and applies only to the original owner and to the original installation place – address only and does not extend to products previously used as display models or products that have been modified or repaired by anyone else but Ella’s Bubbles. The warranty is void if the ownership or original installation location is changed (tub is relocated). This warranty relates to all fittings and components included with the tub from the manufacturer. The bathtub shell, frame, door seal, and finish are covered by limited lifetime warranty. The door is covered by a limited lifetime warranty under normal use and conditions. All supporting equipment, motors, pumps, fixtures, electronic controls, faucet, waste, overflow, and all plated finishes, are covered by a limited five (5) year warranty. This warranty is nontransferable and applies only to the original owner. The finish warranty does not apply to fading, cracking, delaminating or blistering due to excessive wear, sun fading or scouring due to cleaning. This warranty shall not apply to any failure resulting from negligence, abuse, misuse, misapplication, alteration, or modification or improper maintenance. The door warranty is valid only if the alignment of the door is not changed by applying pressure or user’s weight hold user’s weight to the door or by wrong installation. The door is designed to hold its own weight and not designed to hold user’s weight. Should service be required for any reason of any defect or malfunction of the product during the first five years, Ella’s Bubbles will ship the part to the original customer’s address without charge (subject to verification of the defect or malfunction). Ella’s Bubbles will not be liable for any incidental expenses or material charges in connection with removal or replacement of the product or parts. Delivery time is based on parts availability and location. Normally parts are sent out immediately. Emailed or mailed photos of defective product and description of the problem is required. defective product and description of the problem is required.
All mailing notifications must be sent via certified mail to:
Ella’s Bubbles, LLC.
2101 S. Carpenter Street Chicago, IL 60608
Email: i[email protected]
The Manufacturer will not be responsible for any water damage to structures or property for any reason including but not limited to manufacturer defect or improper installation. Manufacturer will assume no responsibility for the loss of the system, inconvenience due to loss, damage to real or personal property or any other consequential damage. Manufacturer will not be liable for any incidental expenses or material charges in connection with removal or replacement of the purchased part or any part or parts of the system. This warranty shall not apply to any type of failure resulting from negligence, abuse, misuse, misapplication, improper installation, alteration or modification, chemical corrosion or improper maintenance. There will be a charge for replacement parts or replacement of the entire electrical unit of the defective unit is returned for any of the reasons listed above. Ella’s Bubbles reserves the sole authority to make any type of warranties or representations concerning its products and will not be responsible for any warranties or representations made by any outside source including dealers, retailers, distributors or contractors. Ella’s Bubbles does not warrant the installation of any of our products. Items include: all plumbing or electrical related connections, improper or negligent installation of the product. Alteration made of, or alterations or modifications made to the system, may cause the product or the system to malfunction. Such problems are not covered by warranty.
TO THE EXTENT PERMITTED BY LAW, ALL IMPLIED WARRANTIES INCLUDING THOSE OF MERCHANTABILITY AND FITNESS FOR A PARTICULAR PURPOSE ARE HEREBY DISCLAIMED.
Ella’s Bubbles and seller hereby disclaim any liability for special, incidental, or consequential damages. Some states/provinces do not allow limitations on how long an implied warranty lasts, or the exclusion or limitation of special, incidental or consequential damages, so these limitations and exclusions may not apply to you. This warranty gives you specific legal rights. You may have other rights, which vary from state/province to state/province.
Disclaimer: Limited lifetime or 5 year parts warranty does not apply to thermostatic control valve (TCV).
TCV warranty is (1) year limited warranty which does not cover cartridge malfunction due to contaminated water with calcium, iron or other found heavy particles in the water resulting in cartridge getting stuck and TCV not operating properly. The TCV must be protected with filter or mesh in the water lines which must be cleaned periodically. Ella’s Bubbles offers cleaning service for the cartridges for a nominal fee: labor + shipping. The cartridge cleaning is done at Ella’s Bubbles facility, or it can be done by the contractor hired by customer. The removal and cleaning of TCV should only be performed by a licensed and insured contractor or plumber following online instructions here:
Warranty Activation Form
Upon completing the installation of an Ella Walk In Bath, the following Warranty Activation Form must be completed, signed by both the customer and installer, and returned to Ella’s Bubbles, LLC. In order for the Warranty to be activated (faxed, scanned, or emailed, or hard copy mailed).
To be initialed by the installer(s)
- Tub is level in all directions and all support legs are touching the ground.
- Tub is installed on a dedicated GFCI protected circuit
- Frame of the tub has been properly grounded.
- Door Seal has been cleaned with rubbing alcohol to remove any dust or debris left over from construction.
- Temperature Control Valve operated on both hot and cold settings.
- Both diverters function properly.
- Hand Shower functions on all settings without leaking.
- All supply lines have been checked for leaks while both diverters are on.
- Drains open and close properly, and the locking nut has been tightened on both stoppers.
- Door seal is water tight after tub has been filled for a minimum of 20 minutes. ____ After running for a minimum of 20 Minutes both the Hydro and Air Pumps are
functioning properly and all connections to the pumps and jets are water tight. - Chromatherapy Light and the Ozone Sterilization are working properly. (When the Ozone is on by itself it will make a light humming noise).
- All drain fittings have been checked for leaks while the tub is draining.
- Unit is installed with access to both plumbing and electrical connections.
To activate manufacturer’s warranty, please complete both pages and use one of the options below to submit.
Via mail: Ella’s Bubbles, LLC.
Warranty Department
2101 S. Carpenter St., Chicago, IL 60608
Via fax: 1-312-666-3551
Via email: [email protected]

























