
INSTALLATION INSTRUCTIONS
36″ Island Chimney Vent Hood ZV925
MONOGRAM.COM
Safety Information
BEFORE YOU BEGIN
Read these instructions completely and carefully.
- IMPORTANT — Save these instructions for local inspector’s use.
- IMPORTANT — Observe all governing codes and ordinances.
- Note to Installer — Be sure to leave these instructions with the Consumer.
- Note to Consumer — Keep these instructions with your Owner’s Manual for future reference.
- Skill Level — Installation of this appliance requires basic mechanical and electrical skills.
- Completion Time — 1 to 3 Hours. Proper installation is the responsibility of the installer.
- Product failure due to improper installation is not covered under the warranty.
- For Monogram local service in your area, visit monogram.com.
- For Monogram service in Canada, visit monogram.ca For Monogram Parts and Accessories, visit monogram.com/use-and-care/parts.
CAUTION
Due to the weight and size of these vent hoods and to reduce the risk of personal injury or damage to the product, TWO PEOPLE ARE REQUIRED FOR PROPER INSTALLATION.
WARNING
To reduce the risk of fire or electrical shock, do not use this range hood with any external solid-state speed control device. Any such alteration from the original factory wiring could result in damage to the unit and/or create an electrical safety hazard.
TO REDUCE THE RISK OF FIRE, USE ONLY METAL DUCTWORK.
WARNING
TO REDUCE THE RISK OF FIRE, ELECTRICAL SHOCK OR INJURY TO PERSONS, OBSERVE THE FOLLOWING: A. Use this unit only in the manner intended by the manufacturer. If you have any questions, contact the manufacturer.
B. Before servicing or cleaning the unit, switch the power off at the service panel and lock the service disconnecting means to prevent the power from being switched on accidentally. When the service disconnecting means cannot be locked, securely fasten a prominent warning device, such as a tag, to the service panel.
- For general ventilating use only. Do not use to exhaust hazardous or explosive materials or vapors.
- Structural framing, installation work and electrical wiring must be done by a qualified person(s) in accordance with all applicable codes and standards including fire-rated construction.
- Sufficient air is needed for proper combustion and exhausting of gases through the flue (chimney) of fuel-burning equipment to prevent back drafting. Follow the heating equipment manufacturer’s guidelines and safety standards such as those published by the National Fire Protection Association (NFPA), and the American Society for Heating, Refrigeration and Air Conditioning Engineers (ASHRAE), and the local code authorities. When applicable, install any makeup (replacement) air system in accordance with local building code requirements. Visit GEAppliances.com for available makeup air solutions.
- Local codes vary. Installation of electrical connections and grounding must comply with applicable codes. In the absence of local codes, the vent should be installed in accordance with National Electrical Code ANSI/NFPA 70-1990 or the latest edition.
CAUTION
To reduce risk of fire and to properly exhaust air, be sure to duct air outside — do not vent exhaust air into spaces within walls or ceilings or into attics, crawl spaces or garages.
READ AND SAVE THESE INSTRUCTIONS
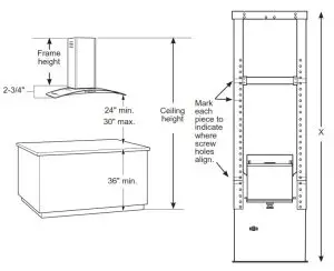
PRODUCT DIMENSIONS
These vent hoods are supplied with a support frame for ceiling heights of 7′-11″ to 10′-1″.
Decorative duct covers conceal the ductwork running from the top of the hood to the ceiling.
ZX92510 accessory is available for ceiling heights of 9′-1″ to 10′-1″.
NOTE: Installation height should be measured from the cooking surface to the bottom of the outer glass portion of the hood.

This hood must be installed 24″ min. and 30″ max. above the cooking surface. The cooking surface should be at least 36″ above the floor.
This hood may be vented to the outdoors, or it can be installed for recirculating operation.
This hood can be installed over any Monogram electric or gas cooktop. It cannot be installed over a Monogram Professional cooktop or range.
Installation Preparation
ADVANCE PLANNING
- Ductwork Planning These vent hoods are equipped for 8″ round ductwork.
- Determine the exact location of the vent hood.
- Plan the route for venting exhaust to the outdoors.
- Use the shortest and straightest duct route possible. For satisfactory performance, duct run should not exceed 100 ft. equivalent length for any duct configurations.
- Refer to the “Duct Fittings” chart to compute the maximum permissible length for duct runs to the outdoors.
- Use rigid metal ductwork only.
- Install a roof cap with a damper at the exterior opening. Order the cap and any transitions needed in advance.
- When applicable, install any makeup (replacement) air system in accordance with local building code requirements. Visit GEAppliances.com for available makeup air solutions.
Ductwork Planning
- These vent hoods are heavy. Adequate structural support must be provided. The ceiling structure must be capable of supporting the weight of the hood and any inadvertent user contact loads (approximately 200 pounds). The hood support frame will be supported by 2 x 4 cross framing.
- The installation will be easier if the vent hood is installed before the cooktop or countertop below is installed.
Accessory Duct Cover - All models are shipped with a duct cover for ceiling heights of 7′-11″ to 9′.
ZX92510 accessory 36-3/4″ duct cover is available to reach 9′-1″ to 10′-1″ ceiling heights. The accessory should be ordered with the hood and be on-site before final framing and wall finishing.
POWER SUPPLY
IMPORTANT – (Please read carefully)
WARNING FOR PERSONAL SAFETY, THIS APPLIANCE MUST BE PROPERLY GROUNDED. Remove house fuse or open circuit breaker before beginning installation.
Do not use an extension cord or adapter plug with this appliance. Follow National electrical codes or prevailing local codes and ordinances.
Electrical supply
These vent hoods must be supplied with 120V, 60Hz, and connected to an individual, properly grounded branch circuit, and protected by a 15 or 20 amp circuit breaker or time-delay fuse.
- Wiring must be 2 wires with the ground.
- If the electrical supply does not meet the above requirements, call a licensed electrician before proceeding.
- Route house wiring in the ceiling, as close to the installation location as possible. Allow additional length from ceiling joists to reach the junction box on the bottom of the hood support frame.
- Connect the wiring to the house wiring in accordance with local codes.
Grounding instructions
The grounding conductor must be connected to a ground metal, permanent wiring system, or an equipment-grounding terminal or lead on the hood.
WARNING
The improper connection of the equipment-grounding conductor can result in a risk of electric shock. Check with a qualified electrician or service representative if you are in doubt whether the appliance is properly grounded.
DUCT FITTINGS
This Hood Must Use an 8″ Round Duct. It Can Transition to a 3-1/4″ x 12″ Duct.
Use this chart to compute maximum permissible lengths for duct runs to outdoors.
NOTE: Do not exceed maximum permissible equivalent lengths!
Maximum duct length: 100 foot for range hoods.
Flexible ducting
If flexible metal ducting is used, all the equivalent feet values in the table should be doubled. The flexible metal duct should be straight and smooth and extended as much as possible.
DO NOT use flexible plastic ducting.
NOTE: Any home ventilation system, such as a ventilation hood, may interrupt the proper flow of combustion air and exhaust required by fireplaces, gas furnaces, gas water heaters and other naturally vented systems. To minimize the chance of interruption of such naturally vented systems, follow the heating equipment manufacturer’s guidelines and safety standards such as those published by NFPA and ASHRAE. When applicable, install any makeup (replacement) air system in accordance with local building code requirements. Visit GEAppliances.com for available makeup air solutions.


Total Duct Run
*Actual length of a straight duct plus duct fitting equivalent. The equivalent length of duct pieces are based on actual tests conducted by GE Appliances Evaluation Engineering and reflects requirements for good venting performance with any ventilation hood.
TOOLS AND MATERIALS REQUIRED (NOT SUPPLIED)

REMOVE THE PACKAGING

CAUTION
LIFT THE HOOD OUT OF THE BOX BY THE CENTER METAL PORTION. DO NOT LIFT BY THE GLASS SIDES.
CAUTION
Wear gloves to protect against sharp edges.
- Grasp the hood by the metal insert in the center and lift straight up and out of the box.
- Remove and properly discard the plastic wrapping.
- Remove parts box, duct covers and another packaging.
DETERMINE INSTALLATION HEIGHT
- Decorative duct covers are provided to conceal the ductwork running to the ceiling.
- This hood can be installed for recirculating operation. No kits are required.
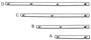
The hood installation height, from the cooking surface to the bottom of the hood, depends upon ceiling height. For optimum performance, the hood must be 24″ min. and 30″ max. above the cooking surface. Use the chart on this page to accurately determine installation height and support frame adjustment, and to select the correct size top trim piece (A, B, C or D). D
ZX92510 Accessory Duct cover includes a 36-3/4″ long duct cover and 3 sets of duct cover top trim pieces labeled E, F, G
| Ceiling Height | Possible Hood Installation Height (inches) | Mounting Frame Height (inches) | Trim Needed |
| 7′-11″ | 26 | 30 1/2 | A |
| 8’ | 27 | 30 1/2 | A |
| 8′-1″ | 24 | 34 1/2 | B |
| 8′-1″ | 28 | 30 1/2 | A |
| 8′-2″ | 25 | 34 1/2 | B |
| 8′-2″ | 29 | 30 1/2 | A |
| 8′-3″ | 26 | 34 1/2 | B |
| 8′-3″ | 30 | 30 1/2 | A |
| 8′-4″ | 27 | 34 1/2 | B |
| 8′-5″ | 24 | 38 1/2 | C |
| 8′-5″ | 28 | 34 1/2 | B |
| 8′-6″ | 25 | 38 1/2 | C |
| 8′-6″ | 29 | 34 1/2 | B |
| 8′-7″ | 26 | 38 1/2 | C |
| 8′-7″ | 30 | 34 1/2 | B |
| 8′-8″ | 27 | 38 1/2 | C |
| 8′-9″ | 24 | 42 1/2 | D |
| 8′-9″ | 28 | 38 1/2 | C |
| 8′-10″ | 25 | 42 1/2 | D |
| 8′-10″ | 29 | 38 1/2 | C |
| 8′-11″ | 26 | 42 1/2 | D |
| 8′-11″ | 30 | 38 1/2 | C |
| 9′ | 27 | 42 1/2 | D |
| ZX92510 Accessory Duct Cover | |||
| 9′-1″ | 24 | 46 1/2 | E |
| 9′-1″ | 28 | 42 1/2 | D |
| 9′-2″ | 25 | 46 1/2 | E |
| 9′-2″ | 29 | 42 1/2 | D |
| 9′-3″ | 26 | 46 1/2 | E |
| 9′-3″ | 30 | 42 1/2 | D |
| 9′-4″ | 27 | 46 1/2 | E |
| 9′-5″ | 24 | 50 1/2 | F |
| 9′-5″ | 28 | 46 1/2 | E |
| 9′-6″ | 25 | 50 1/2 | F |
| 9′-6″ | 29 | 46 1/2 | E |
| 9′-7″ | 26 | 50 1/2 | F |
| 9′-7″ | 30 | 46 1/2 | E |
| 9′-8″ | 27 | 50 1/2 | F |
| 9′-9″ | 24 | 54 1/2 | G |
| 9′-9″ | 28 | 50 1/2 | F |
| 9′-10″ | 25 | 54 1/2 | G |
| 9′-10″ | 29 | 50 1/2 | F |
| 9′-11″ | 26 | 54 1/2 | G |
| 9′-11″ | 30 | 50 1/2 | F |
| 10′ | 27 | 54 1/2 | G |
| 10′-1″ | 28 | 54 1/2 | G |
PARTS PROVIDED
Locate the parts packed with the hood.



HARDWARE PACKAGE

42 screws total:
- 24 support frame screws
- 10 hood attachment screws
- 2 upper duct cover attachment screws
- 4 recirculating deflector screws
- 2 duct cover bracket 2 Duct cover attachment screws brackets
Note: Some additional hardware/screws included.

CONSTRUCT CEILING SUPPORT
Plan the Location of the Hood and Ductwork
- Use a plumb bob to check the location. The countertop/cooktop below the hood must be centered with the hood.
- The hood should extend beyond the front and rear edge of the cooking appliance.
- The duct in the ceiling must be centered over the cooktop.

Ceiling Support Structure
- At the hood location, install 2 x 4 cross framing between ceiling joists as shown. (2×4’s are required to support the weight of the hood.)
- Arrange cross framing in the ceiling to suit the existing structure.
- Your ceiling joists will be like one of the following examples.



- Secure each 2 x 4 block with at least four (4), #10 wood screws, 3″ long (not supplied). Use 8 wood screws total for the two supports.
- The cross framing must be accurately aligned to assure the correct positioning of the hood.
- The cross framing must be level in all directions. Check with a spirit level and adjust if necessary.

IMPORTANT: The ceiling structure must be capable of supporting the weight of the hood (approximately 200 pounds) and any inadvertent user contact loads. The hood support frame will be supported by the 2 x 4 cross framing.
Ductwork for Installations Vented to the Outdoors

- Use the shortest and straightest duct route possible. For satisfactory performance, duct run should not exceed 100 feet equivalent length for any duct configuration.
- Refer to the “Duct Fittings” chart to compute the maximum permissible length for duct runs to the outdoors.
- This vent hood must use 8″ round rigid duct.
- Install the house ductwork to run horizontally between ceiling joists or straight up through the roof.
Finish the Ceiling
- Finish the ceiling surface. Be sure to mark the location of the ceiling joists and cross framing. Check to be sure the ceiling is level; use shims if necessary.
INSTALLATION—VENTED TO THE OUTSIDE
MOUNT TEMPLATE
- Align the template with the marks on the ceiling and tape in place.
- Be sure the template is oriented correctly with the front of the hood.
- Use a plumb bob to be sure the mounting holes will provide parallel alignment with the countertop below.
- Center punch all hole locations.
- Drill pilot holes in the 4 screw locations. Use a 3/16″ bit and drill approximately 1-1/2″ deep.
- Drive 4 hex head wood screws into the center of the ceiling joists and cross framing. Leave a 1/4″ gap to allow the screw head to engage the keyhole slots on the support frames.
- Cut the 8-1/2″ duct opening through the sheetrock.

ADJUST FRAME HEIGHT
- Measure exact ceiling height.
- Find the exact frame height required on the chart on page 7.
- Remove 2 screws on each of the 4 sides of the frame to loosen the upper structure, lower structure and blower/ motor.
- Adjust the height “X”, according to the chart on page 7. Use a total of 32 screws (8 screws on each side) to secure the upper structure, lower structure, and blower/motor together.

CUT DUCT TO LENGTH FOR VENTED
- Measure from house duct to exhaust opening.
- Cut the 8” duct length to size.
- Slip duct over the exhaust opening.
- Seal the connection with duct tape.

INSTALL THE SUPPORT FRAME

- Raise the support toward the ceiling.
- Thread the house wiring through one of the large holes, preferably on the left side.
- Carefully engage the ceiling mounting screws to the keyhole slots AND the house duct in the top of the frame.
- Tighten the 4 mounting screws against the frame.
- Install 2 safety screws.
- Use duct tape to seal the duct connection at the top.

INSTALL HOOD ATTACHMENT SCREWS
- Install 4 hood attachment screws in the bottom of the support as shown. Leave a 1/4” gap between the screw head and support flange.

MOUNT THE HOOD ONTO THE SUPPORT
WARNING 2 people are required to lift and position the hood onto the mounting bracket.

- Lift the hood to the bottom of the support, engaging the keyhole slots to the 4 mounting screws.
- Tighten the 4 mounting screws.
- Install 6 additional screws as shown.

CONNECT CABLES
- Join the two cable connectors at the front of the hood. Secure the cables behind the retainer clip.

CONNECT ELECTRICAL
Verify that power is turned off at the source.
WARNING If house wiring is not 2-wire with a ground wire, a ground must be provided by the installer. When house wiring is aluminum, be sure to use U.L. approved anti-oxidant compound and aluminum-to copper connectors.
- Remove junction box cover and knockout on the left side.

- Secure the house wiring to the junction box with strain relief.

- Connect white leads to branch circuit white lead.
- Connect black leads to branch circuit black lead.
- Connect green/yellow leads to branch circuit green lead or bare ground lead.
- Secure all connections with wire nuts on each electrical connector.
- Push wires into the junction box and replace the cover. Be sure wires are not pinched.
- Secure J-Box cover with original screw.
PREPARE THE DUCT COVERS

- Remove the plastic protective covering on all duct pieces.
- Install 3 cage nuts on each inside section of the top duct cover. The cage nuts fit into the rectangular slots, clips facing outward.
- Install 3 cage nuts on each side of the lower duct covers.
INSTALL UPPER DUCT COVER

- Place the tall duct covers onto the top of the hood. This section has venting holes on one end.
NOTE: If you are installing this hood for recirculating operation, place the duct covers onto the hood with the venting slots at the top. If the hood is vented to the outside, the holes should be positioned on the bottom. - Secure the sides with 6 screws installed through the cage nuts.
- Raise the assembled duct covers to the top, against the ceiling.
- Match mounting holes, one on each side. Install screws through the duct and into the support.
INSTALL LOWER DUCT

- Place rear duct cover onto the hood.
- Place front duct cover onto the hood.
- Secure the duct covers with 6 screws.
INSTALL DUCT COVER TRIM

- Install side brackets to secure the lower duct tightly against the upper duct.
- Hold lower-trim strips (narrow pieces) with hooks facing down. Place the hooks inside the slots and slide downward.
- Select the correct size upper trim strips and press them into place.
INSTALL METAL FILTER

IMPORTANT: Check to be sure that the main ON/ OFF switch next to the motor is in the ON position.
- Tip the filter into the left or right side of the opening. Lift the filter to the opposite side and into the filter lock.
- To remove the filter, pull the filter lock downward.
FINALIZE INSTALLATION
■ Remove all tape and packing material.
■ Refer to the Owner’s Manual for operating instructions.
INSTALLATION—RECIRCULATING
MOUNT TEMPLATE

- Align the template with the marks on the ceiling and tape in place.
– Be sure the template is oriented correctly with the front of the hood. - Use a plumb bob to be sure the mounting holes will provide parallel alignment with the countertop below.
- Center punch all hole locations.
- Drill pilot holes in the 4 screw locations. Use a 3/16” bit and drill approximately 1-1/2” deep.
- Drive 4 hex head wood screws into the center of the ceiling joists and cross framing. Leave a 1/4” gap to allow the screw head to engage the keyhole slots on the support frames.
- Cut the 8-1/2” duct opening through the sheetrock.
ADJUST FRAME HEIGHT
- Measure exact ceiling height.
- Find the exact frame height required on the chart on page 7.
- Remove 2 screws on each of the 4 sides of the frame to loosen the upper structure, lower structure and blower/ motor.
- Adjust the height “X”, according to the chart on page 7. Use a total of 32 screws (8 screws on each side) to secure the upper structure, lower structure, and blower/motor together.

NOTE: Low ceilings may require that the lower portion of the support frame be removed. The upper support frame may be secured directly to the blower/motor. Refer to the chart on page 7 for your ceiling height and to be sure the duct cover trim piece will fit.
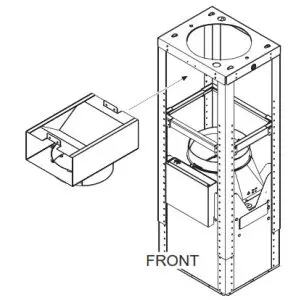
INSTALL AIR DEFLECTOR, CUT DUCT FOR RECIRCULATING OPERATION
- Temporarily, slide the air deflector into the support frame.

- Measure duct length between the deflector and over the exhaust opening.
- Cut duct piece to length and set aside.

INSTALL UPPER SUPPORT FRAME
- Raise the upper support toward the ceiling.
- Thread the house wiring through one of the large holes, preferably on the left side.

- Carefully engage the ceiling mounting screws to the keyhole slots in the top of the frame.
- Tighten the 4 mounting screws against the frame.
- Install 2 safety screws.

- Slide air deflector into the support frame.
- Secure the deflector to the support with 4 screws.
- Install the duct piece to the bottom of the deflector and seal the connection with duct tape.

INSTALL LOWER STRUCTURE TO UPPER STRUCTURE
- Slide lower frame into the upper frame. Match the marked alignment holes.
- Secure the upper and lower frame with 16 screws, 4 on each side of the frame.

INSTALL BLOWER/MOTOR
- Raise the blower/ motor piece toward the assembled frame.
- Carefully raise the motor to the marked reference point while making sure the duct piece slips over the blower outlet flange.
- Secure the blower/motor to the frame using 16 screws, 4 on each side.
- Use tape to seal the duct connection.

INSTALL HOOD ATTACHMENT SCREWS
- Install 4 hood attachment screws in the bottom of the support as shown. Leave 1/4” gap between the screw head and support flange.

MOUNT THE HOOD ONTO THE SUPPORT
WARNING 2 people are required to lift and position the hood onto the mounting bracket.
- Lift the hood to the bottom of the support, engaging the keyhole slots to the 4 mounting screws.
- Tighten the 4 mounting screws.
- Install 6 additional screws as shown.

CONNECT CABLES
- Join the two cable connectors at the front of the hood. Secure the cables behind the retainer clip.

CONNECT ELECTRICAL
Verify that power is turned off at the source.
WARNING If house wiring is not 2-wire with a ground wire, a ground must be provided by the installer. When house wiring is aluminum, be sure to use U.L. approved anti-oxidant compound and aluminum-to copper connectors.
- Remove junction box cover and knockout on the left side.

- Secure the house wiring to the junction box with strain relief.
- Connect white leads to branch circuit white lead.
- Connect black leads to branch circuit black lead.

- Connect green/yellow leads to branch circuit green lead or bare ground lead.
- Secure all connections with wire nuts on each electrical connector.
- Push wires into the junction box and replace the cover. Be sure wires are not pinched.
- Secure J-Box cover with original screw.
PREPARE THE DUCT COVERS
- Remove the plastic protective covering on all duct pieces.
- Install 3 cage nuts on each inside section of the top duct cover. The cage nuts fit into the rectangular slots, clips facing outward.
- Install 3 cage nuts on each side of the lower duct covers.

INSTALL UPPER DUCT COVER
- Place the tall duct covers onto the top of the hood. This section has venting holes on one end.
NOTE: If you are installing this hood for recirculating operation, place the duct covers onto the hood with the venting slots at the top. If the hood is vented to the outside, the holes should be positioned on the bottom.
- Secure the sides with 6 screws installed through the cage nuts.
- Raise the assembled duct covers to the top, against the ceiling.
- Match mounting holes, one on each side. Install screws through the duct and into the support.
INSTALL LOWER DUCT COVER
- Place rear duct cover onto the hood.
- Place front duct cover onto the hood.
- Secure the duct covers with 6 screws.

INSTALL DUCT COVER TRIM
- Install side brackets to secure the lower duct tightly against the upper duct.
- Hold lower-trim strips (narrow pieces) with hooks facing down. Place the hooks inside the slots and slide downward.
- Select the correct size upper trim strips and press them into place.

INSTALL FILTERS
IMPORTANT: Check to be sure that the main ON/ OFF switch next to the motor is in the ON position.

Charcoal filter
- Install the black charcoal filter into the center opening. Secure the filter with thumbscrews on each side.

Metal filter
- Tip the filter into the left or right side of the opening. Lift the filter to the opposite side and into the filter lock.
- To remove the filter, pull the filter lock downward.
FINALIZE INSTALLATION
- Remove all tape and packing material.
- Refer to the Owner’s Manual for operating instructions.
NOTE: While performing installations described in this book, safety glasses or goggles should be worn. For Monogram ® local service in your area, visit monogram.com.
NOTE: Product improvement is a continuing endeavor at Monogram Appliances. Therefore, materials, appearance, and specifications are subject to change without notice.
49-80329 Rev. 5
10-19 GEA
Printed in Mexico








































