Statement 40XW
In-Wall Backbox Install Manual

WARNING!
- Refer servicing to a qualified technician.
- To prevent fire or shock hazard, do not expose this module to moisture.
- Turn the amplifier off should any abnormal conditions occur.
- Do not drive speaker beyond its rated power.
The lightning bolt flash with an arrowhead symbol within an equilateral triangle is intended to alert the user to the presence of uninsulated “dangerous voltage” within the product’s enclosure that may be of sufficient magnitude to constitute a risk of electric shock.
The exclamation point within an equilateral triangle is intended to alert the user to the presence of important operating and maintenance (servicing) instructions in the literature accompanying the appliance.
The fire within an equilateral triangle is intended to alert the user to the potential of creating a fire hazard if they do not follow the instructions.
The dollar sign within an equilateral triangle is intended to alert the user that they run the risk of causing damage that could be potentially expensive to repair if they don’t follow the instructions.
Per the European Union WEEE (Waste Electrical and Electronic Equipment) directive effective August 13, 2005, we would like to notify you that this product may contain regulated materials which upon disposal, according to the WEEE directive, require special reuse and recycling processing. For this reason, Martin Logan has arranged with our distributors in European Union member nations to collect and recycle this product at no cost to you. To find your local distributor, please contact the dealer from whom you purchased this product, email [email protected] or visit the distributor locator at www.martinlogan.com. Please note, only this product itself falls under the WEEE directive. When disposing of the packaging and other related shipping materials, we encourage you to recycle these items through the usual channels.
Content Check List
The Statement 40XW In-Wall Kit ships in 2 boxes and includes the following items. Should you require assistance, please call our service department at (785) 749-0133.
Box 1: “Backbox Installation Pack”
In-Wall Back Box •2x Mounting Brackets •1x Bracket Spacer •10x Wood Screws (Packaged with Mounting Brackets)
Box 2: “Install Board Hardware Kit”
Install Board •Hardware Pack (12x Wood Screws •14x Sheet Rock Clips •14x Sheet Rock Screws)
CONNECTION
WARNING! Turn your amplifier off before making or breaking any signal connections!
These speakers are designed with easy-to-use push-style binding posts that accept bare wire (fig. 1).
Assign the same color to the (+) and (–) terminals on both the speaker and the amplifier. Make sure that all connections are tight.
For convenience during the installation process, Statement 40XW has binding posts on both the top and bottom of the enclosure. CONNECT TO ONLY 1 SET OF BINDING POSTS.
Protect Your investment
- Use an amp that approximately matches the speaker’s specified power handling.
- To avoid damage, turn down the volume of the speaker is distorting, sounds harsh, or the bass begins to break up.
- Tone controls and equalizers may increase the likelihood of distortion, especially at high volumes. Use these settings sparingly.
Break-in
When you first begin to play your speakers, they may sound a bit bass shy, due to the high quality, long-life components used in the drivers. Allow approximately 72 hours of break-in at 90 dB (moderate listening levels) before any critical listening.
SPEAkER PLACEMENT
Achieving Superior Imaging
For best performance and imaging, place the speakers equidistant to the primary listening position. It is recommended that the primary listening position be 1x -2x the distance between the speakers for optimal imaging. For example, if your speakers are 10 feet apart, then the optimal listening distance is between 10 and 20 feet away. Guidance for speaker height can be found on page 6 in the “PreInstallation Checklist” section.
Balancing Hard vs . Soft Surfaces Improves High- and Mid-Frequency Performance
Rooms that are “overdamped” with carpeting, drapes, and other sound absorbers can cause your system to be dull and lifeless. On the other hand, rooms can have so many hard surfaces that the system sounds like a gymnasium. Experiment by adding or removing soft surfaces until you find a mix that is right for you.
PAINTING THE SPEAKER GRILLE
IMPORTANT! The Statement 40XW grille is packaged with the driver assembly (STATE40XW) and not in the same packaging
as the install kit. The speaker includes an extra scrim.
- Remove the grille from the speaker. A protective cloth scrim is attached to the back of the grille with a low-tack adhesive. Remove this scrim by gently pulling it away from the grill and discarding it.
- Paint the grill, being careful not to plug the holes. Allow the paint to dry completely before proceeding. IMPORTANT! For best results use a spray rather than a brush or roller.
- Gently press the new scrim into place before reinstalling the speaker grille.
PRE-INSTALLATION CHECKLIST
NOTE: These instructions assume the mounting surface is of standard wood frame and conventional sheetrock construction. If you wish to mount the speakers to another type of material, you should contact a bonded contractor.
NOTE: See your local dealer for new construction preinstall brackets (sold separately).
WARNING! Before installing check local building codes to verify compliance with local regulations. WARNING! Before
installing check for obstructions behind drywall. To do this make a small cut-out, cutting at a 45° angle (this makes the hole easier to patch if you find obstacles. Only cut out the mounting hole after you have verified there are no obstructions behind
the drywall. WARNING! Use speaker cable rated for in-wall use. The UL standard is CL2, CL3, and CM. The CSA
standard is FT4. WARNING! Turn your amplifier off before making or breaking any signal connections.
- Be sure the wall framing is plumb and the stud spacing is correct. (16” Minimum – 18” Maximum on center stud spacing)
- Speaker wire should be ran to each of the designated stud bays before beginning the install. The in-wall back box has binding posts on the top and bottom for ease of connection only. Statement 40XW requires that only 1 connection be made
- Please ensure the chosen stud bays are clear of all obstructions. If plumbing, electrical, or another obstruction is present that cannot be safely relocated, please consult the backbox dimensional drawing to verify potential fitment interference
A simple and effective way to test for potential fitment issues is to use one of the included back box mounting brackets as a check gauge- placing it in the stud bay and moving it over possible interferences. If anything makes contact with the bracket, it will interfere with the backbox and must be relocated in order to use that stud bay. - The overall height of the Statement 40XW drivers is around 53” tall. We recommend that the seated ear level at the primary listening position(s) fall within the middle 40” of the driver assembly. Essentially makingsure that ear level is around 6.5” or more above the bottom of the lowest speaker driver. Please note, that the height of the in-wall enclosure will be the ultimate limiting factor on how high the speaker can be mounted within the stud bay. The large height of the driver assembly means that most typical seating heights will be well within the “sweet spot” of the speaker.
Tools you’ll need before sheet rock work:
-Tape Measure
-Laser Level (recommended)
-Ladder
-Power drill/driver
-#2 Phillips driver bit
-#2 Phillips Hand Screwdriver
-Wire Strippers
Sheetrock installation/finishing:
-Mesh sheetrock tape
-45 minute sheetrock joint compound
-Lightweight sheetrock mud
-Medium Grit Sanding Sponge
-½” or 5/8” sheetrock (depends on the installation requirements)
-General sheetrock finishing equipment
PLEASE NOTE: INSTALLATION IS A 2 PERSON JOB.
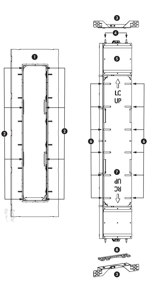
Part identifiCation
Install Board- Positioning Brackets
- Mounting Brackets
- Alignment Pins
- Back Box
- Positioning Bracket Pockets
- Positioning Board
- Bracket Spacerinstallation
installation
STEP 1: CRUCIAL STEP! ATTACHING THE BOTTOM BRACKET
1a Mark the desired bracket height from the floor on the studs.
1b Ensure the bracket is level using the attached bubble level. Once level, attach the bracket to the studs with
(4) included wood screws. Metal studs will require different screws that are not included.
1c Apply (1) spacer to the top of the bracket as shown, by peeling the backer off of the attached adhesive tape.
A simple and effective way to test for potential fitment issues is to use one of the included back box mounting brackets as a check gauge- placing it in the stud bay and moving it over possible interferences. If anything makes contact with the bracket, it will interfere with the backbox and must be relocated in order to use that stud bay.
1d Repeat the steps above for any additional 40XW bottom brackets if installing multiples. Use a laser level to ensure the speakers will be on the same plane once the installation is complete.
STEP 2: BACKBOX PREPARATION
2a Carefully remove the backbox from its packaging. Confirm the proper orientation of the backbox using the diagram on the positioning board:
LC UP = LEFT CHANNEL UP
RC UP = RIGHT CHANNEL UP
2b With the correct orientation pointing upwards, seat the remaining bracket on the top of the backbox by guiding the locating pins on the backbox into the holes in the top bracket. The top bracket should be oriented as depicted in the figure

STEP 3: BACKBOX INSTALLATION
3a With the correct orientation pointing upwards, lift the back box and seat it into the holes in the bottom bracket spacer using the locating pins for alignment.
3b Carefully push the backbox into the stud bay. Please ensure the top bracket can sit flush against the studs just like the bottom bracket. A helper should now hold the back box in place to complete the next step.
3c While the backbox is being held in place, ensure the top bracket is seated down firmly on the top of the backbox.
Then secure the bracket to the studs with (4) supplied wood screws. Metal studs will require different screws that are not included.

STEP 4: CONNECT SPEAKER WIRE TO TOP OR BOTTOM BINDING POSTS
4a Connect the speaker wire to either the top binding posts OR bottom binding posts. The in-wall back box has binding posts on the top and bottom for ease of connection only. Statement 40XW requires that only 1 connection be made. DO NOT CONNECT AN AMPLIFIER CHANNEL TO BOTH THE TOP AND BOTTOM, USE ONLY 1.
STEP 5: POSITIONING THE INSTALL BOARD
5a Carefully remove the install board from its packaging. Ensure the install board thickness matches that of the intended wall surface. Both 1/2” and 5/8” kits are available.
5b Position the install board on the backbox by seating the positioning brackets into the pockets on the positioning board. Ensure all brackets are fully seated and touching the bottom of their respective pockets.
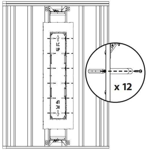
STEP 6: SECURING THE INSTALL BOARD
6a Secure the install board to the studs through the 12 slots indicated above using the (12) included wood screws. Metal studs will require different screws that are not included .
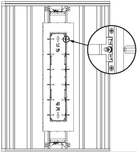
STEP 7: CRUCIAL STEP! ADJUSTING THE INSTALL BOARD
7a The adjustment blocks on the install board allow for fine-tuning of the speaker opening, ensuring perfect alignment of the finished installation. To lock in the desired install board adjustments, tighten the 12 adjustment blocks hand-tight with a Phillips screwdriver.
7b You may need to push in and hold down an adjustable bracket so it sits flush in it’s pocket while tightening the adjustment blocks. The goal is to make sure the install board sits as tight as possible to the positioning board first- and then lock in that position by tightening the adjustment block. Repeat for each of the 12 adjustment blocks as necessary.
7c After tightening all the adjustment blocks, push on the install board. If it can flex in any area, tighten the nearest adjustment block further.

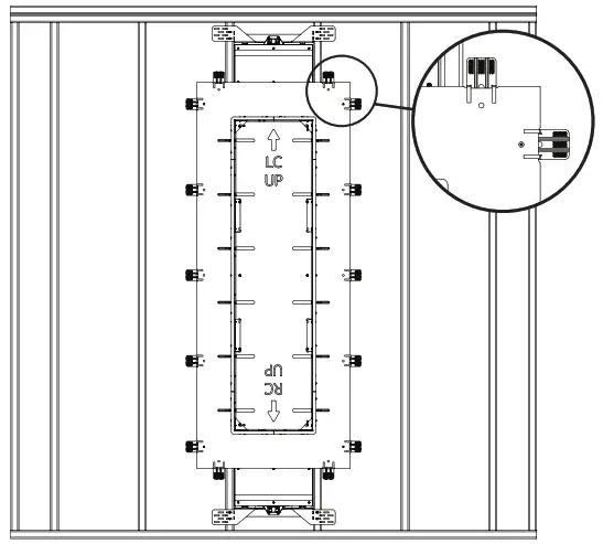
STEP 8: ATTACH SHEET ROCK CLIPS
8a Attach the included sheetrock clips to the install board in the 14 recessed locations around the perimeter. Ensure the “fingers” are facing forward.
8b Drive (1) included sheetrock screw through the face of the install board and into the sheetrock clip for each location as shown.
STEP 9: HANG THE SHEETROCK
9a Hang the sheetrock on the stud wall. The opening around the Fiberock® install board can be measured and cut before application. Alternatively, sheetrock can be loosely hung over the install board and then an opening cut with a drywall saw using the perimeter of the install board as a guide. If using this method, avoid cutting into the sheetrock clips.
NOTE: The surfaces of the sheetrock and install board will not be on the same plane. The clips force the sheetrock to be proud of the install board surface. This is done intentionally.
STEP 10: MATING SHEETROCK TO THE INSTALL BOARD
10a After securing the sheetrock to the studs as per normal construction, mate the install board to the surrounding sheet rock by driving a screw through the sheet rock into the other end of the sheet rock clip behind it. For easy reference, the clips will be direct across from the locations used in step 8.
10b When bridging the joint in two pieces of sheet rock, be sure to secure both to the clip. The example is shown in the magnified insert above.
STEP 11: BREAK OFF DRYWALL CLIP FINGERS
11a Snap off the drywall clip fingers using a back and forth motion as shown in the figure below.

STEP 12: SHEETROCK FINISHING PREPARATION
12a Apply mesh sheetrock tape to joints and slots as indicated in the diagram.
WARNING: Mesh sheetrock tape is required. Do not use traditional paper sheetrock tape.
STEP 13: SHEET ROCK FINISHING PART 1 – JOINT COMPOUND APPLICATION
13a Apply quick 45 minute joint compound to the install board. As noted in Step 9, the sheetrock will be sitting proud of the install board surface. Apply joint compound to the face of the install board, bringing it up level with the sheetrock. Be sure to fill in the connecting sheetrock sheet joints
13b After the compound has cured, sand in preparation for the lightweight coat.
NOTE: The sheet metal face of the install board must be exposed. Sand the area free of sheetrock mud buildup before proceeding to the next step.
STEP 14: SHEET ROCK FINISHING PART 2 –
LIGHTWEIGHT APPLICATION
14a Apply a coat of lightweight sheetrock mud. Make sure to float this coat out further than the previous joint compound coat, creating a smooth gradual transition between the install area and the surrounding wall surface.
14b After this coat has cured, begin the final sand. Touch up/reapply mud as necessary.
NOTE: The sheet metal face of the install board must be exposed. Sand the area free of sheetrock mud buildup before proceeding to the next step .
STEP 15: PAINTING TIPS
15a To make the painting process easier, all of the exposed areas in this step can be painted over. If spraying instead of rolling paint, please avoid applying paint directly into the gap between the install board and the positioning board.
15b (Optional) If you desire a grille color other than white, paint the speaker grille at this time if you have not already done so. (The speaker grille is packaged with the driver assembly of the Statement 40XW.)
The installation of the in-wall back box is now complete . You may now proceed to the installation of the Statement 40XW driver assembly. The instruction manual for that portion of the installation is included with the STATE40XW driver assembly.
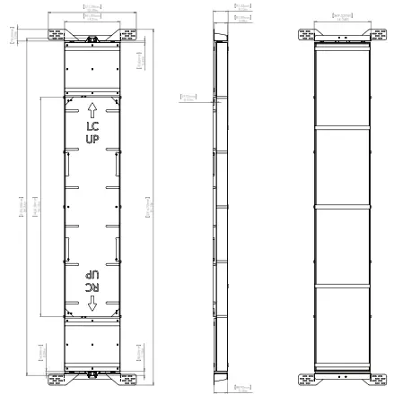
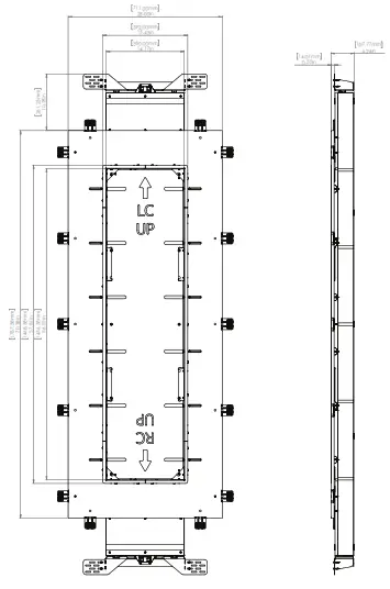
DIMENSIONS


Manuel d’installation du boîtier arrière murale

Lawrence, Kansas, USA tel 785.749.0133 fax 785.749.5320 www.martinlogan.com
DuPont™ and Nomex ® are trademarks or registered trademarks of E.I. du Pont de Nemours and Company. DuPont MC et Nomex
MD sont des marques commerciales ou des marques déposées de E.I. du Pont de Nemours et Compagnie.
©2020 MartinLogan Ltd. All rights reserved.
Install Board


















