ZP6-ESP-PRO Universal 2 Position Forced Air Zoning System
Installation Guide
ZP6-ESP-PRO
UNIVERSAL POSITION 2- FORCED AIR ZONING SYSTEM
ZP6-ESP-PRO Universal 2 Position Forced Air Zoning System


OVERVIEW
The 6-ESP-PRO is a residential and light commercial forced air zone control systems that allows ZP a single HVAC unit to have up to 6 separate zones. The system can be expanded to as many as 12 zones by adding 3-zone expansion panels. The panel can be used with single stage or multi-stage heat/cool equipment as well as heat pump and duel fuel systems having up to 4 stages of heating and 2 stages of cooling. Simple slide switch configurations allow for a wide range of system setup and control options best suited for each zoning application. The ZP6-ESP-PRO incorporates an integrated ESP static pressure control logic designed to eliminate the need for a conventional bypass damper when used with 3-wire zone dampers. A Graphics Display Module (GDM) allows real time monitoring of discharge air, return air and outside air temperature when used with appropriate sensors. The GDM is also used to set high and low limits, high and low outdoor balance points, timed upstaging and selection of designated ESP zones.
SEQUENCE OF OPERATION
Each zone is controlled by its own space thermostat and motorized zone damper. If any zone thermostat calls for heating or cooling, the zones not calling will have their dampers powered closed and the zones calling will have their dampers powered open. The heating or cooling equipment will be brought on at the same time. When all zones are satisfied, the heating or cooling equipment turns off. Zone dampers then reposition based on ventilation mode selection. The system can be set up to operate in either Cooling Priority Majority Wins or mode of operation.
COOLING PRIORITY:
When zones call for heating and cooling at the same time, cooling will receive priority and the system will operate in the cooling mode until all cooling calls are satisfied and then automatically change over to satisfy heating calls.
MAJORITY WINS:
If more zones call for heating than cooling, the system will be in the heating mode. If more zones call for cooling than heating, the system will be in the cooling mode. If the number of heating and cooling calls are equal, cooling wins.
DESIGN AND INSTALLATION GUIDLINES
[ ] Zone control begins with good HVAC design.
[ ] Proper load calculations used to determine duct and equipment sizing are essential in achieving optimum performance.
[ ] Install zone thermostats in their respective zones.
[ ] System wires should be tagged to match the panel terminal designations and zone identification.
[ ] Zone dampers should be installed at least 10’ back from discharge air grills whenever possible.
[ ] Zone dampers need to be located where they can be accessed for trouble shooting.
[ ] Flex or lined duct is recommended on the last 5’ of each branch run.
[ ] Thermostats and zone dampers can typically be located up to 300’ from the control panel when 18 AWG copper thermostat wire is used.
[ ] Always use a separate 24 VAC transformer rated at the proper to power the panel, zone VA dampers and thermostats.
[ ] Never use the equipment transformer regardless of its VA rating.
[ ] When using forced air zoning with a variable speed HVAC system, high speed fan should be set at 400 CFM per ton of cooling.
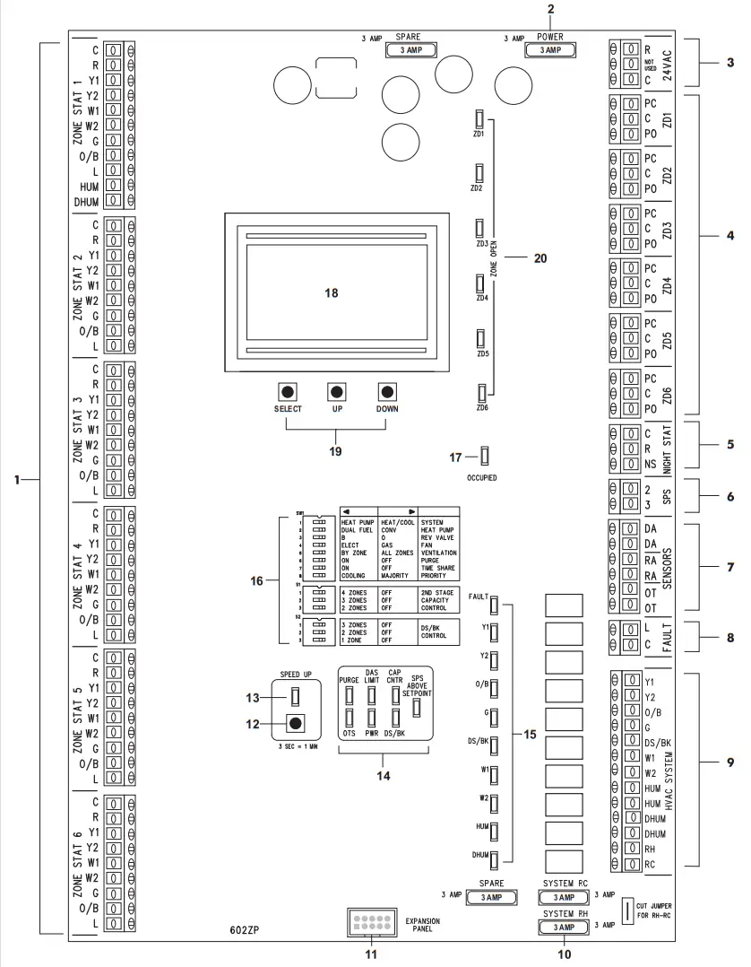
ZP 6-ESP-PRO PANEL LAYOUT

| 1. Zone 1 – 6 Thermostat Terminals 2. 3 AMP System Power Fuse 3. 24 VAC System Power Terminals 4. Zone 1 – 6 Zone Damper Terminals 5. Optional Night Stat Terminals 6. ESP Static Pressure Sensor Terminals 7. Sensor Terminals 8. Fault Terminals 9. HVAC System Terminals 10. 3 AMP RH RC – Fuses | 11. Expansion Panel Cable Input 12. Speed Up Button 13. Speed Up Mode LED 14. System Status LEDs 15. HVAC SystemsLED 16. System Configuration Switches 17. System Occupied LED 18. Graphic Display Module (GDM) 19. Graphic Programming Display Buttons. 20. Zone Damper Status LEDs |
SYSTEM WIRING
WARNING!
- Turn power off to HVAC equipment and control panel during installation to prevent serious injury from electrical shock and/or damage to the system.
- Use extreme care when making duct openings and handling sheet metal to avoid injury.
- Install all components in a manner that provides easy access for test, check, and startup.
CAUTION!
- Installation of this system must be in compliance with all applicable codes.
- HVAC system must be properly sized and balanced to assure optimum system performance.
- All low voltage cable must be 18 gauge solid (not stranded) wire.
- All wiring should be color coded and tagged for proper identification.
iO-ZP6-ESP-PRO PANEL WIRING
System Power
1. Wire a 24 VAC VA , 75 transformer to the 24 VAC ‘R’ and ‘C’ terminals on the 6-ESP-PRO panel. ZP
HVAC System
2. Wire the HVAC equipment to the HVAC SYSTEM terminals on the ZP6-ESP-PRO panel. 
DS/BK Terminals
The HVAC SYSTEM terminals have a DS/BK output. The DS/BK terminal is used with a variable-speed fan. Connect the HVAC equipment DS, BK, ODD, or DHUM terminal to the DS/BK terminal on the ZP6-ESP-PRO panel. Based on the DS/BK selector switch settings, this terminal will be de-energized when the number of zones calling are less than or equal to the switch selection. This will reduce the blower speed on most variable speed blowers.
HUM Terminals
The HVAC SYSTEM terminals have a set of normally open dry contact HUM terminals. These terminals can be used with a thermostat wired to Zone 1 that has a humidification output designed to control a powered or non-powered humidifier. Refer to the specific thermostat manual for humidification control.
DHUM Terminals
The HVAC SYSTEM terminals have a set of normally open dry contact DHUM terminals. These terminals can be used with a thermostat wired to Zone 1 that has an output for a dehumidifier or ventilator. Refer to the specific thermostat manual for dehumidification control.
Sensors
The SENSOR terminals provide inputs for Discharge Air (DA), Return Air (RA) and Outdoor Temperature (OT) sensors. All sensors are NTC Type Ill thermistors rated at 10K Ohms @ 77° F
Discharge Air Sensor
Mount the discharge air sensor in the main supply duct out of the line of sight of the heat exchanger or cooling coil and upstream of any duct transitions or zone dampers. Wire the sensor to the DA and DA terminals on the panel. The sensor is used for High and Low Limit protection as well as display of discharge air temperature
Return Air Sensor (Optional)
Mount the return air sensor in the main return duct. Wire the sensor to the RA and RA terminals on the panel. The sensor is used to display return air temperature only.
Outdoor Temperature Sensor (Optional)
The outdoor temperature sensor is used for High and Low Balance Point control in heat pump and dual fuel applications but can also be used for outdoor temperature display only. Mount the sensor inside the outdoor unit where it will not be directly exposed to sunlight, water, snow or ice. Wire the sensor to the OT and OT terminals on the panel.
Night Stat (Optional)
The NIGHT STAT terminals are designed to be used with a single programmable thermostat for occupied and unoccupied scheduling of the ZP6-ESP-PRO panel. This feature is suitable for commercial applications and eliminates the need for programmable thermostats in each zone. Remove the factory jumper across the R and NS terminals on the panel. Wire the 24V Common C from the panel to the Common C on the thermostat. Wire the 24V Hot R on the panel to the Hot R on the thermostat. Wire the NS
terminal on the panel to the G terminal on the thermostat. Refer to the Night Stat Setup and Scheduling section in this Installation Guide.
Fault Terminal
The Fault Terminals are designed to send a 24 volt signal to each zone thermostat that has a fault input. This is an important feature on a heat pump system that can provide a visual alert to the user at the zone thermostat of a mechanical failure. If the equipment has a fault terminal, wire the equipment common and the fault terminal to the C and L on the panel.
Zone Thermostats
The Panel has inputs for six zone thermostats. Only Zone 1 has inputs for humidification and dehumdification control. Wire each zone thermostat as illustrated.
Zone Dampers
The panel has dedicated terminals for each zone damper. Dampers have three-wire, floating point actuators rated at 2.5VA.
NOTE: 3-wire dampers must be used with the ESP function that eliminates the need for a traditional bypass damper.
SPS Terminals
The SPS terminals 2 and 3 wire to the ZPA-SPS Static Pressure sensor. The sensor should be installed on a flat surface so that the diaphragm is in the vertical position. Use the 1/4” x 36” tubing provided and connect one end to the (P1+) high pressure fltting on the sensor. The other end of the tubing should be connected to the plastic sensing probe mounted in the main discharge air plenum prior to any zone dampers or duct transitions. The sensing probe is 2-1/8” x 1/4” O.D. Install and mount the probe with the arrow in the direction of airflow. The pressure sensor is factory set for 0.35” W.C. but is fully adjustable from 0.08 to 1.2” W.C. The terminals are not polarity sensitive. Use 18-2 thermostat wire. After removing the outer jacket, strip approximately 1/8” insulation off of each wire. Land the wires to terminals 2 and 3 on the pressure sensor and repeat the process on the other end by landing the wires to the SPS terminals 2 and 3 on the panel.
NOTE: The ESP function only works with 3-wire, power open / power close dampers.
How ESP works
As zone dampers open and close, the ZPA-SPS Static Pressure Sensor continuously monitors the system static pressure. If the static pressure goes above the static pressure setpoint, the sensor will send a signal to the panel which will begin to open selected non-calling zone dampers until the static pressure setpoint is maintained. The SPS LED will come on until the static pressure reaches setpoint and then turns off. Selected non-calling ESP zone LEDs will blink when their dampers are in a floating position. The small amount of air allowed to bleed into non-calling zones eliminates air noise and ensures proper airflow through the HVAC system. This also prevents coil freeze up and high temperature issues. When all zones are satisfled, all zone dampers will go to the full open position provided no thermostat is calling for ventilation mode.
ADDING ZONE EXPANSION PANELS
The ZP6-ESP-EP Expansion Panel is a 3-zone module. It is mounted in its own enclosure to match the ZP6-ESP-PRO master panel. The ZP6-ESP-EP connects to the ZP6-ESP-PRO panel via an included communications ribbon connector. Another ZP6-ESP-EP can be daisy chained together in the same enclosure to provide an additional 3 zones for a total of 12.
- When adding the expansion panel, make sure that all 24 volt power is turned off.
- Mount the ZP6-ESP-EP no more than 2 inches under the ZP6-ESP-PRO master panel. This will allow enough room to facilitate wiring and connection of the communications ribbon connector.
- Each ZP6-ESP-EP receives 24 volt from the main panel transformer. Make sure that 24 volt common and hot match.
- Zone thermostats and dampers wire the same as on the ZP6-ESP-PRO panel.
- If only one ZP6-ESP-EP is added to the ZP6-ESP-PRO panel, set the Expansion Panel Selector Switch to ‘A’.
- If a second ZP6-ESP-EP is added, set its Expansion Panel Selector Switch to ‘B’.
Never connect or disconnect the communications ribbon connector when there is 24 volt power present as this can cause permanent damage to the microprocessor.
PANEL SETUP
Switch Configurations
The ZP6-ESP-PRO panel has a row of slide switches that are used to configure the panel for the specific equipment application. The switches also provide other control options.
System Configuration
Switch 1 selects the type of system. Heat Pump or Heat / Cool
Switch 2 selects the type of Heat Pump. Dual Fuel or Conventional
Switch 3 selects the heat pump reversing valve. B (Energized in Heating) or O (Energized in cooling
Switch 4 selects the fan operation. Electric or Gas
Switch 5 selects the ventilation mode. By Zone (When no calls are taking place, allows ventilation air only to those zones with thermostat set in continuous fan mode) or All Zones (When no calls are taking place, allows ventilation to all zones providing one zone thermostat is in continuous fan mode.)
Switch 6 selects the purge option. ON (Zone dampers maintain position and fan runs for 1 minute after call is satisfied) or OFF (No purge cycle after call is satisfied)
Switch 7 selects Time Share option. ON (If zones being served in either heating or cooling have not been satisfied within 20 minutes and an opposite call has taken place, the system will changeover. When that mode is satisfied or 20 minutes has gone by, the system will again changeover if an opposite call exists} or OFF (No Time Share)
Switch 8 selects the control priority. Cooling (Cooling calls receive priority over heating calls) or Majority (Heating and cooling priority is decided by the greatest demand. In the event of a tie, cooling receives priority.)
Capacity Control
Capacity Control can be used in multi-stage equipment applications to prevent a second stage from energizing until a minimum number of zones are calling. Any switch or combination of switches set in the ON position establishes the Capacity Control value. This value equals the minimum number of zones that must be calling in the same mode before a second stage can be energized. Capacity Control only allows for the upstaging to occur. It still requires a second stage call from a zone thermostat or the Stage Timer to upstage the equipment.
DS /BK Control
If the HVAC system has a variable-speed fan, the DS /BK control can be used to reduce the blower speed based on the number of zones calling. Each switch has a numerical value of 1, 2 and 3. Any switch or combination of switches selected maintains the low speed fan operation until that number is exceeded. 
Graphic Display Module
The GDM is designed to provide real-time display of discharge air, return air and outdoor air temperatures when the appropriate sensors are wired to the panel. The GDM is also used to set Low Limit, High Limit, Low Balance Point, and High Balance Point setpoints as well as initiation of the automatic upstage timer. The GDM is backlit and has been factory calibrated to provide the best contrast.
Setting High Limit
When the ZP6-ESP-PRO panel is first powered up, the GDM will illuminate the graphic display. Press the SELECT button and the display will show the discharge air temperature. If the word No Sensor appears, the sensor is not properly connected. Press SELECT again and the return air temperature will be displayed if a sensor has been connected. Press SELECT again and the outdoor temperature will be displayed if a sensor has been connected. Press SELECT again and the High Limit setpoint will be displayed. Depending on the equipment application, the High Limit can be set from 100° F to 180° F Use the UP or DOWN buttons to adjust the High Limit setpoint. Once the limit setpoint is made, it will be maintained in non-volatile memory.
Setting Low Limit
Press the SELECT button and the Low Limit setpoint will be displayed. Use the UP or DOWN buttons to adjust the Low Limit Setpoint. The setpoint range is from 30° F to 46° F. The recommended setting is 46 F.°
Setting High Balance Point
High Balance Point only functions in heat pump and dual fuel configuration. It is designed to prevent the auxiliary heat from coming on if the outdoor air temperature is above the High Balance Point setpoint. Press the SELECT button to display the High BP Use the UP or DOWN buttons to adjust the setpoint. The setpoint range is from 45° F to 70° F
Setting Low Balance Point
Low Balance Point only functions in heat pump and dual fuel configuration. It is designed to prevent the compressors from coming on and switching to auxiliary heat if the outdoor air temperature falls below the Low Balance Point setpoint. Press the SELECT button to display the Low BR Use the UP or DOWN buttons to adjust the setpoint. The setpoint range is from 0° F to 40° F.
Upstage Timer Option
If single stage zone thermostats are used with multi-stage equipment, an automatic Upstage Timer can be initiated. Press the SELECT button to display the Upstage Timer option. The factory default is NO. To initiate the timer, use the UP button until the Upstage Timer displays YES. When the Upstage Timer option is selected, equipment upstaging will occur every 10 minutes.
Selecting ESP zones
You can select which zones you want to apply the ESP function by toggling to the ESP Zones menu. Press the SELECT button to highlight the zone.
The factory default for all zones is active ESP function as indicated by the bullet (●) next to each zone. To deselect a zone, press the UP or DOWN button until the bullet disappears.
When expansion panels are added to the ZP6-ESP-PRO, the Graphic Display Module will automatically display the additional zones in the ESP Zones menu.
PANEL LED DEFINITIONS AND FUNCTIONS
Status LEDs
PURGE – When Purge is selected, the LED will come on for 1 minute while the system goes through the purge cycle.
DAS LIMIT – On when discharge air sensor is connected. Blinks when heating or cooling limit is reached.
CAP CNTR – When Capacity Control is selected, the LED will come on with a call for second stage if the number of calls is less than the selected value to energize second stage and turn off when the value is reached.
OTS – ON when outdoor temperature sensor is connected.
PWR – ON when panel is receiving 24 volts power.
DS/ BK – ON when DS/ BK is selected.
HVAC System LEDs 

PANEL TIME DELAYS
| TIME DELAY | NORMAL MODE | SPEED UP MODE |
| Minimum OFF Time | 4 Minutes | 12 Seconds |
| Changeover | 5 Minutes | 15 Seconds |
| Time Share | 20 Minutes | 60 Seconds |
| Purge | 1 Minute | 3 Seconds |
OVERVIEW:
The UT32-NS programmable touchscreen thermostat can be used for occupied and unoccupied scheduling of the ZP6-ESP-PRO panel. When wired and configured properly, the thermostat takes the place of a separate 7-day clock, night stat and override timer. The UT32-NS Programmable Fan option is used to trigger the ‘G’ fan relay to open or close the Clock Contact ‘NS’ terminal on the ZP6-ESP-PRO panel that places the system in the occupied or unoccupied mode of operation. The thermostat can also be used with an UT32-S1 Indoor Remote Sensor. 24 volt power to the thermostat is supplied by the ZP6-ESP panel through dedicated Clock Power terminals ‘C’ and ‘R’. The thermostat also has battery backup to maintain the real-time clock in the event of a power failure. The thermostat can be configured to provide 7-day scheduling with 2 events per day (occupied and unoccupied).
HOW IT WORKS:
The UT32- NS does not control the HVAC equipment and only uses the ‘G’ fan relay to set the ZP6-ESP-PRO panel in either the occupied or unoccupied mode. This is accomplished by using the Programmable Fan option so that the fan relay is energized during occupied mode (Always On) and de-energized during unoccupied mode (Automatic). When in Automatic mode, the fan relay will only energize when the temperature falls below or rises above the programmed unoccupied heating and cooling setpoints.
RECOMMENDED SETUP:
After mounting and wiring the thermostat subbase to the ZP6-ESP-PRO panel, follow the recommended setup and scheduling steps.
SYSTEM SWITCH SETTINGS:
The UT32 NS – contains a set of four system switches located on the printed circuit board on the back of the thermostat. Make sure the system switches are set as follows:
Sw 1 = OFF
Sw 2 = ON
Sw 3 = ON
Sw 4 = OFF
INSTALLER SETUP MENU CHANGES:
After the thermostat is powered up, touch and hold both the Clock and Mode section for 5 second to enter the Installer Menu. Touch Mode to advance forward through the menu or touch Fan to backup.
MENU CHANGES: LEAVE ALL OTHER OPTIONS AT FACTORY DEFAULTS
1: PR= 2 (Program Schedules)
4:PF = ON (Programmable Fan)
After the above changes have been made, touch and hold Mode until the thermostat exits the Installer Setup menu.
OPTIONAL NIGHT STAT SETUP AND SCHEDULING
SETTING THE CLOCK AND DAY OF WEEK:
It is important that the time of day and day of the week is set properly so that occupied and unoccupied programs are initiated correctly.
- Touch and hold the Clock and the hour will flash. Tap the UP or DOWN arrow to select the correct hour. Note: PM hours are indicated by PM on the LCD.
- Tap Clock again and the minutes will flash. Tap the UP or Down arrow to select the correct minutes.
- Tap Clock again and the month will flash. Tap the UP or DOWN arrow to select the month.
- Tap Clock again and the day of the month will flash. Tap the UP or DOWN arrow to select the day of the month.
- Tap Clock again and the year will flash. Tap the UP or DOWN arrow to select the year.
- To exit the menu, touch Clock again. The thermostat will automatically display the correct day of the week.
DAYLIGHT SAVING TIME:
The thermostat automatically compensates for Daylight Saving Time. When Daylight Saving Time is active, DST is displayed next to the time of day.
PROGRAMMING EVENTS:
When the thermostat is configured to provide 2 schedules per day (Occupied/Unoccupied}, 7 days per week, each event is displayed on the LCD as DAY (Occupied) and NIGHT (Unoccupied).
- Touch and hold Program until Mon (Monday} flashes.
- Tap Program again until the hour flashes and Day is displayed on the LCD. Use the UP or DOWN arrow to set the hour start time. Note: PM hours are indicated by PM on the LCD.
- Tap Program again until the minutes flash. Use the UP or DOWN arrow to set the minutes.
- Tap Program again and the heating setpoint will flash. Leave the setpoint at the factory default of 70 degrees.
- Tap Program again and the cooling setpoint will flash. Leave the setpoint ot the factory default of 75 degrees.
- Tap Program again and the fan option Always On will flash. This is the correct setting for the Day mode. If the fan option displays Automatic, use the UP or DOWN arrow to set the fan option Always On.
- Tap Program again until the hour flashes and Night is displayed on the LCD. Use the UP or DOWN arrow to set the hour start time. Note: PM hours are indicated by PM on the LCD.
- Tap Program again until the minutes flash. Use the UP or DOWN arrow to set the minutes.
- Tap Program again and the heating setpoint will flash. You can use the UP or DOWN arrow to change the heating setpoint or use the factory default of 62 degrees.
- Tap Program again and the cooling setpoint will flash. You can use the UP or DOWN arrow to change the cooling setpoint or use the factory default of 83 degrees.
- Tap Program again and the fan option Automatic will flash. This is the correct setting for the Day mode. If the fan option displays Always On, use the UP or OWN arrow to set the fan option to Automatic.
- Tap Program again and CPY (Copy} will appear on the LCD. If you wish to copy the Monday program to additional days of the week, use the UP or DOWN arrow to add additional days. Example: Mon Tue Wed Thu Fri
- Once you have selected the days to be copied, touch Program. CPY will begin to flash and then the next programming doy will flash. Example: If you copy the Monday schedule through Friday, Sat (Saturday) will flash. Simply repeat the programming steps for any day where the building will be unoccupied. The only required change is that both the Day and Night fan option should be set to Automatic and the heating and cooling setpoints for Day should reflect the unoccupied setpoints for Night.
- Once programming is completed, make sure the thermostat is set in the Auto mode of operation.
TYPICAL 7-DAY SCHEDULE
2 events per day with Saturday and Sunday unoccupied
| PROGRAM | DAY | START TIME | HEAT SETPOINT | COOL SETPOINT | FAN |
| DAY | MON | 7:00 AM | 70 | 75 | Always On |
| NIGHT | 5:00 PM | 62 | 83 | Automatic |
COPY MONDAY PROGRAM TO TUESDAY WEDNESDAY THURSDAY AND FRIDAY
| DAY | SAT | 7:00AM | 62 | 83 | Automatic |
| NIGHT | 5:00 PM | 62 | 83 | Automatic |
COPY SATURDAY PROGRAM TO SUNDAY
www.iohvaccontrols.com
For Technical Support Call Toll Free: 866-225-5032
iO-06-1286-042820
SPECIAL ADDENDUM
USING ESP ZONING PANELS WITH GAS FURNACES HAVING DIRECT SPARK IGNITION (DSI)
DSI functions by creating a rapid series of high-voltage electric sparks, which means DSI controls generate electromagnetic interference (EMI) during their trial for ignition. This electronic noise can sometimes interfere with ESP zoning panels as well as other nearby electronic components and even with the ignition control itself. When using an ESP zoning panel with a gas furnace having DSI, we recommend that the panel be mounted at least ten feet away from the furnace to reduce any effects of EMI that can cause sporadic cycling of the relay outputs.
www.iohvaccontrols.com
For Technical Support Call Toll Free: 866-225-5032



















