DVT 98660 TBS BK Cooker Hood (Extractor hood)

Product Information
This product is a kitchen hood or extractor that helps in extracting fumes and odors while cooking. It comes with a display, timer, and light features to control its functions. It has different fan speed levels to adjust the aspiration speed according to requirements. It also has replaceable activated charcoal and metal filters to maintain its efficiency. The product is available in different models such as TBS 68660/ 78660/ 98660 and TRL 68660/ 88660/ 98660.
Product Usage Instructions
- Connect the mains cable of the kitchen hood to the network.
- Press the button shown in figure 1 to control the functions of the extractor.
- To achieve better extraction, switch on the extractor a few
minutes before starting to cook (3 – 5 minutes) so that the air flow is continuous and stable when extracting the fumes. - Select the required aspiration speed from the available fan speed levels.
- Use the timer feature to program the working time between 1 to 99 minutes by pressing the timer button and using the `+’ and `-‘ buttons.
- The display will show the remaining programming time.
- The highest fan speed level `H’ can only be selected manually and will be automatically reduced after 7 minutes of usage.
- After cooking, keep the extractor switched on for a few minutes to allow all fumes and odours to be expelled.
- For changing the light bulbs, please contact the manufacturer’s nearest Technical Service.
- During cleaning and maintenance work, make sure the safety instructions provided in the manual are followed.
- To clean the body of the kitchen hood, use a damp cloth and mild detergent. Do not use abrasive materials or harsh chemicals.
- Check for filter saturation and obstruction in the air outlet before calling the Technical Service. Replace or clean the activated charcoal and/or metal filters as required. Remove the obstruction to ensure efficient functioning of the kitchen hood.
By following these usage instructions and maintaining the kitchen hood regularly, you can ensure efficient extraction of fumes and odors while cooking.
Dear Customer,
Congratulations on your choice. We are certain that this modern, functional and practical device made with first rate quality materials will fully satisfy your requirements.
Please read all the sections in this INSTRUCTION MANUAL before using the hood for the first time in order to obtain maximum performance from the device and avoid faults which may arise from incorrect use as well as minor problem solving.
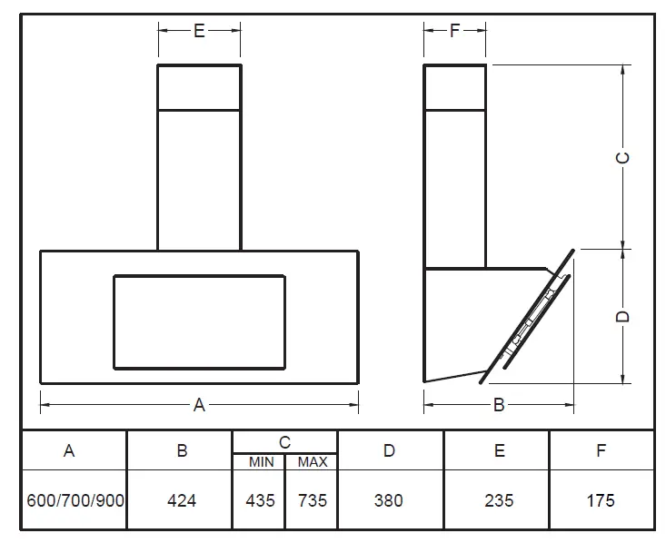
For optimal performance, the external duct should not exceed FOUR METRES, have more than two 90 ° angles and its diameter should be at least Ø120.
Safety Instructions
- Disconnect the device before performing any work on the interior, e. g. during cleaning or maintenance.
- The excessive accumulation of grease in the hood and metal filters may cause dripping and fire risks, therefore it is necessary to wash the inside of the hood and the metal filters at least once a month.
- This device can be used by children aged 8 and over and persons with reduced physical, sensory or mental capabilities or lack of experience and knowledge, if they have been given supervision or proper training in the safe use of the device and if they understand the dangers involved. Children should not play with the device. Cleaning and maintenance should be performed by the user and not by unsupervised children.
- The regulations for electrical installations must be complied with.
- Check that the power voltage and frequency match those indicated on the label located on the inside of the hood. A suitable earth must be connected (except for Class II devices, marked with on the technical data plate).
- For installation, a connection method isolated from the fixed installation should be incorporated, in accordance with installation regulations (adjusted to the strength to be endured and with a minimum opening between the contacts of 3mm) under overvoltage category III conditions, for the emergency shutdown, cleaning or light replacement. In no event should the earth pass through this switch. This switch can be replaced with a plug if it is accessible in normal use.
- If the power lead is damaged it must be replaced by the manufacturer, its after-sales service or by qualified personnel in order to avoid potential danger.
- Ventilation regulations must be complied with.
- Air should not be extracted by ducts used to expel fumes from equipment powered by gas or other fuels.
- The room must be adequately ventilated when the hood will be used simultaneously with equipment powered by energy other than electricity e.g. gas cookers.
- Do not produce flames under the hood.
- The bottom of the hood must be fitted at least 65cm above gas or combination hobs. Observe the minimum limits set by worktop manufacturer’s. This distance may be reduced if mentioned in the hood installation instructions.
- Accessible parts can be heated when used with cooking appliances.
- Never leave gas burning without a pan above it. The grease accumulated in the filters may drip or catch fire when the temperature is increased.
- Avoid cooking under the hood if the metal filters are not fitted e.g. while they are being cleaned in the dishwasher.
- We recommend you wear gloves and use extra caution when cleaning the inside of the hood.
- Your hood is designed for domestic use and only for the extraction and purification of gases from food preparation. Use for other purposes is at your own risk and may be dangerous. The manufacturer is not responsible for damage caused by improper use of the device.
- For repairs please contact the manufacturer’s nearest Technical Assistance Department which will always use genuine parts. Repairs or modifications by unauthorized personnel may result in damage to equipment or malfunction, endangering safety.
- This device complies with the European Directive 2012/19/EU on electrical and electronic devices entitled “Electrical and Electronic Equipment Waste “. The directive provides the framework applicable throughout the European Union for the return and recycling of electrical and electronic equipment waste [symbol] responsible for his/her safety. Keep children away from the device and never let them play with it .
- Replace any cracked shield.
Instructions for use
By pressing the button shown in the figure 1, you will be able to control the functions of the extractor.
To achieve better extraction, we recommend switching on the extractor a few minutes before starting to cook (3 – 5 minutes) so that the air flow is continuous and stable when extracting the fumes.
Likewise, keep the extractor switched on for a few minutes when cooking is complete to allow all fumes and odors to be expelled.

- Display
- Timer
- Light
- Reduce fan speed
- Increase fan speed
Program the working time
- Switch on the cooker hood and choose the required aspiration speed.
- Push ‘Timer’.
- Select the required programming time from 1 to 99 minutes by using the buttons ‘+’ and ‘-’.
- The display will show the remaining programming time. The maximum speed ‘H’ can only be selected manually and will be changed automatically to the second speed level after 7 minutes.
Filter saturation indicator “F”
- When the sign ‘Saturation of the filters’ is on, the filters should be cleaned.
- After cleaning the filters, simultaneously push “Timer” and “Light” keys for at least 3 seconds whereupon the sign will be switched off.
Fresh Function
- The fresh function consists on activating the motor at speed 1 for ten minutos each hour. This function will stay active for 24h or until it is manu-ally turned off.
- To activate/ deactivate this function, simultaneously push “-” and “+” keys.
Lights
For changing the light bulbs please contact the manufacturer’s nearest Technical Service.
Lamp code:
89220139
Cleaning and maintenance
During cleaning and maintenance work, make sure the safety instructions are complied with.
Cleaning the hood body
- If your kitchen hood is made of stainless steel, use proprietary cleaners mentioned in the product instructions.
- If your kitchen hood is painted, use lukewarm water and a neutral soap.
- Never use metallic scourers, nor abrasive or corrosive products.
- Dry the kitchen hood using a cloth that does not produce fibers.
- Do not use vapor cleaners
Cleaning the metal filter
- To remove the filters from their fittings, press lightly on the locks and then pull them off. The metal filters can be cleaned by soaking them in hot water with neutral detergent until the fat dissolves and then rinsing them under the tap or using special anti-grease products. They can also be washed in a dishwasher. In this case, it is advisable to stack them vertically to avoid food residues to stick to them.
- Cleaning in a dishwasher may damage the metallic surface (blackening it), although this will not affect its fat retention capacity.
- Once clean, leave them to dry off and then fit them onto the kitchen hood.
- Remove the grease collector as described at the end of this manual. Clean it in the same way that filter.
Activated charcoal filter
- To install the activated charcoal filter, see the end of this manual.
- The carbon filter lasts from three to six months depending on the particular conditions of use.
- The activated carbon filter can neither be washed nor regenerated. Once it is exhausted, it must be changed.
- A reduction in the extraction flow rate may be observed in the hood with the installation of carbon filters.
Problem solving
Proceed with the following checks before calling the Technical Service:
| Problem | Possible cause | Solution |
| The kitchen hood does not work. | The mains cable is not connected to the network. There is no current in the network. | Connect the mains cable to the network. Provide current to the network. |
| The kitchen hood does not extract sufficiently or vibrates. | Filters are saturated with fat. Obstruction in the air outlet. | Change or clean the active charcoal and/or metal filters. Remove the obstruction. |













Teka Industrial S.A.
Cajo, 17, – 39011 Santander, Spain
Country Subsidiary Address City Phone
- Austria
Eitnergasse, 13 1231 Wien +43 18 668 022Küppersbusch Austria - Belgium
Doomveld Industrie, Asse 3, No. 11 – Boite 7 1731 Zellik +32 24 668 740 Küppersbusch Belgium S.P.R.L. - Bulgaria
Blvd. “Tsarigradsko Shosse” 135 1784 Sofia +359 29 768 330 Teka Bulgaria EOOD - Chile
Avd El Retiro Parque los Maitenes, 1237. Parque Enea Pudahuel, Santiago de Chile +56 24 386 000 Teka Chile S.A. - China
6/F. Datong Business Center, No. 369 Fuxing Middle Rd. 200025 Shanghai +86 2 153 076 901 Teka International Trading (Shanghai) Co. Ltd. - Czech Republic
V Holesovickách, 593 182 00 Praha 8 – Liben +420 284 691 940 Teka CZ S.R.O. - Ecuador
Parque Ind. California 2, Via a Daule Km 12 Guayaquil +593 42 100 311 Teka Ecuador S.A. - Great Britain
177 Milton Park OX14 4SE Milton, Abingdon +44 1 235 861 916 Teka Products Ltd. - Greece
Thesi Roupaki – Aspropyrgos 193 00 Athens +30 2 109 760 283 Teka Hellas A.E. - Hungary
Bajcsy Zsilinszky u. 53 1065 Budapest +36 13 542 110 Teka Hungary Kft. - Indonesia
Jalan Menteng Raya, Kantor Taman A9 Unit A3 12950 Jakarta +62 215 762 272 PT Teka Buana - Malaysia
10 Jalan Kartunis U1/47, Temasya Park, Off Glenmarie 40150 Shah Alam, Selangor Darul Ehsan +60 376 201 600 Teka Küchentechnik (Malaysia) Sdn Bhd - Mexico
Blvd. Manuel A. Camacho #126 Piso 3 Col. Chapultepec 11000 Mexico D.F. +52 5 551 330 493 Teka Mexicana S.A. de C.V. - Morocco
73, Bd. Slimane, Depôt 33, Route de Ain Sebaa Casablanca +212 22 674 462 Teka Maroc S.A. - Poland
ul. 3-go Maja 8 / A2 05-800 Pruszków +48 227 383 270 Teka Polska Sp. ZO.O. - Portugal
Estrada da Mota – Apdo 533 3834-909 Ilhavo, Aveiro +35 1 234 329 500Teka Portugal S.A. - Romania
Sevastopol str., no 24, 5th floor, of. 15 010992 Bucharest Sector 1 +40 212 334 450 S.C. Teka Küchentechnik Romania S.R.L. - Russia/Россия
ул.Барклая, д.6, стр.3, оф.402 121087 Россия, Москва +7 4 956 450 064 Teka Rus LLC/ООО “Тека Рус” - Singapore
Clemenceau Avenue, 83, 01-33/34 UE Square 239920 Singapore +65 67 342 415 Teka Singapore PTE Ltd - Spain
C/ Cajo,17 39011 Santander +34 942 355 050 Teka Industrial, S.A. - Thailand
364/8 Sri-Ayuttaya Road, Phayathai, Ratchatavee 10400 Bangkok +66 -26 424 888 Teka (Thailand) Co. Ltd. - Turkey
Büyükdere Cad. 24/13 80290 Mecidiyeköy, Istanbul +90 2 122 883 134 Teka Teknik Mutfak Aletleri Sanayi Ve - Ukraine
86-e, Bozhenko Str .2nd floor,4th entrance 03150 Kyiv +380 444 960 680 Teka Ukranie LLC - United Arab Emirates
Building LOB 16, Office 417 P.O. Box 18251 Dubai +971 48 872 912 Teka Middle East Fze - United Arab Emirates
Bin Khedia Centre P.O. Box 35142 Dubai +971 42 833 047 Teka Küchentechnik U.A.E LLC - Venezuela
Ctra. Petare-Santa Lucia, km 3 (El Limoncito) 1070 Caracas +58 2 122 912 821 Teka Andina S.A. - Vietnam
TEKA Vietnam Co., Ltd 803 Dai Minh Convention Tower, 8th Floor 77 Hoang Van Thai, District 7, Ho Chi Minh +84 854 160 646
Email: www.teka.com
“for further information and updated contact addresses, please refer to the corporate website“
















