ELCOS GE.BD.022 ProProfessional Power Range

Standard equipment
Canopy Soundproofing
- Removable soundproof canopy
- Painting canopy (RAL) in galvanized sheet steel
- Soundproofing with class 1 polyester material
- Handles with key lock and automatic closing
- Inspection doors for controls and maintenance
- Inspection doors with hermetic gasket
Exhaust
- Exhaust rain cap
- Insulated exhaust pipes
- Internal residential muffler
Fuel Supply
- Single wall daily tank with bunded base
- Automatic shutdown system for low fuel level
- Fuel gauge
Handling
- 4 lifting hooks integrated into the bearing structure
- Loadable side by side for truck transportation
Base Frame
- Anti-vibrating mounting pads
- Anti pollution Bunded base
Engine
- High coolant temperature and low oil pressure shutdown
- system
- Engine liquids (oil and antifreeze)
- Tropicalized radiator
- Rotating parts protection
- Electronic speed governor
Alternator
- AVR Automatic Voltage Regulator
- Impregnation for marine environment
- IP23
Panel & connection
- Emergency Stop button
- Protection by controller
- Tamperproof panel IP55
- Cable output from the bottom
- IP44 wiring
- Start-up battery (pre-charged)
- Grounding point
Documentation
- CE conformity declaration
- User and Maintenance manual
- Wirings diagrams
- Normatives
- All Generating sets are compliant to CE Marking
- 2014/30/UE Electromagnetic compatibility
- 2000/14/CE Noise Emission for outdoor use
- Factory-designed systems built according to ISO 9001:2015
- CEI EN 60204-1:2018 – Electrical equipment of machines
Primary data
General Information
- Speed RPM 1500
- Frequency Hz 50
- PRP KVA 20
- PRP – Prime power KW 16
- LTP – Standby power KVA 21
- LTP – Standby power KW 16,8
- Standard Voltage V 400/230
- Current A 28.9
- Voltage for current calculation V 400
- COSFI 0,8 0,8
General electrical protection
- Rated current A 63
- Type Magnetothermal switch on panel board
- Poles N 4P
- Optional/notes Opening coil
- Protection device Control module
Noise level +/- 3dB(A)
- LWA dB(A) 87
- Sound pressure level @ 7 mt dB(A) 62
- Sound pressure level @ 1 mt dB(A) 71
Fuel Consumption
- TYPE Diesel
- Standard Fuel Tank capacity lt 90
- Autonomy @ 75% load h 20
- Fuel consumption at 100% load lt/h 6,2
- Fuel consumption at 75% load lt/h 4,5
- Fuel consumption at 50% load lt/h 3,2
General data
- Rated capacity Ah 1×70
- Auxiliary Voltage V 12
- Exhaust gas flow l/s 79
- Combustion air flow l/s 23
- Cooling fan airflow mc/s 1,05
- Exhaust diameter mm 50
Weight and Dimensions
- Dimensions (L x W x H) cm 173x92x130
- Weight with liquids (excluding optionals and fuel) Kg (+/-3%) 747
Engine
- Factory Baudouin
- Model 4M06G4D0/S
- Emissions stage Stage 0
- Speed governor Electronic
- Radiator °C 50
- Cooling Tipo liquid (water + 50% Paraflu11)
- Active net power Kwm 21,7
- Nominal net power CV 29,5
- Cycle Tipo 4 strokes
- Aspiration Tipo Natural
- Numbers of cylinders N 4
- Cylinders arrangement L
- Bore mm 89
- Stroke mm 92
- Total displacement lt 2,288
- Engine oil features 15W40-API CI-4/CH-4 ACEA E5-E7
- Total oil capacity lt 12
- Total coolant capacity lt 16
- ISO 8528-5 class G3
Alternator
- May vary based on stock availability. However, a primary brand will be used.
- Factory Stamford
- Model S0L2-G1
- PRP continuous power KVA 20
- Voltage Regulator (voltage accuracy) +/- % 1
- Poles N° 4
- Phases N° 3+N
- Standard windings connection Star Series
- Stator/rotor impregnation H (Outdoor Temp 40°C)
- Efficiency % 86,8
- Engine coupling Elastic disk
- Short circuit current >= 300% (3In)
- Protection degree IP 23
- Cooling system Self ventilating
- Maxium overspeed rpm 2250
- Waveform distortion % <5
- Exciter Diode bridge
Standard operating environmental conditions
- Ambient temperature °C 25
- Relative Humidity % 30
- Max altitude mt 1000
QLE Multifunction panel without switching on board
The QLE command and control panel offers outstanding protection, monitoring and control for small and middle size generator sets.Elcos’s control module MC2 Plus offers advanced features to meet the most demanding on-site application. Elcos’s control module MC2 Plus is designed for offer an easy user interface. Variant without transfer switch. The panel directly manages the QLTS and QC panels. The output line is protected by a magnetothermic breaker with opening coil. The overload and short-circuit protection is managed by the control board.
Mechanical features
Protection degree IP 55
Battery charger
- Model ELCOS – CB1
- Maximum output current A 2,5
- Output DC voltage (selectable) Vdc 12-24
- Input AC voltage (selectable) Vac 220-260
- Frequency Hz 50-60
Data Communication
- Data connection port RS-485
- Communication protocol Mod-bus RTU-8N1
Remotable functions in terminal box
GS start Genset contactor close/open command (1) Mains contactor close/open command (2) Remote horn – DC output Programmable output – Volt free output Ready to load function (ARS mode without QC or QLTS panel)(1) Genset contactor open and close command (AMF mode with QC or QLTS panel)(2) Mains contactor open and close command (AMF mode with QC or QLTS panel)
Control Module
Specifics
Applications
- Emergency to the Mains
- Stand-alone
- Construction site/Rental
- Self-production
ENGINE MEASURES
- Fuel tank level %
- Total run time
- Battery voltage
- Start-ups counter
- Engine speed
ALTERNATOR MEASURES
- Generator Voltage L1, L2, L3
- Generator Voltage L1-N, L2-N, L3-N
- Generator frequency
- Generator current L1, L2, L3
- Generator Apparent Power kVA
- Generator Active Power kW
COMMUNICATION PORTS
- Can-bus port
- RS485 port with Mod-bus RTU communication
- USB port for parameters saving and firmware
- update
EQUIPMENT
- Microprocessor Logic
- Back-lit display
- Programmable from display
- 16 event log
- Icons management
- STOP button
- START button
- TEST button
- Reset alarm button
- Alarm mute button
- PRE-ALARMS/ ALARMS
- Common Alarm
- Fuel reserve (pre-alarm)
- Low fuel level (alarm)
- Charge alternator failed (dinamo)
- Low oil pressure (alarm)
- Oil sensor failed (alarm)
- High coolant temperature (alarm)
- Battery undervoltage
- Battery overvoltage
- GS failure to start
- GS failure to stop
- Can-bus Failure
- No Can-bus communication
- Genset overload L1, L2, L3 phases
- Genset short circuit
- Genset overvoltage
- Genset undervoltage
- Genset high frequency
- Genset low frequency
- overspeed
- Earth fault (alarm)
- Maintenance request
- Emergency button pressed
- Remote emergency active
- Genset negative phase sequence
- VISUALIZATIONS ON CONTROL
MODULE/DISPLAY
- Pre-alarms
- Alarms
- Engine measures
- Alternator measures
- Operating mode
- Genset status
- Genset contactor status
- Glow plugs status
CONTROL MODULE FUNCTIONS
- Remote Start and Stop
- Manual Start and stop
- Emergency stop button on panel board
- Remote emergency stop
- Remote test on load
- Scheduled start-ups
- MODBUS commands (Start, Stop, Reset, Test)
- Present according to the engine equipment and to the ECU type (ECU – Canbus)
- Present only with the residual current device mounted on genset board
- Present with special function activated
OPTIONAL
Fuel Supply

Canopy

Electrical on board

Engine

ATS Panels

Exhaust

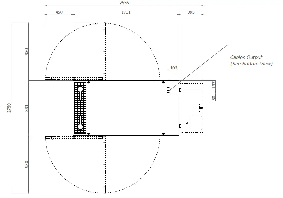
DIMENSIONS



IMPORTANT:
- Form and dimension refer to the generating set on catalogue
- Form and dimension are subject to change in order to update or improve the products
- This document cannot be copied or trasmitted without ELCOS S.r.l. approval



ROOM VENTILATION
The windows area in the generating set room needs to be (recommended):
- Aspiration: 0.26 m2
- Expulsion: 0.21m2
- ATTENTION: for a correct ventilation the expulsion air and the exaust gas needs to be conveyed in the open-air
IMPORTANT:
- Form and dimension refer to the generating set on catalogue
- Form and dimension are subject to change in order to update or improve the products
- This document cannot be copied or trasmitted without ELCOS S.r.l. approval
Elcos srl – S.S. 234 Km 58,25 Grumello Cremonese (CR) Italy tel. +39 0372 72330 fax. +39 0372 7233220 – www.elcos.net – [email protected]
















