Nuaire MEV-ECO-CF Continuous Mechanical Extract Unit Installation Guide

1.0 SAFETY INFORMATION
- The provision of the electrical supply and the connection of the unit to the mains must be carried out by a qualified electrician.
- Isolate from power supply before removing any covers. During installation / maintenance ensure all covers are fitted before switching on the mains supply.
- All-pole disconnection from the mains as shown in the wiring diagram must be incorporated within the fixed wiring and shall have a minimum contact separation of 3mm in accordance with latest edition of the wiring regulations.
- This unit must be earthed.
- Ducting must be securely fixed to prevent access to live parts. Duct runs terminating close to the fan must be adequately protected by suitable guards.
- If the supply cord is damaged, it must be replaced by the manufacturer, its service agent or similarly qualified persons in order to avoid a hazard.
- Precautions must be taken to avoid the back-flow of gases into the room from the open flue of gas or other fuel-burning appliances.
- This appliance should not be used by children or persons with reduced physical, sensory or mental capabilities or lack of experience and knowledge, unless they have been given supervision or instruction concerning the safe use of the appliance by a person responsible for their safety. Children shall not play with the appliance. Cleaning and user maintenance shall not be carried out by children.
1.1 Symbols
ELECTRIC SHOCK
This unit must be completely electrically isolated before any panels are removed. Check mains supply and control connections.
READ OPERATOR’S MANUAL
Read and understand the installation and maintenance manual before installing, operating or maintaining this product.
1.2 Important Information
This manual contains important information on the safe and appropriate assembly, transport, commissioning, operation, maintenance, disassembly and simple troubleshooting of the product.
While the product has been manufactured according to the accepted rules of current technology, there is still a danger of personal injury or damage to equipment if the following general safety instructions and the warnings contained in these instructions are not complied with.
- Read these instructions completely and thoroughly before working with the product.
- Keep these instructions in a location where they are accessible to all users at all times.
- Always include the operating instructions when you pass the product on to third parties.
1.3 Personal Protective Equipment
The following minimum Personal Protective Equipment (PPE) is recommended when interacting with Nuaire product:
- Full Finger Gloves (Marigold PU800 or equivalent) – when handling sheet metal components.
Nuaire would always recommend a site specific risk assessment by a competent person to determine if any additional PPE is required.
2.0 INTRODUCTION
The MEV-ECO-CF units are designed to provide continuous mechanical ventilation for void spaces, with reference to Approved Document C.
The unit offers three independently variable speed settings for trickle, boost and purge ventilation rates.
The unit may be used for supply, or extract, however, the different applications will require variations to the completed installation e.g. filtration, insulation etc. Contact Nuaire to discuss the full system design requirements.
2.1 Code Description:
1. Range:
2.2 Unit Handling
Offloading and positioning of the equipment is the responsibility of the purchaser. Items should only be lifted by competent personnel following appropriate risk assessment.
Always handle the fans carefully to avoid damage and distortion. Care should be taken to ensure that any slings used for lifting purposes do not damage or pass through the impeller. Always check the unit weight on rating label before lifting.
Spreaders should be used when lifting with slings to avoid damage to the casings. Care must be taken to ensure that slings are correctly positioned to avoid crushing and twisting of the unit casings. Care should be taken to ensure the units remain upright and level at all times.
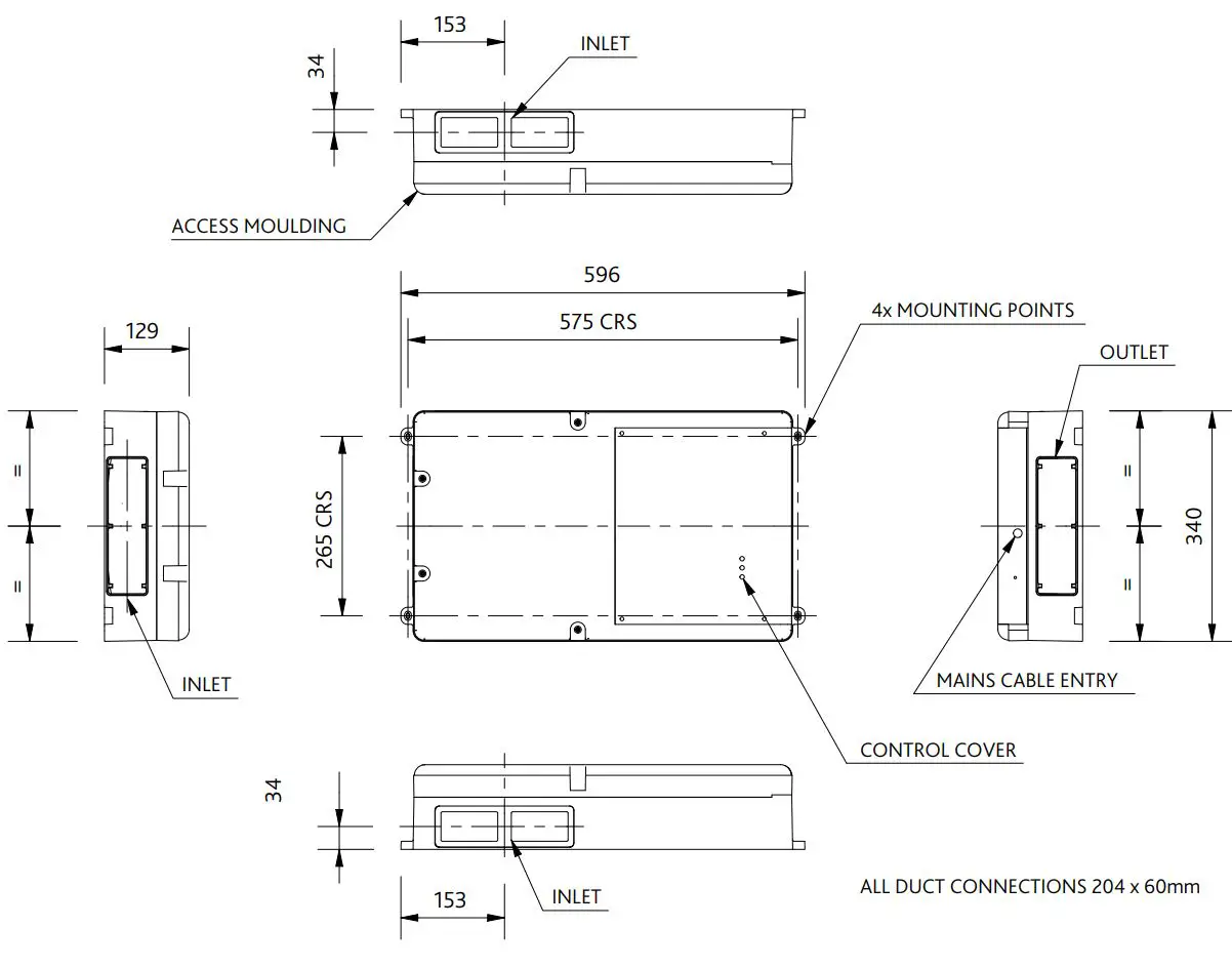
2.3 Dimensions (mm)
1 Unit Dimensions

3.0 MECHANICAL INSTALLATION
Installation must be completed by competent persons, in accordance with good industry practice and should conform to all governing and statutory bodies i.e. IEE, CIBSE, etc.
Success and clear working space around the unit is required to allow access for commissioning and also future maintenance of key components. Allow for the entire access moulding and control cover to be removed, a minimum of 100mm from the cover is required (Figure 1). An additional 20mm will be required at the mains cable entry point to allow cable routing.
The unit is designed to be installed predominantly on a ceiling/ slab or floor mounted, the unit is only rated as IPX4 in these two orientations. If installing in an alternative orientation the unit must be situated in a dry environment that avoids dripping water and must be mounted level in all axis.
The unit must be installed on a weather sheltered surface away from direct sources of frost, precipitation, heat and water spray or moisture generation. For a vibration-free result the unit must be mounted to a solid structure. The unit can be secured in place using the four mounting points (fixings supplied by others) provided (Figure 1).
Any air intake terminal MUST be installed in accordance with the appropriate regulation.
As a guide, the BS5440 series of British Standards deals with this issue and currently states that an air intake must be at a minimum distance of 300mm from a gas boiler balance flue. Installers are advised to be aware of the requirements of this standard when installing ‘through the wall’ supply air ducting.
3.1 Ducting
To ensure a safe final installation all duct connections to the unit must use rigid ducting with a minimum length of 500mm and securely held in place by Nuaire specified duct sealant and aluminium duct tape, Nuaire product codes PVCDSEAL and PVC50TP45 respectively. If ducting is not fitted to any of the three available inlets the blanking cap (figure 3) should be removed and sealed with PVCDSEAL only as per the ducting instruction above.
Failure to seal the unit correctly may lead to reduced unit performance and energy efficiency. Rigid ducting is recommended, but If used, flexible ducting should always be pulled taut. A maximum of 300mm should be used on each leg. A minimum distance of 200mm between the appliance and any bends in ductwork is recommended.
3.2 Pre-Commissioning
The unit must not be used during site construction or the clean-up period, as cement and plaster dust can be abrasive, potentially affecting the performance and reliability of the fan.
Whilst the property is drying out, very high moisture levels are likely to occur. Therefore it is advisable that if building works are complete the unit is left running. If the building works are not complete, please temporarily close or cover the air bricks / grilles to prevent condensation forming in the ductwork and unit due to the natural migration of warm air.



4.0 ELECTRICAL INSTALLATION
All electrical connections must be carried out by a qualified electrician.
To prevent water ingress, the supply cord should be run so the lowest point is below the cable entry grommet.
For good EMC practice, any sensor cable or switched live cables should not be placed within 50mm of, or on, the same metal cable tray as other cables.
If the supply cord is damaged, it must be replaced by the manufacturer, its service agent or similarly qualified persons in order to avoid a hazard.
All pole disconnection from the mains as shown in the wiring diagram, must be incorporated within the fixed wiring and shall have a minimum contact separation of 3mm in accordance with latest edition of the wiring regulations.
4.1 Electrical Information
Voltage: 230V 1ph 50Hz
Consumption: 0.7A
The cable from the mains power supply should be connected to a fixed wiring installation, via a fused isolator, in accordance with current IEE wiring regulations.
4.2 Wiring Diagrams
Only the 5 Core cable is supplied with the unit, any other

5.0 COMMISSIONING
Due to potential access to live parts adjustment of set points must only be carried out by a suitably qualified person, adjustment should only be carried out using an VDE approved insulated terminal screwdriver.
The clear panel covering the ventilation controls has an adhesive backing which should be exposed and sealed post commissioning to prevent tampering and ensure the IPX4 rating is met.
All commissioning set points can be accessed through the access holes of the control cover (Figure 1).
For required airflow rates please refer to the design specification for the property and / or building regulations Approved Document C.
Correct commissioning is essential to ensure the ventilation rates are met. It also ensures the unit is not over ventilating and causing excessive power consumption.
Once commissioned the home owner/tenant should be informed that the unit should not be adjusted as it will have a detrimental effect on the indoor air quality and could result in condensation and mould growth.
6.0 MAINTENANCE
It is important that maintenance checks are recorded and that the schedule is always adhered to, in all cases, the previous report should be referred to.
Isolation – Before commencing work make sure that the unit and switched live control are electrically isolated from the mains supply and switched live supply.
6.1 Annually
- All electrical terminals within the unit should be tightened.
- Check all earth connections.
- Thoroughly inspect the unit and its components for dirt, clean any affected areas.
7.0 WARRANTY
The 5 year warranty starts from the day of delivery and includes parts and labour for the first year. The remaining period covers replacement parts only.
This warranty is void if the equipment is modified without authorisation, is incorrectly applied, misused, disassembled, or not installed, commissioned and maintained in accordance with the details contained in this manual and general good practice.
The product warranty applies to the UK mainland and in accordance with Clause 14 of our Conditions of Sale. Customers purchasing from outside of the UK should contact Nuaire International Sales office for further details.
Failure to maintain the unit as recommended will invalidate the warranty.
8.0 END-OF-LIFE AND RECYCLING
Where possible Nuaire use components which can be largely recycled when the product reaches its end-of-life:
- Fans, motors, controls, actuators, cabling and other electrical components can be segregated into WEEE recycling streams.
- Sheet metal parts, aluminium extrusion, heating/cooling coils and other metallic items can be segregated and fully recycled.
- EPP, plastic ducting, nylon corner pieces, plastic heat exchangers, packaging material and other plastic components can be segregated into mixed plastic and widely recycled.
- Cardboard packaging, wood, used filters and other paper components can be largely recycled or fully processed in energy from waste centres.
- Remaining Items can be further segregated and processed in accordance with the zero waste hierarchy. Please call After Sales Support for further information on items not listed above.
Ensure that Nuaire product is made safe from any electrical supply before dismantling commences. This work should only be undertaken by a qualified person in accordance with local authority regulations and guidelines, taking into account all site based risks.
9.0 AFTER SALES AND REPLACEMENT PARTS
For technical assistance or further product information, including spare parts and replacement components, please contact the After Sales Department.
If ordering spares please quote the serial number of the unit together with the part number, if the part number is not known please give a full description of the part required. The serial number will be found on the identification plate attached to the unit casing.
Telephone 02920 858 400 [email protected]
Technical or commercial considerations may, from time to time, make it necessary to alter the design, performance and dimensions of equipment and the right is reserved to make such changes without prior notice.
NOTES
____________________________________________________________________________________________________________________________________________________________________________________________________________________________________________________________________________________________________________________________________________________________________________________________________________________________________________________________________________________________________________________________________________________________________________________________________________________________________________________________________________
Nuaire | Western Industrial Estate | Caerphilly | CF83 1NA | nuaire.co.uk
















