KitchenAid KBSNMPA 702/708 48 Inches 30 Cu. Ft. Built In Side by Side Black

Product Dimension
Product Dimension Guide for models KBSNMPA 702/708


| Description | Inches (mm) | |
| A | Width of FC door 42″ 48″ | 173/16″ (436.6) 193/4″ (501.7) |
| B | Width of RC door 42″ 48″ | 231/4″ (590.6) 263/4″ (679.4) |
| C | Space between doors | 1/4″ (6.4) |
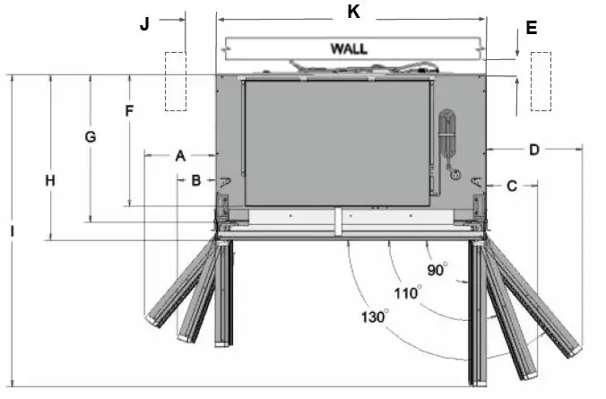
| D | Total height | 837/16″ (2119.3) |
| D | Overall width with band 36″ 42″ 48″ | 363/16″ (919.2) 423/16″ (1071.6) 483/16″ (1224) |
| E | Height of doors | 7015/16″ (1801.8) |
| F | Height of grille | 39/16″ (90.5) |
| G | To bottom of solid soffit (min. max) | 831/2″ (2120.9) 845/8″ (2149.5) |
| H | Overall width with side trims 42″ 48″ | 423/8″ (1076.3) 483/8″ (1228.7) |
| I | Water line location distance from side | 173/4″ (450.9) |
| J | Water line location distance from front | 31/4″ (82.6) |

Electrical Requirements
WARNING
Electrical Shock Hazard
Plug into a grounded 3 prong outlet.
Do not remove ground prong.
Do not use an adapter.
Do not use an extension cord.
Failure to follow these instructions can result in death,fire, or electrical shock.
Electrical: A 115V, 60 Hz, AC only, 15A or 20A fused, grounded electrical supply is required. It is recommended that a separate circuit serving only your refrigerator be provided.
Use an outlet that cannot be turned off by a switch. Do not use an extension cord.

Water: A cold water supply with water pressure of between 30 psi and 120 psi (207 kPa and 827 kPa) is required to operate the water dispenser and ice maker. If you have questions about your water pressure, call a licensed, qualified plumber.

| Description | Inches (mm) | |
| A | Width from FC side of refrigerator to handle – door fully open 130° 42″ 48″ | 1011/16″ (271.5) 125/16″ (312.7) |
| B | Width from FC side of refrigerator to handle – door fully open 110° 42″ 48″ | 53/4″ (146) 65/8″ (168.3) |
| C | Width from RC side of refrigerator to handle – door fully open 110° 42″ 48″ | 713/16″ (198.4) 9″ (228.6) |
| D | Width from RC side of refrigerator to handle – door fully open 130° 42″ 48″ | 141/2″ (368.3) 1613/16″ (427) |
| E | Space required for water lines and power chord | 1″ (25.4) |
| F | Depth to machine compartment cover | 1915/16″ (506.4) |
| G | Depth without doors | 223/8″ (568.3) |
| H | Depth with doors | 25″ (635) |
| I | Depth with RC door open 90° 42″ 48″ | 473/16″ (1198.6) 5011/16″ (1287.5) |
| J | Space required for side cabinet for the door fully open | 6″ (152.4) |
| K | Cabinet Width 42″ 48″ | 41″ (1041.4) 47″ (1193.8) |

| Description | Inches (mm) | |
| A | Height to top of doors | 741/2″ (1892.3) |
| B | Height of Cabinet | 71″ (1803.4) |
| C | Height to top of machine compartment cover | 833/16″ (2113) |
| D | Depth to machine compartment cover | 1915/16″ (506.4) |
| E | Depth without doors | 223/8″ (568.3) |
| F | Depth with doors | 25″ (635) |
| Interior dimensions | Width Inches (mm) | Height Inches (mm) |
| Refrigerator Compartment 42″ 48″ | 2013/16″ (528.6) 245/16″ (617.5) | 671/16″ (1703.4) |
| Freezer Compartment 42″ 48″ | 145/16″ (363.5) 1613/16″ (427) | 663/4″ (1695.5) |
Location Requirements
WARNING
Explosion HazardKeep fammable materials and vapors, such as gasoline, away from refrigerator.Failure to do so can result in death, explosion, or fire.
To ensure proper ventilation for your refrigerator, allow for 1/2″ (12.7 mm) of space on each side and at the top. Allow for 1″ (25.4 mm) of space behind the refrigerator. If your refrigerator has an ice maker, allow extra space at the back for the water line connections. When installing your refrigerator next to a fixed wall, leave a 2″ (50.8 mm) minimum space on each side (depending on your model) to allow the doors to swing open.

NOTES:
- This refrigerator is intended for use in a location where the temperature ranges from a minimum of 55°F (13°C) to a maximum of 110°F (43°C). The preferred room temperature range for optimum performance, which reduces electricity usage and provides superior cooling, is between 60°F (15°C) and 90°F (32°C). It is recommended that you do not install the refrigerator near a heat source, such as an oven or radiator.
- Normal minimum cabinet cut-out width required for product installation is 36″ (914.4 mm). However, if the product is placed against an extended wall and the ability to remove the crisper pans is desired, an additional 18″ (457.2 mm) of cabinet width is required, so a total cabinet opening width of 54″ (1371.6 mm) is recommended.
INSTRUCTION

| Refrigerator Compartment Features | |||
| Description | A Width Inches (mm) | B Height Inches (mm) | C Depth Inches (mm) |
| Meat pan 42″ 48″ | 2011/16″ (525.5) 243/16″ (614.4) | 61/16″ (154) | 127/8″ (327) |
| Crisper pan 42″ 48″ | 2011/16″ (525.5) 243/16″ (614.4) | 715/16″ (201.6) | 169/16″ (420.7) |
| Pull out tray 42″ 48″ | 207/16″ (519.1) 2315/16″ (608) | 23/8″ (60.3) | 129/16″ (319.1) |
| Shelf 42″ 48″ | 203/16″ (512.8) 2311/16″ (601.7) | N/A | 14″ (355.6) |

| Freezer Compartment Features | |||
| Description | A Width Inches (mm) | B Height Inches (mm) | C Depth Inches (mm) |
| Basket Freezer 42″ 48″ | 133/4″ (349.3) 161/4″ (412.8) | 87/16″ (214.3) | 103/16″ (258.8) |
| Bottom Wire Shelf 42″ 48″ | 137/8″ (352.4) 167/16″ (417.5) | N/A | 71/8″ (181) |
| Top Wire Shelf 42″ 48″ | 137/8″ (352.4) 167/16″ (417.5) | N/A | 119/16″ (293.7) |
| Ice Bin 42″ 48″ | 137/8″ (352.4) 165/16″ (414.3) | 87/16″ (214.3) | 1211/16″ (322.3) |
©2022 KitchenAid. All rights reserved. Used under license in Canada.
Tous droits réservés. Utilisé sous licence au Canada.


















