FADINI APROLI 280-700 Robusto

GENERAL WARNINGS FOR PEOPLE SAFETY
THANK YOU
Thank you for purchasing a Fadini product.
Please read these instructions carefully before using this appliance. The instructions contain important information which will help you get the best out of the appliance and ensure safe and proper installation, use and maintenance.
Keep this manual in a convenient place so that you can always refer to it for the safe and proper use of the appliance.
INTRODUCTION
This operator is designed for a specific scope of applications as indicated in this manual, including safety, control and signaling accessories as minimum required with Fadini equipment.
- Any applications not explicitly included in this manual may cause operation problems or damages to properties and people.
- Meccanica Fadini snc is not liable for damages caused by the incorrect use of the equipment, or for applications not included in this manual or for malfunctioning resulting from the use of materials or accessories not recommended by the manufacturer.
- The manufacturer reserves the right to make changes to its products without prior notice.
- All that is not explicitly indicated in this manual is to be considered not allowed.
BEFORE INSTALLATION
Before commencing operator installation assess the suitability of the access, its general condition and the structure.
- Make sure that there is no risk of impact, crushing, shearing, conveying, cutting, entangling and lifting situations, which may prejudice people safety.
- Do not install near any source of heat and avoid contacts with flammable substances.
- Keep all the accessories able to turn on the operator (transmitters, proximity readers, key-switches, etc) out of the reach of the children.
- Transit through the access only with stationary operator.
- Do not allow children and/or people to stand in the proximity of a working operator.
- To ensure safety in the whole movement area of a gate it is advisable to install photocells, sensitive edges, magnetic loops and detectors.
Use yellow-black strips or proper signals to identify dangerous spots. - Before cleaning and maintenance operations, disconnect the appliance from the mains by switching off the master switch.
- If removing the actuator, do not cut the electric wires, but disconnect them from the terminal box by loosening the screws inside the junction box.
INSTALLATION
All installation operations must be performed by a qualified technician, in observance of the Machinery Directive 2006/42/CE and safety regulations EN 12453 – EN 12445.
- Verify the presence of a thermal-magnetic circuit breaker 0,03 A – 230 V – 50 Hz upstream the installation.
- Use appropriate objects to test the correct functionality of the safety accessories, such as photocells, sensitive edges, etc.
- Carry out a risk analysis by means of appropriate instruments measuring the crushing and impact force of the main opening and closing edge in compliance with EN 12445.
- Identify the appropriate solution necessary to eliminate and reduce such risks.
In case where the gate to automate is equipped with a pedestrian entrance, it is appropriate to prepare the system in such a way to prohibit the operation of the engine when the pedestrian entrance is used. □ Apply safety nameplates with CE marking on the gate warning about the presence of an automated installation. □ The installer must inform and instruct the end user about the proper use of the system by releasing him a technical dossier, including: layout and components of the installation, risk analysis, verification of safety accessories, verification of impact forces and reporting of residual risks.
INFORMATION FOR END-USERS
The end-user is required to read carefully and to receive information concerning only the operation of the installation so that he becomes himself responsible for the correct use of it.
- The end-user shall establish a written maintenance contract with the installer/maintenance technician (on -call).
- Any maintenance operation must be done by qualified technicians.
- Keep these instructions carefully.
WARNINGS FOR THE CORRECT OPERATION OF THE INSTALLATION
For optimum performance of system over time according to safety regulations, it is necessary to perform proper maintenance and monitoring of the entire installation: the automation, the electronic equipment and the cables connected to these.
- The entire installation must be carried out by qualified technical personnel, filling in the Maintenance Manual indicated in the Safety Regulation Book (to be requested or downloaded from the site www.fadini.net/supporto/downloads).
- Operator: maintenance inspection at least every 6 months, while for the electronic equipment and safety systems an inspection at least once every month is required.
- The
manufacturer, Meccanica Fadini snc, is not responsible for non-observance of good installation practice and incorrect maintenance of the installation.
DISPOSAL OF MATERIALS
Dispose properly of the packaging materials such as cardboard, nylon, polystyrene etc. through specializing companies (after verification of the regulations in force at the place of installation in the field of waste disposal). Disposal of electrical and electronic materials: to remove and dispose through specializing companies, as per Directive 2012/19/UE.
Disposal of substances hazardous for the environment is prohibited.
CE DECLARATION OF CONFORMITY of the manufacturer:
Meccanica Fadini snc (Via Mantova, 177/A – 37053 Cerea – VR – Italy) declares under own responsibility that: APROLI 280/700 Robusto complies with the 2006/42/CE Machinery Directive, and also that it is sold to be installed in an “automatic system”, along with original accessories and components as indicated by the manufacturing company. An automatic gate operator is, by law, a “machinery” and therefore the installer must fit the equipment with all of the applicable safety norms. The installer is also required to issue the installer’s Declaration of Conformity. The manufacturer is not liable for possible incorrect use of the product. The product complies with the following specific norms: analysis of the risks and subsequent action to cure them as per EN 12445 and EN 12453, Low Voltage Directive 2014/35/UE,Electromagnetic Compatibility 2014/30/UE. In order to certify the product, the manufacturer declares under own responsibility the compliance with the EN 13241-1 PRODUCT NORMS.
GENERAL DESCRIPTION OF THE PRODUCT
Aproli 280/700 Robusto is an oil-hydraulic operator for external application, fitted with an articulated arm made of steel, studied to open and close swinging gates mounted on pillars of large dimensions.
Aproli 280/700 Robusto is a handed unit depending on which gate side it is to be mounted either on the right or the left (view from inside the property); the motor shaft is factory pre-set in the correct position to take the arm for either right or left applications. it is an oil-hydraulic product and has all the advantages that such systems can offer, such as reliability, smooth movements, adjustable thrust power being controlled by low and high-pressure valves, and flexibility as it can suit most types of swinging gates.
Quick and easy to install. The pressure-cast aluminium back bracket is fastened to the gate pillar by means of expanding bolts and provides support to the drive assembly, made of galvanized steel and aluminium and fixed by screws.
The pivoting shaft is made of hardened steel to ensure long-lasting reliability over time.
The driving arm (right- or left-handed version) is made of cataphoresis-treated steel and has the advantage that its last section can be adjusted into three different lengths to meet any installation requirements, even with pillars of large dimensions.
This operator is fitted with a bidirectional locking device to hydraulically lock the gate in open and closed positions.
For Aproli 280/700 Robusto to work as an automatic system it is required that an electronic control box type Elpro be fitted externally in a sheltered place. Operations can be selected to be either fully automatic or semiautomatic (closing by pulse), depending on the user’s requirements.
The system is designed to work together with accessories that ensure proper operations in full safety and reliability, making it suitable for any public or private applications.
A polycarbonate cover protects the inner drive unit, and a flap allows only authorized access to the control valves by means of a coded key for the following operations: high and low pressure adjustment, manual release and removal of the cover.
COMPONENTS

- Back bracket for gate post fixing
- Motor pump-jack assembly Aproli 280/700 Robusto right- or left-hand
- Cover with lockable flap for manual release by coded key
- Right-hand complete arm assembly
- Left-hand complete arm assembly
- Bracket for gate fixing
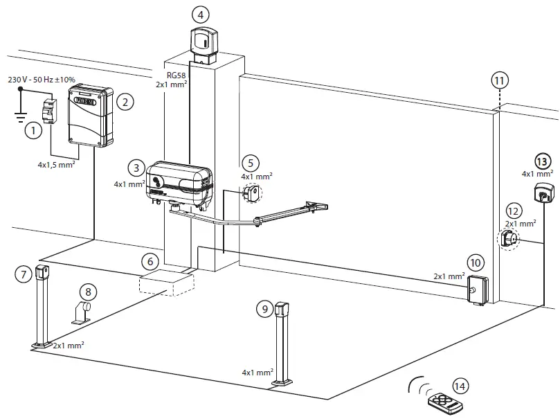
ELECTRICAL WIRING DIAGRAM AND LAYOUT OF THE ACCESSORIES
Before installing Aproli 280/700 Robusto it is advisable that preparatory works be carried out for all of the accessories required at least to ensure safety and proper control of the system.
General layout: it is the installer’s care and responsibility to properly lay the tubes required for the electrical connections.

- 230 V – 50 Hz – 0,03 A magneto-thermal circuit breaker (cable section recommended to be 2,5 mm² beyond 100 m)
- Control box with plug-in radio receiver
- Aproli 280/700 Robusto, left-hand
- Flasher
- Photocell receiver
- Junction pit
- Photocell transmitter on post mount
- Ground gate stop in open position [A]
- Photocell receiver on post mount
- Gate electric lock recommended beyond 2 m width per gate leaf
- Gate stop in closed position [A]
- Photocell transmitter on post mount
- Keyswitch
- Radio transmitter
A]: IMPORTANT: ground gate stops in open and closed gate positions are most important for proper operations and therefore for the safety of the system equipped with Aproli 280/700 Robusto.
RIGHT- AND LEFT-HANDED APROLI 280/700 ROBUSTO
Aproli 280/700 Robusto is distinguished into right- and left-handed depending on which gate side it is installed to (gate closed, view from inside): the distinction is very important as Aproli 280/700 Robusto comes, by factory default, with the rotation shaft already preset to be installed either on to the right or left side of the gate.

Pic. 3
Aproli 280/700 Robusto, by factory default, is a handed unit and the rotation shaft is set for either right or left installation, viewing the gate from inside, in closed position.
PRELIMINARY STEP – CHECKING THE FIXING POINTS
It is fundamental that the arm be fixed onto the gate in a structural point.
The fixing of the operator back bracket depends on this point and consequently also the position/outlet of the tube for the electrical connections and voltage supply (Pic. 4).
The gate post fixing bracket has two openings at the back side towards the gate post and two in the bottom: in this way it can meet any application requirements (Pic. 4).

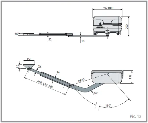
INSTALLATION DISTANCES
Aproli 280/700 Robusto comes with an arm whose gate fixing end can be adjusted into three lengths (460, 520 and 580 mm):

Pic. 5
[B]: The distances indicated in the table have been calculated on a gate having a thickness of 50 mm and a gate hinge positioned at 50 mm from gate post. The above considerations can be applied even to gates having a different size, leaving to the experience and technical skill of the installer the task of assessing the most suitable fixing geometry.

FIXING APROLI 280/700 ROBUSTO TO THE SUPPORT BRACKET
Mount Aproli 280/700 Robusto onto the support bracket; the right and left versions are marked Dx and Sx on the aluminium casting,
as indicated in Pic. 7.

POWER SUPPLY AND FIRST RUNNING TEST
Remove the cover to have access to the terminal board for power supply connections.
Cut the marked area to get an inlet for the power supply cable fitted with a cable gland (Pic. 8).

FIXING THE ARM
In order to mount the arm, it is required that the motor be supplied with voltage so it can rotate the square shaft towards the opening direction of the gate

ADJUSTING THRUST FORCE
In order to adjust thrust power in opening and closing, turn the respective adjusting screws on the motor pump casting (Pic. 10).

FITTING THE FRONT COVER BACK
Once setting is completed, first put the operator cover back and secure it by the screws, then close the flap by the key (Pic. 11).

TECHNICAL SPECIFICATIONS
HYDRAULIC PUMP AND OPERATOR
- Working temperature -20 °C +80 °C [C]
- Working torque 250-400 Nm
- Piston diameter 80 mm
- Piston stroke 62 mm
- Oil type Oil Fadini – Item 708L
- Shaft rotation angle 130°
- Weight of operator c/w arm 19 kg
- Protection standard IP 67
[C]: -40 °C with specific optional accessories (Ref. General Catalogue).
ELECTRIC MOTOR
- Power output 0,18 kW (0,25 CV)
- Supply voltage 230 Vac
- Frequency 50 Hz
- Absorbed power 250 W
- Absorbed current 1,2 A
- Motor rotation speed 1.350 rpm
- Capacitor 12,5 μF
- Intermittent service S3
APPLICATIONS
- Max gate weight per leaf 400 kg
- Max gate width per leaf 3 m
VERSIONS
- Non locking (reversible): an electric lock is needed
- With bidirectional hydraulic locking device
PERFORMANCE
- Frequency of use very intensive
- Service cycle opening 23 s
dwell 30 s
closing 23 s
dwell 30 s - Complete cycle time 106 s
- Complete cycles
- opening-dwell-closing-dwell No. 34/hour
- Annual cycles (with 8 hours of use per day) No. 99.280


Pic. 13
The gate structure, design (solid, in-filled), height and strong wind pressure may affect and decrease the indicated values.
Make always sure the gate structure is adequate to automation.
MAINTENANCE RECORD
hand over to the end user of the installation
| MAINTENANCE RECORD hand over to the end user of the installation | the gate opener
| |||||||||
| Installation address: | Maintainer: | Date: | ||||||||
| Installation type: Sliding gate |
| Folding door |
| Operator model: | Quantity of models installed: | |||||
| Swinging gate Road barrier | Dimensions per gate leaf: | |||||||||
| Overhead door | Bollard | |||||||||
| Weight per gate leaf: | Installation date: | |||||||||
| Lateral folding | ……………………….. | |||||||||
| door | ||||||||||
| NOTE WELL: this document must record any ordinary and extraordinary services including installation, maintenance, repairs and replacements to be made only by using Fadini original spare parts. This document, for the data included in it, must be made available to authorized inspectors/officers, and a copy of it must be handed over the end user/s. The installer/maintainer are liable for the functionalities and safety features of the installation only if maintenance is carried on by qualified technical people appointed by themselves and agreed upon with the end user/s. | ||||||||||
| N° | Service date | Service description | Technical maintainer | End user/s | ||||||
| 1 | ||||||||||
| 2 | ||||||||||
| 3 | ||||||||||
| 4 | ||||||||||
| 5 | ||||||||||
| 6 | ||||||||||
| Stamp and signature installation technician/maintainer | Signed for acceptance end user buyer | |||||||||
GUIDANCE FOR PROPER USE
(for the end user)
WARNINGS
- Transit across the gate is allowed only if motor is stopped; stand at safe distance during opening and/or closing cycles of the gate.
- Do not touch any components of the system while the operator is working.
- Do not allow children and/or people to stand in the proximity of a working operator.
- Keep all the accessories able to turn on the operator (transmitters, proximity readers, key-switches, etc.) out of the reach of the children.
- Do not run the system in case of anomalies.
DISPOSAL OF MATERIAL: dispose properly of the packaging materials such as cardboard, nylon, polystyrene etc. through specializing companies (after verification of the regulations in force at the place of installation in the field of waste disposal). Disposal of electrical and Zelectronic materials: to remove and dispose through specializing companies, as per Directive 2012/19/UE. Disposal of substances hazardous for the environment is prohibited.
MAINTENANCE
For optimum performance of system over time according to safety regulations, it is necessary to perform proper maintenance and monitoring of the entire installation: the automation, the electronic equipment and the cables connected to these. The entire installation must be carried out by qualified technical personnel. Operator: maintenance inspection at least every 6 months, while for the electronic equipment and safety systems an inspection at least once every month is required. The manufacturer, Meccanica Fadini snc, is not responsible for the non-observance of good installation practice and incorrect maintenance of the installation.
Advice for the end user:
- clear the site of materials that may have deposited in the equipment and hinder its correct functioning (such as rests of insects, foliage,stones, etc.); before carrying out this operation, switch off voltage supply;
• clean regularly the equipment by using a damp cloth. Do not use flammable substances such as alcohol, solvents or benzene: these
substances may cause explosions and/or damage the system.
RELEASING FOR MANUAL OPERATIONS
Manual override allows for Aproli 280/700 Robusto to be disengaged from the gate. This is possible by opening the flap in the front cover and lowering the release lever. To engage it back, raise the lever until tightened but avoid overtightening (Pic. 15).

Via Mantova, 177/A – 37053 Cerea (VR) Italy
Ph. +39 0442 330422 Fax +39 0442 331054
[email protected] – www.fadini.net
2012/19/UE Directive
Re. disposal of electri and electronic waste
DISPOSE PROPERLY OF MATERIALS ARMFUL TO THE ENVIRONMENT



















