ENSTO IP20 80 mm Peta Panel Heaters Instruction Manual
Safety Instructions
Electrically skilled person
- The installation must only be done by an electrician with the appropriate qualifications.
- This manual is a part of the product and must be stored in a safe location so that it is available for future installation and service.
WARNING
Danger of electric shock! Risk of fire!
- Improper installation can cause personal injury and property damage.
- Disconnect the power supply before carrying out any installation or maintenance work on this heater.
- Do not operate a defect heater.
- In order to avoid overheating, do not cover this heater, figure 1.4.
- If the supply cord is damaged, it must be replaced by the manufacturer or electrically skilled person
CAUTION
- People who are not able to operate according to this manual must not use this appliance.
- Some parts of this heater can become very hot and cause burns. Particular attention has to be where children and vulnerable people are present.
- Children of less than 3 years should be kept away unless continuously supervised.
- Children aged from 3 years and less than 8 years shall only switch on / off the heater provided that it has been placed or installed in its intended normal operating position and they have been given supervision or instruction concerning the use of the heater in a safe way and understand the hazards involved. They shall not plug in, regulate and clean the heater or perform user maintenance.
Mounting



Electrical connection

Thermostat

Calibration of the thermostat
Function
red => heating on
green => heating off
blue => temperature change
blue blinking => pairing between the heater and mobile device is ongoing.
blue blinking quickly => factory defaults are resetting.
blue and red blinking alternately => faulty sensor.
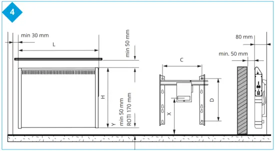
Dimensions

| Type | *P (W) | mm | IP | |||||
| L | C | D | H | X | Y | |||
| TASO2-BT | 200 | 300 | 100 | 280 | 400 | 200 | 50 | 20 |
| TASO3-BT | 350 | 500 | 225 | 280 | 400 | 200 | 50 | 20 |
| TASO5-BT | 550 | 800 | 300 | 280 | 400 | 200 | 50 | 20 |
| TASO8-BT | 800 | 1100 | 600 | 280 | 400 | 200 | 50 | 20 |
| TASO10-BT | 1000 | 1370 | 600 | 280 | 400 | 200 | 50 | 20 |
| TASO12-BT | 1200 | 1670 | 1200 | 280 | 400 | 200 | 50 | 20 |
| LISTA2-BT | 200 | 500 | 225 | 90 | 200 | 75 | 50 | 20 |
| LISTA3-BT | 350 | 800 | 300 | 90 | 200 | 75 | 50 | 20 |
| LISTA5-BT | 500 | 1100 | 600 | 90 | 200 | 75 | 50 | 20 |
| LISTA7-BT | 700 | 1370 | 600 | 90 | 200 | 75 | 50 | 20 |
| LISTA9-BT | 900 | 1670 | 1200 | 90 | 200 | 75 | 50 | 20 |
| ROTI1-BT | 150 | 300 | 100 | 280 | 400 | 270 | 170 | 24 |
| ROTI3-BT | 350 | 500 | 225 | 280 | 400 | 270 | 170 | 24 |
| ROTI5-BT | 500 | 810 | 300 | 280 | 400 | 270 | 170 | 24 |
| ROTI7-BT | 700 | 1100 | 600 | 280 | 400 | 270 | 170 | 24 |
| PETA2-BT | 200 | 500 | 225 | 90 | 200 | 75 | 50 | 20 |
| PETA3-BT | 350 | 500 | 225 | 280 | 400 | 200 | 50 | 20 |
Ensto Control Heat application
Download the Ensto Heat Control application from Apple Store or Google Play.
Android version 4.3 and above
iOS version 8.0 and above
Ensto Heat Control
Pair the heater with your mobile device
When the heater is paired with your mobile device, you can control the heater with the application.
Home display
Wireless connection between Master and Slave heaters
Reset the factory settings
When you reset the heater’s factory settings, all settings and connections to mobile devices will be lost.
Replace the battery

Installation instructions
- The heaters are intended for permanent installation on the wall rack included in the package, figures 1.1 … 1.3.
- Do not install the heater immediately below a socket outlet, figure 1.4.
- Connect the heaters according to figures 2.1 and 2.2. The heaters are double-insulated, class II, separate earthing is not required.
- When slave heaters are connected to a master heater, the total power must not exceed the values in the table in figure 2.2. This does not concern wireless connection.
- Models with a connection box are possible to control with an external voltage. Connect the external voltage to the connector 4. Any phase can be used for the external temperature control.
- The heaters are equipped with an electronic thermostat.
- All the heaters are fitted with overheating protection. In the PETA heater the overheating protection can be reset manually (red button). In other types the overheating protection resets automatically.
- In cramped quarters and locations in which the heater may be covered up accidentally, a PETA heater must be used.
- Please do not install the splashpro of ROTI heater in places in which it can be subjected to a heavy jet of water. When the ROTI heater is installed in a bathroom, the switch and other controls must not be within the bather’s reach.
Commissioning the Heater
- Use the power switch (A) to switch the heater on (position I) and off (position 0), figure 3.1.
- Adjust the desired temperature with the adjustment knob (C).
Calibration of the adjustment knob
- Check the temperature after approximately 24 hours. If the temperature does not correspond with the set value, calibrate the adjustment knob on the thermostat in accordance with figure 3.2.
User Instructions for Ensto Heat Control Application
With this application you can program and change the settings of your heater. Bluetooth technology is used for the wireless connection. You can connect to one device at a time. The range in free space is approximately 5m.
Commissioning the application
- Download the Ensto Heat Control application from Apple Store or Google Play, figure 5.1. Note! Pair your mobile device and heater only via the Ensto Heat Control application. DO NOT pair the heater using the device’s own Bluetooth menu. If you have paired the heater from the mobile device’s own Bluetooth menu, the application is not able to contact the heater. To correct the situation first remove the heater from the mobile device’s own Bluetooth menu and then pair it via the application. When paired via application the connection works. The heater also appears in the mobile device’s own Bluetooth menu.
When pairing allow the Ensto Heat Control application to use the location service, if the application requests it. It depends on the mobile device, if the application needs permission to use the location service from the mobile device itself in order to use the Bluetooth low energy radio on the mobile device. If you do not give the permission, the application is not able to use the Bluetooth low energy radio and the application is not able to connect to the heater. The Ensto Heat Control does not collect user’s location information and does not need the location service itself, but the application requires the Bluetooth low energy radio for wireless data transfer between the application and the heater. - Open the application. In “DEMO” mode you can practice using the application. The Tutorial video shows application’s features and guides you through the commissioning. At any time, you can go back to the Tutorial through the “Support” menu.
- After the Tutorial, pair your mobile device with your heater, figure 5.2.
- Switch on the heater with the power switch (A).
- Press the Bluetooth button (B) on the heater for 1 second.
- The blue LED indicator (E) blinks.
- When the application has found your heater, you can see the default name “New heater” on your mobile display.
- Press the “New heater” button within 45 seconds.
- The blue LED indicator (E) turns off, when the pairing is completed or 45 seconds is exceeded.
- Now you can find your heater in “Devices / My devices”.
- See also Home display, figure 5.3.
Temperature Change with Calendar, Boost and Vacation
- With this application you can change the setting temperature adjusted with the adjustment knob C on the heater.
- The change may be either a rise or a drop in temperature.
- The blue LED indicator (E) is on when the temperature change is connected.
- Press the
button on home display to enter the editing mode. - “Calendar” is intended for weekly reoccuring events. For example, on weekdays you can drop the temperature overnight and while you are away, during weekends you may want to drop the temperature overnight. Note! When making settings for overnight, the night must be in two sections.
- “Boost” is intended for a temporary temperature change. For example, after a shower you can raise the temperature in the bathroom, so that the floor will dry faster.
- “Vacation” is intended for long-term changes in temperature, e.g for a weekend break or an annual holiday.
- The “Calendar”, “Boost” and “Vacation” buttons are on / off buttons. When the temperature change is activated, the “Calendar” and “Vacation” buttons are green, the “Boost” button is orange.
- When the function ”Adaptive temperature change” is active, the thermostat will advance the heating, so that the desired temperature has been reached at the scheduled time. By default, the function is on.
External Temperature Control
- You can use external temperature control, if external voltage has been connected to the heater.
- Disable / Enable the function from “Settings / External control”.
- From “Temperature” you can set desired temperature value. The default temperature setting for external control is 10 °C.
- “Temperature change” can be either a rise or a drop in the set point temperature.
- The blue LED indicator (E) is on when the external control is in use.
- When the the external temperature control is in use you cannot use the adjustment knob (C) for setting temperature.
Wireless connection between Master and Slave heaters
- You can select any Tupa Bluetooth® heater as a Master heater.
- Establish a wireless connection, figure 5.4.
- Go to “Devices”.
- Select a heater as Master. Tap the three dots on the right to open the dialog box.
- Select one or more heaters as Slave.
- The Master heater can wirelessly control up to 10 Ensto Bluetooth® heaters.
- The Slave heaters operate in accordance with the Master heater. You cannot adjust the temperature with the adjustment knob on the Slave heater.
- All heaters must be connected to power supply. Wiring between the heaters is not needed.
- To ensure proper wireless connection between the Master heater and the Slave heaters the distance between the heaters should not be more than 5m. Take into account that walls and other obstacles between the heaters can weaken the wireless connection.
- When a heater is set as Slave, the blue LED indicator (E) is costantly on. The red-green LED indicator (D) is disabled.
- If the wireless connection between the Master heater and the Slave heater is interrupted, the blue LED indicator (E) on the Slave heater blinks in interval of 2 seconds.
Resetting the Factory Settings
- Press the Bluetooth button (B) on the heater, figure 5.5 .
- After 7 seconds, the blue LED indicator (E) starts to blink quickly.
- Paired devices, consumption information and calendar settings are removed.
Battery
- The purpose of the battery is to maintain the time during power cuts. If the clock does not keep correct time, the battery must be replaced. The battery change interval is several years and is usage dependent.
The battery may only be replaced by a skilled or instructed person.
Disconnect the power supply before replacing the battery.
- Remove the four fastening screws on the thermostat, figure 6.
- Pull the thermostat out.
- The battery is located on the thermostat circuit card.
- Replace the battery with same type of battery as the original, CR1632.
- Put the thermostat in place and secure it with the fastening screws.
- Dispose of the empty battery according to local recycling guidelines.
Technical Data
| Operating temperature | -20 … +30 °C |
| Auxiliary energy consumption | < 0,5W |
| Radio frequency range | 2,4 … 2,483 GHz |
| Radio max. power | +3 dBm |
Disposal
Do not dispose of electrical and electronic devices including their accessories with the household waste.
The heater’s cardboard packing is suitable for recycling.
When the heater is at the end of the life cycle, it must be disposed of properly according to local recycling guidelines.
Warranty
The warranty period for Ensto Tupa heaters is 5 years from the date of purchase but no longer than 6 years from the date of manufacture. The manufacture date is located on the rating label. Warranty terms, see www.ensto.com.
Declaration of Conformity
Hereby, Ensto Building Systems Finland Oy declares that the Tupa heaters are in compliance with Directive 2014/53/EU. The full text of the EU declaration of conformity is available at the following internet address: www.ensto.com.
Ensto Building Systems Finland Oy
Ensio Miettisen katu 2, P.O. Box 77
FIN-06101 Porvoo, Finland
Tel. +358 204 76 21
www.ensto.com





















