concept OPK 5760N Vapor chimney absorber
ACKNOWLEDGMENT
Thank you for purchasing a Concept product. We hope you will be satisfi ed with our product throughout its service life.
Please study the entire Operating Manual carefully before you start using the product. Keep the manual in a safe place for future reference. Make sure other people using the product are familiar with these instructions.
TECHNICAL PARAMETERS
| TECHNICAL PARAMETERS | ||
| OPK 5760 | OPK 5790 | |
| Voltage | 230 V ~ 50 Hz | |
| Power input | 279 W | |
| Version | Chimney | |
| ASSEMBLY | On the wall | |
| Width | 600 mm | 900 mm |
| Depth | 470 mm | 450 mm |
| Height | 1,000 – 1,350 mm | 1,200 – 1,560 mm |
| Output piping diameter | 150 mm | |
| Number of fans | 1 | |
| Number of fan power levels | 4 | |
| Capacity | Maximum 900 m3/h | |
| Number of fat filters | 1 | 1 |
| Mode | Airing or re-circulation | |
| Odor sensor/automatic mode | Yes/Yes | |
| Lighting | 2 x 1 W LED | |
| Weight | 13 kg | 25 kg |
| Noise level, airing/re-circulation | < 49/51 dB(A) | |
The manufacturer reserves the right to perform technical modifi cations and design changes without prior notice.
IMPORTANT NOTICES
Delivery
- Check the package and unit immediately after delivery for any damage that may have occurred during shipping.
- If the unit is damaged, do not operate it. Contact the supplier as soon as possible.
- Remove all the covering and marketing materials from the unit before the first use.
- Dispose of the packaging material properly.
Installation
- The unit is designed to be mounted on the wall.
- Follow the instructions for the appliance connection and installation.
- The unit has to be disconnected from the power socket during installation.
- Before connecting the appliance, ensure that your local connection is earthed and compliant with all applicable regulations.
- Make sure the mains voltage and current protection correspond to the values on the rating plate. Use earthed wall outlets only.
- After installation of the unit, the plug or circuit breaker shall be freely accessible.
- Only an authorized technician may install and connect your appliance.
- Improper connection and/or incompetent installation may result in injury or death.
- The manufacturer takes no responsibility for any damage incurred due to improper installation or use.
Normal operation
- Use the unit only as described in this operating manual.
- Use the unit only in a household, solely for the purpose of absorbing vapor created during cooking, or the re-circulation and absorption of odors created during cooking.
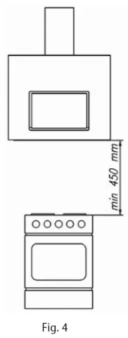
- Install the unit at least 450 mm above the electric stove (or hotplate), and 550 mm at minimum above a gas stove (or gas hotplate).
- Never operate the appliance with wet hands.
- In case of any failure, and before maintenance and cleaning, turn off the product and disconnect the plug from the mains outlet, or switch off the circuit breaker.
- Never pull the cord to disconnect the plug from the wall outlet; hold the plug instead.
- Check the appliance and power cord for damage regularly. Never switch on a damaged appliance.
- Do not immerse the power cord, plug, or appliance in water or any other liquid.
- Make sure that all controls are in the OFF position when the appliance is not in use.
- Do not handle open flame under the unit (e.g. flambee)! If you remove a cooking vessel from a gas stove, turn down the flame to the minimum, or turn it off!
- Make sure the diameter of the burner of gas stove or gas hotplate corresponds with the cookware used. When using smaller than recommended vessels, the flames could touch the sides, and plastic handles could be scorched – risk of fire!
- When you deep-fry or fry food, keep it under continuous supervision. When oil is overheated, there is a risk of fire!
- Keep the intervals for replacement and cleaning of the filters (every 2 months at minimum). If these instructions are not followed, there is a risk of fire due to fat sediments in the filters!
- For the ventilation ducts, all the applicable standards and regulations shall be observed.
- The diameter of the duct pipeline for the airing mode should be approximately the same as the diameter of output pipe of the absorber.
- The air shall not be ventilated through a chimney used for combustion gases, or in a shaft used for airing rooms where combustion chambers are installed.
- During operation in the airing mode, a sufficient opening for inlet air shall be created; its size shall be approximately the same as or bigger than that of the hole for ventilated air.
- During the simultaneous operation of the unit in airing mode and the stove, the underpressure in the room shall not exceed 4 Pa (0.04 mbar).
- Use manufacturer-recommended accessories only.
Children in the household
- The appliance is not intended for and should not be accessible to children or persons with reduced capabilities.
- The appliance is not intended for use by persons with reduced physical, sensory or mental capabilities or lack of knowledge, unless under the supervision of an acquainted person responsible for their safety.
- Take extra care when using the unit near children.
- Do not use the appliance as a toy.
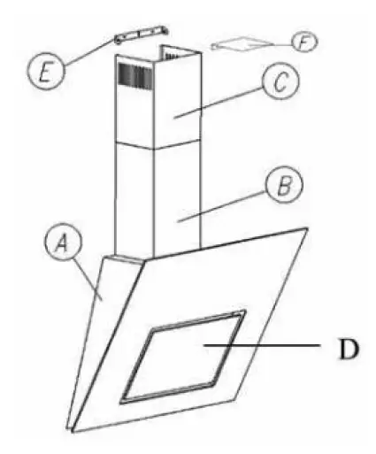
PRODUCT DESCRIPTION
- A Body of the unit
- B Lower chimney cover
- C Upper chimney cover
- D Filter casing
- E Wall holder of the upper chimney cover F Upper cover
Accessories
- Backfl ow valve
DESCRIPTION OF THE CONTROL PANEL
- Fan power level setting symbols
- Display of the set power level, or time of delayed switching off
- Symbol of setting the delayed OFF timer
- Symbol of lighting ON/OFF
OPERATING INSTRUCTIONS
WARNING!
- The touch control is activated by putting a finger on the required symbol on the control panel. Therefore, keep the control panel clean and dry.
- Each time you press a symbol, a beep can be heard. The response time for pressing a symbol is 1 second, during which time it is necessary to hold your finger on the symbol.
- The sensors do not respond to matte, dark colors (do not use black gloves).
- Make sure the unit is not accidentally switched on, e.g. during cleaning!
Before First Use
Prior to the start of use of a new unit, wipe it with a wet and then a dry cloth
Airing mode
In this mode the vapors are ventilated through the output pipe into the shaft and out of the room. If there are carbon filters installed in the unit, remove them (see the Cleaning and Maintenance paragraph).
- Select the required fan power level by pressing the „+“ and „-“ symbols (1 – 4)
- After use, switch the unit off by setting the fan power level to „0“.
Note: This appliance is equipped with boost function. When the device is set to the highest (intensive) speed 4. it will automatically decrease to 3. speed after 5 minutes of operation
Re-circulation mode
If you have no possibility to ventilate the air out of the room, the re-circulation mode can be selected. In this mode, the vapors are filtered through metal and carbon filters. Active carbon in these filters absorbs odors, and the clean air flows back to the room through holes in the upper chimney cover. For this mode, it is necessary to buy and assemble the corresponding carbon filters (see the Cleaning and Maintenance paragraph).
- Select the required fan power level by pressing the,+” and, ” symbols (1 -4).
- After use, switch the unit off by setting the fan power level to,0″.
Note:This appliance is equipped with boost function. When the device is set to the highest (intensive) speed 4. it will automatically decrease to 3. speed after 5 minutes of operation
Switching the lighting on and off
Switch the light on by pressing the L symbol. Switch the light off by repeatedly pressing the L symbol.
The lighting direction can be adjusted by tilting the lights.
Delayed OFF function
- Select the required fan power level (1 – 4).
- Press the,T” symbol to activate the delayed off function. A dot symbol will blink on the display.
- Set the required delayed off time by repeatedly pressing the, ” and,+” symbols in the range of 10-90 minutes.
Tens of minutes will be displayed, i.e. 1 = 10 minutes, 2 = 20 minutes etc. Confirm by pressing the,T” symbol (the fan power level will be displayed, and the dot symbol will blink).
Note: If you don’t confirm the delayed off settings within 20 seconds, the settings will be erased, and the delayed off function will be deactivated. - The unit will switch off automatically after the preset time runs out.
Note: If you press the,T” symbol during the countdown, or switch off the fan manually before the time runs out, the delayed off function will be deactivated.
Filter replacement signal function
This function is only indicative; it reminds you when the filters should be cleaned or replaced under standard use. The function counts hours of operation; i.e. the unit does not detect whether you have already performed the replacement or not; it just reminds you thata check-up, cleaning or replacement should be carried out. F”-signal to clean the fat filters will be displayed after 100 hours of operation. C”-signal to replace the carbon filters will be displayed after 220 hours of operation.
You may reset the counter by pressing the,T” symbol for 10 seconds; the display will go off.
CLEANING AND MAINTENANCE
- Before any maintenance and cleaning, disconnect the power cord from the mains or switch off the circuit breaker of the mains outlet of the unit.
- Do not immerse the power cord, plug, or appliance in water or any other liquid.
- Set all controls in the OFF position.
- Clean the outer surface of the unit with a wet cloth, or use a neutral detergent.
- Do not use coarse sponges, abrasive cleaners, solvents or aggressive detergents.
- Do not use an autoclave to clean the unit!
CLEANING AND REPLACING THE FILTERS
- a. Metal fat filter
Under normal use, the metal fat filter should be cleaned every 2 months. In case of more frequent frying or deep frying, shorten the interval.
Do not use the unit without a properly mounted metal fat filter!
- Open the filter casing (Fig. 1).
- Remove the metal filter (Fig. 2). If a carbon filter is mounted, remove it.
- Leave the metal filter in warm water with a detergent. Clean it with a soft brush, rinse with clean water and let dry.
- Remount the completely dry filter following the reverse steps.
- Close the filter casing.

- b. Carbon filter (must be purchased)
This filter is used only in the re-circulation mode.
The filter contains active carbon that absorbs the ventilated odors. After a while the active carbon is saturated, and loses its absorption ability. The filter can‘t be washed or otherwise cleaned.
Under normal use, the carbon filter should be replaced every 2 months. In case of more frequent frying or deep frying, shorten the interval.
- Open the filter casing (Fig. 1).
- Remove the metal filter (Fig. 2), and remove the carbon filter from it.
- Mount a new carbon filter on the metal one (Fig. 3), and put the set back.
- Close the filter casing.

UNIT INSTALLATION
- Only authorized personnel can install the power connection!
- Only the customer is responsible for installation in situ. Defects caused by incorrect installation are not covered by the warranty.
- Remove all the covering and marketing materials from the unit before the first use.
- We recommend that you let a specialized company perform the installation.
- The manufacturer bears no responsibility for damage caused to people, animals or objects as a result of incorrect installation.
Follow the installation instructions:
- Mark the minimum required assembly height on the wall behind the hotplate (450 mm for electric, and 550 mm for gas hotplates, Fig. 4).
- Mark the position of the center of the hotplate with a vertical line.
- Open the filter casing (D) and remove the fat (or carbon) filter.
- Put the unit on the wall. You will see fixing holes through the open filter casing. Mark their position on the wall.
- Drill the holes.
- Mount the unit using the supplied wall plugs (G) and screws (H) at the required height (Fig. 5).
- For the airing mode, mount the backflow valve on the output hole, and connect the output hole of the fan with the hole in the wall using a flexible pipe. If necessary, use the adapter (150/120 mm).
Note: Flexible pipe and diameter adapter are not supplied. - Mount both chimney covers to the body of the unit (B, C). Shift the upper chimney cover up to the required height, and mark the height of the hole for the wall holder on the wall. Remove both chimney covers.
- Drill holes at this height, and fix the wall holder of the upper chimney cover (E) to the wall plugs (M) using screws (L). If necessary, use the upper cover (F), Fig. 6.
- Mount and screw on the lower and upper chimney covers.
- Mount the fat (or carbon) filter.
- Close the filter casing.
- Plug the supply cable into the wall outlet.

Removal
Before removal, disconnect the power cable from wall outlet, and follow the reverse steps to remove individual parts of the unit.
TROUBLESHOOTING
| Problem | Cause, solution |
| The control does not work, or does not work properly. | There was a voltage fluctuation or blackout in the network. Disconnect the power source for 10 seconds, then reconnect. The control electronics will be reset. |
| Low suction performance | Check and clean the metal filters, or replace the carbon filters. |
| “C” symbol is displayed. | Signal for check or replacement of the carbon filter (re-circulation). |
| “F” symbol is displayed. | Signal of check or cleaning of the fat filter (airing mode) |
SERVICE
Any extensive maintenance or repair that requires access to the inner parts of the product must be performed by an expert service centre.
ENVIRONMENTAL PROTECTION
- Packaging materials and obsolete appliances should be recycled.
- The transport box may be disposed of as sorted waste.
- Polyethylene bags shall be handed over for recycling.
Appliance recycling at the end of its service life:
A symbol on the product or its packaging indicates that this product should not go into household waste. It must be taken to the collection point of an electric and electronic equipment recycling facility. By making sure this product is disposed of properly, you will help prevent the negative effects on the environment and human health that would otherwise result from the inappropriate disposal of this product. You can learn more about recycling this product from your local authorities, a household waste disposal service or in the shop where you bought this product.
References
Concept – chytře vymyšleno pro život
Domena Concept.pl jest na sprzedaż - SklepDomeny.pl
Online software pre autoservis | servis.sk
Tech.sk | Všetko o informačných technológiáchTech.sk | Magazín o internete a technológiách
Concept – chytře vymyšleno pro život
Concept innowacje w Twoim życiu!
www.my-concept.sk | vymyslené pre život
ACKNOWLEDGMENT



Note: Flexible pipe and diameter adapter are not supplied.


















