hoymiles HME Series Single-Phase Microinverter User Manual

About Microinverter
This system is composed of a group of microinverters that convert direct current (DC) into alternating current (AC) and feed it into the public grid. The system is designed for the incorporation of one microinverter per two PV modules. Each microinverter works independently and guarantees the maximum power generation of each PV module. This setup enables the user to directly control the production of a single PV module, consequently improving the flexibility and reliability of the system.
About the Manual
This manual contains important instructions for the HME-1200/1500-AU Microinverter and must be read in its entirety before installing or commissioning the equipment. For safety purposes, only a qualified technician who has received training or has demonstrated competence may install and maintain this microinverter under the guidance of this document.
Other Information
Product information is subject to change without notice. This user manual will be frequently updated. Please refer to Hoymiles official website at www.hoymiles.com for the latest version.
1. Important Notes
1.1 Product Range
This manual describes the assembly, installation, commissioning, maintenance and failure search for the following models of Hoymiles Microinverter:
- HME-1200-AU
- HME-1500-AU
*Note: “1200” means 1200 W, “1500” means 1500 W.
1.2 Target User
For safety purposes, only a qualified technician who has received training or has demonstrated competence may install and maintain this microinverter under the guidance of this document.
1.3 Symbols Used
The safety symbols in this user manual are shown below.

2. About Safety
2.1 Important Safety Instructions
The HME-1200/1500-AU Microinverter is designed and tested according to international safety requirements. However, certain safety precautions must be taken when installing and operating this microinverter. The installer must read and follow all instructions, precautions and warnings in this installation manual.
- All operations including transport, installation, start-up and maintenance must be carried out by qualified and trained personnel.
- Before installation, check the unit to ensure that it is free of any transport or handling damage, which could affect insulation integrity or safety clearances. Choose an installation location carefully and adhere to the specified cooling requirements. Unauthorized removal of necessary protections, improper use, and incorrect installation and operation may result in serious safety and shock hazards or equipment damage.
- Before connecting the microinverter to the power distribution grid, contact the local power distribution grid company to obtain the appropriate approvals. This connection must be made only by qualified technical personnel. It is the responsibility of the installer to provide external disconnect switches and Overcurrent Protection Devices (OCPD).
- Only one PV module can be connected to one input of the microinverter. Do not connect batteries or other power supply sources. The microinverter can be used only if all the technical characteristics are observed and applied.
- Do not install the equipment in adverse environments, such as environments that are flammable, explosive, corrosive, extremely hot or cold, or humid. Do not use the equipment when the safety devices do not work or are disabled.
- Always use personal protective equipment, including gloves and eye protection, while installing.
- Inform the manufacturer of non-standard installation conditions.
- Do not use the equipment if any anomalies are discovered while operating. Avoid temporary repairs.
- All repairs should be carried out by using only qualified spare parts, which must be installed in accordance with their intended use and by a licensed contractor or authorized Homilies service representative.
- Any liability arising from commercial components are delegated to their respective manufacturers.
- Any time the microinverter has been disconnected from the public network, please be extremely cautious, as some components can retain charge sufficient to create a shock hazard. Prior to touching any part of the microinverter, please ensure that surfaces and equipment are under safe touch temperatures and voltage potentials before proceeding.
- Homilies accepts no liability for damage due to incorrect or improper operation.
- Electrical Installation & Maintenance shall be conducted by a licensed electrician and shall comply with local wiring regulations.
2.2 Explanation of Symbols

2.3 Radio Interference Statement
This microinverter has been tested and found to comply with the limits for CE EMC, which provides reasonable protection against harmful energy. However, if not installed according to the instructions, the microinverter may cause harmful interference to radio equipment. There is no guarantee that such interference will not occur during a particular installation.
To confirm that the radio or television reception is affected by interference from this equipment, turn the equipment off and on to test it. If this equipment causes harmful interference to the radio or television equipment, try to correct the interference through one or more of the following measures:
- Relocate the receiving antenna.
- Increase the separation between the microinverter and the receiving antenna.
- Place a shield between the microinverter and the receiving antenna, such as a metal / concrete roof.
- Contact your dealer or an experienced radio/TV technician for help.
3. About Product
3.1 About 4-in-1 Unit
“Daisy-Chain 4-in-1 Unit Microinverter” with ultra-wide DC input operating voltage range (16 V60 V) and low start-up voltage (22 V only). The Hoymiles 4-in-1 Unit Microinverter HME-1200/1500-AU is a reliable solution for PV systems with an uneven number of panels.
3.2 Highlights
- Maximum output power up to 1200 W/1500 W. Adapted to 60-cell & 72-cell PV panels.
- Peak efficiency 96.70%. CEC weighted efficiency 96.50%.
- Static MPPT efficiency 99.80%. Dynamic MPPT efficiency 99.76% in overcast weather.
- Power factor (adjustable) 0.8 leading…0.8 lagging.
- External antenna for stronger communication with DTU.
- High reliability: NEMA 6 (IP67) enclosure. 6000 V surge protection.
3.3 Terminals Introduction

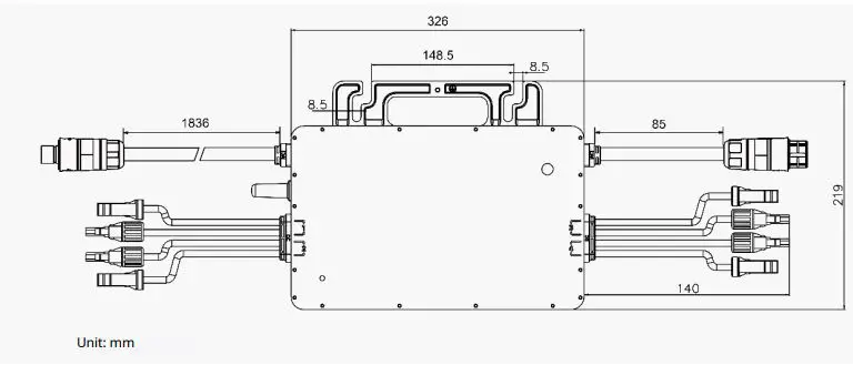
3.4 Dimension (mm)

4. About Function
4.1 Work Mode
Normal: In this mode, the microinverter operates normally and converts DC power into AC power to support the household loads and feeds into the public grid. Zero Export Control: In this mode, the microinverter’s generation is limited based on the current household loads, and there is no extra power fed into the public grid. Standby: There are several circumstances in which the microinverter will be in Standby mode:
- The current condition contradicts with the microinverter operating requirements.
- No household loads or the export control value has been set as “0” on the DTU in the Zero Export Control mode.
5. About Installation
5.1 Accessories

5.2 Installation Precautions
Please install the microinverter and all DC connections under the PV module to avoid direct sunlight, rain exposure, snow pileup, UV, etc. Allow a minimum of 2 cm of space around the microinverter enclosure to ensure ventilation and heat dissipation.
*Note: For some countries, the DTU will be required to meet local grid regulations (e.g. G98/99 for UK).

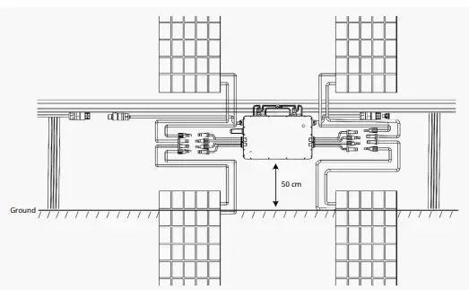
5.3 Required Space Distance
If the microinverters are installed on a concrete roof or steel roof, their communication with the DTU may be slightly affected. Under such installation conditions, it is better for the microinverters to be installed 50 cm above the roof. Otherwise, more DTUs may be required to Ground ensure communication quality between the DTUs and the microinverters.

5.4 Grounding Considerations
This microinverter is a Class I equipment with a basic isolation transformer, and this microinverter must be earthed. There is an earth wire inside the AC cable, so usually grounding can be done by directly using this wire. If the utility has any special requirements, grounding can be done by affixing the mounting bracket to the racking.
5.5 Preparation
Installation of this equipment is carried out based on the system design and the place in which the equipment is installed.
- Installation must be carried out with the equipment disconnected from the grid (power disconnect switch
on) and with the PV modules shaded or isolated. - Refer to the Technical Data to ensure that the environmental conditions fit the requirements of the
microinverter (degree of protection, temperature, humidity, altitude, etc.) - To avoid power de-rating due to an increase in the internal temperature of the microinverter, do not
expose it to direct sunlight. - To avoid overheating, always make sure that the air flow around the microinverter is not blocked.
- Do not install in places where gases or flammable substances may be present.
- Avoid electromagnetic interference that can compromise the correct operation of electronic equipment.
When choosing the installation position, comply with the following conditions: - Only install on structures specifically conceived for PV modules (supplied by installation technicians).
- Install the microinverter underneath the PV modules to make sure that it operates in a shaded or shadowed environment. If this condition cannot be met, it may trigger the microinverter production derating.

5.6 Installation Steps
Step 1. Attach Microinverter on Rail
A) Mark the approximate center of each panel on the frame.
B) Fix the screw on the rail.
C) Hang the microinverter on the screw (as shown in the picture on the right), and tighten the screw. The silver cover side of the microinverter should be facing the panel.

Step 2. Connect AC Cables of Microinverter
A) Plug the AC connector of the first microinverter into the connector of the second microinverter to form a continuous AC branch circuit.
*Note: The length of AC cable on microinverter is roughly 2.06 m, if the distance between two microinverters is more than the AC cable, please use an AC extension cable between two microinverters (as shown in the picture on the right).
B) Install the AC end cap on the open AC connector of the last microinverter in the AC branch circuit.

Step 3. Connect AC End Cable
A) Create the end cable
1. Separate the AC port into 3 parts.
2. Insert the AC cable from Part 3 to Part 2, and complete the wiring for the L, N and Ground inside the Part 1 AC port accordingly.
*Note: L: Brown wire N: Blue wire G: Yellow/Green wire
Please use 12 AWG cable as the AC end cable.

3. Plug the AC port Part 2 into Part 1 once the wiring is complete, then screw on Part 3 to complete the AC extension cable.

B) Connect the AC end cable to the AC male connector of the first microinverter to complete the circuit.
C) Connect the other side of the AC end cable to the distribution box, and wire it to the local grid network.
Step 4. Create an Installation Map
Step 5. Connect PV Modules
A) Mount the PV modules above the microinverter.
B) Connect the PV modules’ DC cables to the DC input side of the microinverter.

Step 6. Energize the System
A) Turn on the AC breaker of the branch circuit. B) Turn on the main AC breaker of the house. Your system will start to generate power after about two minutes of waiting time.
Step 7. Set Up the Monitoring System
Refer to the DTU User Manual or DTU Quick Installation Guide, and Quick Installation Guide for S-Miles Cloud (Hoymiles Monitoring Platform) Online Registration to install the DTU and set up your monitoring system.
6. Troubleshooting
This microinverter can only work with the new Hoymiles DTU (DTU-Pro, DTU-Lite and DTU-W100/DTU-G100) with the following serial number.

6.1 Troubleshooting List







6.2 Status LED Indicator
The LED flashes five times at start-up. All green flashes (1s gap) indicate normal start-up.

6.3 Insulation Resistance Detection
There is a resistance sensor in the microinverter to measure the resistance between the outputs of PV module and the ground. If there is a problem with PV module insulation, DC wiring or connectors of the module and so on, the resistance between the outputs of the module and the ground may decrease. If this resistance drops below a preset threshold, the microinverter will stop producing power and report this ground fault. This fault will persist until it is cleared on the S-Miles Cloud (Hoymiles Monitoring Platform). This fault will persist until the microinverter is rebooted.
Please note that this fault cannot be cleared if the cause of the failure is still present. If the fault persists, contact your installer or Hoymiles for possible replacement.
6.4 On-site Inspection (for qualified installer only)
To troubleshoot an inoperable microinverter, follow the steps mentioned below.

6.5 Routine Maintenance
- Only authorized personnel are allowed to carry out the maintenance operations, and such personnel are responsible for reporting any anomalies.
- Always use the personal protective equipment provided by the employer when carrying out maintenance.
- During normal operation, check that the environmental and logistical conditions are correct. Make sure that these conditions have not changed over time and that the equipment is not exposed to adverse weather conditions and has not been covered with foreign bodies.
- DO NOT use the equipment if any problems are found, and restore the proper conditions after resolving the problems.
- Conduct an annual inspection of the various components, and clean the equipment with a vacuum cleaner or special brushes.

6.6 Microinverter Replacement
a. How to remove the microinverter:
- De-energize the AC branch circuit breaker.
- Remove the PV panel from the racking and cover the panel.
- Use a meter to measure and make sure that there is no current flowing in the DC wires between the
panel and the microinverter. - Use the DC disconnect tool to remove the DC connectors.
- Use the AC disconnect tool to remove the AC connectors.
- Unscrew the fixing screw on the top of the microinverter and remove the microinverter from the PV racking.
b. How to replace the microinverter: - Please record down the new microinverter’s SN.
- Please make sure that the AC branch circuit breaker is off, and follow the microinverter installation steps to install the replacement unit.
- Go to the Monitoring Platform (if the customer already registered this station online) and access the
“Devices” page to find the device that you just replaced. Click the “Device Maintenance” button to jump to the new page and select “Replace Device”. Enter the new microinverter’s SN and click the “OK” button to complete the replacement.

7. Decommissioning
7.1 Decommissioning
Disconnect the microinverter from the DC input and AC output. remove all connection cables from the microinverter. remove the microinverter from the frame.
Pack the microinverter in the original packaging, or use a carton box that can support 5 kg of weight and can be fully closed if the original packaging is no longer available.
7.2 Storage and Transportation
Hoymiles packages and protects individual components by using suitable means to facilitate the transport and subsequent handling. Transportation of the equipment, especially by road, must be carried out by using means that are suitable for protecting the components (in particular, the electronic components) from violence, shocks, humidity, vibration, etc. Please dispose of the packaging elements in appropriate ways to avoid unforeseeable injury.
It is the customer’s responsibility to examine the condition of the components transported. Upon receiving the microinverter, it is necessary to check the container for any external damage and verify the receipt of all items. Call the delivery carrier immediately if damage is detected or components are missing. If inspection reveals damage to the microinverter, contact the supplier or authorized distributor for a repair/return determination and instructions regarding the process.
The microinverter storage temperature is -40°C to 85°C.
7.3 Disposal
- If the equipment is not used immediately or is stored for long periods, ensure that it is correctly packed. The equipment must be stored in well-ventilated indoor areas that do not have characteristics that might damage the components of the equipment.
- Conduct a complete inspection when restarting after a long time or prolonged cessation of use.
- For scrapped equipment which is potentially harmful to the environment, please dispose of the equipment properly and in accordance with the regulations in force in the country of installation.
8. Compliance Consideration
8.1 Earth Fault Alarm Notification
This inverter complies with IEC 62109-2 clause 13.9 in terms of earth fault alarm monitoring. If an Earth Fault Alarm occurs, the LED on the microinverter will light up solid red every 0.5 second. An external indication of earth fault alarm can be provided by connecting the PV System to Homilies monitoring app/portal. For details of how to configure monitoring, please refer to document “HMP Operating Guide (Webpage) V2.0” and “HMP Operation Guide (APP)”.
8.2 Power Quality Response Modes
This inverter supports the following power quality response modes as per AS 4777.2:2015: Power derating for voltage variation (Volt-Watt mode). The inverter output power varies in response to the voltage at its terminal. This mode can be enabled via grid profile module on Hoymiles monitoring platform. Please refer to document “HMP Operating Guide (Webpage) V2.0” and “HMP Operation Guide (APP)” or contact Tech Support for more information. And please refer to “Technical Note-How to set Hoymiles 3Gen Grid Profile V1.1” for more details about the grid profile.
8.3 DRM
DRM is provided to support several demand response modes by giving control signals as below.

9. Technical Data

9.1 DC Input

9.2 AC Output

9.3 Efficiency, Safety and Protection

9.4 Mechanical Data

9.5 Features

*1 Nominal voltage/frequency range can be changed depending on local requirements.
*2 Refer to local requirements for exact number of microinverters per branch.
*3 Hoymiles Monitoring System
*Note: Voltage and frequency ranges can be extended beyond nominal if required by the utility.
Appendix 1:

WIRING DIAGRAM 230 VAC SINGLE-PHASE:

WIRING DIAGRAM – 230 VAC / 400 VAC THREE-PHASE:




















