TUZIO W6073 Thames Towel Warmer Installation Guide
Towel Warmer Installation Procedure
STEP 1
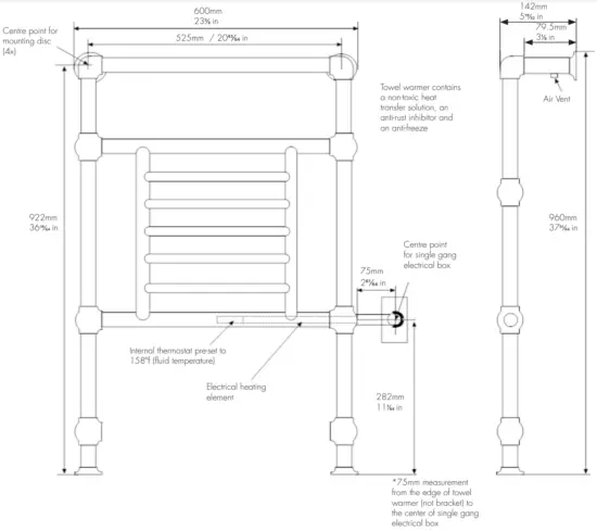
Rough-in Requirements (see figure 3)
- The incoming power feed goes to a deep single gang electrical box (for the controller). This electrical box can be located anywhere in the room, although we recommend it be alongside your light switches.
- A power feed then goes from the controller electrical box to a single gang electrical box (for towel warmer). The location of this electrical box governs the location of your towel warmer (see figure 2).
- Wall studs or plywood backing is required in the wall at all bracket locations. See figure 2 for bracket locations.
STEP 2
Installation Instructions (see figure 1)
- Check all items have been received. You should have towel warmer, hardwire kit, programmable timer and mounting discs including fixings. Read all instructions before continuing.
- Fix mounting discs “A” to the wall using the screws provided and in locations as shown on figure 2.
- Mount towel warmer and slide brackets “B” over mounting discs “A”.
- Fasten towel warmer using set screws “C” to lock mounting discs “A” into brackets “B”. Ensure the Towel Warmer is firmly and safely fixed.
STEP 3
Hardwire Connection (see figure 4)
Do not connect the towel warmer to the power supply until all instructions have been read and installation carried out in accord with them. The heating element is 150W or 300W 110V. The element conforms to UL standards and the unit to CSA standards (File ref: 229718). Ensure the CSA label is visible. TURN OFF POWER SUPPLY BEFORE PROCEEDING.
- Feed the electrical cord located at the side of the Towel Warmer first through the round tube and then through the cover plate.
- Complete all electrical connections as shown in figure 3.
- Fit tube over Towel Warmer element sleeve until it meets the hexagonal chrome collar.
- Push cover plate onto tube.
- Screw cover plate to electric box with the enclosed screws. Adjust where necessary.
Technical Drawing
Figure 2

Figure 3
Figure 4

Warning: In case of damage or failure of the towel warmer the unit should be returned to the manufacturer or their distributor. The warranty of 2 years on the heating element and limited lifetime on the towel warmer frame is NOT VALID in case of improper use or installation. Do not hang towel warmer upside down. Product is designed for use within Canada and the United States only.
Specifications
| Model # | Description | Finish | Weight (lb) | Element Size | Output (BTU) | WxH (mm) | WxH (Inches) | Metal Type |
| W6073 | Electric Hardwire | Chrome | 31.0 | 150W | 512 | 600 x 960 | 23.5” x 38” | Mild Steel |
| W6074 | Electric Hardwire | Brushed Nickel | 31.0 | 150W | 512 | 600 x 960 | 23.5” x 38” | Mild Steel |
| W6076 | Electric Hardwire | Polished Nickel | 31.0 | 150W | 512 | 600 x 960 | 23.5” x 38” | Mild Steel |
Heating Element Specifications: 150 watt / 300 watt, 12″ long / 18” long, 110 volt, 60 Htz, IP55 cord, ULC approved
Material Specifications: Brass Tube Diameter 1.25” x 0.03” (31.8mm x 1mm) tested to 11 bar and Mild Steel – Din 2394 Quality – ST 34-2 KB / Stainless Steel – Din 17457 Quality – 1.4301
Warranties:
- Towel warmer Frame: Limited lifetime warranty. Refer to www.icobath.com for full warranty coverage details
- Heating Element: 2 years
- Programmable Controller: 2 years
Fixings: Screws, and Allen Key (if needed) are included
Heating Element Location: Right-hand vertical tube unless specified otherwise.
Care & Maintenance: A periodic wash using warm water and a soft cloth will retain the high quality finish of your towel warmer for many years to come. ON NO ACCOUNT should any household bleaches, detergents, abrasive polishes, steel wool or other cleaning agents be used on this item.




















