
Network Protectors
MN024004EN
Effective April 2021
New Issue
15kV Class Padmount VisoVacTM instruction manual

DISCLAIMER OF WARRANTIES AND LIMITATION OF LIABILITY
The information, recommendations, descriptions, and safety notations in this document are based on Eaton Corporation’s (“Eaton”) experience and judgment and may not cover all contingencies. If further information is required, an Eaton sales office should be consulted. Sale of the product shown in this literature is subject to the terms and conditions outlined in appropriate Eaton selling policies or other contractual agreement between Eaton and the purchaser.
THERE ARE NO UNDERSTANDINGS, AGREEMENTS, WARRANTIES, EXPRESSED OR IMPLIED, INCLUDING WARRANTIES OF FITNESS FOR A PARTICULAR PURPOSE OR MERCHANTABILITY, OTHER THAN THOSE SPECIFICALLY SET OUT IN ANY EXISTING CONTRACT BETWEEN THE PARTIES. ANY SUCH CONTRACT STATES THE ENTIRE OBLIGATION OF EATON. THE CONTENTS OF THIS DOCUMENT SHALL NOT BECOME PART OF OR MODIFY ANY CONTRACT BETWEEN THE PARTIES.
In no event will Eaton be responsible to the purchaser or user in contract, in tort (including negligence), strict liability or otherwise for any special, indirect, incidental, or consequential damage or loss whatsoever, including but not limited to damage or loss of use of equipment, plant or power system, cost of capital, loss of power, additional expenses in the use of existing power facilities, or claims against the purchaser or user by its customers resulting from the use of the information, recommendations, and descriptions contained herein. The information contained in this manual is subject to change without notice.
Safety for life
Eaton meets or exceeds all applicable industry standards relating to product safety in its Cooper PowerTM series products. We actively promote safe practices in the use and maintenance of our products through our service literature, instructional training programs, and the continuous efforts of all Eaton employees involved in product design, manufacture, marketing, and service.
We strongly urge that you always follow all locally-approved safety procedures and safety instructions when working around high-voltage lines and equipment, and support our “Safety For Life” mission.
Safety information
The instructions in this manual are not intended as a substitute for proper training or adequate experience in the safe operation of the equipment described. Only competent technicians who are familiar with this equipment should install, operate, and service it.
A competent technician has these qualifications:
- Is thoroughly familiar with these instructions.
- Is trained in industry-accepted high- and low-voltage safe operating practices and procedures.
- Is trained and authorized to energize, de-energize, clear, and ground power distribution equipment.
- Is trained in the care and use of protective equipment such as arc flash clothing, safety glasses, face shield, hard hat, rubber gloves, clamp stick, hot stick, etc.
Following is important safety information. For safe installation and operation of this equipment, be sure to read and understand all cautions and warnings.
Hazard Statement Definitions
This manual may contain four types of hazard statements:
![]()
Indicates an imminently hazardous situation which, if not avoided, will result in death or serious injury.
![]()
Indicates a potentially hazardous situation which, if not avoided, could result in death or serious injury.
![]()
Indicates a potentially hazardous situation which, if not avoided, may result in minor or moderate injury.
NOTICE
Indicates a potentially hazardous situation which, if not avoided, may result in equipment damage only.
Safety instructions
The following are general caution and warning statements that apply to this equipment. Additional statements related to specific tasks and procedures are located throughout this manual.
Hazardous voltage. Contact with hazardous voltage will cause death or severe personal injury. Follow all locally-approved safety procedures when working around high- and low-voltage lines and equipment. G103.3
Before installing, operating, maintaining, or testing this equipment, carefully read and understand the contents of this manual. Improper operation, handling, or maintenance can result in death, severe personal injury, and equipment damage. G101.0
This equipment is not intended to protect human life. Follow all locally-approved procedures and safety practices when installing or operating this equipment. Failure to comply can result in death, severe personal injury, and equipment damage. G102.1
Power distribution and transmission equipment must be properly selected for the intended application. It must be installed and serviced by competent personnel who have been trained and understand proper safety procedures. These instructions are written for such personnel and are not a substitute for adequate training and experience in safety procedures. Failure to properly select, install, or maintain power distribution and transmission equipment can result in death, severe personal injury, and equipment damage. G122.2
Product information
Introduction
This instruction manual bulletin covers the installation, operation, and maintenance for the 15 kV Class Padmount VisoVac™ switchgear.
Read this manual first
Read and understand the contents of this manual and follow all locally approved procedures and safety practices before installing or operating this equipment.
Additional information
These instructions cannot cover all details or variations in the equipment, procedures, or process described nor provide directions for meeting every possible contingency during installation, operation, or maintenance. For additional information, contact your Eaton representative.
Acceptance and initial inspection
Each Padmount VisoVac is in good condition when accepted by the carrier for shipment. Upon receipt, inspect the shipping container/crate for signs of damage. Unpack the switchgear and inspect it thoroughly for damage incurred during shipment. If damage is discovered, file a claim with the carrier immediately.
Handling and storage
Be careful during handling and storage of the padmount switchgear to minimize the possibility of damage. If the switchgear is to be stored for a long time prior to installation, provide a clean, dry storage area.
The switchgear lifting brackets will vary based on the style of switchgear. Users should reference the mechanical drawings provided with the switchgear for location of the lifting points associated with that equipment. See Figure 1, Figure 2, and Figure 3 for common examples of lifting point locations. Lifting angles and brackets can be removed after installation.
Standards
ISO 9001 Certified Quality Management System
IEEE Std C37.74TM-2014
IEEE Std C57.12.40TM-2011
IEEE Std C57.12.28TM-2014
IEEE Std C12.57.29TM-2014

Figure 1 . Lifting point example #1

Figure 2. Lifting point example #2

Figure 3 . Lifting point example #3 (doors not shown)
Application and description
The medium-voltage Padmount VisoVac from Eaton delivers economical, reliable, and flexible solutions for distribution load-switching applications.
Eaton’s Padmount VisoVac is a three-phase, load, and high fault interrupter. Depending on the design, it is suitable for both indoor and outdoor application. Features like visible isolation and visible grounding may be included. The electrical insulation medium is air (no SF6 gas or oil is used). The vacuum interrupting mechanism can be remotely operated from a safe distance with a two-button pendant or remote operation system.
The VisoVac enclosure comes standard with powder-coated mild steel construction. The enclosure is also available in stainless steel construction. The Padmount VisoVac switchgear is specifically designed with a higher interrupting rating and higher operations.
![]()
Before energizing the VisoVac assembly, ensure that:
- The VisoVac assembly is secured on a true and level surface.
- All fastening hardware is in place and tightened.
- All conductor connections are torqued to the correct value.
Ratings and specifications
Table 1. General Specifications
| Feature | 25 kA | 40 kA |
| Rated Maximum Voltage, 50/60 Hz | ||
| Maximum Design Voltage, kV’ | 15.5/17.5 | 15.5/17.5 |
| Impulse Withstand Voltage | ||
| Line to ground (kV BIL) | 95 | 95 |
| Open Contact (kV BIL) | 95 | 95 |
| Withstand Voltage, 60 Hz | ||
| 1 min withstand, AC kV | 35 | 35 |
| 5 min withstand, DC kV | 53 | 53 |
| Continuous Current, 50/60 Hz (A) | 600/900 | 600/900 |
| Load Break Current, 50/60 Hz (A) | 600/900 | 600/900 |
| Momentary Withstand (asym pk.) | 65 | 104 |
| 1s sym withstand rating, kA | 25 | 40 |
| Sym interrupting rating, kA | 25 | 40 |
| Fault Close (asym pk.) | 65 | 104 |
| 5s withstand in ground position, kA | 15 | 15 |
| 0.2 withstand in ground position, kA | 45 | 45 |
| Mechanical breaker operations | 10,000 | 10,000 |
1. Switchgear applied at 5 kV may contain 5 kV Class-rated equipment depending on the application, consult factory for details.
Features and Construction
The VisoVac fault interrupter utilizes a stored-energy spring-charged mechanism for OPEN and CLOSE operations. The gear comes standard with a spring charging motor on all VFI (Vacuum Fault Interruption)-ways with optional spring charge motors for all switched ways. Each way comes with OPEN and CLOSE pushbutton controls and spring charge indication.
Terminations
Standard padmount terminations are IEEE 386 600 A dead break elbow style bushings mounted in the rear of the padmount enclosure on the opposite side of breaker controls. This is also known as Eaton’s Control front/Cable rear design (see Figure 4). Eaton also offers designs with the bushings and breaker controls on the same side (see Figure 5). This style switchgear can be provided in double-sided or single-sided layout designs. The following figures show the features of each of these designs.
Figure 4. Control front/Cable rear design. Controls are located in front and switchgear bushings are located in the rear of the enclosure.

Figure 5. Controls and bushings located on same side. Applies to both double-sided and single-sided designs.
In some cases, 600 A to 200 A reducers are provided if load break elbows are required.
Mounting
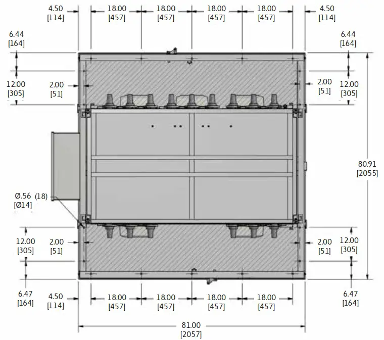
The switchgear can be mounted directly on the floor or concrete pad. The switchgear is suited for indoor or outdoor applications. Users should reference the mechanical drawings provided with the switchgear for location of the base mounting points associated with that equipment. The following are common examples of location and spacing for the base mounting.

Figure 6. Control front/Cable rear base mounting (dimensions in inches)

Figure 7. Double-sided base mounting (inches [mm])
Control voltages
The switchgear is available in most commonly used AC and DC voltages for control power and comes pre-wired to reduce on-site field installation time. Users should reference the electrical wiring schematics for details on the specific control and auxiliary voltages used in the equipment. Note that in some cases two different voltages may be used, one class for protection and another for heaters or other ancillary equipment.
Control Voltages available:
| AC Control Voltages | DC Control Voltages |
| 110 VAC | 24 VDC |
| 120 VAC | 48 VDC |
| 220 VAC | 110 VDC |
| 240 VAC | 125 VDC |
| 220 VDC | |
| 250 VDC |
V1 and V3 Switchgear Styles
V1 Vacuum interruption only
Switchgear designated as V1 will only include vacuum interruption capability. This style of switchgear does not come equipped with visible isolation or visible grounding capability. V1 style switchgear is available in both standard and low profile Control front/Cable rear configurations and double-sided configurations.
Figure 8. Control front/Cable rear configuration

Figure 9 . Double-sided configuration
The VisoVac fault interrupter’s vacuum interrupting mechanism utilizes proven Eaton technology which allows for an exceptional 25 kA or 40 kA interrupting rating.
Eaton’s environment-friendly medium voltage interrupters are capable of reliably switching high-stress currents and carrying their rated continuous current without forced cooling.
The interrupting mechanism was designed for applications where space is a premium such as padmount environments. The load break mechanism is available with up to a 900 A continuous current rating and comes with a mechanical endurance of 10,000 operations.
The three-phase vacuum interrupter can be opened manually or remotely via SCADA, protective relaying, or pendant. The vacuum interrupter is equipped with a mechanical indicator and non-resettable operations counter.
Eaton vacuum interrupters are the industry standard in quality. Please note the following:
- Each Eaton vacuum interrupter is tested throughout the manufacturing process and once again before packaging.
- A dielectric withstands test and a vacuum assurance test are performed on every interrupter.
- Additionally, Eaton also incorporates a sequential bar code that allows us to track material lots, as well as the operators involved with building each interrupter in a database.

Figure 10 . Eaton VCP-T vacuum breaker with Eaton Digitrip 1150 V relay

Figure 11. Vacuum interrupter status indicator. Left image shows status indicator in the closed position, the image on the right shows the status indicator in the open position.
For information about Eaton VCP-T vacuum circuit breaker,
please use the following link here: https://www.eaton.com/us/en-us/catalog/electrical-circuit-protection/mv-vcp-tvacuum-circuit-reakers.resources.html.

V3 Vacuum interruption with visible isolation and visible grounding
Switchgear designated as V3 will have vacuum interruption capability and come with visible isolation and a visible grounding capability. These features are mechanically interlocked internally. V3 Style switchgear is only available in a control front/cable rear configuration.


Figure 12. V3 control front/Cable rear configuration
Visible isolation
A three-pole, group-operated, non-load break, air-insulated isolation switch is located internal to the enclosure. This feature also includes a viewing window to confirm a physical disconnect between the source and load for that particular switch or VFI way only. The isolation switch is a non-load break switch and should never be used to break load under any conditions.
Indicators are physically linked to the operating mechanism and show what position the isolation switch is in. The isolation switch is mechanically interlocked internally with the vacuum interrupting load-break mechanism.
The isolation switch is also mechanically interlocked internally with the grounding switch to prevent the grounding switch from being operated while the isolation switch is in the CLOSED position.
Visible grounding
A three-pole, group-operated grounding switch is included internal to the enclosure. This feature also includes a viewing window to confirm a physical ground connected to incoming or outgoing bushings of the switchgear depending on the application.
The grounding switch is equipped with mechanical interlocks located internal to the enclosure to prevent operation of the grounding switch while the visible isolation switch is in the CLOSED position.
Indicators are physically linked to the operating mechanism to show what position the ground switch is in.
![]()
It is the duty of the operator to follow all local procedures for proper operation of the switchgear. The operator should always check that the bus connected to the ground switch is NOT energized before operating.

Figure 13. V3 Series front viewing window [Isolation (rear rods) & Grounding (front rods)]

Figure 14. Visible isolation and grounding mechanism indicator

Figure 15. Slip clutch tool
A slip clutch tool is provided with the switchgear and is the only tool approved for use with the isolation and grounding operation hubs. The slip clutch on the tool prevents the operator from applying excess torque that could damage the internal gearing.
NOTICE
Using other tools such as an impact tool could damage the gearing in the VisoVac.

Figure 16. V3 series front mimic diagram
Accessories
The Padmount VisoVac switchgear is customized to order. Therefore, each style of switchgear may be unique in how it operates, the application it is used in, the accessories it may contain, and the manufacturer of those accessories. The following are the most commonly used accessories supplied with the VisoVac.
Eaton Digitrip 1150 V Controller
Eaton’s Digitrip 1150 V is used for advanced current and voltage protections, metering, and communication functions.
The Digitrip 1150 V comes standard with energy harvesting overcurrent protection capability. During loss of power or voltage sag from a fault, the Digitrip can use the energy of the fault to maintain protection and initiate a trip in the absence of control power.
The controller continuously analyzes secondary current signals from the current sensors. When the preset current levels and time delay settings are exceeded, the controller sends a trip signal to the trip actuator of the vacuum interrupter. The trip actuator causes tripping of the vacuum interrupter by providing the required mechanical force for tripping.
The trip actuator is automatically reset each time the vacuum interrupter opens. The current sensors, controller, and vacuum interrupter are fully tested as a system for time-over-current response over the entire current range up to the interrupting rating of the vacuum interrupter.

Figure 17. Digitrip 1150 V controller
The Digitrip 1150 V trip unit can provide the following protection and metering functions:
- 51 Phase Long Delay
- 50T Phase Short Delay
- 50 Phase Instantaneous
- 51/50G Ground Fault
- 37 Phase Loss (Current Based)
- 46 Current Unbalance
- 27 Undervoltage*
- 59 Overvoltage*
- 81U Underfrequency*
- 81O Over Frequency*
- 47 Voltage Unbalance*
- 32 Reverse Power*
- Thermal Memory analyses the thermal loading of VFI
- Metering – I, V, kVA, kVAR, kW, THD, PF
*Voltage sensors are required for power and voltage-related functions.

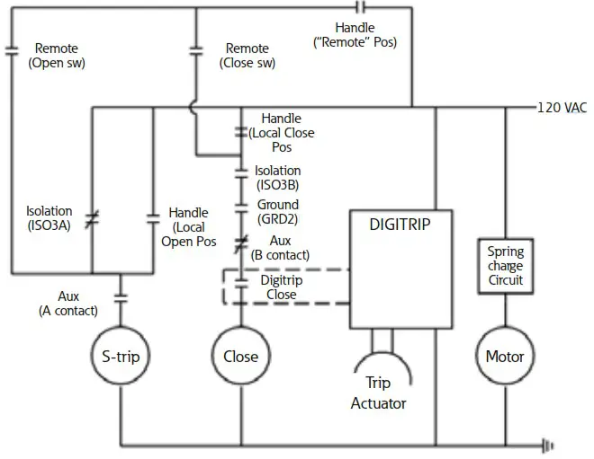
Figure 18. V3 Switchgear control schematic with Digitrip.
Eaton CH-Type current sensors are provided on ways using the Digitrip 1150 V. CH-Type sensors come standard with 1 A secondaries and are available with the following primary current ratings: 100A, 200A, 250A, 300A, 400A, 6060A, 630A, 800A, 1000A, 1200A.
For more information about the Digitrip 1150 V, please see the following link: https://www.eaton.com/content/dam/ eaton/products/electrical-circuit-protection/medium-voltagevacuum-circuit-breakers/mv-vcp-t-vacuum-circuit-breakers/digitrip-models-1150v-and-1150vi-trip-units-for-type-vcp-t-vcptr-medium-voltage-breakers-il66a7535h02.pdf.

Control Power Transformer (CPT)
Control power is supplied through a CPT upon request. Please see the “Appendix” for associated product literature and switchgear wiring schematics for CPT details. See Figure 19 for equipment access detail.
Current Transformers (CT)
Current transformers are used for current measurement for protection, control, and metering. When a Digitrip 1150 V relay is provided, it is supplied with a rating plug and matching CH-Type Eaton current transformers. See the Digitrip 1150 V link provided above for details.
Note: For all other relay styles, third-party CTs will be provided based on user specifications. Please see the “Appendix” for associated product literature and switchgear wiring schematics for details. See Figure 19 for equipment access detail.
Potential Transformer (PT)
Potential transformers can be used as a voltage measuring device and/or control power source when capacity allows. PTs are provided by third-party suppliers. Please see the “Appendix” for associated product literature and switchgear wiring schematics details. See Figure 19 for equipment access detail.
Space heaters/thermostats
Generally, space heaters are provided to assist in controlling condensation and temperature to maintain inside temperature of the switchgear. Please see the “Appendix” for associated product literature and switchgear wiring schematics for details. See Figure 19 for equipment access detail.
Surge arresters
Standard surge arresters provided with the VisoVac switchgear are manufactured by Eaton. Please see the product link below and the “Appendix” for switchgear wiring schematics for details. See Figure 19 for equipment access detail.
https://www.eaton.com/us/en-us/products/medium-voltagepower-distribution-control-systems/lightning-arresters.html

Engineered-to-Order
All switchgear is based on application requirements.
Switchgear can come with unique protection and control systems designed specifically for that application. Please review all mechanical diagrams, layout drawings, electrical schematics, and accessory-specific documentation for details in the “Appendix” section of this document.
Access panels
The VisoVac switchgear comes standard with access panels. Access panels are bolted panels that allow users to gain access to the internals of the switchgear. These panels will allow users to access some of the accessories previously listed including fusing for control power and instrument transformers. The following are examples of access panels. Users should reference the mechanical layout drawings of the equipment provided for associated details.
![]()
The switchgear must be fully deenergized and local lock-out tag-out and associated safety procedures must be followed prior to removing the access panels.


Figure 19. Remove access panels
Sequence of operations V1 Style Switchgear
V1 style padmount switchgear only comes with vacuum interruption. VFI ways and switch ways can only be opened and closed. Electrical interconnections vary depending on the application.
In this position, the vacuum interrupters are CLOSED. This Model 9-V1example assumes all ways are energized and SW-1 is the only source way. VFI-1+ are all load breakers and with no load-side sources. See Figure 21.
Note: Red represents energized bus and green represents de-energized bus.

Figure 20 . MODEL 9-V1 Single Line Diagram
In this position, the vacuum interrupters are OPEN. Example assumes all load ways (VFI-1+) are de-energized with no load-side sources and SW-1 is the only source way. SW-1 is OPEN, however the incoming source cable to the gear will be energized. See Figure 22.
![]()
The cables connected to all bushings, any control power sources or stored energy devices such as capacitors must be de-energized/discharged before gear is considered de-energized.

Figure 21. V1 style padmount – All ways CLOSED

Figure 22. V1 style padmount All ways OPEN
Sequence of operations V3 Style Switchgear
Source way operation example
V3 style padmount switchgear comes with vacuum interruption, a visible isolation switch, and visible grounding position. VFI ways and switch ways can only be opened and closed. Electrical interconnections vary depending on the application.
Note: The switchgear can be loop-fed, single-source fed, or multi-source fed. Users should become familiar with their application, operating procedures, and schematics provided with the equipment before switching.
The following sequence of operations shows the energized and de-energized state of the gear as each operation is completed. Note the example Model 9-V3 assumes switchgear is fed from a single source. Source way (SW-1) shown only for clarity. All other ways (VFI-1+) on the gear are considered VFI load ways and are not shown. The example assumes no load-side sources.
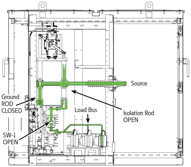
In this position, the vacuum interrupter and the visible isolation rods are CLOSED. The grounding position is OPEN and the isolation rod is energized. This example assumes all ways are energized. See Figure 24.

Figure 23. MODEL 9-V3 Single Line Diagram
In this position, the vacuum interrupter is OPEN and the visible isolation rods are CLOSED. The grounding position is OPEN and the isolation rod is energized only up to the vacuum bottle contact. This example assumes all load ways are de-energized since the source way breaker was opened and the load bus is now de-energized. See Figure 25.
![]()
The cables connected to all bushings, any control power sources, or stored energy devices such as capacitors must be de-energized/discharged before gear is considered de-energized.

Figure 24. V3 style padmount Source Way SW-1 CLOSED

Figure 25. V3 style padmount Source Way SW-1 OPEN
In this position the vacuum interrupter and the visible isolation rods are OPEN. The grounding position is OPEN and the visible isolation between the internal load bus and the cable is achieved. See Figure 26.
![]()
The ground rods will ground the cables connected to the bushings on each associated way. Ensure there is no voltage present before grounding. The cables connected to all bushings, any control power sources or stored energy devices such as capacitors must be de-energized/discharged before gear is considered de-energized.
In this position, the vacuum interrupter and visible isolation rods are OPEN. The grounding position is CLOSED. This example assumes all ways are OPEN and internal load bus is de-energized. See Figure 27.
![]()
The ground rods will ground the cables connected to the bushings on each associated way. Ensure there is no voltage present before grounding. The cables connected to all bushings, any control power sources, or stored energy devices such as capacitors must be de-energized/discharged before gear is considered de-energized.

Figure 26. V3 style padmount Isolation position Open

Figure 27. V3 style padmount Grounding position CLOSED
Load way operation example
The following sequence of operations shows the energized and de-energized state of the gear as each operation is completed. Note the example assumes switchgear is fed from a single source. Source way (SW-1) not shown is CLOSED. All other ways on the gear (VFI-1+) are considered VFI load ways and are shown. Example assumes no load side sources and all load ways are switched similarly.
In this position, the vacuum interrupter and visible isolation rods are CLOSED. The grounding position is OPEN and the isolation rod is energized. This example assumes all ways are energized. See Figure 29.
![]()
The cables connected to all bushings, any control power sources, or stored energy devices such as capacitors must be de-energized/discharged before gear is considered de-energized.

Figure 28. MODEL 9-V3 Single Line Diagram
In this position, the vacuum interrupter is OPEN and visible isolation rods are CLOSED. The grounding position is OPEN and the isolation rod is energized. This example assumes all load ways (VFI-1+) are de-energized and there are no load side sources. The source way SW-1 is closed. See Figure 30.
![]()
The cables connected to all bushings, any control power sources, or stored energy devices such as capacitors must be de-energized/discharged before gear is considered de-energized.

Figure 29. V3 style padmount Source and load ways CLOSED

Figure 30. V3 style padmount Source way CLOSED and load ways OPEN
In this position, the load-way vacuum interrupters and visible isolation rods are OPEN. The grounding position is OPEN. This example assumes all load ways (VFI-1) are de-energized and there are no load-side sources. The source way (SW-1) is closed. See Figure 31.
![]()
The ground rods will ground the cables connected to the bushings on each associated way. Ensure there is no voltage present before grounding. The cables connected to all bushings, any control power sources, or stored energy devices such as capacitors must be de-energized/discharged before gear is considered de-energized.
In this position, the load-way vacuum interrupters and visible isolation rods are OPEN. The grounding position is CLOSED. This example assumes all load ways (VFI-1) are de-energized and there are no load-side sources. The source way (SW-1) is closed. See Figure 32.
![]()
The ground rods will ground the cables connected to the bushings on each associated way. Ensure there is no voltage present before grounding. The cables connected to all bushings, any control power sources, or stored energy devices such as capacitors must be de-energized/discharged before gear is considered de-energized.

Figure 31. V3 style padmount – Load ways and visible isolation rods are OPEN

Figure 32. V3 style padmount Source way CLOSED and load side ground rods are CLOSED
V3 Isolation and Grounding Interlock Scheme
Using the slip clutch tool provided with the switchgear follow these steps:
- Open the the vacuum interrupter and lock the breaker in the OPEN position.
- Remove the key from the interrupter and place in the CON LOCK key slot.
- Unlock the CON LOCK and rotate the isolation operator counterclockwise (approximately 4 turns) until the hard stop and the isolate status flag is aligned with “ISOLATED (OPEN)”

The VisoVac is now in the isolated (OPEN) position. The ground rods will ground the cables connected to the bushings on each associated way. Ensure there is no voltage present before grounding. See “Sequence of operations V3 Style Switchgear” on page 11 in this manual. - Lock the isolation rods in the ISOLATE (OPEN) position using the ISO LOCK.
- Remove the key from the ISO LOCK position and place in the UN-GRD lock position.
- Unlock the UN-GRD lock and rotate the ground operator clockwise (approximately 4 turns) until the hard stop and the mechanical indicator is aligned with GRD (GROUNDED) status flag.
- An optional GRD LOCK is available to lock the ground rods in the grounded position.
Reverse this sequence to take the switchgear from the GRD grounded position to the ISOLATE (OPEN) position and then to the CONNECTED (CLOSE) position.
Flag Legend
Green – GRD (GROUNDED)
Yellow – UN-GRD (UNGROUNDED)
Orange – ISO ISOLATED (OPEN)
Red – CON CONNECTED (CLOSED)

Figure 33. VisoVac Key Interlock Scheme

Figure 34. VisoVac Key Interlock Label and Locks
Inspection and maintenance
In general, the VisoVac interrupter is maintenance-free. The vacuum interrupter has been tested for 10,000 mechanical operations and should not require maintenance for a long time as it is in a sealed environment without contaminants. ISO/GRD mechanism is tested for 250 operations and does not require any periodic maintenance.
It is recommended that the assembly be cycled at least once per year. One cycle is defined below.
- Open the vacuum interrupter.
- Open the Isolation mechanism.
- Close the Ground mechanism.
Note: It may not be possible to complete steps 3 and 4 without de-energizing the upstream device. In this case, step 3 and 4 can be skipped. - Open the Ground mechanism.
- Close the Isolation mechanism.
- Close the vacuum interrupter.
It is recommended not to remove any covers from the VisoVac interrupter while the assembly is in service. If any fasteners are loosened, the quality of the enclosure will be compromised. If any repair is necessary, it is recommended that the assembly be taken out of service and moved into a controlled maintenance environment. If any cover is removed for maintenance, new gasketing is required for reassembly. The following list provides a list of cleaning, testing and maintenance tasks for the vacuum interrupter and related equipment.
- Operation of breakers: After step 1 above, clean VCPT as per the linked manual.
https://www.eaton.com/content/dam/eaton/products/electrical-circuit-protection/medium-voltage-vacuumcircuit-breakers/mv-vcp-t-vacuum-circuit-breakers/vcp-tvcp-tr-instruction-book-b131016en.pdf - Heaters/thermostats: Heathers and thermostat shall be cleaned after opening of interrupter.
Dielectric testing: Once the unit has left the factory and been placed in service, subsequent dielectric tests performed during maintenance should be performed at 75% of the rating per IEEE recommendation. - Follow these steps to perform the Pre-Startup inspection:
- Inspect the equipment visually.
- Make sure all connections are tightened and all covers are closed before moving to next step.
- Make surroundings neat and clean to prevent trip-andfall injuries.
Safety features
There are several safety interlocks built into the VisoVac assembly to ensure the proper sequence of operations.
- Vacuum interrupter to Isolating mechanism interlock (V3 designs only)
a. The vacuum interrupter is mechanically interlocked with the Isolating mechanism.
b. The vacuum interrupter will not close unless the isolating rods are in the fully connected position.
c. If a tool is placed on the isolating rod mechanism, the vacuum interrupter will trip open before any electrical contact is broken. - Isolation mechanism to ground mechanism
a. The isolating mechanism is mechanically interlocked with the ground mechanism.
b. When the isolating rods are in the connected position, the ground rods are blocked from moving and remain blocked until the isolating rods are in the fully open position.
c. When the ground rods are in the connected position, the isolating rods are blocked from moving and remain blocked until the ground rods are in the fully open position. - Ground mechanism to upstream device
a. It is imperative that there be no voltage present on the cable bushings before closing the ground rods.
b. Since this requires opening the upstream device that may be blocks or even miles away, it is recommended that the user deploy their Lock-out/ Tag-out and/or operational procedures to ensure no voltage is present before closing the ground rods. - Arc reduction maintenance system (ARMS) (Digitrip 1150V only)
a. When the Arcflash Reduction Maintenance System is enabled, the internal digital logic is bypassed by a “faster than instantaneous” analog trip circuit based on user preset values. In this mode, the Digitrip is set to hair trigger and issues subcycle tripping. Total clear is estimated within 4 cycles.
b. Eaton’s Arcflash Reduction Maintenance System technology is based on the realization that when working on energized electrical equipment, a fault that occurs within the gear or downstream needs to be cleared as quickly as possible. While this seems obvious, in actual installations, intentional delays are included in upstream devices to ensure selective coordination with downstream devices. This means that if a fault were to occur inside the equipment the downstream breaker may never clear the fault regardless of how much delay is or isn’t programmed in the upstream device. While other Eaton Arcflash technologies are available, the Arcflash Reduction Maintenance System comes standard with the Digitrip 1150 V. This patented technique provides “faster than instantaneous” clearing times.
See the following link for literature on the Digitrip 1150V ARMS functionality:
https://www.eaton.com/content/dam/eaton/products/electrical-circuit-protection/medium-voltage-vacuum-circuitbreakers/mv-vcp-t-vacuum-circuit-breakers/digitrip-1150vwith-maintenance-mode-il66a7535.pdf

Control options
Manual control
The VisoVac vacuum interrupter can be controlled manually via mechanical buttons provided on the breaker or the remote pendant provided with the switchgear.
Remote control
The VisoVac interrupter can be monitored and controlled via a remote operating pendant or local control enclosure. Operations include vacuum interrupter open/close, open/ close status indication, isolation and ground rod status, and ARMS operation. Please see the “Appendix” for equipment-specific drawings, schematics, and component details.
Communications module
A communications module is used for remote and secure access to view or change the Digitrip settings, remote control of the VisoVac fault interrupter, and gain status of the vacuum interrupter, isolation, and grounding positions.
The communications module provides easy to configure data communications with seamless integration into the user’s central control system. Supports secure DNP3, MODBUS, and INCOM protocols. Please see the “Appendix” for equipment-specific drawings, schematics, and component details.
Automatic transfer control
Eaton’s ATC-900 brings intelligence, adaptability, supervisory, and programming capabilities to automatic transfer switch equipment.
Extreme reliability makes the ATC-900 ideal for mission-critical applications where VisoVac is used for auto-transfer switching. Typically used for utility-to-utility, utility-to generator, generator-to-generator, and three source transfer systems, the ATC-900 can address virtually any system requirements.
Other transfer controllers can be integrated based on customer requirements.

For more information about the Eaton ATC-900, please use the following link: https://www.eaton.com/content/dam/eaton/products/low-voltage-power-distribution-controlssystems/ats/resources/atsc9-ib140012en.pdf.
Appendix
Any equipment-specific drawings, schematics, and component details will be attached as Appendix items to this document. Contact your Eaton representative for details.

![]()
Eaton
1000 Eaton Boulevard Cleveland, OH 44122 United States Eaton.com
Eaton’s Power Systems Division
2300 Badger Drive Waukesha, WI 53188 United States Eaton.com/cooperpowerseries
© 2021 Eaton All Rights Reserved Printed in USA Publication No. MN024004EN April 2021
Eaton is a registered trademark.
All trademarks are property of their respective owners.
For Eaton`s VisoVac product information,
call 1-877-277-4636 or
visit: www.Eaton.com.



















