vita 7.5X7.5 Cardiff Pergola Installation Guide
Introduction & Overview

Getting Started
First off, allow us to say thank you for the investment you have made in one of our fine pergola kits. This kit is designed to be assembled and installed ideally by two people with basic carpentry knowledge and tools. Do not attempt alone, especially during the installation stage.
When assembling components place on a non-abrasive surface (i.e. shipping box) to avoid scratching. We recommend a 15’x15′ (4.5m x 4.5m) area for unobstructed assembling. You should not need to use excessive force when assembling any components.
Planning & Preparing
Because this project is made to stand independent of your home, you can either locate it near your house or let it stand alone in the garden. By keeping it unattached from your home you will not have to deal with moving existing gutters or matching eave heights. If you plan to build your pergola close to the house, please keep the outer extremities of the pergola a minimum of 4 inches back from your eaves.
What looks like the toughest part of this project is actually the easiest, the graceful, solid-looking columns. We’ve designed these columns to simply be slipped over treated 4×4 wood posts that are either embedded in concrete or directly mounted to a concrete or wood surface. See pages 7, 8 and 9 for more details.
It is critical before you start, to consider the current slope of elevation where the pergola is planned – if there is any. Also utility or sprinkler line location is important to identify prior to excavating holes if necessary.
You should also check to verify local building codes, ordinances, neighbour- hood covenants, or height restrictions regarding this type of structure.
Restriction of Use
This product is not designed to carry additional weight loads such as swings, people or other objects.
Please take the time to read this instruction guide thoroughly prior to the construction of your pergola. If you have any questions, feel free to contact our technical dept by calling 1 800 282 9346 (Mon to Fri 8:00 A.M to 5:00 P.M. EST).
Cardiff Pergola Materials Overview

- Post Caps (4) – 10735-1
- Posts (4) – 11123
- Main Support Beams (2) – 11122
- Rafters (5) – 11124
- Beam and Rafter Decorative End Caps (14) – 10700-1
- Shade Slats (7) – 11125
- Shade Slat Decorative End Caps (14) – 10271

Cardiff Pergola Materials Breakdown
Check Boxes (Total of 4) for These Contents
In the event of missing or defective parts please call our customer service department at 1 800 282 9346 (Mon. to Fri. 8:00 AM to 5:00 PM EST)
- Post Caps (4) – 10735-1
- Posts (4) – 11123
- Main Support Beams (2) – 11122
- Rafters (5) – 11124
- Beam and Rafter Decorative End Caps (14) – 10700-1
- Shade Slats (7) – 11125
- Shade Slat Decorative End Caps (14) – 10271

Pergola Additional Materials List
Hardware (in plastic bag)
All Screws Included with this Kit are Self-Auguring.
A. 1 1/2” (38 mm) Self-Auguring Stainless Steel Screws (35) – 20005 (to lock Shade Slats to Rafters)
B. 2 1/2” (64 mm) Self-Auguring Stainless Steel Screws (10) – 20009-1 (to lock Rafters to Main Support Beams)
C. 2 1/2” (64 mm) Self-Auguring Stainless Steel Screws (16) – 20009-1 (to lock Posts to Wood Posts)
D. 3” (76 mm) Self-Auguring Stainless Steel Screws (32) – 20007 (to lock Posts to Main Support Beams & Rafters)
E. Tube of Vinyl Glue (2) – 20000

Extra Materials You will Need
(Purchase separately from www.wearevita.com or retailer of our products)
If Mounting Pergola on Concrete or Wood Deck (not intended to be installed on concrete pavers, patio stones, or interlocking bricks)
F. 4x4x5’ (8.9×8.9×60 cm) Pressure-Treated Wood Posts (4) (purchase at local building center)
G. 4×4 Steel Post Base Kit (4) (purchase from local building center) Consult the Post Base Kit instructions for hardware requirements, as they pertain to your application.
Be sure to purchase a flush-mount style Post Base Kit as the wooden posts will need to be installed up against the inside of the vinyl posts.
If Mounting Pergola in Ground
H. 4x4x8 (8.9×8.9×244 cm) Pressure-Treated Wood Posts (4) (purchase at local building center)
I. Concrete Ready Mix (4) (purchase at local building center)

Tools You Will Need
- Level
- Hammer
- Tape Measure
- String Line
- Wood Stakes (4) (temporary support for string line)
- Step Ladders (2)
- Cordless Drill
- Pencil
Tools You May Need
- Circular Saw with Fine Tooth Blade
- Framing Level
- Framing Square
Wood Post Layout & Installation for In-Ground Application
This pergola can also be installed on a pre-existing wood or concrete surface using the steel post base kit and a 4×4 wood post (sold separate). See page eight for more details.
Post location and placement is the most critical step in the overall installation process. Please double check for the possibility of any underground utilities such as sprinkler, gas or telephone lines.
STEP ONE
Measure and mark out the location of the pergola posts using string line and temporary wood stakes. Diagonal distances must be the same to ensure a square installation. Adjust string lines accordingly. The inside corner of the string lines will be the post location.

STEP TWO
Install Wood Supporting Posts Directly into the Ground
- After you have determined where the posts will be located, excavate 10” (25 cm) diameter x 36” (91.5 cm) deep post holes.
- After holes are dug and cleaned, place the 4×4 wood post into a hole ensuring it’s level and square to string lines. The final post height should be no more than 60” (152 cm) out of the ground.
If a post is higher because of obstructed excavation of footings, please cut down in height accordingly. - Fill the vacant hole with pre-mixed concrete all the way to within 3” (8 cm) of the top of the hole. After the concrete has set, backfill the 3” (8 cm) space with soil/sod.
- Repeat for all four posts.

OPTIONAL STEP
Wood Post Layout & Installation Using Steel Post Base for Concrete or Wood Surface
- Measure and mark out the location of the steel post bases using measurements shown aside. Note that measurements are center-to center.
For dimensions between the wood posts, refer to the previous page.
- Fasten the steel post bases to your concrete or wood surface and to the wooden posts according to the manufacturer’s instruction.
Note the orientation of the “open face” fo the post bases.
STEP THREE
Vinyl Column Assembly & Installation Over Wood Posts
- Using a step ladder guide the top vinyl columns over the wood 4×4 posts down into position.
*Ensure the holes at the top of the posts are orientated correctly for future beam and rafter placement as per illustration. - Finally, adjust post heights accordingly to ensure future level installation of beams and rafters as necessary. If slope is severe causing a height difference between the posts, you may need to trim down the bottom of two or more of your posts as necessary.
- Secure the posts to the wood posts using 2 – 2 1/2” (64 mm) screws at 8” (20 cm) up from the bottom on 2 sides, and 2 more approximately 36” (91 cm) high on 2 opposite sides.

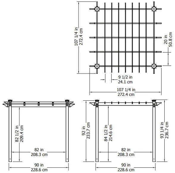
At this stage, the columns should be properly installed as per the following illustration, with the columns 82” (208 cm) apart.
STEP FOUR
Rafters Installation
- With a helper, slide the two rafters through the TOP holes in the posts as shown. Make sure the notches in the rafters are both facing down.

STEP FIVE
Main Support Beams Installation
- With a helper, slide the two main support beams through the bottom holes on the posts as shown.
The beams should overhang the posts equally (1.5 inches, 3.8 cm). - Lock the main support beams and two outside rafters to the posts using eight 3in (76 mm) screws for every post as shown. A total of 32 screws will be needed for this step.

STEP SIX
Rafters Installation
- Place the remaining three rafters onto the beams as shown.
The spacing between the rafters should be 20 inches (50.8 cm), but don’t worry for now as the shade slat installation will automatically space them out accordingly.
STEP SEVEN
Shade Slat Assembly
- Pressure fit the shade slat end caps into place as shown.
Note the orientation of the notches as they should be facing down. - Repeat for all 7 shade slats.

STEP EIGHT
Shade Slats Installation
- With a helper, place two shade slats at each end, 9 1/2” (24.13 cm) away from the posts as shown aside. The notches in the shade slats will spread the rafters apart accordingly.
- Fasten the RAFTERS onto the beams using two, 2 1/2 in (64 mm) screws for each rafter into the beams as shown.

- Lock the outer two shade slats onto the rafters using a 1 1/2 in (38 mm) screw for each intersection between the shade slat and rafter as shown. A total of 10 screws will be required for this step.

- Install the remaining shade slats – at 9 1/2” (24.13 cm) spacing between them – ONE BY ONE (i.e. place one shade slat and lock it to the rafters).
Do not attempt to place all the shade slats before locking them into the rafters as this will be difficult to accomplish.
STEP NINE
Decorative End Caps and Post Caps Installation
- Apply a small bead of vinyl glue to the inside of the decorative end caps and attach them to the beams and rafters as shown.

Hold the end cap in place for 30 seconds to allow the glue to set. - Install the post caps as shown.































