TRIPP-LITE S3MT-100KWR480V S3MT-Series 3-Phase Input and Output Transformers

WARRANTY REGISTRATION
Register your product today and be automatically entered to win an ISOBAR® surge protector in our monthly drawing!
tripplite.com/warranty
1111 W. 35th Street, Chicago, IL 60609 USA • tripplite.com/support Copyright © 2021 Tripp Lite. All rights reserved
Introduction
Tripp Lite’s S3MT-100KWR480V is a 480V Wrap-Around Transformer that includes two transformers in one enclosure: a 480V (Delta) to 208V (Wye) input isolation step-down transformer and a 208V (Wye) to 480V (Wye) output auto step-up transformer.
The input isolation transformer mitigates utility line surges and spikes, while protecting the UPS. The output auto transformer is designed to support 480V (Wye) IT loads. This model has built-in circuit breakers to prevent dangerous circuit overloads. Eight ball-bearing fans maintain quiet operation and help to dissipate transformer heat. An overheat-sensing relay and switch, combined with an LED light in the front panel, provide over-temperature warning and overheating protection. The UPS system’s small footprint and quiet acoustic profile enable installations with minimal space and noise impact. The transformer features a rugged all-metal housing with a front panel similar to the S3M-Series 208V 3-Phase UPS line.
| UPS Model | Series Number | Capacity | Description |
| S3MT-100KWR480V | AG-0513 | 100kW | Input Transformer: 480V to 208V Isolation Step-Down Transformer Output Transformer: 208V to 480V Auto Step- Up Transformer |
Typical applications
4-Wire (3Ph+N+PE) IT equipment loads in government, manufacturing, hospitals, industrial settings and corporate settings that have 480V electrical mains and 480V IT loads.
Key Features
- The input step-down transformer provides 480V (Delta) to 208V/120V (Wye) isolation protection to the UPS input
- The output auto transformer provides 208V (Wye) to 480V (Wye) step-up to support 480V IT loads
- Circuit breakers at the output of the input transformer and the input of the output transformer
- Overheating warning and protection
- 96.7% to 97.8% efficiency
- Copper windings
- Wide input voltage and frequency operating range: Voltage: -20% to +25% @ 100% load and 40-70 Hz
- Insulation class: 180 material
- Reliability-tested according to ISTA-3B for vibration, shock, drop (tip test)
- UL and CSA TUV certifications
- Rugged all-metal housing shipped ready for installation
- 2-year warranty
Typical Configurations
The 480V Wrap-Around (WR) Transformer includes both the input (T-in) and output (T-out) transformers in one enclosure.
This 480V Wrap-Around Transformer may be purchased separately or as part of kit model with a Tripp Lite S3M80K or S3M100K 3-Phase UPS:
| Wrap-Around Transformer Models | Maximum Constant Load | Compatible with 208V 3Ph UPS | Kit Models: UPS + Transformer | ||
| Kit Models | Kit Models Include | ||||
| 480V | S3MT-100KWR480V | 100kW | 80-100kW UPS | S3M80K-100KWR4T | S3M80K UPS + S3MT-100KWR480V |
| S3M100K-100KWR4T | S3M100K UPS + S3MT-100KWR480V | ||||
Important Safety Warnings
SAVE THESE INSTRUCTIONS
This manual contains important instructions for model S3MT-100KWR480V that should be followed during installation and maintenance of the transformer and UPS.
CAUTION! Risk of electrical shock! Hazardous live parts inside this unit are energized from the transformer even when the breaker is turned off.
WARNING! The unit intended for installation in a controlled environment.
CAUTION! A transformer can present a risk of electric shock and high short circuit current. The following precaution should be observed when working on the transformer:
- Remove watches, rings or other metal objects.
- Use tools with insulated handles.
To reduce the risk of electric shock, disconnect the transformer and UPS from the mains supply before performing maintenance or service.
Servicing the 3-phase transformer and UPS should be performed by Tripp Lite certified personnel with knowledge the 3-phase transformer and UPS and all required precautions.
The transformer is extremely heavy. Caution should be taken in moving and positioning equipment. The instructions contained within this manual are important and should be closely followed at all times during installation and follow-up maintenance of the 3-phase transformer and UPS.
CAUTION!
The transformer has a dangerous level of heat. If the transformer’s front-panel red LED indicator is on, the unit’s outlets may have a dangerous level of heat.
All servicing on this equipment must be carried out by qualified Tripp Lite-certified personnel.
Before conducting any maintenance, repair or shipment, first ensure everything is turned off completely and disconnected.
Installation
Mechanical Data
Physical Requirements
Leave space around the cabinet for operation and ventilation (Figure 3-1):
- Leave at least 23.6 in. (600 mm) space in the front for ventilation
- Leave at least 20 in. (500 mm) space at the right and left for operation
- Leave at least 20 in. (500 mm) space at the back for ventilation
Package Inspection
- Don’t lean the transformer cabinet when removing it from the packaging.
- Check the appearance to see if the transformer cabinet was damaged during transport. Do not power on the transformer cabinet if any damage is found. Contact the dealer immediately.
- Check the accessories against the packing list and contact the dealer in case of missing parts.
Unpacking the UPS
Hold the sliding plate steady. Cut and remove the binding straps (Figure 3-2).
Remove the plastic bag and the outer carton (Figure 3-3).
Remove the foam packing material and the beveled pallet (Figure 3-4).
Remove the screws securing the cabinet to the pallet (Figure 3-5).
Lift the cabinet with a forklift and remove the packing pallets (Figure 3-6).
Package Contents
| Contents | TL P/N | S3MT-100KWR480V |
| Input and Output Transfers in One Cabinet | 1 | |
| Owner’s Manual | 933D06 | 1 |
| Bottom Skirts | 1038F8A | 2 |
| Bottom Skirts | 103924A | 2 |
| Screws for Skirts | 3011C3 | 24 |
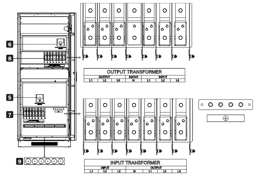
Cabinet Overview
- Output Transformer Over-Temperature Alarm LED
- Input Transformer Over-Temperature Alarm LED
- Output Transformer Cooling Fans
- Input Transformer Cooling Fans
- Input Transformer Breaker with Trip
- Output Transformer Breaker with Trip
- Input Transformer Cabling Terminal
- Output Transformer Cabling Terminal
- Bottom Entry Knockouts (for Power Cable Entry and Exit

Front View (Terminal Block without Cover) of S3MT-100WR480V
Power Cables
The cable design shall comply with the voltages and currents provided in this section, and in accordance with local electrical codes.
WARNING!
UPON STARTUP, ENSURE YOU ARE AWARE OF THE LOCATION AND OPERATION OF THE EXTERNAL ISOLATORS CONNECTED TO THE UPS INPUT/BYPASS SUPPLY OF THE UTILITY DISTRIBUTION PANEL.
ENSURE THESE SUPPLIES ARE ELECTRICALLY ISOLATED AND POST ANY NECESSARY WARNING SIGNS TO PREVENT INADVERTENT OPERATION.
Cable Sizes
|
UPS Model | Cable Sizes (THHW wiring at 75°C) | ||||||||
| AC Input | AC Output | Neutral | Grounding | Lug | |||||
| Gauge | Torque | Gauge | Torque | Gauge | Torque | Gauge | Torque | ||
|
S3MT- 100KWR480V | Input transformer | ||||||||
| 70mm2 Max. 120mm2 | 50N•m | 70mm2x2 Max. 120mm2x2 | 50N•m | 120mm2x2 Max. 120mm2x2 | 50N•m | 95mm2 Max. 120mm2x2 | 50N•m | M10 | |
| Output transformer | |||||||||
| 70mm2 Max. 120mm2x2 | 50N•m | 70mm2x2 Max. 120mm2x2 | 50N•m | 120mm2x2 Max. 120mm2x2 | 50N•m | 95mm2 Max. 120mm2x2 | 50N•m | M10 | |
Input and Output Transformer-to-UPS Connection Line Diagram
Connections are shown below for the cabinet with built-in input isolator transformer, output auto transformer and breakers with trip and fault LED.
Input and Output Transformer Connections
WARNING: The input transformer (T-in) output neutral is not bonded to chassis ground. Please provide a means to connect the transformer chassis ground to the transformer output neutral. Note: The transformer chassis ground must be connected to earth ground.
IMPORTANT: You may view and/or download this manual from the tripplite.com website to view the cable connections in colors.
Transformer Cabinet
Note: Transformer input is Delta 3-Wire (3Ph + Ground) and output transformer is Wye 4-Wire (3Ph + N + Ground).
Operation
WARNING:
It is not advised to connect two UPS in parallel when using individual transformers for each UPS.
Over-Temperature Protection
Over-Temperature Warning LED Light (Red)
The transformer includes two warning LED lights on the top portion of the front panel: one light for the input transformer and one light for the output transformer. The corresponding warning light may turn ON when the secondary side of the input (T-in) or when primary side of the output (T-out) transformer reaches a temperature of 160°C ± 5°C, i.e. a range of 155°C to 165°C (311°F to 329°F). The warning light turns OFF when the transformer cools to a temperature of 125°C ± 5°C, i.e. a range of 120°C to 130°C (248°F to 266°F).
Over-Temperature Protection Relay and Thermal Switch
The transformer includes two warning LED lights on the top portion of the front panel. One light for the input transformer and one light for the output transformer. The corresponding warning light will turns ON when the secondary side of the input (T-in) or when primary side of the output (T-out) transformer reaches a temperature of 160°C ± 5°C, i.e. a range of 155°C to 165°C (311°F to 329°F). The warning light turns OFF when the transformer cools to a temperature of 125°C ± 5°C, i.e. a range of 120°C to 130°C (248°F to 266°F).
- Input Transformer (T-in): If the secondary side of the (T-in) input transformer reaches temperatures of 160°C ± 5°C, i.e. a range of 155°C to 165°C (311°F to 329°F), an over-temperature protection relay and thermal switch will activate and will open the breaker on the secondary side of the transformer. Once the transformer temperature has cooled down to 125°C ± 5°C, i.e. a range of 120°C to 130°C (248°F to 266°F) the warning LED light will turn OFF, and you may manually re-activate (close) the output breaker on the transformer to restart normal operation.
- Output Transformer (T-out): If the primary side of the (T-out) output transformer reaches temperatures of 160°C ± 5°C, i.e. a range of 155°C to 165°C (311°F to 329°F), an over-temperature protection relay and thermal switch will activate and will open the breaker on the primary side of the transformer. Once the transformer temperature has cooled down to 125°C ± 5°C, i.e. a range of 120°C to 130°C (248°F to 266°F), the warning LED light will turn OFF, and you may manually re-activate (close) the input breaker on the transformer to restart normal operation.
Specifications
| Model | S3MT-100KWR480V | |
| Description | Two 100kW Transformers in one Cabinet: Input Isolation Transformer (T-In) 480V Input (Delta) to 208V Output (Wye) Transformer, and Output AutoTransformer (T-Out) 208V (Wye) Input to 480V(Wye) output | |
| KVA/kW Ratings for Input (T-in) and Output (T-out) Transformers | 100kVA/100kW | |
| Transformer Type | Dry-Type | |
| INPUT SPECS | ||
| Input Transformer (T-In) | T-in Input Voltage | 480V AC |
| T-in Input Voltage Range | (-45%,+25%) for 40 % load (-20%,+25%)for 100 % load | |
| T-in Input Amp(s) | 168 AMPS | |
| T-in Input No. Of Phases | 3 PH | |
| T-in Input Connections | 3-Wire (L1, L2, L3 + PE) | |
| T-in AC Input Configuration | DELTA | |
| T-in Iput Connection Type | Copper Bar | |
| T-in AC Input Frequency | 50/60 Hz | |
| T-in Frequency Range | 40-70 Hz | |
| T-in Voltage Selection | N/A | |
| Voltage Drop Ratio: Output with no load to output with Full Load | £ 3% | |
| T-In Input Isolation | Yes | |
| T-in Input Inrush Current | 1450/3330 (10 mS) | |
| Output Transfomer (T-Out) | T-out Input Voltage Range | -45%,+25%)for 40 % load (-20%,+25%)for 100 % load |
| T-out Input Voltage | 208V | |
| T-out Input Amp(s) | 287A | |
| T-out No. Of Phases | 3PH | |
| T-out Input Connections | 4-Wire (L1, L2, L3 + N + PE) | |
| T-out AC Input Configuration | WYE | |
| T-out Input connection type | Copper Bar | |
| T-out AC Input Frequency | 50/60 Hz | |
| T-out Frequency Range | 40-70 Hz | |
| T-out Voltage Selection | N/A | |
| T-out Input Isolation | No | |
| T-out Input Inrush Current | 3330 (10 ms) | |
| Model | S3MT-100KWR480V | |
| Output Specs | ||
| Input Transformer (T-In) | T-in AC Output Voltage (V) | 208V |
| T-in AC Output Amps | 374A | |
| T-in Output No. Of Phases | 3PH | |
| T-in Output Connections | 4-Wire (L1, L2, L3 + N + PE) | |
| T-in AC Output Configuration | Wye | |
| T-in Connection Type | Copper Bar | |
| T-in Output Breaker Rating | 400A | |
| Output Transformer (T-Out) | T-out AC Output Amps | 120A |
| T-out output No. Of Phases | 3PH | |
| T-in Output Connections | 4-Wire (L1, L2, L3 + N + PE) | |
| T-out AC Output Configuration | Wye | |
| T-out Connection Type | Copper Bar | |
| T-in Output Breaker Rating | 400A | |
| Operation | ||
| Over-Temperature Warning LED (Red) | Turns ON at 160°C ±5°C (155°C/311°F to 165°C/329°F) and turns OFF at 125°C ±5°C (120°C/248°F to 130°C/266°F) | |
|
Over-Temperature Protection Reset Device | T-in: Input Transfomer l Transfomer output OFF (Breaker opens) at a temperature of 160°C ± 5°C, i.e. a range of 155°C to 165°C (311°F to 329°F). l You may turn ON (close) output Breaker Manually when the LED light turns OFF T-out: Output Transfomer l Transformer input/primary will be OFF (Breaker opens) at temperatures of 160°C ±5°C (155°C/311°F to 165°C/329°F) l You may turn ON (close) the input breaker manually when the LED light turns OFF l The warning light will turn off at 125°C ±5°C (120°C/248°F to 130°C/ 266°F), at which time you may close the breaker manually to restart operations. | |
| Insulation Class | 180°C | |
| Temperature Rise | 125°C | |
| T-in Efficiency @ Full Load | 96.70% | |
| T-in Efficiency @ Half Load | 97.80% | |
| T-out Efficiency @ Full Load | 96.70% | |
| T-out Efficiency @ Half Load | 97.80% | |
| Model | S3MT-100KWR480V | |
| Physical Information | ||
| Unit Height (Inches/cm) | 77.6/ 197.1 | |
| Unit Width (Inches/cm) | 23.6/ 60 | |
| Unit Depth (Inches/cm) | 33.5/ 85.1 | |
| Unit Weight Lbs. | 1960/ 889 | |
| Floor Loading | 1322 (kg/m²) | |
| Unit Carton Height Inches | 85.4/216.9 | |
| Unit Carton Width Inches | 27.6/70.1 | |
| Unit Carton Depth Inches | 37.8/96 | |
| Unit Carton Weight | 2072/939.8 | |
| Tip-n-Tell Label Required (Y/N) | Yes | |
| Audible Noise (ENG) | 65dB max | |
| Humidity | 95% | |
| Online Thermal Dissipation at Full Load, (Btu/Hr) | 22526 | |
| Storage Temperature (ENG) | -15°C ~ 60°C | |
| Operating Temperature (ENG) | 0°C ~ 40°C | |
| Operating Elevation | <1000 METERS FOR NOMINAL POWER (OVER 1000M THE POWER DE-RATING IS 1% PER 100M | |
| Mechanical | ||
| Transformer Winding | Aluminum Wire | |
| Cabinet Material | Cold Rolled Galvanized Steel (SGCC) | |
| Cabinet Color | RAL 9011 | |
| Fan (Type / Quantity) | 8 x BALL BEARING, 172×152 mm (1928 TOTAL CFM) | |
| Reliability | ||
| Vibration | ISTA-3B | |
| Shock | ISTA-3B | |
| Drop | ISTA-3B (Tip Test) | |
| Agency Approvals | ||
| Approving Agency | cTUVs | |
| Agency Standard Tested | UL 1778 5th Edition | |
| Canadian Approvals | CSA 22.2-107.3-14 | |
| CE Approvals | N/A | |
| EMI Approvals | N/A | |
| RoHS/REACH | Yes | |
Storage
Store the transformer in its original shipping container, if possible.
WARNING: The transformer(s) is/are very heavy. Before storing the transformer, make sure to take into account the floor loading (kg/m²) requirements listed in section 5. Specifications under “Physical Info” to store safely.
Warranty and Regulatory Compliance
Limited Warranty
Seller warrants this product, if used in accordance with all applicable instructions, to be free from original defects in material and workmanship for a period of 2 years from the date of initial purchase. If the product should prove defective in material or workmanship within that period, Seller will repair or replace the product, in its sole discretion. Service under this Warranty includes parts only. International customers should contact Tripp Lite support at
[email protected]. Continental USA customers should contact Tripp Lite Customer Service at 773-869-1234 or visit [email protected]tripplite.com/support/help
THIS WARRANTY DOES NOT APPLY TO NORMAL WEAR OR TO DAMAGE RESULTING FROM ACCIDENT, MISUSE, ABUSE OR NEGLECT. SELLER MAKES NO EXPRESS WARRANTIES OTHER THAN THE WARRANTY EXPRESSLY SET FORTH HEREIN. EXCEPT TO THE EXTENT PROHIBITED BY APPLICABLE LAW, ALL IMPLIED WARRANTIES, INCLUDING ALL WARRANTIES OF MERCHANTABILITY OR FITNESS, ARE LIMITED IN DURATION TO THE WARRANTY PERIOD SET FORTH ABOVE; AND THIS WARRANTY EXPRESSLY EXCLUDES ALL INCIDENTAL AND CONSEQUENTIAL DAMAGES. (Some states do not allow limitations on how long an implied warranty lasts, and some states do not allow the exclusion or limitation of incidental or consequential damages, so the above limitations or exclusions may not apply to you. This Warranty gives you specific legal rights, and you may have other rights, which vary from jurisdiction to jurisdiction.)
Tripp Lite; 1111 W. 35th Street; Chicago IL 60609; USA
WARNING: The individual user should take care to determine prior to use whether this device is suitable, adequate or safe for the use intended. Since individual applications are subject to great variation, the manufacturer makes no representation or warranty as to the suitability or fitness of these devices
for any specific application.
Product Registration
Visit tripplite.com/warranty today to register your new Tripp Lite product. You will be automatically entered into a drawing for a chance to win a FREE Tripp Lite product!*
* No purchase necessary. Void where prohibited. Some restrictions apply. See website for details.
WEEE Compliance Information for Tripp Lite Customers and Recyclers (European Union)
Under the Waste Electrical and Electronic Equipment (WEEE) Directive and implementing regulations, when customers buy new electrical and electronic equipment from Tripp Lite they are entitled to:
- Send old equipment for recycling on a one-for-one, like-for-like basis (this varies depending on the country)
- Send the new equipment back for recycling when this ultimately becomes waste
Use of this equipment in life support applications where failure of this equipment can reasonably be expected to cause the failure of the life support equipment or to significantly affect its safety or effectiveness is not recommended.
Tripp Lite has a policy of continuous improvement. Specifications are subject to change without notice. Photos and illustrations may differ slightly from actual products.
1111 W. 35th Street, Chicago, IL 60609 USA • tripplite.com/support



















