COMMAND ACCESS TECHNOLOGIES PD10-M-RIM PTS

INSERT Instructions
The PD10-M-RIM is a storefront grade 1 exit device equipped with motor
drive latch retraction. Retrofits Doromatic 1790 & First Choice 3790.
KIT INCLUDES
- A. Head Cover pack
- B. RIM Exit Device
- C. Hinge Stile End Cap pack
- D. Lock Stile End Cap pack
- E. Rim Strike pack
- F. MOTOR KIT – Installed in exit device
- G. 1- 50944 Molex Pigtail
- H. 1- 50030 8’ Lead w/ VD Connector
TOOLS REQUIRED
- Cordless Drill
- Needle nose Pliers
- Measuring Tape
- 1/2 Drill bit
Technical Information

Setting PUSH TO SET (PTS)
**Important Info**
Make sure to set PTS before finishing installation
- Step 1 – To enter PTS mode: Depress MM5 button & apply power. The device will emit 1 SHORT beep. The device is now in PTS mode.
- Step 2 – While depressing the push pad, apply power. (i.e. presenting the credential to the reader).
- Step 3 – Continue to keep pad depressed, the device will emit 1 LONG Beep. After the beep has stopped, release the pad and now the adjustment is complete. test the new location, If not to your liking repeat the 3 steps.
Troubleshooting & Diagnostics
| Beeps | Explanation | Solution |
| 2 Beeps | Over Voltage | > 30V unit will shut down. Check voltage & adjust to 24 V. |
| 3 Beeps | Under Voltage | < 20V unit will shut down. Check voltage & adjust to 24 V. |
| 4 Beeps | Failed Sensor | Verify all 3 sensor wires are installed correctly. Replace sensor if problem persists by contacting office. |
| 5 Beeps | Retraction or dogging failure | After 1st fail: 5 beeps then immediately attempts to retract again. After 2nd fail: 5 beeps with pause in-between for 30 seconds then device attempts to retract again. After 3rd fail: 5 beeps every 7 minutes, device will not attempt to retract. To Reset: Depress bar for 5 seconds at any time. |
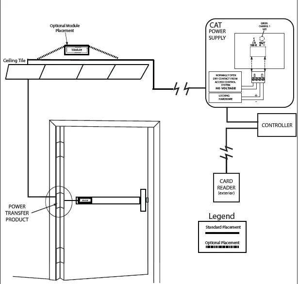
Electrified Exit Device
INSTALLATION EXAMPLE

RIM PANIC
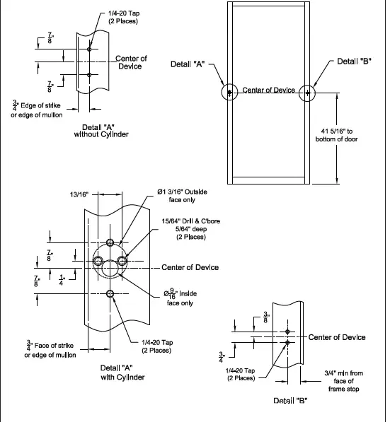
Installation Template
All prep is shown on interior side of the door, except where noted. Right hand door shown. (LHR)
STEP 1 – Mount Exit Device
- Install the stile mounting bracket with 2 ea. 1/4-20 x 1/2 pan head screws. Leave space to capture the base of the device. (See next slide)

- Slide the end of baserail underneath the mounting bracket.

Optional STEP – Installing Cylinder
- A. Install trim cylinder tail piece so that it is slightly below the face after mounting. Install key cylinder using mounting screws supplied with cylinder. (Screws may need to be shortened.)

- For Night Latch, leave set screw in place.
- Hold Back function is desired, remove the set screw to allow additional rotation of cylinder tailpiece.

STEP 1B – Continued
- Attach head of device to stile with 2 ea. 1/4-20 x 3/4 “ screws. Tighten screws on the head and base of the device.

STEP 2 – Drill Wire Chase
- Remove lock stile end cap.

- Slide push pad off of baserail.

- Drill the hole for our 2 pin power lead in-between the 2 mounting screws.

- Feed the 2 pin power lead into the hole and connect to our MM4 module. Also, make sure to clean out any debris left.
Note: Depending on where your power transfer is; next you would fish the other side of the power lead we connected to the MM4 and hook up to your incoming power. If you have a portable tester this would be a good time to test fire the motor. - Replace push pad, making sure the activating brackets and pins slide through the 3rd channel.

- F. Reinstall the lock stile end cap.

STEP 3 – Install Head & End Cap
- A. Install head cover with 2 ea. 10-32 x 3/8 screws.

- Install hinge stile push pad cover with 2 ea. 8-32 x 1 1/2” screws. Now you set you latch retraction adjustment with our “PTS” technology.
See page #2
STEP 4 – Install Door Frame Stop
- Install the roller strike with 2ea. #10-32 x 1 “ screws so the roller is flush with the frame stop. (Use strike shim for 5/16” stops.)

- Using the roller strike as a template, drill and tap rear mounting holes. Install remaining 10-32 x 1” mounting screws and tighten all screws.

STEP 5 – Install Wear Strip
- Cut wear strip to desired length.
- Clean surface of the frame before. apply wear strip in indicated area.
- Peel backer paper from wear strip.
- Apply wear strip flush to front of frame jamb in indicated area.

PD10 Parts Breakdown




US CUSTOMER SUPPORT1-888-622-2377 | WWW.COMMANDACCESS.COM | CA CUSTOMER SUPPORT 1-855-823-3002









Note: Depending on where your power transfer is; next you would fish the other side of the power lead we connected to the MM4 and hook up to your incoming power. If you have a portable tester this would be a good time to test fire the motor.






















