Meaco Wall-Mounted Dehumidifiers
Instruction Manual
MeacoWall 53B/W, MeacoWall 84B/W and MeacoWall 108B/W
Dehumidifiers
Wall 53B/W Wall-Mounted Dehumidifiers
Please read this instruction manual before using the dehumidifier and keep safe for future reference.
Thank you for choosing Meaco, we really appreciate it.
SAFTEY INFORMATION
This dehumidifier must not be used in rooms under the following conditions:
- Potentially explosive atmosphere
- Aggressive atmospheres
- Featuring a high concentration of solvents
- An extremely high ratio of dust
![]()
Keep Children Away: Do not allow children to play with or around this unit, which could result in injury. Be sure the unit is inaccessible to children when not attended. This appliance is not intended for use by person (including children) with reduced physical, sensory or mental capabilities, or lack of experience and knowledge, unless they have been given supervision or instruction concerning use of the appliances by a person responsible for their safety.
Keep Unit Grounded: Always operate the unit with a grounding plug and a grounded electrical outlet. A grounding plug is an essential safety feature that helps reduce the risk of shock or fire.
Protect Power Cord from Damage: Never operate a unit with a damaged power cord, as this may lead to electrical or fire hazards. If the power supply cord is damaged, it must be replaced by a cord of the same type and amperage rating.
Extension Cords: Extension cords must be grounded and able to deliver the appropriate voltages to the unit.
Handle with Care: Do not drop, throw or crash the dehumidifier. Rough treatment can damage the components or wiring and create a hazardous condition.
Run on Stable Surface: Always operate the unit on a stable, level surface, for example the floor or a strong counter, so that the dehumidifier cannot fall and cause injury.
Keep Out of Water: Never operate the unit in pooled or standing water, as this may create a risk of injury from electrical shock. Do not store or operate outdoors. If electrical wiring or components become wet, thoroughly dry them before using the unit. If in doubt do not use the dehumidifier and consult a qualified electrician or a Meaco approved engineer.
Do Not Let Water Drip onto the Dehumidifier: Dry your bathroom by placing the dehumidifier outside of the room with the bathroom door open. Do not use your dehumidifier inside the bathroom.
Keep Air Intakes Clear: Do not clog or block the air intakes by placing the dehumidifier too close to curtains, walls or anything that will restrict the air inlet. This may cause the unit to overheat and result in a fire or electrical hazard.
Keep the Filter Clean: There is a filter on the air inlet to stop dust from getting inside the dehumidifier. If you allow the dust and dirt to build up on the filter, pressure on the fan motor will be increased and you will reduce the amount of water extracted from the air. Not cleaning the filter reduces the lifespan of the dehumidifier, increases energy consumption and decreases water extraction. Please examine and clean the filter every two weeks minimum.
Keep Electrical Components Dry: Never allow water inside the dehumidifier’s electrical components. If these areas become wet for any reason, thoroughly dry them before using the dehumidifier. If in doubt, do not use the dehumidifier and consult a qualified electrician or a Meaco approved engineer. The operator must make the operating instruction available for the user and make sure that the user does understand the manual.
The MeacoWall 53B/W, the MeacoWall 84B/W and the MeacoWall 108B/W dehumidifiers use the new R32 refrigerant gas to comply with European Environmental Directives. R32 is kinder to the environment and is part of attempts to reduce global warming as it has a low greenhouse effect (GWP).
When using the either the MeacoWall 53B/W, the MeacoWall 84B/W and the MeacoWall 108B/W dehumidifier you must take into account the following:
- This dehumidifier uses about 750 grams of R32 refrigerant in the 53L model, 1000 grams of R32 refrigerant in the 84L mode and 1250 grams of R32 refrigerant in the 108L model, which is flammable. Therefore, it is part of a sealed system and must only be serviced by a trained Meaco engineer.
- Do not use or store this dehumidifier in a room smaller than 4m² to prevent a fire or explosion hazard if there is a leak of refrigerant and the gas comes into contact with an ignition source.
- Do not use in a room with any continuous sources of ignition, for example open flames, gas fires or hobs, cigarettes or any other sources of ignition.
- If the dehumidifier is installed, operated or stored in a non-ventilated area, then the room must be designed to prevent the accumulation of refrigerant leaks resulting in a risk of fire or explosion due to ignition of the refrigerant caused by electric heaters, cookers, or other sources of ignition.
- R32 refrigerant gas is odourless.
- Do not puncture either during the units working life or after. At the end of life dispose of following local recycling regulations.
- If there is any damage to the unit then do not use it and contact Meaco or your retailer.
- As with all dehumidifiers, always keep upright and leave the dehumidifier standing upright for 3-4 hours before using it upon receipt.
Individuals who operate or work on the refrigerant circuit must have the appropriate certification issued by a national accredited organisation that ensures competence in handling flammable refrigerants according to a specific evaluation recognised by national associations in the industry and compliant with the latest R32 guidance.
Servicing should only be carried out by a Meaco approved engineer using original Meaco parts to prevent damage to the unit and potential injury to the engineer.
ELECTRICAL INSTALLATION
| 53L | 84L | 108L | |
| Rated Voltage | 220-240V~50Hz | 220-240V~50Hz | 220-240V~50Hz |
| Power Consumption (kW) | 2.9 | 3.1 | 3.85 |
| Running Current (amps) | 13.2 | 14.1 | 17.5 |
| Start-up Current (amps) | 21 | 25 | 39 |
- The unit must be installed to a grounded supply in ALL applications.
- If the unit is to be installed into a wet area (for example, a swimming pool), please ensure the mains connections meet the criteria set out in Section 602 of BS7671 or other equivalent local regulations (non-UK).
- The unit is supplied without a plug and is expected to be connected to a fused spur by a qualified electrician following local regulations and laws. Please refer to the units’ start-up voltage before connecting to a power supply.
- All units are supplied with a 1 metre cable.
GENERAL ADVICE
- Before putting your dehumidifier into operation for the first time, the instruction manual should be studied carefully.
- After receiving the unit, you should check your dehumidifier for any transport damage. In case of damage, you should inform the sender immediately.
- Store the dehumidifier box and packaging in a safe place – this will be required if the dehumidifier requires a service in the future. In order to save space, you can simply cut through the adhesive tape using a knife and fold up the cardboard box.
DEHUMIDIFIER PRINCIPLES
This dehumidifier is designed to reduce humidity from the air in a building or part of a building. The purpose is to help dry laundry, prevent condensation, mould, musty air and other issues associated with high relative humidity.
The time necessary for the dehumidifier to dry a room and reach the desired relative humidity depends on the environmental conditions prevailing within the room. For example, the number of air changes with outside, any sources of moisture, and the room temperature can all either speed up or slow down the dehumidification process.
The dehumidifier functions according to the condensation principles with heat recovery. The fan takes the humid air from the room, in and across a filter, and then through an evaporator. Here the air is cooled below dew point, so that the water vapour of the air forms a condensate on the coils, which flows into the internal container ready to be poured away. The cooled and dried air is heated again by a condenser. By recycling the room air through the dehumidifier repeatedly, the moisture content and relative humidity of the air is reduced.
Always try to avoid installation in direct sunlight as this will affect the accuracy of the relative humidity reading that the dehumidifier will be using for control.

PRODUCT IDENTIFICATION
| Main unit | Wall suspensionbar | Manual | Expansion bolts |
![]() | ![]() | ![]() | ![]() |
Please keep the dehumidifier upright at all times prior to installation. If the dehumidifier is inclined greater than 60 degrees then the dehumidifier should only be turned on 24 hours after it has been installed.

INSTALLATION AND TRANSPORTATION
For installation and transportation, the following instructions must be considered:
- The air inlet and the air outlet must not be covered whilst the dehumidifier is in operation.
- Before moving the dehumidifier, it must be switched off by its ON-OFF switch. The dehumidifier must be disconnected at its fused spur and excess water should be drained.
- For transportation the dehumidifier should be secured on a level base only and must be prevented from rolling around.
- The dehumidifier must always be transported vertically.
- The dehumidifier must always be secured to the wall. Make sure the wall that the dehumidifier is being fixed to is strong enough to support its weight.
- This dehumidifier must be used exclusively for drying the air.
- If the dehumidifier has been in a horizontal position (or inclined by more than 60 degrees) for any time over a few minutes, you must let it stand in the upright position for at least 24 hours before operating. This allows the oil to drain back into the compressor.
- When installing in a wet area like a swimming pool room, always make sure that you are complying with local electrical and safety regulations.
MINIMUM INSTALLATION DISTANCES

Using the enclosed, drill five holes for the wall mounting bracket and secure using the expansion bolts. When wall-mounting, the wall and the bracket level must be true or water will leak from the dehumidifier.
CONTINOUS DRAINAGE
This dehumidifier is designed to be connected to a permanent drain via a 16mm hose. Make sure the drain connection is running down hill with no kinks or blockages.
As standard, the hose is fitted ready to come out of the right of the dehumidifier as you look at it from behind.

If you wish to move the drain to the other side, then you can do so by removing the side covers – this should only be done by a qualified electrician and only when the units power supply has been turned off and isolated.
- Remove the screws on both ends of the dehumidifier, as per below, in order to access the side panels.
![]() | ![]() |
Connect the condensate hose (16mm diameter) and ensure that the water is flowing downhill with no kinks or blockages. You have the choice of fitting the drain on the right or left side. The hose on the right is pre-fitted, if you wish to change to the left, remove the bung from the left and swap it with the hose on the right.
CONTROL PANEL

When the dehumidifier is turned on the display will show 88 and then the program version number for ten seconds. This is to allow the relative humidity sensor to sample the air and to take a reading. The display will dim after 90 seconds of no keys being pressed.
ON/OFF BUTTON
Press the ON/OFF button to turn the dehumidifier on or off.

CHILD LOCK
Press the ON/OFF button for five seconds to activate child lock. This stops the functions of the dehumidifier from being changed. The dehumidifier cannot be turned off when child lock is activated. To deactivate child lock, press the ON/OFF button again for five seconds.
SETTING THE RELATIVE HUMIDITY SET POINT
Use the UP and DOWN arrows to set the desired target relative humidity level.

CHECKING THE RELATIVE HUMIDITY SET POINT
Press either the UP or DOWN arrow once, to check what the target relative humidity level has been set to.
FAN SPEED OPTIONS
Press the Fan Speed button quickly to choose between one of three different fan speeds: low (1), medium (2) and high (3). The default setting for the fan speed is Fan Speed 1 – Low.

FAN SPEED OPTIONS (CONTINOUS)
Hold down the Fan Speed button for five seconds to switch between the following modes:
1 – ON – the dehumidifier will continue to run continuously even once the target humidity level has been reached (this is the default setting).
2 – OFF – the dehumidifier will stop running once the target relative humidity level has been reached.

HOW IT WORKS
If the dehumidifier is dehumidifying, the following symbol will be shown on the control panel:![]()
The dehumidifier will continue to dehumidify until the relative humidity is 5%rh below the target and stays there for at least 3 minutes.
When the relative humidity increases 5%rh above the target and stays there for 30 seconds, then the unit will start to dehumidify again.
DEFROST MODE
This dehumidifier is equipped with an automatic hot-gas defrosting system. When operating in low temperatures the surface of the evaporator will accumulate frost and this will affect the efficiency of the dehumidifier. When this happens, the machine will go into periodic defrosting automatically and the defrost symbol will appear on the display. Defrost time may vary. This is a normal part of the dehumidifiers operation and is not a fault.

MAINTENANCE
The power supply must be disconnected before the following tasks are carried out.
CLEANING THE FILTER
To ensure that your dehumidifier has a long operational life the filter must be cleaned a minimum of once every two weeks. A blocked filter will put pressure on the fan and cause damage to the fan motor.
The filter can be removed without removing the dehumidifier from the wall, and without tilting the dehumidifier. The image below only shows the dehumidifier on its side for clarity.

To remove the filter, press the two single red buttons to the left and right of the filter guard. This will allow the filter to drop down.

Wash the filter in water and allow to dry fully before refitting. Once the filter is dry reinsert and allow the safety springs to clip back into place on the right and left.

Clean the outside with a soft, damp cloth. Do not use anything that will scratch the surface or any detergents.
ELECTRICAL CONNECTIONS
This dehumidifier was designed to operate in a 220-240V~50Hz electrical installation. Make sure that the electric sockets are connected to earth and that all safety precautions are taken. Installations in a wet area must comply with local laws. We recommend electrical installation and servicing by a qualified electrician only.
OPERATING CONDITIONS
This dehumidifier can be operated within an ambient temperature range from +10°C to +32°C and with a relative humidity from 40%rh to 99%rh. It is suitable for applications in domestic situations, swimming pool halls, clean storage applications and in museums and archives.
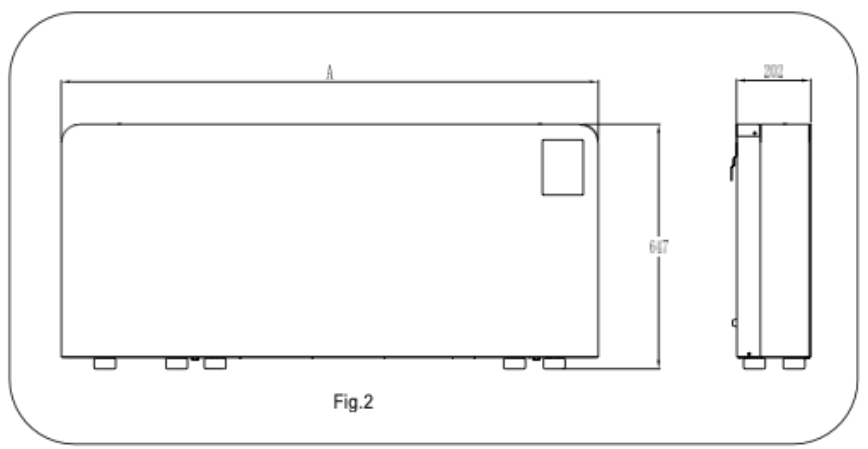
SPECIFICATIONS

| Model | 53L Wall Mounted Dehumidifier-White/Black | 84L Well Mounted Dehumidifier-White/Black | 108L Well Mounted Dehumidifier-White/Black |
| Length: A | 1295 | 1495 | 1695 |
| 53L | 84L | 108L | |
| Temperature Range | +10°C to +32°C | +10°C to +32°C | +10°C to +32°C |
| Relative Humidity Range | 40%rh to 99%rh | 40%rh to 99%rh | 40%rh to 99%rh |
| Rated Voltage | 220-240V~50Hz | 220-240V~50Hz | 220-240V~50Hz |
| Air Flow (m³/h) | 500 | 650 | 800 |
| Noise Level dB(A) | 44 | 44 | 46 |
| Power Consumption (kW) | 2.9 | 3.1 | 3.85 |
| Running Current (amps) | 13.2 | 14.1 | 17.5 |
| Start-up Current (amps) | 21 | 25 | 39 |
| Refrigerant | R32 | R32 | R32 |
| Drying Capacity in litres at 30°C and 80%rh per day | 53 | 84 | 108 |
| Drain Diameter (mm) | 16 | 16 | 16 |
| Dimensions (HWD) (mm) | 647 x 1295 x 202 | 647 x 1495 x 202 | 647 x 1695 x 202 |
| Net Weight (Kgs) | 63 | 77 | 82 |
PERFORMANCE CURVES
MEACOWALL 53B/W DEHUMIDIFIER

MEACOWALL 84B/W DEHUMIDIFIER

MEACOWALL 108B/W DEHUMIDIFIER

TROUBLE SHOOTING
| TROUBLE | CAUSE | SOLUTION |
| Unit does not operate | No power to the unit. | Plug in the unit, check power at outlet. |
| On/Off button not turned ON. | Turn the unit on. | |
| Humidity below the set point. | Adjust the target if necessary. | |
| Doesn’t dehumidify or collects little water | Ambient temperature is low. | As temperatures drops then dehumidification will drop as well. This is unavoidable. |
| Ambient temperature exceeds +36°C. | This is above the working range of the dehumidifier. | |
| The ambient air humidity is lower than 40%rh. | Under this condition the dehumidifier becomes inefficient and little water will be collected. This is normal for a compressor dehumidifier. | |
| The air filter is dirty and blocked. | The air filter must be exchanged. | |
| The ambient is below the relative humidity set point. | This is normal and is not a fault. | |
| Compressor is not on | The dehumidifier has just turned on. | Wait 3 minutes for the compressor to start up. |
| Unit is in defrost mode, defrost symbol appears on the display. | This is normal and is not a fault. | |
| The fan is not running | Relative humidity is below the set point. | This is normal and is not a fault. This can be changed, see the control panel section of the manual. |
| The room temperature is lower than +10ºC. | Assure that the device is only set up in rooms with temperatures above +10°C. | |
| Unit does not defrost | Conditions are below +10°C. | Move the dehumidifier to a warmer space. |
| Defective bypass relay valve. | Contact Meaco. | |
| Codes P1 to P8 &/or E0 appear (excluding P3) | Turn off for one hour and then restart. | If the unit still does not work, contact Meaco. |
| P3 only | Condenser coil temperature too high. | Run the fan for 30 minutes, if it continues then disconnect power for one hour and try again. |
| Buttons do not work | Child lock is activated. | Hold the ON/OFF button for 5 seconds. |
CHEMICALS
This dehumidifier is designed to be used in clean air atmosphere free from corrosive chemicals. The use of chlorine is common in swimming pools and at safe levels will not harm the dehumidifier, but excess levels will damage the dehumidifier and invalidate the warranty.
Abnormal levels of chlorine would be anything above 2ppm and/or a super-chlorination above a maximum of 30ppm over a 24-hour period.
STORAGE
If the machine will not be used for a long period of time, take the following steps:
- Unplug the dehumidifier and drain water from the unit. Allow the dehumidifier to dry completely, this can take a couple of days.
- Clean the filter and store the device in a dust-free location away from direct sunlight, preferably covered with a sheet of plastic.
WARRANTY AND CUSTOMER SERVICE
There is a two-year manufacturer’s warranty on your dehumidifier from the date of purchase. Please register your purchase at https://meaco.com/warranty-register – as a thank you, you will be entered into our monthly free prize draw to help support the David Shepard Wildlife Foundation. Registering also allows us to keep you update with any important developments concerning your product.
Within the two-year manufacturer’s warranty, all manufacturing defects will be repaired free of charge (excluding damage to the units’ filter which can be subject to wear and tear).
The following applies:
- Any repairs or replacement of components during the warranty period will not result in an extension of the warranty period.
- The warranty will expire if any alterations have been made, not genuine components have been fitted or if the dehumidifier has been repaired by a third party.
- Components subject to normal wear and tear are not covered by the warranty.
- The warranty is only valid on presentation of the original, unaltered, and date-stamped purchased receipt.
- The warranty does not cover damage caused by actions that deviate from those as described in the user’s manual or by neglect.
- The warranty does not cover faults caused by dirt or by third-party products.
- The warranty does not cover accidental damage.
- All claims for compensation, including consequential damage, will not be entertained.
- Using a third-party switching device that turns the dehumidifier on or off via the mains will invalidate the warranty.
For the full list of the warranty terms and conditions please visit: www.meaco.com/warranty-terms.
To prevent unnecessary expenses, we recommend that you always carefully read the user’s manualfirst. If this does not provide a solution, please call Meaco and we will be happy to help.
This dehumidifier has been imported into the UK by:
Meaco (UK) Limited
Meaco House
Parklands
Railton Road
Guildford
GU2 9JX
Telephone: 01483 234900
Fax: 01483 232700
Email: [email protected]
Website: www.meaco.com
Please record, for future reference, your date of purchase and where you bought the dehumidifier from here.
Date of purchase: …………………..…………………
Purchased from www.meaco.com (if not, then please record the supplier’s name below).
Suppliers name: ……………………………………….
If your dehumidifier develops a fault at any time, please contact us and we will always try and help you as best we can. Please keep hold of the original box and packaging your unit arrived in just in case we need to collect the dehumidifier from you for a repair/service in the future.
This marking indicates that this product should not be disposed with other household wastes throughout the EU. To prevent possible harm to the environment or human health from uncontrolled waste disposal, recycle it responsibly to promote the sustainable reuse of material resources. To return your used device, please use the return and collection systems or contact the retailer where the product was purchased. They can take this product for environmental safe recycling. ![]()

























