Electrolux LNS5LE18S Refrigerator Freezer Combination

Product Information
- Product: Electrolux Fridge / Freezer
- Model: T20
- Installation Instructions Language: DE, EL, EN, HR, IT, LT, LV, NL, RU, SL, SR, TR, UK
- Manufacturer Website: www.youtube.com/electrolux
Product Usage Instructions
- Before proceeding with installation, read the safety information in the User Manual.
- Ensure you have the following components: A, B, C, D, E, F, G1, G2, H, I, J, L, PS
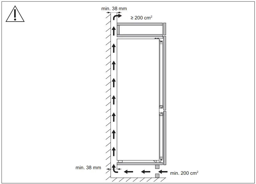
- Measure and ensure the required minimum dimensions are met: W (minimum 38mm), min. 560mm (or min. 550mm), min. 200cm2
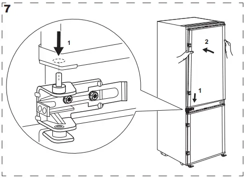
- Follow the numbered steps below to install your Electrolux fridge / freezer internal control sliding door:
- Attach component A to the designated area.
- Attach component B to the designated area.
- Attach component C to the designated area.
- Attach component D to the designated area.
- Attach component E to the designated area.
- Attach component F to the designated area.
- Attach component G1 to the designated area.
- Attach component G2 to the designated area.
- Attach component H to the designated area.
- Attach component I to the designated area.
- Attach component J to the designated area.
- Attach component L to the designated area.
- Ensure the dimensions and positions of the components are correct.
- Attach component PS to the designated area.
- Complete the installation by following the remaining steps as per the user manual.
Installation Instruction
Warning! Before proceeding with installation, read the safety information in the User Manual.















































