ROLL UP DOORS DIRECT 3652 Wind Load Rated Rolling Door

IMPORTANT INFORMATION
ROLL UP DOOR DIRECT DOORS MUST BE INSTALLED BY TRAINED ROLLING DOOR TECHNICIANS QUALIFIED TO INSTALL PRODUCT SAFELY
WITH PROPER KNOWLEDGE, TOOLS, SAFETY AND INSTALLATION EQUIPMENT. CAREFULLY READ INSTALLATION INSTRUCTIONS.
FAMILIARIZE YOURSELF WITH ALL INSTALLATION PROCEDURES, WARNINGS, CAUTIONS, AND NOTES BEFORE ATTEMPTING TO INSTALL
DOOR. ROLL UP DOORS DIRECT WILL NOT WARRANTY OR ACCEPT RESPONSIBILITY FOR DOORS NOT INSTALLED PER THESE INSTALLATION
INSTRUCTIONS
IMPORTANT SAFETY INFORMATION
- CAREFULLY READ INSTALLATION INSTRUCTIONS. FAMILIARIZE YOURSELF WITH ALL INSTALLATION PROCEDURES, WARNINGS, CAUTIONS, AND NOTES BEFORE
ATTEMPTING TO INSTALL DOOR. - INSPECT RECEIVED DOOR ASSEMBLY FOR VISIBLE DAMAGE AND/OR COMPONENT SHORTAGES.
- SHIPPING DAMAGE: FILE DAMAGE CLAIM IMMEDIATELY WITH FREIGHT CARRIER. SUPPLY DOOR SUPPLIER WITH PHOTO DOCUMENTATION TO RECEIVE REPLACEMENT COMPONENTS.
- PART SHORTAGE: IMMEDIATELY CONTACT DOOR SUPPLIER WITH PARTS SHORTAGE CLAIM. ORDER NUMBER, DOOR MODEL, PHOTO DOCUMENTATION ARE ENCOURAGED TO EXPEDITE PROCESS.
- INCORRECT PARTS: IF RECEIVED DOOR COMPONENTS AND PARTS DO NOT MATCH THOSE REFERENCED IN THESE INSTALLATION INSTRUCTIONS, IMMEDIATELY CONTACT DOOR SUPPLIER.
- IF AT ANY TIME BEFORE OR DURING INSTALLATION YOU ARE UNFAMILIAR, UNCOMFORTABLE, OR CONFUSED BY INSTALLATION PROCEDURES OUTLINED IN THESE INSTALLATION INSTRUCTIONS DO NOT ATTEMPT TO INSTALL DOOR ASSEMBLY. IMMEDIATELY CONTACT DOOR SUPPLIER WITH QUESTIONS/CONCERNS
ROLL UP DOORS DIRECT DOORS MUST BE INSTALLED BY TRAINED ROLLING DOOR TECHNICIANS QUALIFIED TO INSTALL PRODUCT SAFELY WITH PROPER KNOWLEDGE, TOOLS, SAFETY AND INSTALLATION EQUIPMENT.
READ ALL WARNINGS BELOW
- USE APPROPRIATE SAFETY EQUIPMENT TO AVOID SERIOUS INJURY.
- CLEAR FLOOR AT OPENING OF ALL DEBRIS BEFORE INSTALLING PRODUCT.
- USE APPROPRIATE LIFTING EQUIPMENT AND CORRECT LIFTING PROCEDURES TO AVOID DAMAGE, SERIOUS INJURY OR DEATH.
- MOVING DOOR COULD RESULT IN DEATH OR SERIOUS INJURY. DO NOT CLOSE DOOR UNTIL DOORWAY IS CLEAR.
- CONTROL THE SPEED OF THE DOOR DURING MANUAL OPERATION.
- DO NOT STAND OR WALK UNDER A MOVING DOOR.
- KEEP DOORWAY CLEAR AND IN FULL VIEW WHILE OPERATING DOOR.
- DO NOT PERMIT CHILDREN TO PLAY ON, NEAR, OR WITH DOOR, OR OPERATE DOOR CONTROLS.
- UNLOCK DOOR BEFORE OPENING DOOR.
- SENSING DEVICES ON MOTOR OPERATING DOORS SHOULD BE TESTED FREQUENTLY.
- VISUALLY INSPECT DOOR AND HARDWARE MONTHLY FOR WORN AND/OR BROKEN PARTS AND CHECK IF DOOR OPERATES FREELY. DO NOT OPERATE A DOOR WITH A BROKEN SPRING.
- COMPONENTS ARE UNDER EXTREME SPRING TENSION COULD RESULT IN DEATH OR SERIOUS INJURY.
- DOOR MUST BE FULLY OPENED WHEN MAKING ADJUSTMENTS.
- Retain these instructions for reference.
- Operation & Maintenance Manual available via pdf download at www.rollupdoorsdirect.com or upon request
HANDLE WITH CARE – DO’s & DON’T’s
DO’s
- CAREFULLY INSPECT ALL PRODUCT FOR DAMAGE UPON RECEIPT.
- USE PROTECTIVE FOAM BETWEEN PRODUCT AND ANY SURFACE OR OBJECT IT MAY COME INTO CONTACT WITH WHILE IN TRANSIT AND/OR STORAGE.
- WHEN SECURING PRODUCT FOR TRANSIT, USE FOAM BARRIER BETWEEN PRODUCT AND STRAPS, ROPES, ETC.
- CAREFULLY UNLOAD PRODUCT FROM ANY TYPE OF CRATING MATERIAL ASSURING NO CONTACT WITH FASTENERS OR SHARP EDGES.
- CLEAR FLOOR AT OPENING OF ALL DEBRIS BEFORE INSTALLING PRODUCT.
- SINGLE PERSON LIFTING OF PRODUCT COULD CAUSE INJURY. USE ASSISTANCE WHEN MOVING OR LIFTING.
- INSTALL PRODUCT WITH APPROPRIATE LIFTING EQUIPMENT ASSURING A PROTECTIVE BARRIER IS MAINTAINED BETWEEN PRODUCT AND ANY SURFACE OR OBJECT IT MAY COME INTO
DON’T’s
- DO NOT – STAND ON PRODUCT.
- DO NOT – CLIMB ON PRODUCT.
- DO NOT – WALK ON PRODUCT.
- DO NOT – DROP PRODUCT.
- DO NOT – SLIDE PRODUCT ACROSS ANY SURFACE.
- DO NOT – THROW OR TOSS PRODUCT.
- DO NOT – SET OR STACK PRODUCT ON GRAVEL, DEBRIS, OR UNEVEN SURFACES.
- DO NOT – ALLOW SHARP OBJECTS TO COME IN CONTACT WITH PRODUCT.
- DO NOT – LEAVE PRODUCT UNSECURED WHILE IN TRANSIT OR DURING INSTALLATION.
FAILURE TO ADHERE TO THE ABOVE CONDITIONS WILL RESULT IN PERSONAL INJURY OR PRODUCT DAMAGE NOT COVERED UNDER ROLL UP DOORS DIRECT PRODUCT WARRANTY. ALWAYS HANDLE PRODUCT WITH CARE, AND REVIEW ALL INSTRUCTIONS, WARNINGS, AND NOTES BEFORE INSTALLING PRODUCT. REVIEW DOOR ASSEMBLY AND GENERAL PARTS DESCRIPTIONS BILL OF MATERIAL FROM PAGE 4, FIGURE 1 TO FAMILIARIZE YOURSELF WITH COMMON PARTS OF ROLLING SHEET DOOR ASSEMBLY. DOOR ASSEMBLIES ARE MANUFACTURED PER OPENING WIDTHS AND HEIGHTS SPECIFIED AT TIME OF ORDER. ROLL UP DOORS DIRECT WILL NOT BE HELD RESPONSIBLE FOR OPENING WIDTHS OR HEIGHTS THAT DO NOT MATCH THOSE SPECIFIED AT TIME OF ORDER.
DOOR ASSEMBLY & GENERAL PART DESCRIPTIONS

Operation & Maintenance Manual available via pdf download @ www.rollupdoorsdirect.com or upon request
| ITEM | DESCRIPTION / PART NUMBER | ITEM | DESCRIPTION / PART NUMBER | ITEM | DESCRIPTION / PART NUMBER |
| 1 | 12″ Spiral Barrel | 7 | LH, Comm. Bracket | 13 | Comm. Step Plate |
| 2 | 1 516” O.D. Axle | 8 | Comm. Headstop | 14 | Comm. Slide Lock |
| 3 | Spring/Counterbalance Assembly | 9 | 26Ga. Corrugated Curtain | 15 | 1 516” Tensioner |
| 4 | LH, 14Ga, Comm. Guide | 10 | Windlock Clip | 16 | Stamped Axle Support |
| 5 | RH, 14Ga, Comm. Guide | 11 | Astragal | 17 | – |
| 6 | RH, Comm. Bracket | 12 | Bottom Bar Assembly | 18 | – |
HEADROOM/SIDEROOM DIMENSIONAL REFERENCES
HEADROOM REQUIREMENT CHART
| HEADROOM REQUIREMENT | ||
| OPENING HEIGHT | VERTICAL HEADROOM | HORIZONTAL HEADROOM |
| THRU 8′-0″ | 17″ | 19″ |
| OVER 8′-0″ THRU 10′-0″ | 21″ | 21″ |
| OVER 10′-0″ THRU 14′-0″ | 21 12“ | 21″ |
| OVER 14′-0″ THRU 16′-0″ | 21 12“ | 23″ |
| OVER 16′-0″ THRU 18′-0″ | 22″ | 24″ |
| OVER 18′-0″ THRU 20′-0″ | 23″ | 25″ |
WINDLOCKS REMOVED FOR CLARITY
SIDE ROOM CLEARANCE REQUIREMENT CHART
| SIDEROOM CLEARANCE REQUIREMENT | |||||
| OPERATION | OUTSIDE OF BRACKET TENSIONER END | OUTSIDE OF BRACKET DRIVE END | OUTSIDE OF HAND CHAIN | END OF AXLE – TENSIONER END | END OF AXLE – DRIVE END |
| Push-Up | 4″ | 4″ | – | 7″ | 7″ |
| Reduced Hand Chain | 4″ | 4 12“ | 6 12“ | 7″ | 7″ |
| ATA Operators | 4″ | 6″ | – | 7″ | 7″ |
| EO-Kit | 4″ | 5 12“ | – | 7″ | 7″ |
| Pantheon | 4″ | 4 34“ | 10″ | 7″ | 7″ |
| IMPORTANT NOTES: • DIMENSIONS ARE REFERENCED FROM THE EDGE OF THE OPENING. • FOR CRITICAL FITS DUE TO REDUCED AVAILABLE HEADROOM OR SIDEROOM CLEARANCES, CONSULT FACTORY. | |||||

WALL OPENING
- Check wall opening width and height and verify these measurements against size of door to be installed.
- Verify that jambs are plumb.
- Check floor and header for level.
- Check for adequate side clearance at jambs and clearance above and at sides of header. Check vertical and horizontal headroom requirements. See Figures 2 & 3 for minimum requirements.
- Verify that guide mounting surface on jamb is flush.
- Make sure all parts required for installation are with the door

INSTALL SMALL MOUNTING PLATES
- If door will install to steel jambs, small mounting plates for the door brackets are required and may be welded or bolted to the jambs.
- Top of small mounting plates should be located 10″ above top of opening and be level with each other. Side of mounting plates should be even with edge of opening. If opening width is off, adjust locations accordingly.
NOTE:
DOOR DRIVE OPERATION MAY BE INSTALLED ON EITHER END OF DOOR ASSEMBLY.

COMMERCIAL BRACKETS TO GUIDES
Attach Commercial Brackets to guides, locating top surface of bracket 2″ below top of guide. Use (2) 1/4 – 20 x 5/8″ carriage bolts, (2) 1/4 – 20serrated flange hex nuts and (2) 1/4″ flat washers per bracket for tensioner and the non-tensioner (drive) end. For push-up operation.

NOTE:
- DOOR DRIVE OPERATION MAY BE INSTALLED ON EITHER END OF DOOR ASSEMBLY.
- GUIDE BELLMOUTH FOR CURTAIN ENTRY INTO GUIDE IS FACTORY NOTCHED. APPLY 15-20 BEND IN BELLMOUTH TO ENSURE SMOOTH CURTAIN ENTRY. FAILURE TO FLARE GUIDE BELLMOUTH WILL RESULT IN CURTAIN SCRATCHING AND/OR DAMAGE.
COMMERCIAL BRACKETS TO GUIDE
- PUSH-UP OPERATION: Install drive bracket 2″ from top of guide to top of bracket with two (2) each 1/4″ – 20 x 5/8″ carriage bolts 1/4″ – 20
serrated flange hex nuts and 1/4″ flat washers. *No spacers are required for this application. - REDUCED HAND CHAIN DRIVE: Install drive bracket 2″ from top of guide to top of bracket with two (2) each 1/4″ – 20 x 5/8″ carriage bolts 1/4″ – 20
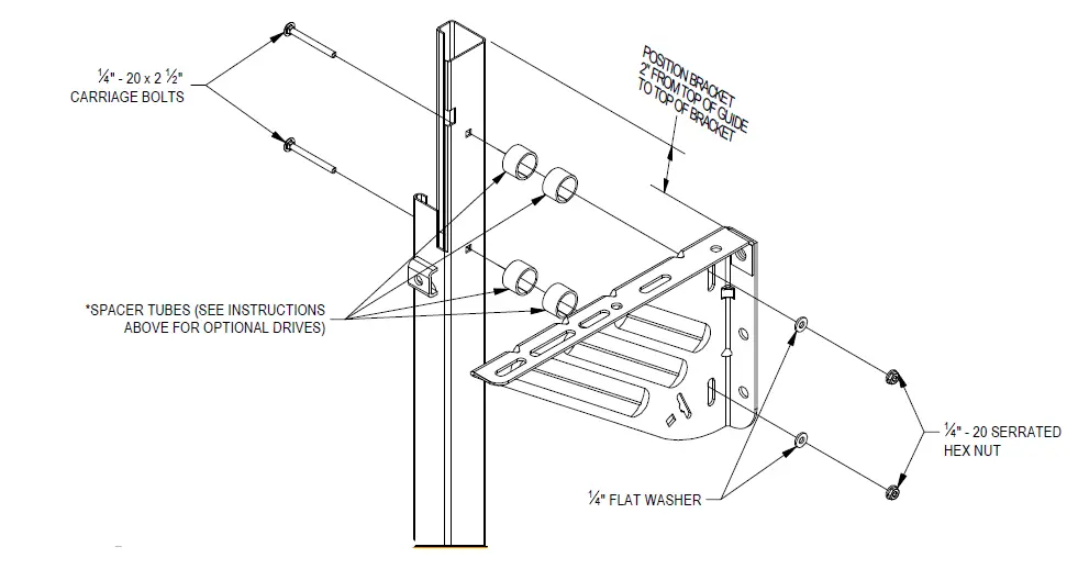
serrated flange hex nuts and 1/4″ flat washers. *No spacers are required for this application. - ELECTRIC OPERATOR DRIVE: Install drive bracket 2″ from top of guide to top of bracket with two (2) each 1/4″ – 20 x 2-1/2″ carriage bolts, 1/4″ – 20
serrate flange hex nuts and 1/4″ flat washers. *Insert two (2) each 1- 1/4″ O.D. x 3/4″ long spacer tubes between guide and bracket at each bolt
location. - PANTHEON MOTOR OPERATION: Install drive bracket 2″ from top of guide to top of bracket. Position bracket 3/4″ fromoutside of guide to inside of
the bracket. *No spacers are required for this application. - ATA MOTOR OPERATION: Install drive bracket 2″ from top of guide to top of bracket. Position bracket 3 1/2″ from outside of guide to inside of the bracket.
*No spacers are required for this application.

NOTE:
- FOR PANTHEON JSC2 INSTALLATION GUIDE, SEE PAGE 18.
- FOR ATA OPERATOR INSTALLATION GUIDE, SEE PAGE 19.
GUIDES AND BRACKETS TO JAMB
- Attach brackets and guides to jambs using fasteners shown in Table 1.
- The guides should be mounted centered about the opening and spaced curtain width + 1″ apart, measured from back of guide to back of guide. Both guides must be plumb.
- Once both guides have been correctly positioned, attach them to the jambs using the appropriate fastener at each hole location. See Table 1.
- Check top surface of brackets to verify they are level with each other. If they are not, loosen the bracket-to-guide attachment fasteners and slide bracket(s) vertically until level. Tighten bracket to guide fasteners.
- Install three (3) bracket-to-jamb attachment fasteners for each bracket. See Table 1.
| TABLE 1: WALL FASTENERS FOR JAMB ATTACHEMENT OF BRACKETS TO GUIDES | |||
| ITEM | JAMB | FASTENERS | DRILL SIZE |
| BRACKETS | STEEL | 3 8 ” x 1″ TEKS SCREW | – |
| BRACKETS | CONCRETE/FILLED CMU | 3 8 ” x 1 34” DEWALT WEDGE-BOLT+ SCEW ANCHORS | 3 8 “ |
| GUIDES | STEEL | 1 4 ” x 1″ TEKS SCREW | – |
| GUIDES | CONCRETE/FILLED CMU | 1 4 ” x 3″ DEWALT WEDGE-BOLT+ SCEW ANCHORS | 1 4 “ |
WARNING!
DOOR CAN FALL IF BOTH BRACKETS ARE NOT SECURELY FASTENED TO THE JAMBS. ALL FASTENERS ATTACHING BRACKETS TO JAMBS
MUST FIT SECURELY INTO A STRUCTURAL MEMBER OR SURFACE. IF DOOR FALLS, SERIOUS INJURY OR DEATH AND/OR DAMAGE TO
DOOR CAN RESULT.
NOTE:
DOOR ASSEMBLIES ARE MANUFACTURED PER OPENING WIDTHS AND HEIGHTS SPECIFIED AT TIME OF ORDER. ROLL UP DOORS DIRECT WILL NOT ASSUME RESPONSIBILITY FOR OPENING WIDTHS OR HEIGHTS THAT DO NOT MATCH THOSE SPECIFIED AT TIME OF ORDER
GUIDE MOUNTINGS ARE DICTATED BY APPLICATION AND JAMB TYPE.
See Pages 9. for appropriate mounting.
- MASONRY JAMBS: 1/4″ X 3″ WEDGE BOLT. SEE PAGE 9 FIGURE 8.
- STEEL JAMBS: 1/4″ – 14 X 1″. TEKS SCREW. SEE PAGE 9 FIGURE 9.
Product evaluations & drawings available via www.rollupdoorsdirect.com, www.floridabuilding.org,www.miamidade.com, & www.tditexas.gov when required.
CONCRETE/FILLED CMU
STEEL JAMBS

NOTE:
- INSTALL GUIDES AND BRACKETS WITH FASTENERS SUPPLIED.
- INSTALL GUIDES PER MOUNTING OPTION DETAIL THAT APPLIES TO SPECIFIC INSTALLATION APPLICATION

NOTE:
DOOR CAN FALL IF BOTH BRACKETS ARE NOT SECURELY FASTENED TO THE JAMBS. ALL FASTENERS ATTACHING BRACKETS TO JAMBS MUST FIT SECURELY INTO A STRUCTURAL MEMBER OR SURGACE. IF DOOR FALLS, SERIOUS INJURY OR DEATH AND/OR DAMAGE TO DOOR CAN RESULT
TENSIONER END
- With arrow pointing toward wall rotate Release arm forward to release tension. Slide tensioner over axle,until approximately 2-7/8″ of axle is outside of tensioner. Allow release arm to rotate back to holding position. See Figure 11.
- Tighten set screw when in place.

WARNING!
TENSIONER ASSEMBLY MUST BE ORIENTED ON AXLE WITH THE ARROW POINTING TOWARD THE WALL. IF THIS IS NOT DONE, IT WILL NOT
OPERATE AS DESIGNED, WHICH MAY CAUSE SERIOUS INJURY OR DEATH DUE TO THE DOOR SUDDENLY LOSING SPRING TENSION AND
RAPIDLY MOVING DOWNWARD.
STAMPED AXLE SUPPORT END
- With arrow pointing toward wall, slide stamped axle support over axle until approximately 2-7/8″ of axle is outside of stamped axle support. See figure 12.
- Tighten set screws when in place

REDUCED CHAIN DRIVE END
- Fasten 63 tooth cast ring gear to drum using three (3) each 3/8″ – 16 x 1-1/2″ grade 5 hex bolts and 3/8″ lock washers.
- Install two (2) each 3/8″ – 16 x 1″ square head setscrews in the threaded holes in the cast axle support bracket. These will be tightened against the axle later.
- Slide cast axle support bracket over axle. See Figure 13.
- Tighten set screws when in place

ELECTRIC DRIVE END
- Locate 3 each 1″ O.D. x 2 3/8″ long spacer tubes and struts between 72 tooth sprocket and drum. Attach sprocket with (3) each 3/8″ – 16 x 3 1/2″ grade 5 hex bolts and 3/8″ lock washers.
- Slide stamped axle support over axle, with arrow pointing toward wall, until approximately 1-3/8″ of axle is outside of stamped axle support. See Figure 14.
- Tighten set screws when in place.

WARNING!
BEFORE LIFTING DOOR INTO POSITION, ENSURE THAT ALL SET SCREWS ARE TIGHTENED TO ADEQUATELY SECURE AXLE SUPPORTS AND
TENSIONER. FAILURE TO SECURE WILL RESULT IN FALLING PARTS, WHICH WILL LEAD TO SERIOUS INJURY OR DEATH
LIFTING DOOR ASSEMBLY
- Raise door using appropriate lifting equipment, ensuring a protective barrier is maintained between product and any surface or object that
it may come into contact with. - Position door on brackets with tensioner and axle support resting safely on top of bracket flange.
- Door should be positioned as close as possible to the header and still be able to rotate and clear bottom bar.
- Each end of door should be equal distance from the header and the curtain must be centered in the opening.
WARNING!
DO NOT ALLOW DOOR ASSEMBLY TO ROLL OFF BRACKETS OR MOVE SIDEWAYS OFF EDGE OF BRACKET. IF DOOR FALLS, SERIOUS INJURY OR DEATH AND/OR DAMAGE TO DOOR CAN RESULT
TENSIONER END
Attach tensioner assembly to door bracket using two (2) each 3/8″ – 16 x 3/4″ grade 5 hex bolts, 3/8″ lock washers and 3/8″ flat washers. SEE FIGURE 15.

PUSH UP NON-TENSIONER END
Attach stamped axle support to door bracket using two (2) each 3/8″ – 16 x 3/4″ grade 5 hex bolts, 3/8″ lock washers and 3/8″ flat washers. SEE FIGURE 16.

REDUCED HAND CHAIN DRIVE END
- Attach cast axle support bracket to door bracket using 3/8″ – 16 x 3/4″ grade 5 hex bolt, 3/8″ lock washer and 3/8″ flat washer.
- Position chain hoist assembly on door bracket next to cast axle support and attach to door bracket using two (2) each 3/8″ – 16 x 3/4″ grade 5 hex bolts, 3/8″ lock washers and 3/8″ flat washers. The spur gear on the hoist will engage with the internal teeth of the cast ring gear on the end of the drum.
- Connect cast axle support bracket to side of chain hoist using 3/8″ – 16 x 3/4″ hex bolt and 3/8″ lock washer. SEE FIGURE 17.
- Feed hand chain over chain pocket wheel and through hoist. Connect ends of hand chain, being careful not to twist chain. Hand chain may be lengthened or shortened as necessary.
- Install hand chain keeper on wall or jamb

ELECTRIC DRIVE END
Attach stamped axle support to door bracket using two (2) each 3/8″ – 16 x 3/4″ grade 5 hex bolts, 3/8″ lock washers and 3/8″ flat washers. SEE FIGURE 18.

WARNING!
ENSURE THAT SET SCREWS OF TENSIONER & AXLE SUPPORTS ARE ADEQUATELY TIGHTENED SECURING AXLE IN PREPARATION FOR ADDING TENSION
POSITION DOOR
- At both ends of the door, slightly loosen the 3/8″ – 16 x 3/4″ hex bolts that fasten the tensioner assembly, axle support, and chain hoist to brackets.
- Push door assembly toward header leaving enough room for door to rotate freely. Each end of door to be an equal distance from the header. Curtain is to be centered in opening.
- Tighten securely all 3/8″ – 16 x 3/4″ hex head bolts loosened in above step.
- Tighten all 3/8″ -16 square head setscrews in tensioner and axle support at both ends of door.
SETTING INITIAL SPRING TENSION
- Rotate door two (2) revolutions in the direction that would send the bottom bar down through the guides.
- While firmly holding the door at the bottom bar, cut the tape and plastic wrap that holds the door in a coil. Direct the bottom bar down into the guides, stopping just past the head stop area
WARNING!
ENSURE THAT ASTRAGAL IS NOT CUT DURING TAPE AND PLASTIC REMOVAL.

WARNING!
EXTREME SPRING TENSION CAN CAUSE SERIOUS INJURY OR DEATH. INSTALLATION, REPAIRS AND ADJUSTMENTS MUST BE MADE BY A TRAINED ROLLING SERVICE DOOR SYSTEMS TECHNICIAN USING PROPER TOOLS AND INSTRUCTIONS. DOOR MUST BE FULLY OPEN WHEN MAKING ADJUSTMENTS.
HEADSTOPS
- Slide headstop from outside of each guide. SEE FIGURE 20.
- Secure each headstop to guide with a 3/8″ – 16 x 1/2″ hex bolt and a 3/8″ lock washer.

SLIDELOCK, STEP PLATE & PULL ROPE
- Transfer the 1/4″ – 20 x1/2″ carriage bolts and 1/4″- 20 serrated flange hex nut that were removed from both end of bottom bar to the two holes at the center of the bottom bar and angle.
- For manually operated doors, lower bottom bar and install slide lock and step plate using (2) 1/4″ – 20 x 1″ hex bolts, (2) 5/16″ – 18 hex nuts, (2) 1/4″ flat washers and (2) 1/4″ – 20 nylon insert hex nuts. Do this at both ends of bottom bar. See figure 21.
- For electrically operated doors, lower bottom bar and install step plate using (2) 1/4″ – 20 x 1/2″ carriage bolts & (2) 1/4″ – 20 serrated flange hex nuts. See figure 21.
- For push-up operated doors only, install rope in one of the holes at the center of the horizontal leg of the bottom bar angle.

NOTE:
BEFORE CYCLING DOOR TO TEST DOOR OPERATION, ENSURE THAT ALL FASTENERS AND SET SCREWS ARE TIGHTENED AND SECURING ALL COMPONENTS.
CHECK MANUAL DOOR OPERATION
- Cycle door by raising and lowering door to its fully closed and fully opened position.
- Set limits of electrically operated doors at this time.
- Evaluate spring tension. If adjustments to spring tension are required, Proceed to Step 19.
- Refer to specific operator instructions for setting limits.
ADJUST SPRING TENSION (IF REQUIRED)
- Fully open door.
- Loosen all 3/8″ – 16 square head setscrews in tensioner and axle support at both ends of door.
- At tensioner end, place tensioning device around end of axle so that pulling down on the handle will rotate the axle to increase spring tension.
- To increase spring tension, pull down on tensioning device. The tensioner will automatically grip the axle and hold the new tension setting.
- To decrease spring tension, momentarily pull down on tensioning device and then lift the spring roll pin on the tensioner’s knurled wheel. Gently let up on tensioning device, allowing the axle to rotate to reduce the tension. While holding the new tension, release the tensioner’s spring roll pin. The tensioner will now grip the axle and hold the new tension setting.
- Tighten all 3/8″ – 16 square head setscrews in tensioner and axle support at both ends of door.
- Remove tensioning device and operate door.
- Repeat the above steps as necessary
NOTE:
INCREASING OR DECREASING SPRING TENSION MUST BE DONE FROM TENSIONER SIDE OF DOOR ASSEMBLY.
WARNING!
EXTREME SPRING TENSION CAN CAUSE SERIOUS INJURY OR DEATH. INSTALLATION, REPAIRS AND ADJUSTMENTS MUST BE MADE BY A TRAINED ROLLING SERVICE DOOR SYSTEMS TECHNICIAN USING PROPER TOOLS AND INSTRUCTIONS. DOOR MUST BE FULLY OPEN WHEN MAKING ADJUSTMENTS.

WARNING!
DOOR MUST BE FULLY OPENED WHEN MAKING ADJUSTMENTS.
PRODUCT SAFETY LABELS
- Install RDD-201 on tension bracket. (page 17)
- Visual for RDD-204 on bottom bar. (page 17)
- Install RDD-202 door drive side, guide or jamb. (page 17)
- Roll Up Doors Direct requires the following product saftey/labels to be in place and/or installed to fully complete installation.
- Any case where product safety labels are missing or damaged, contact Roll Up Doors Direct immediately to obtain replacements.
OPTIONAL PANTHEON JSC2 INSTALLATION
NOTE:
CONNECTING THE MANUAL RELEASE CABLE TO DRIVE IS TO BE DONE BEFORE DOOR IS INSTALLED

- Check to ensure 5″ inset on the barrel is present.
- Pull ring on spring loaded pin and twist to disengage auto (electric mode).
- Rotate motor head to test manual operation.
- Remove the knurled split nut.
- Uncoil the manual release cable and insert the free end of the cable into the threaded recess where the knurled split nut was removed.
- Reinstall knurled split nut and tighten.
- Carefully coil release cable and motor electric cables together and secure to each other in order to prevent uncoiling or damage during installation of the door.

When installing Commercial Pantheon 3 4″ spacing is required between guide and inside of drive end bracket (see above). Drive end door bracket is mounted independent of guide. NO SPACERS ARE REQUIRED OR PROVIDED. Ensure Guides are plumb, holding back of guide to back of guide dimension, and door brackets are level with one another.

WARNING!
TAKE CARE TO ENSURE THAT THE CABLES FROM THE DRIVE UNIT ARE NOT DAMAGED OR PERMITTED TO RUB ON ANY PART OF THE STRUCTURE OR THE DOOR DURING THE INSTALLATION
NOTE:
FOR THE COMPLETE INSTRUCTIONS ON INSTALLING AND SETTING UP THE PANTHEON MOTOR, PLEASE REFERENCE THE PANTHEON INSTRUCTIONS FOR FURTHER DETAILS.
OPTIONAL ATA EZ ROLLER INSTALLATION

GUIDE/BRACKET SPACING


Operation and Maintenance Manual
The following manual is provided to evaluate the operational performance and future maintenance of Roll Up Doors Direct Rolling Sheet door product line. Roll Up Doors Direct mandates rolling sheet door product installation by trained rolling door technicians and future maintenance by experienced/qualified personnel. Specific parts, components, assemblies, etc. that are determined to be defective, worn, or unsafe by performance evaluations or preventative maintenance programs must result in rolling sheet door assembly taken out of service. All repairs, part replacements or adjustments must be made b trained rolling door technicians to place rolling sheet door assembly back into service. It is MANDATORY that all Roll Up Doors Direct door technicians and other technicians, installers and future maintenance staff comply fully with all safety information, procedures, and instructions contained in this manual. Failure to do so could result in premature part/component failure resulting in serious injury or death to others and, with respect to Roll Up Doors Direct door technicians, immediate termination of employment Adjustments, part replacement, repairs, etc. must be performed by trained rolling door technician
ROLLING SHEET DOOR PERFORMANCE EVALUATION
- Rolling Door operation should be easy at/near the open and closed positions. Rolling Door may require more effort to open through the middle portion of travel.
- Rolling Door operation to the open position should result in bottom bar angle resting against head stops and remain in the open position.
- Rolling Door operation should not exceed 35lb. of force for hand chain operation, and 30 lb. for manual operation.
- Rolling Door operational balance evaluation:
If door operation is easy to close, but hard to open; spring tension needs to be increased If door operation is hard to close, but easy to open; spring tension needs to be decreased Spring tension adjustments must be made by trained rolling door technician. Refer to Rolling Door installation instructions for tension adjustment procedure.
WARNING: Extreme spring tension can cause serious injury or death
- Rolling Door electrical motor operation should be evaluated quarterly.
- Prior to Rolling Door electrical motor operation assure that doorway is clear and in full view before and during complete operation cycle.
- UL 325 requires constant pressure to close for doors without sensing edges or photoelectric sensors/eyes.
- Sensing devices should be tested at least weekly. Sensing edges should be tested at both ends to evaluate proper operation. Photoelectric eyes must be tested by breaking beam to evaluate proper operation.
- Evaluate operator limit setting at door travel open and closed positions. If operator limit setting has become out of sync with door open and close positions, refer to operator installation instructions to reset limits to an appropriate setting in relationship to door open and closed positions.
- If at any time during Rolling Door electrical motor operation, motor sounds like it is under excessive load or stress to open the door:
- Close door using motor operator. Engage motors manual operation feature to manually operate the door to the open position.
- If door operation is heavy, cannot be completely opened or hard to open and will not stay in open position; Spring Assembly counterbalance evaluation is required, which may require adjustment or replacement.
- Spring tension adjustments or repairs must be made by trained rolling door technician. Refer to Rolling Door installation instructions for tension adjustment procedure.
- Determination of counterbalance repair must result in Rolling Door taken out of service until required repairs are complete.
VISUAL INSPECTION
Guides:
- Guide fasteners must be present and secured in each existing hole/slot provided with fasteners supplied by Roll Up Doors Direct.
- Guides must not be bent, crushed, or damaged in a way that binds the curtain and/or bottom bar assembly at any portion of travel.
- Head stops must be securely fastened in place at top of guide to prevent bottom bar from traveling out of the top of the guides when rolling door curtain is fully raised to the open position.
- Inspect guide wear strip (when provided) for excessive cracking, tearing, wear or absence.
Curtain:
- During rolling door operation, curtain and bottom bar assembly must move freely inside guides and not contact header or ceiling.
- Latches, Step Plates, Slidelocks, windlocks, etc. (when provided) must always be securely fastened to curtain assembly.
- Windlocks should never be removed from curtain.
- Inspect curtain wear material or felt tape (when provided) for excessive tearing, wear, or absence.
- Inspect weather seals; Top Draft Stop, side draft stop, brush (when provided)
Brackets/Mounting Plates:
- All Fasteners must be present and secured with fasteners detailed in installation instructions.
- Brackets & Mounting plates (when provided) must not be bent, or damaged in a way that adversely effects the safe operation of door assembly. Hood Assembly:
- When provided, all fasteners attaching hood endcaps, hood support (when provided), and hood to wall must be secure.
- Hood endcaps or hood must not be bent or crushed in a manner which binds the curtain thus hindering the proper operation of rolling door
operation.
Chain Hoist Gears:
- Fasteners attaching all chain hoist components, & gears must be securely fastened.
- Visually inspect gears for broken, cracked, missing or extremely worn teeth.
- Clear debris from gear teeth.
Sprockets and Roller Chain Drive:
Sprocket misalignment will result in excessive wear and could cause roller chain to jump off of sprocket during operation or lead to premature failure of roller chain assembly.
- Visually inspect sprocket alignment between Rolling Door sprocket and output sprocket of motor operator. Align sprockets and tighten set screws as needed.
- Inspect roller chain for excessive wear or damage.
- Roller Chain Lubrication: SAE 20 oil to be used for service temperatures between 32 F and 104F. Apply oil where chain tension is minimal.
- Check fasteners and tighten as required.
Tensioning Devices & Axle Supports:
- Fasteners attaching all tensioning devices and axle supports must be securely fastened.
- Set screws securing axle must be securely fastened.
- Inspect for components for damage or deformity.
- Determination of tensioning device repair or replacement must result in Rolling Door taken out of service until required repairs are complete. Repair or replacement must be performed by trained rolling door technician
- Product safety labels should be periodically inspected and cleaned by the product user as necessary to maintain good legibility for safe viewing distance
Product safety labels should be replaced by the product user when they no longer meet the legibility requirements for safe viewing distance. In any case where products have an extensive expected life or where exposed to extreme conditions, the product user should immediately contact Roll Up Doors Direct to obtain replacements.


















