Knightsbridge OP9R Remote Controlled IP66 13A 2G Outdoor Socket
GENERAL INSTRUCTIONS
These instructions should be read carefully and retained after installation by the end user for future reference and maintenance. These instructions should be used to aid installation of the following product: OP9R
SAFETY
- This product must be installed in accordance with the latest edition of the IEE Wiring
- Regulations (BS7671) and current Building Regulations. If in any doubt, consult a qualified electrician
- Please isolate mains prior to installation or maintenance
- Check the total load on the circuit (including when this product is fitted) does not exceed the rating of the circuit cable, fuse, or circuit breaker
- Please note the IP (Ingress Protection) rating of this product when deciding the location for installation
- Do not overload this accessory or subject it to conditions outside its rating
- This product is Class I and must be earthed
- This product is IP66 rated
INSTALLATION
Note. the unit should be fixed to a rigid That surface as unevenness Could cause damage to the product or affect operation
- Provide power to the required point of installation (refer to BS7671 for correct cabling methods)
- Remove the front assembly from the backbox and carefully lift off the gasket. Drill the required number of fixing holes in the backbox (see Fig. 1)
- Using the backbox as a template, mark the location for, and drill the fixing holes ensuring not to infringe with any gas/water pipes or electrical cables

- The backbox has drain hole drilling guides marked (see Fig. 2).
- Drilling a drain hole is advised if the unit is installed in a location subject to temperature fluctuations where a build-up of condensation may occur.
- It is not advised if the unit will be subject to high pressure jets as drilling a drain hole will reduce the IP rating.
- A 3-5mm hole should be drilled at the bottom back edge of the enclosure where marked.
- If wiring in conduit to the bottom entry, the drain hole should be drilled at the lowest point of the conduit run not in the backbox

- Remove one or more of the pre-fitted blank plugs as required by pushing out from the inside and install a suitable IP rated gland or adaptor (not supplied). For rear entry, cut or drill a 20/25mm hole where marked and install a suitable IP rated grommet (not supplied).
- Unused cable entries must have the blank plugs fitted
- Feed the mains cable into the unit and secure the base plate to the surface. The fixing holes are slotted to allow some rotational adjustment
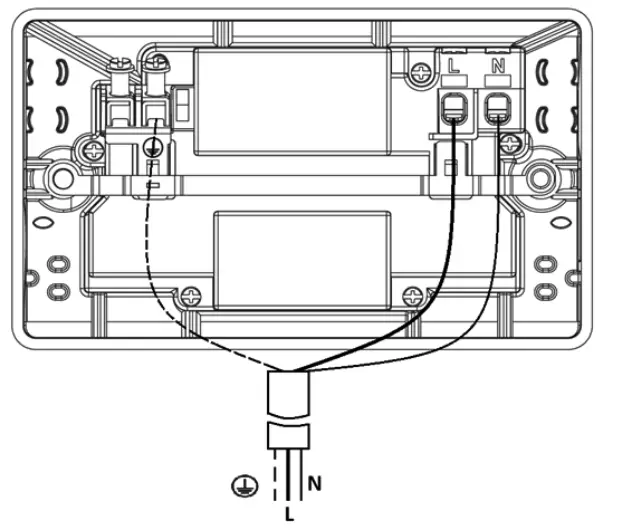
- Replace the gasket onto the backbox, then wire as shown in Fig. 3 ensuring that correct polarity is observed: L – Live (brown), E – Earth (green/yellow), N – Neutral (blue)

- An earth connection must be made to the earth terminal of the socket. Use green/yellow sleeving on earth conductors that are not insulated. The earth terminal in the backbox is provided for convenience and does not need to be connected
- Check all electrical connections are secure with no loose strands of cable
- Ensuring the gasket does not become damaged or pinched, fit the socket assembly onto the backbox, taking care not to compress, damage or trap any cables, and secure with the screws provided – do not overtighten
- Fit screw covers
- Switch on and check for correct operation
- For security, and to prevent unwanted tampering with the product, a lug feature with a 6mm hole is provided to accept a padlock or similar locking security device (not included)
REMOTE CONTROL
To pair a remote control:
- Press the left switch on the socket until the indicator starts flashing, then release
- Press the “A” button on the remote. This will enact the pairing procedure for both sockets
To unpair an existing remote:
- Press and keep the left switch pressed, the indicator will flash and then it will turn off completely
Changing the battery:
- Using a small flat-head screwdriver, remove the cover from the remote and take out the PCB
- Remove the old batteries and insert two new CR2016 batteries (see Fig. 4)

WARNING
To ensure continued safe and proper weatherproof operation, the unit must not be left with the cover raised open or the catch left unlocked. This product must be disconnected from the circuit if subjected to any high voltage or insulation resistance testing. Irreparable damage will occur if this instruction is not followed
GENERAL
This product should be recycled in the correct manner when it reaches the end of its life. Check local authorities for where facilities exist. The batteries in the remote are Lithium Ion and must be disposed of correctly. Please contact the local authorities for the disposal of this toxic waste. To clean the external surfaces, securely close the cover and use a damp cloth with a mild solution of detergent and warm water only, do not use aggressive cleaning products or solvents which may damage the product. If it is necessary to clean inside the cover, use a soft dry cloth only. Do not use any source of high-pressure washers to maintain or clean this product.
WARRANTY
This product has a warranty of 1 year from the date of purchase. Failure to install this product in accordance with the current edition of the IEE Wiring Regulations (BS7671), improper use, or removal of the batch code will invalidate the warranty. If this product should fail within its warranty period, it should be returned to the place of purchase for a free of charge replacement. ML Accessories does not accept responsibility for any installation costs associated with the replacement product. Your statutory rights are not affected. ML Accessories reserve the right to alter product specification without prior notice.
























