Greentek HS 3.0 Whole House Filtration Unit

PARTS IN THE BOX
- Whole House HS 3.0, 1 pc
- 8” Collars, 2 pcs
- Power cord, 5 ft, 1 pc
- Plenum seal, 7.5 ft, 1 pc
- Screws, 8 x 32 x 1/2”, 16 pcs
- Template, 1 pc
REPLACEMENT FILTERS
#463046 – Replacement Pre-Filter with Carbon, 1 pc
#463048 – Replacement HEPA Filter, 1 pc
Your Greentek HEPA Filtration system should be installed in conformance with the appropriate local, provincial or state requirements or in the absence of such requirements with the current edition of the National Building Code, and / or ASHRAE’s “ Good Engineering Practices”.
![]() | ![]() | ![]() | ![]() | ![]() |
Note | Warning/ | Information | Technical | Practical tip |
PLEASE READ THIS MANUAL BEFORE INSTALLING UNIT
Prior to installing, serious consideration must be taken to insure this filtration system will operate properly if integrated to any other type of mechanical system, i.e. a forced air system, or an air handling unit. To insure proper operation & compatibilities of both system, it is required that you follow the instructions in this manual.
LIMITATIONS: The product is for residential applications only. Must be installed in accordance with all national and local regulations, building and safety codes.
This product is designed and manufactured to provide reliable performance. Sometime even most reliable products will experience occasional failures, and this possibility should be recognized by the user.
If these products are used in a life support ventilation system where failure could result in loss or injury, the user should provide adequate back-up ventilation, supplementary natural ventilation or failure alarm system, or acknowledge willingness to accept the risk of such loss or injury.
CAUTION:
TURN OFF ALL INTEGRAL DISCONNECTS BEFORE SERVICING.
Your Greentek HEPA Filtration system should be installed in conformance with the appropriate local, provincial or state requirements or in the absence of such requirements with the current edition of the National Building Code, and/or ASHRAE’s “Good Engineering Practices”.
Introduction
HEPA AIR FILTRATION SYSTEMS
You have purchased a very effective air cleaning and treatment system incorporating HEPA (High Efficiency Particulate Arrestance) filter technology. This is the type of air cleaning equipment that respiratory specialists recommend most.
To optimize the performance of your HEPA Filtration System, it should be installed by a professional contractor who is familiar with your indoor air quality situation and the operation of other heating, ventilation and air conditioning equipment that you may have.
Specification
| Filtration Stage 1 & 2 | Pre-Filter with Carbon (#463046) |
| Filtration Stage 3 | HEPA Filter (# 463048) |
| Weight | 28 lbs (12.7 kg) |
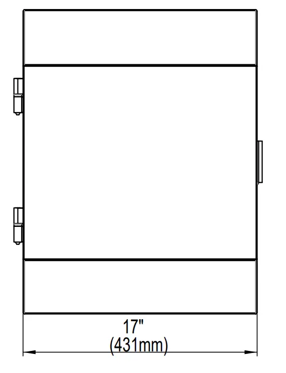
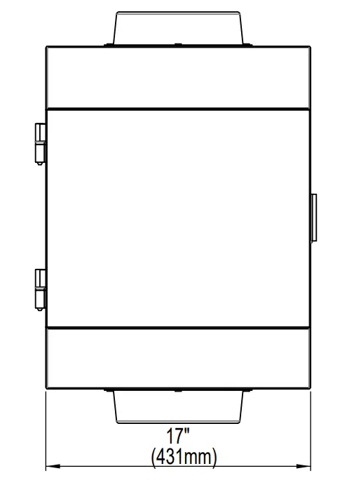
| Plenum Mount Port Opening | 16″ x 3.5″ (406 mm x 89 mm) |
| Collar Mount Port Opening | 8″ (203 mm) Round* |
| Installtion Type | Plenum, Wall* or Floor* Mounted |
| Electrical Supply | 120VAC @ 60 Hz |
| Power Consumption | 134W |
| Certification | cCSAus |
| Airflow (low/high speed) | 208/280 cfm |
Installation
RETURN AIR PLENUM INSTALLATION
- Front View

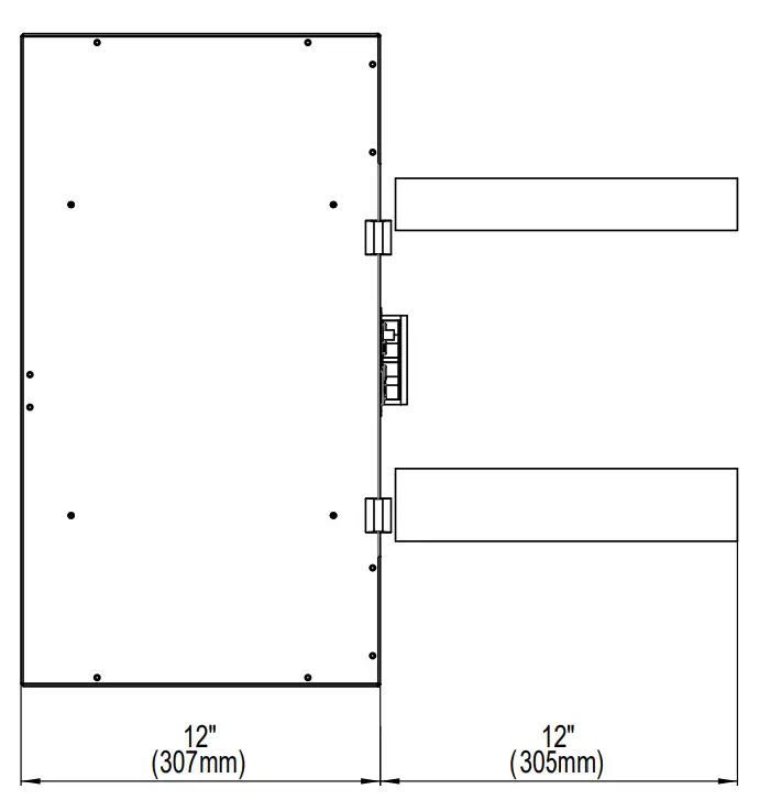
- Side View – Clearance

- Back View

RETURN AIR PLENUM INSTALLATION AND STAND ALONE INSTALLATIONS
- Front View

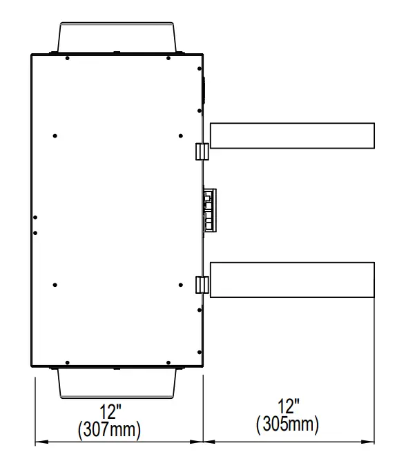
- Side View – Clearance

- Side View

Planning Installation
For integrated system installation
- Verify clearance on the ductwork to mount the unit using the Forced Air heating/cooling system
- Minimum clearance requirements for maintenance and service
- Electrical power requirements
- Interaction between the HEPA filter unit and other mechanical devices.
The Whole House HEPA unit is a versatile appliance with multiple installations configuration. It is recommended to take your time in planning the installation.
Several Installations are illustrated herein’ for Whole House filtration applications:
- Return to return integrated with the forced air heating/cooling system.
- Central draw points using dedicated duct system.
Types of Installation
I. RETURN TO RETURN INTEGRATED SYSTEM
DUCTING FLAIR SYSTEM
Installation
The Whole House HEPA Filtration system is designed to install directly onto the return air plenum of the forced air heating/cooling system. Choosing this type of installation eliminates the need to externally duct the HEPA filter unit to the plenum system. If you choose this type of installation, it is recommended that you run the fan on your forced air system continuously to maximize its cleaning ability.
DUCTING FLAIR SYSTEM
(Hepa Mounted on Duct)

COLLAR MOUNT SYSTEM
Installation
Whole House HEPA Filtration system can be converted to use 8 inch round collars for application requiring ducting. The kit includes two, 8 inch round collars, two mounting brackets for wall or floor mounting, installation guide and fasteners.
OPTIONAL COLLAR SYSTEM (Hepa Mounted on Wall)

Tips to installer
The Whole House HEPA Filtration system does not replace the filter from the forced air heating/cooling system. Regular maintenance of this filter is necessary to permit the good operation of the forced air heating/cooling system.
INSTALLATION SHOULD BE PERFORMED BY A CERTIFIED PROFESSIONAL.
Consult your HVAC product manufacturer if the usage of this product will affect the performance of your forced air heating / cooling system.
II. STAND ALONE SYSTEM
ATTIC INSTALLATION
Ideal for homes without a forced air heating / cooling system. Allows for air filtration and circulation throughout the home.
HEPA system must be operated continuously whenever a part or all the system is located in an unconditioned space to avoid condensation in the ductwork below freezing (0°C, 32°F).

BASEMENT INSTALLATION
Ducting will usually consist of one return with grille from one side of the home, and one supply with grille at the opposite end of the home.

Installation Step by Step
TOOLS REQUIRED
- Phillips #2 or Robertson #1 screwdriver
- 3/32” drill bit
- Tin snips or metal shear
- Power Drill
LOCATION
Return side connections is to be installed after the last branch on the return air plenum and minimum 2 linear ft distance from furnace.
A 5-ft power cord is supplied with the unit. If not available a 120VAC outlet needs to be supplied.
Note to installer
Refer to the general operation information section for details on how to remove the unit’s door and filters.
Tips to installer
Please consult local authorities to find out whether the installation of electrical products requires the services of a certified technician or electrician. Removing the filters from the unit will facilitate your job.
DUCTING FLAIRS MOUNTING SYSTEM
The Whole-House HEPA Plenum Systems are designed for single person installation. Once the holes are made in the main return duct and the unit is aligned, the installer just has to unfold the «Ducting Flairs» and screw the unit in place.
Tips to installer
It is recommended that the filtration unit have a devoted receptacle with 120V. It is not recommended to connect unit with an extension cord. If no receptacle is available please call an electrical contractor to have one installed.
STEP BY STEP INSTALLATION
Steps involved in the preparation of the plenum mount system are as followed:
Step 1
Preparing return air plenum
Find a location that satisfies both service and maintenance requirements and proceed to cut holes as illustrated below.

Tape template to return air plenum. Cut opening with metal shears, predrill for the securing screws and remove template.
Step 2
Preparing ducting flairs
Remove the door and filters and proceed to cut the insulation as illustrated below.
- Cut the insulation along the inside edge of both inlet and outlet ports to remove the insulation from the port openings.

- One cut permits the clean removal of the insulation piece.

- The unit should look like this when the foam piece is remvouved.

Cut the four metal tabs to release the mounting flairs for the inlet and outlet ports.

Apply plenum seal tape all around both openings on the back of the unit. Bend tabs outward approximately 90 degrees.

Step 3
Mount Hepa
Align unit into place. Unfold the ducting flairs completely to sandwich the return air plenum between the ducting flair and the filtration unit. Install unit as usual using all supplied fastening hardware.

MAKE SURE TO INSTALL FILTER ACCORDING TO AIR FLOW DIRECTION FOR MAXIMUM PERFORMANCE
Check for this symbol on each filters and it is located on the unit’s motor plate.
Steps involved in the preparation of the plenum mount system are as followed:
Step 4
Finishing
- Remove protective plastic covers from all filters and replace them in their proper location (Stage 1, 2 and 3).

- Replace door and insert power cord into the receptacle of the filter units and the other end into wall outlet.

General Operating Information
DOOR SWITCH

MODE SELECTOR
- II (280 CFM)
- I (208 CFM)

OPERATIONS
- Maximum Filtration (280 cfm)
- Normal Filtration (208 cfm)

FUNCTION
The Whole House HEPA system is comprised of a ventilator, speed selection switch, 3 stages of filtration and the cabinet enclosure system. The ventilator pulls air through the pre-filter and then threw the impregnated carbon pad for odor control and finally the last stage of filtration is the HEPA filter which removes 99.97% of particles 0.3µm in size.
OPERATION MODE OPTIONS
The unit features two speeds of operation for your convenience. The speed selection switch is located on the front of the motor assembly. At lowest speed the unit will provide 208 CFM of clean air while at highest speed, the unit will provide 280 CFM of clean air. It is recommended that the unit be operated on highest speed at all times to maximize the benefits of the HEPA filtration system. If for some reason the filtration needs are not as important then one might operate the unit at low speed.

An access door is provided at the front of the unit to permit access to the filters and speed selection switch. Opening the latch on the right side of the unit will permit the door to swing open. A safety door interlock switch cuts the power to the motors for your safety. If needed the door can be removed from the cabinet hinges by holding the top part of the door with one hand and gently taping on the bottom edge of the door with the other hand to release the door from its hinges.
RECOMMENDED OPERATION
The return plenum mount model operates in conjunction with your forced air heating/ cooling system. A forced air distribution system continuously circulates the same air inside your home. The whole house HEPA filtration system operates on the principal of bypass filtration, which means that a portion of the air being returned into the furnace is filtered on each pass. Over time all the air in the home gets cleaned. It is recommended that the furnace blower be in operation whenever the filtration system is in operation.
For stand-alone attic installation, the HEPA filtration system must be operated continuously whenever a part of all the system is located in an unconditioned space to avoid condensation in the ductwork below freezing (32°F ,0°C)
Maintenance of the unit should be performed at regular interval to keep the benefits of the HEPA filtration unit.
General Maintenance Information
WHEN SHOULD I SERVICE MY UNIT?
SERVICE AND ACCESSORIES
Detailed maintenance information is located on the front decal on motor plate.
PRE-FILTER WITH CARBON (463046)
Replace filters every 3 to 6 months or as needed.
HEPA FILTER (463048)
Replace filter every 2 to 5 years or as needed. Check regularly to maintain maximum performance from your HVAC system.
For replacement filters, contact your local HVAC contractor.
INSIDE THE UNIT
Once a year or as needed, clean the interior of the unit (Wall and Motor Plate) with a mild and nonabrasive soap. It is recommended to use products that are environmentally friendly.
Tips to homeowner/installer
ALWAYS UNPLUG UNIT BEFORE SERVICING
CHANGING FILTERS
After opening the unit’s door, grasp both edges of filter and pull with equal force to slide out the filter.

CLEANING
Once a year or as needed, clean the interior of the unit (Wall and motor plates) using mild nonabrasive soap and water. It is recommended to use products that are environmentally friendly

TROUBLESHOOTING
| TROUBLESHOOTING | SUGGESTIONS |
| Unit does not operate |
|
| Unit operates only on one speed. | Possible loose wire inside electrical box, contact you local contractor. |
| Unit vibrates | Check for excessive dust build up or missing balancing weight on the impeller wheel. |
ELECTRICAL WIRING DIAGRAM

Warranty
- The maintenance free motors are permanently lubricated and are guaranteed for 7 years. They are factory balanced to prevent vibrations and promote silent operation.
- All other components have a 5 year limited warranty. (filters not included)
- The limited warranty covers normal use. It does not apply to any defects, malfunctions or failures as a result of improper installation, abuse, mishandling or misapplication, fortuitous occurrence or any other circumstances outside manufacturer’s control.
- The warranty is in effect for 5 years on parts and 7 years on the motor after the date of purchase, including parts replaced during this time period. If there is no proof of purchase available, the date associated with the serial number will be used for the beginning of the warranty period. Parts are a 1 year warranty when replaced after the initial warranty has expired.
- This warranty is the exclusive and only warranty in effect and all other warranties either expressed or implied are invalid.
- Warranty from the manufacturer is for parts only and does not include labor or shipping to service or repair them.
Greentek reserves the right to make technical changes.
For updated documentation please refer to www.greentek.cat
Customer Support
50 Kanalflakt Way, Bouctouche, NB, E4S 3M5
Tel.: 888.724.5211 • email [email protected]


































