
Lossnay CO2 Sensor Wall-Mounted Type
PZ-70CSW-E
Installation and Instruction Manual
This CO2 sensor changes the color of its LED light in accordance with the CO2 concentration within the room, optimizes the amount of airflow, and thus reduces the fresh air load.
- This manual must be read both fully and carefully before commencing installation procedures; furthermore, the subsequent installation must be performed correctly and safely in accordance with the instructions given.
- After installation, ensure that this manual is given to the customer.
Safety Precautions
| Incorrect handling could cause serious injury or death. |
Never modify or repair by yourself.
If the product is modified or inappropriately repaired, electric shock, fire, etc. could result. Contact your dealer for repair.
– Do not move or reinstall the product by yourself.
If it is installed improperly, electric shock, fire, etc. could result. Contact your dealer or technical representative.
– Use the specified cables for wiring and connect them securely. Hold the cables so as not to apply the external force of the cables to the connector.
The improper connection could result in heat generation or fire.
– All electrical work must be performed by a licensed technician, according to local regulations and the instructions given in this Installation manual.
– Install the product in a firm and stable place to withstand the product weight.
If the strength is inadequate, the product could drop and cause an injury.
– Ensure that installation work is done correctly following this Installation manual.
If it is installed improperly, electric shock, fire, etc. could result.
– Close the control cover after Installation.
– Do not install the product in a place where flammable gases may leak.
If gas should leak or accumulate around the product, fire or explosion could result.
– Do not use the product In special environments.
The product could be damaged if it is used in locations subject to large quantities of oil (including machine oil), steam, or sulfide gas.
– Do not install the unit in a place where the temperature rises above 40 °C (104°F), where large amounts of oil, steam, organic solvents, or corrosive gases, such as sulfuric gas, are present, or where acidic/alkaline solutions or sprays are used frequently.
These substances can compromise the performance of the unit or cause certain components of the unit to corrode, which can result in electric shock, malfunctions, smoke, or fire.
– Do not install the product in a place where highly humid, like a bathroom, or another wet place.
It could cause electric shock or injury.
| Incorrect handling could cause injury or damage to property or household effects. |
– Wire so that it does not receive any tension.
Tension could cause wire breakage, heating or fire.
– Seal the cable from the sensor case with putty etc.
Any dew, moisture, cockroaches, insects entering the unit could cause electric shock or malfunctions.
– Put on gloves during installation.
Failure to do so could cause injury.
– To avoid discoloration, do not use benzene, thinner, ethanol, hypochlorous acid, or chemical rag to clean the case. To clean the case, wipe with a soft cloth soaked in water with mild detergent, wipe off the detergent with a wet cloth, and wipe off the water with a dry cloth.
Outline drawings, Included Accessories, and Specifications
■ Included accessories
Please confirm that the following accessory parts are included in the box.
- Sensor case (top case, bottom case): x 1
- Cross-slot pan-head screws M4x30: x 2
- Wood screws 4.1×16: x 2
- CO2 sensor cable (10 m (11 yards)): x 1″
- LED cable (10 m (11 yards)): x
- LED display explanation nameplate: x 1
- Safety caution for installation: x 1

■ Specifications
Rated power supply voltage: 12 VDC (Supplied from the Lossnay)
Power consumption: 2 W or less.
Accessory wire length: 10 m (11 yards) [Maximum length is 20 m (22 yards) with field supply extension]
Usage environment: 0 to 40 °C (32 to 104 ‘F), 80 % RH or less. (No Cigarette Smoke or Sulfur and with no dew condensation)
Detection range: 300 to 2000 ppm Measurement accuracy: ± (70 + 5% of measurement value) ppm
Weight: 1.1 kg
LOW (Green LED): CO2 concentration is below the threshold (1500 ppm at factory setting)
MID (Orange LED): CO2 concentration exceeds the threshold
HIGH (Red LED): CO2 concentration exceeds the threshold for a long time (20 minutes at factory setting).
- In the range of 0 °C (32 °F) or less, the CO2 Sensor may not detect the correct CO2 Concentration.
- Measures the CO2 concentration around the location where the CO2 sensor is installed. In addition, the measurement accuracy may vary depending on the usage environment, installation conditions, etc. but this is not a malfunction.
Installation Method
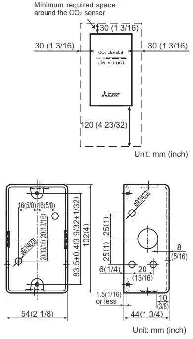
3.1 Determine the installation location for the sensor case
Ensure that you adhere to the following points.
- Ensure clear space around the case as shown in the figure on the right, regardless of whether it is installed using a switch box or on a wall.
- Source the following items locally.
– Putty
<Extra items required if installing using a switch box>
– Single-gang switch box
– Thin steel conduit
– Locknut and bushing
Note:
– Direct sunlight sometimes cause the sensor case to discolor. Please be careful when deciding the install position.
– Determine the sensor installation location only after checking with local laws and regulations.
– Ensure that no objects are placed in the clear space around the sensor case to detect the correct CO2 concentrations.
– Ensure a flat surface is selected for the installation surface.

3.2 When using cable extensions and external bypass switching <items to carry out if necessary>
■ Cable extension
Depending on the installation location, extensions for the included cables may be necessary. Extension up to 20 m (22 yards), including the included cables is possible. <Required items>
– Cable (non-polar 4-wire sheathed 0.3 mm2 (AWG 22) cable (conductor resistance of 60 0/km or less))
– Crimped terminal
* Two sets of the above items are required—one each for the CO2 sensor cable and for the LED cable.
– When installing an extension, a qualified electrical technician is to use crimp connections between the cut end of the cable and a commercially available cable (stranded sheathed wire, a nominal cross-section of 0.3 mm2 (AWG 22) (conductor resistance of 60 0/km or less)). Ensure that this connection is insulated to prevent foreign matter (dust, water droplets) from entering.
– When installing the extension, take care so that the CO2 sensor cable and LED cable are not connected incorrectly. Incorrect connection may result in incorrect operation or damage to both the Lossnay unit board and this product.
– In order to prevent incorrect connection of leads, connect leads of the same color individually when installing extensions.
– After installing the extension, use a tester to test continuity between the connectors on both ends of the extended cable.
• Confirm that the resistance between the same-colored leads is 0 0.
• Confirm that the resistance between different-colored leads is 10M0 or more.

■ When using external bypass switching on this product
– While referring to the figure below, cut the lead of the CO2 sensor cable (included accessory), and connect the remote controller adapter (PAC-SA88HA-E or PAC-725AD (sold separately)).
Note:
– Ensure that a qualified electrical technician carries out cutting and connecting of the leads.
– Ensure that unused leads (orange, green) are properly insulated.
– For details, refer to the Lossnay unit Installation Instructions.
– After installing the extension, use a tester to test continuity between the connectors on both ends of the extended cable.
• Confirm that the resistance between the PAC-SA88HA-E or PAC-725AD connector 4P and the connector into which the CO2 sensor cable blue lead is inserted is 0 Ω.

3.3 Connect the Lossnay unit board
Depending on the model of Lossnay or installation condition, the actual PCB and following diagram can be upside down.
– Remove the black screws (x 3), and remove the Lossnay unit control box cover.
– Pass the included cables (x 2) through the communication cables bushing on the side of the control box cover.
– Connect the cable connectors as shown in the wiring diagram
– Ensure that connectors are fully inserted so that they do not come loose.

Note:
– Inserting connectors in the wrong place or with the wrong orientation may result in failure or damage.
– Connect CN26 to the white connector. Do not connect to the red or green connectors. (This will result in damage to the circuit board or CO2 sensor)
– The LED cable has a 4-pin connector and a 5-pin connector. Connect the 4-pin connector to the LED board of PZ-70CSW-E, and the 5-pin connector to the Lossnay unit control circuit board.
3.4 Open the sensor case
Insert a flat-head screwdriver into the tab, and push this down to remove the top case.

Note:
– Remove the case, taking care not to damage it.
– Do not turn the flat-head screwdriver while it is inserted in the tab. Doing so may damage the tab or the case.
3.5 Pass the LED and CO2 sensor cables through the cable access hole in the bottom case
Pull each cable through from the switch box or wall, and pass through the cable access hole in the bottom case.
Note:
– Pull approximately 80 mm of cable through the cable access hole.
– Do not pass any other cables through the conduit other than this product’s cables. (Doing so may lead to incorrect operation or damage)

3.6 Carefully seal with putty to stop condensation, water droplets, and insects from entering the case
■ Installation using a switch box
- Drill a hole in the wall.
– Drill a hole in the wall, and install the switch box on the wall.
– Connect the switch box to the conduit tube. - Seal the cable access hole with putty
– Seal the LED, CO2 sensor cable access hole at the connection of switch box and conduit tube with putty.

■ Direct wall installation
- Drill a hole in the wall.
– Drill a hole in the wall, and thread the cable through it. - Seal the cable access hole with putty
– Seal the hole through which the cable is threaded with putty.

3.7 Install the bottom case on the switch box or on the wall

Note:
– Do not use an electric screwdriver to tighten screws. Only use manual screwdrivers to tighten screws. Excessive tightening may lead to deformation or cracking.
– When installing on a switch box or on a wall, ensure that the bottom case is secured at two or more points.
– If the installation position on the wall is not secure, then use wall anchors to ensure it is affixed securely.
– Do not use any screws other than the included screws.
– Confirm that the case is firmly attached to the mounting surface.
– Do not seal the slits on the underside of the bottom case.
3.8 Wire to the top case
Connect the cable connectors to the top case LED board and the CO2 sensor board as shown in the wiring diagram.

Note:
– Ensure that connectors are fully inserted so that they do not come loose.
– After connecting these, ensure the top case does not hang by the leads. Doing so may damage the leads or the boards.
3.9 Fit the top case to the bottom case
The top case has two tabs at its top. Hook these tabs into the bottom case, and push until a “click” is heard.

Note:
– Attach the top case while making sure that leads are not caught.
– Push until a “click” is heard. If the top cover is not securely mounted, it may fall off.
– The top cover has a protective sheet applied. Remove this protective sheet at the time of use. Additionally, affix the LED display explanation nameplate (included) as needed.
Wiring Diagram
A qualified electrical technician is to carry out connection work. Once installation work is complete, confirm again that wiring is as per the wiring diagram, and that no parts or screws remain unused.

* If extending to 10 m (11 yards) or more, extending of each cable is required. (For details, refer to 3.2)
Precautions
Airflow function (unbalanced supply and exhaust airflow setting) is not available during the Lossnay unit fan speed is controlled by the CO2 sensor.
– CO2 concentrations will differ depending on the usage environment and product installation conditions, therefore the value measured by the CO2 sensor may differ from the actual CO2 concentration within the room. Additionally, for approximately 15 minutes after start-up, the measured values may differ significantly from the actual CO2 concentration within the room.
– The automatic calibration function recognizes the lowest CO2 concentrations, such as at night or when there are fewer people coming and going, as the standard value (corresponding to normal outside CO2 concentrations) and corrects these correspondingly, therefore the CO2 concentrations detected by the CO2 sensor and the actual CO2 concentration within the room may differ. Therefore, if this product is used in locations in which the outside CO2 concentration is normally higher than the standard value (such as near a major highway), or in an interior environment with higher-than-normal CO2 concentrations, then there may be a significant discrepancy between the actual CO2 concentrations and the detected concentrations. In these cases, use this product after configuring concentration correction settings (Section 6.5) of the sensor output using the remote controller (PZ-62DR-E).
– This CO2 sensor does not support automatic start/stop control.
– This CO2 sensor is intended for use in normal interior environments, and may not be able to correctly detect CO2 concentrations if used in rooms with extreme levels of dust, etc.
– Sudden changes in temperature or humidity may adversely impact the detection accuracy of the CO2 sensor, causing the sensor to be unable to correctly detect the CO2 concentration within the room.
– This product cannot be used in rooms in which cigarette smoke is present.
– This product should not be used as a safety device to detect or prevent poisonous gases that could cause hypoxia or carbon monoxide poisoning or flammable gases.
– This product cannot be used in hot spring areas or other areas with high levels of sulfur dioxide. Doing so may lead to the deterioration of the CO2 sensor.
– During night purge operation, auto fan speed by the CO2 sensor will not be possible.
– When there are significant fluctuations in the CO2 concentration, there may be differences between the remote controller CO2 concentration display and the CO2 concentration LED display.
– Ensure that any remaining cables are collected on top of the Lossnay unit. Placing these near other electrical devices may result in damage to the electrical devices themselves or to the CO2 sensor.
– Do not use alcohol or similar agents to clean the product. Wipe with a dry towel to remove any soiling.
– Do not install the unit in a location exposed to direct sunlight.
Settings
To use the CO2 sensor for auto fan speed, the configuration of settings on the remote controller (PZ-62DR-E) or the Lossnay circuit board dip switch is required. Additionally, when using group control for multiple Lossnay units, the configuration of address settings is required in order to configure different function settings between Lossnay units. For how to configure the settings, refer to the Installation Instructions for the Lossnay unit used and the remote controller.
* Group control and settings from Section 6.4 onward can only be set when using the PZ-62DR-E.
6.1 Main unit settings
When using a single CO2 sensor to group-control multiple Lossnay units, connect the Main Lossnay unit (Lossnay unit with the youngest address in the group) to the CO2 sensor.
* If not connecting a PZ-62DR-E, group control will not be available.
6.2 CO2 sensor setting
In order to use the CO2 sensor for auto fan speed, set either the Lossnay unit dip switch or the remote controller function settings to “Connected to PZ-70CSW-E.” Configuring these settings enables to use of auto fan speed using the CO2 sensor.
– If using a single CO2 sensor for group control of multiple Lossnay units, keep “CO2 sensor or BMS setting” for other than the Main Lossnay unit at factory setting.
– When using group control for multiple Lossnay units, if connecting a CO2 sensor to each Lossnay unit, keep “CO2 sensor or BMS setting” in all Lossnay units to “PZ-70CSW-E connection,” and set “Input priority setting” to “Individual control priority.”
– If using a remote controller, configure 6.4. CO2 sensor setting – maximum side and minimum side.
6.3 Auto fan speed setting without Lossnay or M-NET centralized remote controller
If not connecting remote controllers or M-NET centralized controllers to the Lossnay unit. set the ‘Auto fan speed setting without Lossnay or M-NET centralized remote controller” dip switch to ON.
6.4 CO2 sensor setting – maximum side and minimum side
The upper and lower limit of CO. concentration is selectable. The Lossnay unit controls its fan speed according to the set upper and the lower limit. Refer to the example on below. Configure the settings from the remote controller CO2 control screen function settings. For how to configure the selling, refer to the Installation Instructions for the remote controller.
- Upper limit available setting range: 600 (lower limit + 300) to 2000 ppm (increments of 50 ppm)
- Lower limit available setting range: 300 to (upper limit – 300) ppm (increments of 50 ppm)
- This automatically controls the amount of airflow with the set CO²concentration as standard, however, given that CO2 concentration detection will differ depending on the usage environment and product installation conditions, the value may exceed the upper limit depending on the usage environment.
- If not using a remote controller. automatic airflow control will be carried out at the factory default selling. • Factory default setting: Upper limit 1000 ppm, lower limit 450 ppm <Example>
Auto fan speed with the following limits:
CO2 upper limit: 1000 ppm
CO2 lower limit: 450 ppm
(Factory setting)

• Fan output is switched in 16 steps for each CO2 concentration equally divided between 450 ppm (CO2 lower limit) and 1000 ppm (CO2 upper limit).
6.5 CO2 sensor correction
The CO2 sensor recognizes the lowest CO2 concentration over the previous week as the standard value (corresponding to normal outside CO2 concentrations), and carries out calibration. The standard value for calibration is 400 ppm, however, if this product is used in locations in which the outside CO2 concentration is normally higher than the standard value (such as near a major highway). or in an interior environment with higher-than-normal CO2 concentrations, then there may be a significant discrepancy between the actual CO2 concentrations and the detected concentrations. Therefore, configure the concentration correction function for CO2 sensor output. For how to configure the setting, refer to “CO2 sensor correction- in the Installation Instructions for the Lossnay unit.
6.6 CO2 concentration display setting
When using a remote controller. the CO2 concentration can be displayed on the applicable Lossnay remote controller screen.
– To set the CO2 concentration display. refer to the remote controller Installation Manual. and set ‘Display details setting > Sensor value- to ‘Yes.’
– When displaying the CO2 concentration, the supply air temperature cannot be displayed at the same time.
– The CO2 concentration display value may differ from the actual CO2 concentration within the room. This product cannot be used as a measurement device.
– For approximately 15 minutes after turning the power on, or when changing the 6.2 CO: sensor setting, the CO2 sensor will be in warm-up operation. During warm-up operation, the remote controller CO2 concentration display will show •—ppm.-
– For approximately 15 minutes after starting operation. The CO2 concentration display value may greatly differ from the actual CO2 concentration within the room.
– The CO2 concentration display range is 400 to 2000 ppm. If the concentration exceeds 2000 ppm. ‘2000 ppm” will be displayed. and if less than 400 ppm. to ppm” will be displayed. Additionally. the concentration is displayed in increments of 50 ppm from 400 to 1000 ppm. and increments of 100 ppm from 1000 to 2000 ppm.
6.7 PZ-70CSW-E LED setting
Wall to mount type CO2 sensor PZ-70CSW-E has LED which indicates the concentration level.
[LED operation overview]
The LED will light in accordance with the operations shown below. Settings thresholds and lighting times can be changed in the remote controller function settings.

- LED usage setting during nonoperation It is possible to select lit or unlit during Lossnay unit is not operating. The factory default setting is to turn on/turn off the LED display in accordance with Lossnay unit operation/shutdown. For how to configure the setting, refer to “LED usage setting for PZ-70CSW-E during nonoperation” in the Installation Instructions for the Lossnay unit.
- Threshold concentration The threshold CO2 concentration at which the LED changes from “LOW (green)” to “MID (orange)” can be set within the range of 1000 to 2000 ppm. (increments of 100 ppm) The factory default setting is 1500 ppm. For how to configure the setting, refer to “Threshold concentration for PZ-70CSW-E LED” in the Installation Instructions for the Lossnay unit.
- Threshold minutes The threshold time at which the LED changes from “MID (orange)” to “HIGH (red)” can be set within the range of 10 to 30 minutes. (settable in 5-minute increments) The factory default setting is “20 min.” For how to configure the setting, refer to “Threshold minutes for PZ-70CSW-E LED” in the Installation Instructions for the Lossnay unit.
Trial operation and Operation Methods
When using this product without the remote controller (PZ-62DR-E) connected, only carry out 7.2 LED display lamp test operations.
7.1 Trial operation with the remote controller
Press the ON/OFF button on the Lossnay remote controller, press the button, and confirm that the remote controller responds in the following order. Confirm that the CO2 concentration is displayed on the screen. (When CO2 concentration display is set to “Available”)

– Setting the fan speed to “Auto” will start automatic fan speed control using the CO2 sensor.
– The remote controller displays the fan speed on a scale of 1 to 4.
For the 16 steps fan speed by the automatic fan speed control:
During 25 to 45% fan speed operation, it displays the fan speed on a scale of 1.
During 50 to 70% fan speed operation, it displays the fan speed on a scale of 1 and 2.
During 75 to 95% fan speed operation, it displays the fan speed on a scale of 1 to 3.
During 100% fan speed operation, it displays the airflow on a scale of 1 to 4.
– If a “5501” error is displayed on the remote controller, this may indicate an error in either the CO2 sensor connection method or the settings method. Check the installation method and wiring diagram, and reinstall.
– For approximately 15 minutes after turning the power on, or when changing the 6.2 CO2 sensor setting, the CO2 sensor will be in warm-up operation. During warm-up operation, the Lossnay unit operates at fan speed 4, and the remote controller displays “— ppm” on the screen regardless of the CO2 concentration.
– If the CO2 concentration display does not change for a long period of time, there may be incorrect wiring or broken wiring.

7.2 LED display lamp test operation
- Supply power to the Lossnay unit.
- Set the trial operation switch (SW2-1) to “ON.”
[Running trial operation]
The LED display lamp lights repeatedly in the order LOW (green), MID (orange), and HIGH (red) at 10-second intervals. - After trial operation, turn SW2-1 to “OFF.”
* During trial operation, the remote controller and the M-NET centralized controller display “0900.”
* If the LED display lamp does not light as above, then this may indicate an error in either the CO2 sensor connection method or the settings method. Check the installation method and wiring diagram, and reinstall. After trial operation, check if there is any abnormality displayed on the remote controller or on the centralized controller, or if the abnormality display LED on the Lossnay unit control board is blinking.
If there is an abnormality displayed, check the installation method and wiring diagram, and reinstall.
Manual Download
Go to the website below to download manuals, select model name, then choose a language.

http://www.mitsubishielectric.com/Idg/ibim/
MITSUBISHI ELECTRIC CORPORATION
TOKYO BLDG. 2-7-3. MARUNOUCHI. CHIYODA-KU. TOKYO 100-8310. JAPAN


















