MONOGRAM ZXS900P Storage Drawer

Safety Information
BEFORE YOU BEGIN
Read these instructions completely and carefully.
- Note to Installer – Be sure to leave these instructions with Consumer.
- Note to Consumer – Keep these instructions for future reference.
- Completion Time — 1 to 3 Hours.
Installation Preparation
TOOLS REQUIRED

MATERIALS REQUIRED (Provided)

- 4 Wood Screw
Image size is too small for OCR Engine 2. Please use Engine 1.
MATERIALS REQUIRED (Not provided)
- 2×2 or 2×4 Wood Block for Anti-Tip Security

- 2×2 or 2×4 Lumber for Runners

- Adhesive or other hardware for installing runners or shelf to support drawer

Runners must be level, rigidly mounted and capable of supporting 150 pounds.
REMOVE PACKAGING
Image size is too small for OCR Engine 2. Please use Engine 1.
Installation Preparation
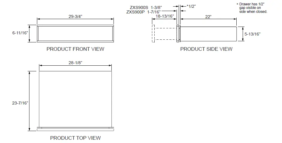
PRODUCT DIMENSIONS AND CLEARANCES

- When installed, the front face of the drawer will be nearly flush with adjacent cabinetry doors.
- Drawer overlaps will conceal cut edges on all sides of the opening
- Drawer must have a 3/8″ minimum clearance above the cabinet toekick.
When installing below ovens:
NOTE: Additional clearance between cutouts may be required. Check to be sure that oven supports above the Storage Drawer location do not obstruct the required interior depth and height.
- Allow appropriate minimum clearance between oven and drawer cutouts for clearance of overlaps. 5/8″ Min for wall ovens and 1 1/2″Min for Advantiums and Built In Steam Ovens
NOTE: If you are installing in frameless cabinets, it may be necessary to install 1/2″ wide cleats to accept mounting screws. See drawer for mounting screw locations.
When installing under a cooktop:
NOTE: When installing the storage drawer below a cooktop, a solid barrier must be installed at least 1″ from the lowest point of the bottom of cooktop burner box to the top of cutout. Use any solid material such as 1/4″ thick plywood. Allow at least 1/4″ air gap between the barrier and the top of the storage drawer
Installation below a cabinet drawer: The storage drawer may be installed beneath a cabinet drawer.
Side to Side Installation: Install two storage drawers in separate cutouts. Allow 1-3/4″ min. between cutouts
PROVIDE BOTTOM CABINET SUPPORT FOR ALL INSTALLATION TYPES

IMPORTANT: When installed below a single or double oven, check to be sure that any oven supports above the cutout do not obstruct the 23-1/2″ required depth of the storage drawer cutout.
- A minimum clearance of 5/8″ for wall ovens and 1-1/2″ for Advantiums and Built In Steam Ovens between oven and storage drawer cutouts are required. Additional clearance may be required if 2 x 4 blocks are used to support runners or solid floor of the oven
- The drawer may be supported by either a solid bottom, 2 x 4 or 2 x 2 runners.
- The support must be level and rigidly mounted, flush with the bottom edge of the cutout.
- There is no way to level the drawer once it has been installed. Be sure supports are level.
- The entire weight of the drawer is supported by the runners or solid floor and must be capable of supporting 150 lbs.
The storage drawers have three installation types – Standard, Flush Inset, and Flush Inset with Bottom Trim. Please follow the cutout specifications for the type of installation you are planning.
STANDARD INSTALLATION

FLUSH INSET INSTALLATION – NO TRIM


FLUSH INSET INSTALLATION WITH BOTTOM TRIM


PREPARE THE INTERIOR


Cut and install side cleats:
- Cut 2 side wood cleats to height of cabinet opening and approx. 2-1/2″ in depth (A). Install on each side at an indicated depth from the front face of the cabinet.
Cut and install top cleat:
- Cut top wood cleat to width of cabinet opening minus 2 side cleat thicknesses. Install in top of cutout at an indicated depth from the front face of the cabinet.
Cut and install bottom cleat:
- Cut bottom wood
Install onto the cabinet floor between the side cleats. Push it all the way back against cabinet wall and make sure its front face is at an indicated depth from the front cabinet face.
Installation
INSTALL ANTI-TIP BRACKETS
ANTI-TIP PRECAUTIONS
An anti-tip brace must be installed to prevent the drawer from tipping forward when opened and loaded. Failure to do so could result in personal injury.

INSTALL BOTTOM TRIM IF APPLICABLE
- On the underside of the case, locate 4 holes along the front edge.
- Align the 4 holes on the trim bracket with the 4 large holes on the case. Using 4 screws provided, attach the bracket to the underside of the case.
- Align the 2 holes in the trim with the 2 holes in the front facing portion of the bracket. Using the screws and flange serrated nuts provided, secure the trim to the bracket.


INSTALL STORAGE DRAWER
- Slide the left corner of the drawer into the
- Push the drawer back until the front flange is flush to the cabinet front.
- Open the drawer
- rill pilot holes through the holes in the overlapping frame, one on each corner.
- rive the wood screws provided into each

NOTE: While performing installations described in this book, safety glasses or goggles should be worn. For Monogram® local service in your area, call 1.800.444.1845.
NOTE: Product improvement is a continuing endeavor at GE Appliances. Therefore, materials, appearance and specifications are subject to change without notice.






















