
INSTALLATION & USER INSTRUCTIONS
FLOOR MOUNTED ELECTRIC FIRE
MODELS COVERED BY THESE INSTRUCTIONS
PANORAMIC COMPLETE ELECTRIC SUITE
EAN 5023539022546
PANORAMIC COMPLETE ELECTRIC SUITE
| Focal Point Fires Ltd Christchurch, Dorset BH23 2BT Tel: 01202 49933499330 Fax: 01202 499326 www.focalpointfires.co.uk e: [email protected] | Focal Point Fires Ltd RBK House, Irishtown, Athlone, Co. Westmeath, N37 XP52, Ireland Tel: 01202 499330 Fax: 01202 499326 www.focalpointfires.co.uk e: [email protected] |


This product is only suitable for well insulated spaces or occasional use. Please note: Except where otherwise stated, all rights, including copyright in the text, images, and layout of this booklet is owned by Focal Point Fires Ltd. You are not permitted to copy or adapt any of the content without the prior written permission of Focal Point Fires Ltd.
All instructions must be handed to the user for safekeeping.
Revision H – 03/21
©.2021FocalPointFiresLtd.
IMPORTANT NOTES
IMPORTANT -THESE INSTRUCTIONS SHOULD BE READ CAREFULLY AND RETAINED FOR FUTURE REFERENCE.
When using this electrical appliance, basic precautions should be followed to reduce the risk of fire, electric shock, and injury to a person, including the following:
- This heater must be used on an AC supply only and the voltage marked on the heater’s rating label must correspond to the supply voltage.
- DO NOT switch the appliance on until it is properly installed as described in this
- This appliance can be used by children aged 8 years and above and persons with reduced physical, sensory or mental capabilities or lack of experience and knowledge if they have been given supervision or instruction concerning the use of the appliance in a safe way and understand the hazards involved. Children shall not play with the appliance. Cleaning and user maintenance shall not be made by children without supervision.
- Children of less than 3 years should be kept away unless continuously supervised. Children aged from 3 years and less than 8 years shall only switch on/off the appliance provided that it has been placed or installed in its intended normal operating position and they have been given supervision or instruction concerning the use of the appliance in a safe way and understand the hazards involved. Children aged from 3 years and less than 8 years shall not plug in, regulate and clean the appliance or perform user maintenance.
- CAUTION: Some parts of this product can become very hot and cause burns. Particular attention has to be given where children and vulnerable people are present.
- If the supply cord is damaged, it must be replaced by the manufacturer, its service agent or similarly qualified persons in order to avoid a hazard.
- The heater must not be located immediately below a socket-outlet
- DO NOT use this heater in the immediate surroundings of a bath, a shower or a swimming pool.
WARNING: In order to avoid overheating, do not cover the heater.- DO NOT use this heater with a programmer, timer, separate remote-control system or any other device that switches the heater on automatically, since a fire risk exists if the heater is covered or positioned incorrectly.
- CAUTION: In order to avoid a hazard due to inadvertent resetting of the thermal cutout, this appliance must not be supplied through an external switching device, such as a timer, or connected to a circuit that is regularly switched on and off by the utility.
- WARNING: This heater is not equipped with a device to control the room Do not use this heater in small rooms when they are occupied by persons not capable of leaving the room on their own unless constant supervision is provided.
- Keep furniture, curtains, and other fabric material away from the appliance.
- DO NOT leave the appliance unattended during use.
- From time to time, check the cord for damage. Never use the appliance if the cord or any part of the appliance shows signs of damage.
- DO NOT run the mains cable under carpets, rugs etc.
- DO NOT cater or obstruct the heater in any way. Overheating will resuk if it is accidentally covered.
- Never Immerse the product in water or any other liquids.
- DO NOT use the appliance outdoors.
- Before cleaning the appliance, ensure it is unplugged from the power and that it is completely cool.
- DO NOT clean the appliance with abrasive chemicals.
- Never use accessories that are not recommended or supplied by the manufacturer. It could cause danger to the user or damage to the appliance.
- DO NOT insert or allow foreign objects to enter the inlet or outlet vents as this may result in electric shock.fire or damage to the appliance.
- DO NOT install the fire using an extension cord.
- Unplug from the mains supply if the appliance Is not to be used for long periods.
- This product is only suitable for well-insulated spaces or occasional use.
INSTALLATION REQUIREMENTS
The appliance is supplied with a premixed. three-pin BS plug (13 Amp fuse rated) and 1.69 meters of electrical cable. It is, therefore, necessary for a suable electrical socket to be located within this distance and be easily accessible. This appliance is designed to be Reed to the wall, using the wall fixtures/fixings provided. DO NOT recess any part of appliance Into the wallies *prance is suitable for installation in static holiday/park homes.
APPLIANCE DATA
Weight (kg): 30k8
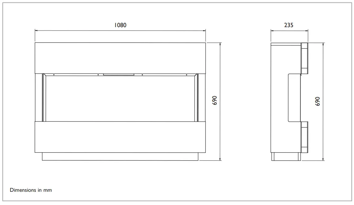
Dimensions: H 690 itW IMO x 0 235 (mm)
Supply Voltage and Rating Power: 220.240VAC. SON/ 2000W
Fuse Rating: 13 Amp
Heating Elements: 2000W
Lighting: LED
This lire is fitted with LEDs (Lieu Emitting Diode) in place of conventional bulbs. LEON generates the same light levels as conventional bulbs but uses a fraction of the energy consumed. LEDs are maintenance-free and will not require replacing during the life of the product.
| Model | PANORAMIC LED ELECTRIC | ||||
| Item | Symbol | Value | I Unit | Item | I Unit |
| Haat output | Types of heat input, for electric storage local space heaters only | ||||
| Nominal heat output | Pnom | 2.0 | KW | Manual heat charge control with integrated thermostat | No |
| Minimum heat output (indicative) | pmie | 1.0 | KW Manual heat charge control with room and/or outdoor temperature feedback | No | |
| Maximum continuous heat output | Pmax, c | 2.0 | KW Electronic heat charge control with room and/or outdoor temperature feedback | Yes | |
| Awdliary electricity consumption | Fan-assisted heat output I N/A | ||||
| At nominal heat output | elmox | 2. | KW | Type of heat output/room temperature control | |
| At minimum heat output | timer | 1. | ION | Single singe heat output and no room temperature control | No |
| In standby mode | eISB | WA | KW | Two or more manual states no temperature control | No |
| With mechanical thermostat room temperature control | No | ||||
| With electronic room temperature control | Yes | ||||
| Electronic room temperature control plus day timer | Yes | ||||
| Electronic mom temperature control plus week timer | yes | ||||
| Other control options | |||||
| Room temperature control with presence detection | Yea | ||||
| Low-temperature control with open window detection | Yes | ||||
| With distance control option | Yes | ||||
| With adaptive start control | yes | ||||
| With Vorarlberg time limitation | No | ||||
| With black but sensor | No | ||||
| Contact details | Focal Point Fires.Avon Trading Palk Christchurch. Dorset. 81123 28T | ||||
COMPONENT CHECKLIST
| Quantity 1 1 1 1 | Description Heater unit Wall plug Fixing screw Bag of loose pebbles |
SITE REQUIREMENTS
It should be noted that the appliance creates warm convected air currents. These currents move heat from the room surroundings to. and up the wall surfaces adjacent to the heater.
Installing the heater next to these types of wall coverings or operating the heater where impurities in the air, (such as tobacco smoke) exist, may slightly discolor wall finishing.
If the appliance is to be secure on a dry-lined or timber-framed construction then the integrity and ability of the wall to secure the appliance must be confirmed. It is important in these circumstances that any vapor barrier and/or structural members of the house frame are not damaged.
If you are unsure of the ability of the wall to secure the appliance and/or which type of wall fixing to use, you should take professional advice and obtain the correct fixings. Alternatively, find a more suitable wall location.
DO NOT
- recess any part of the appliance into the wall, or run the supply cable under carpets
- site in a position where curtains or drapes could cover the appliance, or other soft materials could cover e.g. below a coat rack
- the site behind an opening door where mechanical impact/damage could occur
- the site where the supply cable would become a trip hazard
- sit, stand or forcefully pull on the appliance
- obstruct, cover or force items into the openings
- use the heater to dry clothes
- site/use in an outdoor location(s)
It is important that the following clearances are maintained from the appliance to combustible materials. These clearances are dependent on the securing location as defined below:
CLEARANCES TO COMBUSTIBLES
- The minimum distance to the front of the appliance is 900mm.
- There are no clearances for above or to the side of the appliance, apart from being clear of curtains and drapes.
UNPACKING THE APPLIANCE
Caution: This appliance Is heavy. Always seek assistance whilst unpacking and/or during installation. Please read all the instructions before continuing to unpack or install the appliance.
Before starting the installation of this fireplace, please read the following:
- The installation should be carried out by two adults to avoid injury or damage. If for any reason it is considered too heavy, please obtain assistance.
- When lifting the electric suit, always keep your back straight. Bend your legs and not your back. Avoid twisting at the waist. It is better to reposition your feet
- Avoid upper body / top heavy bending. Always bend from the knees rather than the waist. Do not lean forward or sideways while handling the heater.
- Always grip the heater with the palm of the hand. Do not use the tips of your fingers for support.
- Always keep the heater as close to the body as possible. This will minimize the cantilever action.
- Use gloves to provide additional grip.
- Unpack the package and lift the product gently out of the box, put it on a flat surface with the front panel facing forward.
IMPORTANT – PLEASE READ COMPLETELY THROUGH THE INSTRUCTIONS AND VERIFY THA TALL ALL LISTED PARTS ARE PRESENT BEFORE ASSEMBLY.
INSTALLATION
CAUTION: DO NOT CONNECT THE APPLIANCE TO THE ELECTRICAL SUPPLY AT THIS TIME.
Focal Point Fires plc. assumes absolutely no responsibility for injuries and damages that may occur due to improper installation or handling.
Remove any protective film coatings from the finished/decorative surfaces of the appliance, if any. After having selected the final position of the appliance taking into account the integrity of the wall the electric suite may be secured to the wall.
To ensure customer safety. be sure to design the installation so that the strength of both the wall and any wall fixings used are sufficient The appliance should not be installed until all wet plastering and/or drywall sanding and wall painting has been completed. Do not block the ventilation holes of the appliance. The wall onto which the appliance is installed must be flat Install only on a vertical surface. Avoid sloped surfaces. Installation onto anything other than a vertical wall may result in fire, damage, or injury.
If the appliance is to be mounted on the inner leaf of a conventional cavity brick wall, or a solid wall, then the wall plugs and fixing screws provided may be used. Depending on the condition of the wall it may be necessary to use additional fixings. In this situation, any additional fixings and wall plugs should be of the same size and type as the ones provided.
If the appliance is to be mounted on a dry lined wall or a timber-framed construction wall then efforts should be made to fix one position vertically, into one of the wooden studs, or supporting wooden members of the wall using the fixing screws provided. If this is not achievable then the wall should be strengthened using appropriate building materials.
WARNING
The wall where the appliance is to be installed must be capable of long-term support of the total load of the appliance. Measures should also be taken to ensure sufficient strength to withstand the force of earthquakes, vibration, and other external forces. Plasterboard alone is not considered to be a structural material. it is not recommended to rely on plasterboard fixings alone to support the weight of the appliance.

Installing the wall plugs into the wall.
Offer the appliance up to the wall in it’s desired location. Draw a mark where you wish to connect the strap to the wall. Remove the appliance from the position and drill Ix hole (5.5mm diameter, 40mm deep).
Please note: Before drilling into walls, always check that there are no hidden wires, pipes, etc. Make sure that the screws and wall plugs supplied are suitable for supporting the unit in your surface. Consult a qualified person if you are not sure.

Inserting the wall plug into the wall.
Gently hammer the wall plug into position.

Installing the appliance to the wall
Using a screwdriver screw through the fixing strap and into the wall plug you have just installed into the wall. Securing the appliance into place.
OPERATING THE APPLIANCE
- Mantel
- White Pebbles
- LED display
- Remote control
- Heat button
- Flame button
- Power button
- On/Off switch
OPERATING THE APPLIANCE
|
NOTE: Before attempting any operation with the remote control, press and slide the battery door (on the back of the remote) open and insert two AAA batteries, checking that the + and – sides of the battery match inside the battery compartment, close the battery door.
The remote control will not respond until the digital display is illuminated as it is in sleep mode. Before operating, press any button once to illuminate the digital display in order to activate the remote control. Do not press the remote control buttons more than once within two seconds for correct operation. Please wait for the receiver to respond to the transmitter.
Manual Operation
STEP 1: Plugin and turn the mains power supply on.
STEP 2: Turn the on/off switch on the right-hand side of the heater outlet to the “I” position.
STEP 3: Press the power button to turn on the appliance.
STEP 4: Press the ‘HEAT ‘ button once to activate the low heat setting; press it again to activate the high setting. Press it a third time to switch the heat setting off.
STEP 5: Activate the standby mode by pressing the power button again.
STEP 6: Switch the fire off by turning the on/off switch on the right-hand side of the heater outlet to the “0” position.
Remote Control Operation
STEP 1: Switch on the appliance using the ON/OFF switch
STEP 2: Press the power button on the remote control; the LCD display will illuminate.
STEP 3: Press the’ FLAME ‘ button on the remote control to select the desired flame brightness; there are 3 different brightness levels available.
STEP 4: Select the desired heat output by pressing the relevant heat setting button:
To activate the low heat setting, press ‘HEAT 1’; press it again to turn it off.
To activate the high heat setting. press ‘HEAT 11’; press it again to turn it off.
Note: The set temperature must be higher than the room temperature for the heat setting to operate.
AUTO Control Function
Press the ‘+ ‘ button on the remote control to increase the set temperature.
Press the ‘ button to decrease the set temperature. The temperature can be set between 15.30°C
Press ‘AUTO ‘ to activate the automatic control function. The appliance will automatically activate/deactivate with the following functions
-If the room temperature is higher than the set temperature on the appliance, the heat will turn off.
– If there is no operation for a few seconds, the remote control will showroom temperature.
– When AUTO mode is turned on, the HEAT I and HEAT II buttons are invalid.
Setting the Current Day and Time
The day and time can only be set using the remote control.
STEP 1: Press the ‘DATE TIME’ button on the remote control; the day of the week will flash. Use the up and down buttons to set the day of the week. Once the current day is set, press the ‘DATE TIME’ button to confirm the current day.
STEP 2: The hour setting will then flash once the day has been selected. Use ‘+’ or ‘-‘ to adjust the time until the current hour is selected. Press the ‘DATE TIME’ button to confirm the current hour.
STEP 3: Then the minute setting will flash once the hour has been set. Use ‘+’ or ‘-‘ to adjust the time until the current minute is set correctly. Press the ‘DATE TIME’ button to confirm the current minute.
Setting the Heat Timer
Press the ‘TIMER SET’ button on the remote control; the time cycle number will flash. Use the ‘+’ and ‘-‘ buttons to cycle through the different timer cycles from 0 to 10 and press the ‘TIMER SET’ button to confirm. A small black triangle will flash below one day of the week, indicating that the day of the week needs to be determined.
-Press the “CLEAR “button can cancel the set time conveniently.
Selecting the Day
STEP 1: Press the up or down buttons on the remote control to choose the set day between ‘SUN’ to ‘SAT’,the default day is ‘SUN’. Press the ‘+’ button to confirm the set day. Press the ‘TIMER SET’ button to confirm.
STEP 2: Repeat STEP Ito adds other days to the chosen timer cycle, or press the ‘-‘ button to delete the set day. Press the ‘TIMER SET’ button to confirm.
Set TIMER ON Time
The ‘ON’ symbol will illuminate on the LCD display to indicate that the Timer ON will need to be set.
STEP 1: Press the ‘+’ or ‘-‘button to set the hour setting for Timer ON and press the ‘TIMER SET’ button to confirm.
STEP 2: Press the ‘+’ or ‘-‘ button to set the minute setting for Timer ON and press the ‘TIMER SET’ button to confirm. The ‘ON’ symbol with turn off and the ‘OFF’ symbol will illuminate.
Set TIMER OFF time
The ‘OFF’ symbol will illuminate on the digital display to indicate that the Timer OFF will need to be set.
STEP 1: Press the ‘+’ or ‘-‘ button to set the hour setting for Timer ON and press the ‘TIMER SET’ button to confirm. STEP 2: Press the ‘+’ or button to set the minute setting for Timer OFF and press the ‘TIMER SET’ button to confirm.
CLEANING AND MAINTENANCE.
ALWAYS DISCONNECT THE APPLIANCE FROM THE MAINS SUPPLY OUTLET SOCKET BEFORE UNDERTAKING ANY CLEANING OR MAINTENANCE!
For general cleaning use a soft clean duster – never use harsh abrasives or cleaners. The glass panels should be cleaned carefully with a soft cloth.
If in doubt consult a qualified electrician. Refer to Section 3.0 Appliance Data for fuse specification. Excluding fuses, use only genuine manufacturers’ spare parts available from your supplier.
TROUBLESHOOTING GUIDE
| Fire is not switching on | Ensure mains switch is on Replace the fuse in the plug. |
| Pebbles glow but the flame effect does not work | Check to see if the spinning motor is working. If not contact Focal Point Dress. |
| The heater doesn’t work, but Power and Heater switch / and unplug buttons are in the “ON” position | Turn all switches/buttons to the “OFF” position of the unit from the wall outlet for 5 minutes. After 5 minutes plug the unit back into a wall outlet, and operate as normal. |
| Fire seems noisy | There is a level of noise when the flame effect is in use, caused by a motor that helps generate the effect. This noise will be heard when there is no other background noise. There is a higher level of noise associated with the heater motor; this is due to the airflow required when the heat has been selected. |
There are no internal user-serviceable parts.
Check regularly for the security of wall fixings as appropriate. Also, check the security of supply cable and connections. If the supply cable becomes damaged, it must be replaced by a service agent or competent person, such as a qualified electrician.
This appliance is supplied with a BS1363 3 pin plug fitted with a 13 Amp fuse. Should the fuse require replacing, it must be replaced with a fuse rated at 13 Amp and approved to BSI362. In the event of the mains plug being removed/ replaced for any reason, please note :
IMPORTANT: The wires in the mains lead are colored in accordance with the following code:
Refer to Section 3.0, Appliance Data for fuse specification. Excluding fuses, use only genuine manufacturers’ spare parts available from your supplier.
Brown – LiveBlue – Neutral
Green/ Yellow – Earth

As the colors of the wires in the mains lead of this appliance may not correspond with the color markings identifying the terminals in your plug, proceed as follows.
The blue wire must be connected to the terminal marked with an N or colored black. The brown wire must be connected to the terminal marked with an L or colored red. The green/yellow wire must be connected to the earth terminal which is marked with an E or with the earth symbol.
WARNING: Never connect live or neutral wires to the earth terminal of the plug.
NOTE: If a molded plug is fitted and has to be removed take great care in disposing of the plug and severed cable, it must be destroyed to prevent engaging into a socket.
APPLIANCE DIMENSIONS
GUARANTEE -TERMS, AND CONDITIONS.
Registration is not required.
Appliances purchased prior to 1st February 2009, and those specifically marked as ‘I year guarantee’ on this website, are guaranteed for one year from the date of purchase, provided that the following three terms and conditions are adhered to:
- For any claim to be made within I year from the date of purchase you will be required to provide and supply us with your original proof of purchase.
- Your gas fire must have been commissioned by a Gas Safe registered installer, evidence of which you must provide together with the registration number.
- AII appliances must have been installed and operated in accordance with the manufacturer’s instructions. 3 Year Guarantee Terms and Conditions
Please be advised that the 3-year guarantee only covers products purchased on or after 1st February 2009.
The 3-year guarantee is only applicable to purchases made through an authorized stockist/retailer. Please see our website for a list of authorized stockists. Any purchase(s) made through an unauthorized stockist(s) will be eligible for a statutory 1-year guarantee.
For all gas fires purchased the 3-year guarantee commences from the date of purchase, provided that the following 4 terms and conditions are adhered to:
- For any claim to be made within the 3 years from the date of purchase you will be required to provide and supply us with your original proof of purchase.
- Your gas fire must have been commissioned by a Gas Safe registered installer, evidence of which you must provide together with the registration number
- Your appliance must have been serviced annually by Gas Safe registered installer, evidence of which must be provided, such as the receipt.
- Purchase(s) must be made through an authorized stockist/retailer.
Please note all consumable items such as any ceramics including; coals, pebbles, the matrix, front strips, side cheeks, rear panels, and tapered rear panels are not covered by the 3-year guarantee.
During the guarantee period, any product or component which is proved to be faulty or defective in manufacture will be repaired or replaced free of material and labor charges, providing that we have authorized or carried out the repair or replacement.
We will not accept or reimburse the costs of any third party who undertakes any work carried on the product or its parts unless we have approved such work in advance of it being carried out.
The guarantee period will not be extended even if we repair or replace any product or part.
For all-electric fires purchased the 3-year guarantee commences from the date of purchase, providing that you can supply the proof of purchase. This does not cover consumable items such as pebbles, coals or light bulbs. Purchase(s) must be made through an authorized stockist.
Making a claim:
Making a claim is easy. If you wish to make a claim under our guarantee and all the terms and conditions for your product have been met then please submit the following information for the attention of the 3G Service Department to the address below. Alternatively, you can email or fax.
Focal Point Fires, 3G Service Department, Reid Street, Christchurch, Dorset, BH23 2BT.
Email: [email protected],
Fax. 01 202 588639.
Details required:
- Name, full address including postal code, and contact telephone number.
- A copy of your proof of purchase e.g. receipt or bank statement.
- Original installers Gas Safe registration number (gas fires only).
- Annual service receipt for every 12 months (gas fires only).
Please note that this does not affect your statutory rights.
This product complies with the conformity requirements of the applicable European Regulations or Directives.
This product complies with the conformity requirements of the CA applicable UK Regulations.
Waste electrical products should not be disposed of with household wane. Please recycle where facilities eat Check with your local authority or retailer for recycling advice. As our policy is one of continuous improvement and deep entire, therefore, hope that you Will understand we =St retain the right to amend deeds and/or specifications without prior notice.
©2021FocalPointFiresLtd.
F861429
OPERATING THE APPLIANCE






















