XAG 3WWDZ-15AH V40 Agricultural Drone

INSTALLATION
Connect ESC Signal Cable
Connect ESC Signal Cable inside the Arm to ESC hub.
Warning
NEVER swap the ESC Signal Cables between M1 and M2, M3 and M4, as the incorrect connection may cause flight accidents
Connect Liquid tube
Pull the Liquid Tube inside Arm No.3 & No.4 through the hole as shown below and connect it to the Peristaltic Pump.
Reassembly of Removed Parts
Fit the Spraying Hub Housing and Central Cabin Cover.
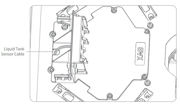
When fitting the Central Cabin Cover, put the Liquid Tank Sensor Cable correctly and connect it to the Spraying Hub. (Please refer to Page 4 for the exact place).
Unfold Propeller
After unfolding all the propellers, check whether the model of propeller, which could be seen between clamp and blade, corresponds to the Arm Number. CW Propellers correspond to Arm No.1 & No. 3, while CCW Propellers correspond to Arm No.2 & No.4.
Warning
NEVER swap the CW and CCW Propellers, as incorrect installation may cause flight accidents.
RealTerra Installation
Insert the RealTerra into the RealTerra Slot until hearing a clicking sound.
Smart Battery Preparation
About Indicator / Button
There are 1 power button and 6 indicators on the smart battery screen.
Switch On/Off Battery
Long-press twice to switch on/off the battery. After connecting the drone or the charger, long-press the battery button for at least 1 second until all the battery level indicators flash synchronously. Then long-press for another second until the battery beeps and the status indicator is ON/OFF, which means the battery switches on/off successfully.
Charge Battery
Please charge the battery with GC4000+ Auto SuperCharge Station or Intelligent SuperCharger. When reaching full charge, the battery will switch off and the Auto SuperCharge Station or the Intelligent SuperCharger will stop charging automatically.

Check Battery Level
When the battery is OFF, short-press the power button once to check the battery level. When the battery is ON, the battery level indicators will be on solid.
Check Battery Status
When the battery is on, check the battery status on the screen.
Battery Installation
Insert Battery into the Battery Compartment cautiously until hearing a clicking sound.
Warning
- Smart battery should be fully charged and used in strict accordance with instructions preceding UAV operation.
- Battery should be charged with the charging device specified by XAG. Otherwise, user shall assume all the economic and legal responsibilities arising therefrom.
- Intelligent SuperCharger is available to purchase separately. If necessary, please contact your local dealer.
Precautions for Battery Use
- NEVER insert/remove the battery when it is ON, or it may cause damage to the interface.
- It is a MUST to check and update to the latest battery firmware and software version preceding operation. Loss caused by failing to do so shall be borne by the user.
- An optimal ambient temperature range for the battery is from 10 ℃ to 45 ℃ . Chances are that fire, even explosions will happen at a temperature over 45℃ .
- NEVER connect the cathode and anode with a wire or other metals, as this will cause a short circuit.
- For heat dissipation, the battery should be immersed into pure water instead of corrosive liquids within the maximum and minimum level indicated for NO more than 60min, or else the battery will get damaged for having water leak inside.
- Please always keep the interface clean and clean the liquid or foreign matters off it promptly. Otherwise, it will cause poor contact, contributing to energy loss or failure to charge.
- Please handle the battery with care and do NOT take it apart, pierce the housing or apply pressure to it, including but not limited to behaviours such as sitting/standing on the battery, stacking heavy items on it and the like.
- Please regularly check the components like the battery interface and the plug before use. NEVER clean the charging device with alcohol or other combustible liquids. NEVER use the damaged charging device.
- Please place the battery and charging device on even ground with no combustible materials around while charging. NEVER leave the battery unattended while charging in case of an accident.
- For your safety, keep a minimum of 30cm distance between the battery and the charger, and between two batteries, lest too much heat lead to the charger or battery failure, even causing dreadful consequences like a fire.
- Please make sure the battery is fully charged prior to each operation. NEVER operate at full capacity preceding completion of charging.
- NEVER use batteries provided by manufacturers other than XAG, or to dismantle/replace the battery without permission. If necessary, please contact XAG or the authorized dealer. For the battery incidents, technical faults or other accidents caused by using a battery or accessories provided by non-XAG manufacturers, the user shall be held responsible for all the consequences arising therefrom.
- If one green light flashes at the end of the operation, please charge the battery to 40%~60% before storage. Failing to do so may damage the battery or impact battery life. Fully discharge and recharge the battery every 90 days to maintain battery health.
- The battery should be stored at 10~30℃ in a dry place instead of a wet or moist environment.
- Avoid moisture while charging the battery. Warranty does NOT cover any damage caused by problems not attributable to the product quality like damaged battery housing.
- The battery is waterproof and splashproof under controlled experiment. However, rather than being permanent effective, the protection may get weaker due to wear and tear.
- Please STOP using the batter swollen, leaking, deformed or with appearance damage instantly and contact XAG or the dealer without hesitation.
- The liquid inside the battery is highly corrosive. In case of contact with skin or eyes, flush with fresh water and seek medical attention instantly.
- To protect our environment, please properly dispose of the battery as required by the local laws and regulations.



















