271.89.020 Teleletto II Sofa Bed
Instruction Manual
Safety instructions
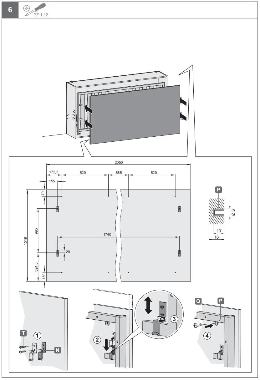
The assembly and installation of the folding bed and all subsequent adjustments must only be carried out by professional experts!
The bed must be assembled using the enclosed instructions, since this is the only way to ensure that it is assembled safely.
It must be checked that the floor, and particularly the wall, can withstand the loads and forces that occur.
A copy of these installation instructions must be permanently put on the bed in a clearly visible location in the vicinity of the fixing point.
The manufacturer of the entire bed must put manufacturer and product markings on the finished bed.
It must be ensured that all connecting elements are always tight and that no connecting elements have become loose.
The bed may not be used if any of its components are missing or broken.
271.89.020 Teleletto II Sofa Bed







© 2021 by Häfele SE & Co KG
Adolf-Häfele-Str. 1 · D-72202 Nagold · www.hafele.com


















