Photovoltaic Modules
Installation Manual
General Information
Thank you for choosing DMEGC Photovoltaic modules.
This guide contains information regarding the installation and safe handling of Hengdian Group DMEGC Magnetics Co., Ltd (hereafter is referred to as “DMEGC”) photovoltaic module (hereafter is referred to as “module”).
All instructions should be read and understood before attempting to install. If there are any questions, please contact our sales department for further explanation. The installer should conform to all the safety precautions in the guide when installing the module. Local codes should also be followed in such installation.
Before installing a solar photovoltaic system, the installer should become familiar with the mechanical and electrical requirement for such a system. Keep this guide in a safe place for further reference (care and maintenance) and in case of sale or disposal of the module.
Safety Precautions
DMEGC Solar Modules are designed to meet the requirements of IEC 61215 and IEC 61730, and its security level is in accordance with IEC 61140: Class II. It is suitable for unrestricted access areas, and can be used for systems with current greater than 50V or 240W that may be contacted by the public.
2.1 General Safety
- Installing solar photovoltaic systems requires specialized skills and knowledge. Installation must only be performed by authorized and trained personnel. Installers must assume all risks of injury that might occur during installation, including, but not limited to, the risk of electric shock.
- A single module generates a direct current that can cause personal injury in the presence of direct sunlight. Contact with direct current has high potential risk, please avoid contact with direct current under any circumstances.
- PV modules are recommended to be installed at altitudes of less than 2000m.
- Modules can be ground mounted, mounted on rooftops. The proper design of support structures lies within the responsibility of the system designers and installers.
- When installing the system, abide to all local, regional and national statutory regulations. Obtain a building permit if necessary.
- The electrical characteristics are within ±3 percent of the indicated values of Isc, Voc and Pmax under standard test conditions (standard test conditions: irradiance of 1000 W/m², AM 1.5 spectrum, and a cell temperature of 25 °C (77 °F).
- Only use equipment, connectors, wiring and support frames suitable for solar electric systems.
- Always use fall protection equipment when working from heights of 6 feet (183cm) or above. Follow Occupational Safety and Health Act (OSHA) or local governing safety regulations regarding Fall Protection.
- Do not sit, stand, step on, or walk on modules, including the frames. Except for natural rainfall or periodic module cleaning, please do not soak any part of the module in water or continuously impact the module with water.
2.2 Operating Safety
- Do not open the package of DMEGC Solar Modules during transportation and storing until they are ready to be installed.
- Store pallets in a ventilated, rain-proof and dry location until the Modules are ready to be unpacked.
- During the transportation, do not to apply direct pressure on the backset or glass.
- Inappropriate transport and installation may damage the module and void the warranty.
- Do not lift the module by holding the module’s junction box or electrical leads. Do not place any heavy or sharp objects on the module.
- Do not attempt to disassemble the modules, and do not remove any attached nameplates or components from the modules.
- Do not use mirrors, other magnifiers or artificially concentrated sunlight onto the modules.

- Do not apply paint or adhesive to the module top surface or backsheet.
- To avoid damage to the backsheet and cells, do not scratch, dent or hit the backsheet.
- Do not drill holes in the frame. This may compromise the frame strength, cause corrosion of the frame and void the warranty.
- Do not scratch the anodized coating of the frame (except for grounding connections at the grounding connection point on the back side of the module). It may cause corrosion of the frame or compromise the frame strength.
- A module with broken glass or torn backsheet cannot be repaired and must not be used since contact with any module surface or the frame can cause an electric shock.
- Work only under dry conditions, and use only dry tools. Do not handle modules under wet conditions unless wearing appropriate protective equipment.
- When storing uninstalled modules outdoors for any period of time, always cover the modules and ensure that the glass faces down on a soft flat surface to prevent water from collecting inside the module and causing damage to exposed connectors.
2.3 Installation Safety
- Never disconnect electrical connections or unplug connectors while the circuit is under load.
- Contact with electrically active parts of the modules, such as terminals, can result in burns, sparks and lethal shock whether or not the module is connected.
- Do not touch the PV module unnecessarily during installation. The glass surface and the frame may be hot; there is a risk of burns and electric shock.
- Do not work in the rain, snow or in windy conditions.
- Avoid exposing cables and connectors to direct sunlight and scratches or cuts in order to prevent insulation degradation.
- Keep children well away from the system while transporting and installing mechanical and electrical components.
- Completely cover the module with an opaque material during installation to prevent electricity from being generated.

- Do not wear metallic rings, watchbands, ear, nose, lip rings or other metallic devices while installing or troubleshooting photovoltaic systems.
- Use only insulated tools that are approved for working on electrical installations.
- Follow the safety regulations (e.g., safety rules for working on electrical power plant stations) of your regions and for all other system components, including wires and cables, connectors, charging regulators, inverters, storage batteries, rechargeable batteries, etc.
- Under normal conditions, a photovoltaic module is likely to experience conditions that produce more current and/or voltage than reported at standard test conditions. Accordingly, the values of Isc and Voc marked on this module should be multiplied by a factor of 1.25 when determining component voltage ratings, conductor current ratings, minimum factor of fuse sizes, and size of controls connected to the PV output.
- Only use same connectors to connect modules to form a string, or connect to another device. Removing the connectors will void the warranty.
- It is strictly forbidden to touch wet module unless wearing anti electric shock equipment meeting the requirements. When cleaning modules, it is necessary to operate according to the requirements of this manual. The connector shall not contact with the following chemicals: gasoline, white flower oil, activating oil, mold temperature oil, engine oil, grease, lubricating oil, antirust oil, stamping oil, butter, diesel oil, edible oil, acetone, alcohol, Feng you Jing, Tianna water, release agent, adhesive and potting adhesive that can produce oxime gas, TBP, cleaning agent, etc.
2.4 Fire Safety
- Consult your local authority for guidelines and requirements for building or structural fire safety.
- According to IEC 61730-2 standard, DMEGC modules have been rated Fire Class C. When installing on the roof, the roof must be covered with a layer of fireproof material not lower than this level, and sufficient ventilation between the back of the module and the installation surface must be ensured.
- Roof construction and installation may affect the fire safety of the building, improper installation may create hazards in the event of a fire.
- Use appropriate components such as fuses, circuit breakers and grounding connectors as requires by local authority.
- Do not use modules near equipment or in locations where flammable gases may be generated or collected.
Product Identification
Each module has two labels providing the following information.
- Nameplate: describes the product type; rated power, rated current, rated voltage, open circuit voltage, short circuit current, all as measured under standard test conditions; weight, dimensions, the maximum system voltage, etc.
- Barcode: each single module has a unique serial number. The serial number contains the model number, manufacturing time, and corresponding serial number of the module (except for customer designation).
Mechanical Installation
4.1 Selecting the Location
- Select a suitable location for the module installation, where they receive maximum sunlight throughout the year.
- In the northern hemisphere, the module is recommended to face south, while in the southern hemisphere, the module is recommended to face north.
- The module should not be shaded at any time of the day.
- The recommended ambient temperature should be within -20℃ to 40℃, the temperature limits are defined as the monthly average high and low of the installation site, the limit operating temperature should be -40℃to 85℃.
- DMEGC Solar Modules have passed the IEC61701 salt-mist, but galvanic corrosion can occur between the aluminum frame of the Modules and mounting or grounding hardware if such hardware is comprised of dissimilar metals. DMEGC recommends that when the module is installed in salt-damaged areas such as the sea, the module should be installed at a distance of more than 500m from the coastline. The offshore installation needs to be confirmed with DMEGC and installed after approval.
- Modules must not be installed or operated in areas where salt, hail, snow, sand, dust, air pollution, chemically active, acid rain, soot, etc., are excessive. Modules must be sited in locations where aggressive substances such as salt or salt-water, or any other type of corrosive agent, could affect the safety and/or performance of the modules.
- The module cannot be installed and used in severe hail, snow, sand, smoke, air pollution, soot and other environments; the module cannot be installed in strong corrosive substances such as salt, salt spray, salt water, active chemical vapor, acid rain, or there are any other areas that will corrode the module and affect the safety or performance of the module.
- Modules are not allowed to be placed where flammable gases are easily generated or concentrated.
4.2 Tilt Angle Selection
The tilt angle of the PV module is measured between the surface of the PV module and a horizontal ground surface. The PV module generates maximum output power when it faces the sun directly.
For detailed information on the best elevation tilt angle for the installation, refer to standard solar photovoltaic installation guides or a reputable solar installer or systems integrator.
DMEGC recommends that the inclination angle of the module is not less than 10 degrees when the module is installed, and the surface dust of the module is easily taken away by the rain when it rains, which reduces the frequency of module cleaning. Avoid water on the surface of the module and reduce the residue of dirt on the glass surface, thereby affecting the appearance and performance of the module.
4.3 Conventional requirements
- The module mounting structure must be made of durable, corrosion-resistant and UV-resistant material.
- Ensure that the module installation method and bracket system are strong enough to allow the module to withstand the predetermined load conditions. Please use a supporting structure approved by testing and certification.
- For ground mounting systems, the minimum distance DMEGC recommend from the ground to the bottom of the module is at least 24 inches (60cm).
- In regions with heavy snowfall in winter, select the height of the mounting system so that the lowest edge of the module is not covered by snow for any length of time. In addition, ensure that the lowest portion of the module is placed high enough so that it is not shaded by plants, trees or damaged by ground soil moved by or through the air.
- Modules must be securely attached to the mounting structure. For Clamping System installation methods, the recommended maximum compression for each clamp is 2900 PSI (20 Mpa) in order to avoid potential damages to module frames. Follow the instruction of the clamping system supplier.
Provide adequate ventilation under the modules in conformity to your local regulations. - Provide adequate ventilation under the modules in conformity to your local regulations. It is recommended that the minimum distance between the roof plane and the module is not less than 10 cm.
- Avoid the frame receiving the lateral tension and pressure, causing the flame off or crushing the glass.
- Before installing modules on a roof, always ensure the roof construction is suitable. In addition, any roof penetration required to mount the module must be properly sealed to prevent leaks.
- Observe and take into account the linear thermal expansion of the module frames (the recommended minimum distance between two modules is 1 cm).
- When installing the module on the column, choose the column and module installation structure that can withstand the expected local wind.
4.4 Installation methods
- Mounting with Bolts
Modules can be attached through the mounting holes on the back frame of the module, by fixing the module to the support rails with bolts. Ideally placed to optimize the load handling capability, to secure the modules to supporting structure.
To maximize mounting longevity, DMEGC strongly recommends the use of corrosion proof (stainless steel) attachment hardware, and take appropriate measures to avoid potential difference corrosion between the fasteners and the module frame. The torque during tightening is recommended to be maintained at 15-20 N·m, The method and the specifications of the fixing parts are shown in the figure below:
Bolt Flat Washer Material: stainless steel
size: M8*20mmMaterial: stainless steel
size: M8
thickness: ≥1.6mmSpring Washer Nut Material: stainless steel
size: M8
thickness: ≥2.0mmMaterial: stainless steel
size: M8 - Mounting with Clamps
When choosing this type of clamp-mounting method, use at least four clamps on each module, two clamps should be attached on each long sides of the module (for portrait orientation) or each short sides of the module (for landscape orientation). Depending on local wind and snow loads, additional clamps may be required to ensure that modules can bear the load. The minimum recommended length for each fixture shall be 50mm and the applied torque shall be determined according to the mechanical design standards of the bolts used by the customer, for example: M8 —- 18-24N.m.
The clamp must overlap the module frame by at least 7mm but no more than 12mm.Modules clamps should not come into contact with the front glass and must not deform the frame. Be sure to avoid shadowing effects from the module clamps. The mounting details are shown in the following figures.
4.5 Attachment Guidelines
The Standard/lower loading capacity applies to normal environment: the modules are tested under a maximum positive pressure of 2400 Pa, and negative pressure of 1600 Pa, the modules are designed to meet a maximum positive pressure of 1600Pa, and negative pressure of 1067 Pa, this design load was then tested with a safety factor of 1.5 times.
The high loading capacity applies to severe environment, like storm, big snow, etc. The modules are tested under a maximum positive pressure of 5400 Pa, and negative pressure of 2400 Pa, the modules are designed to meet a maximum positive pressure of 3600 Pa, and negative pressure of 1600 Pa, this design load was then tested with a safety factor of 1.5 times.
For bifacial double-glass modules, it is recommended that the beam is installed parallel to the long frame to reduce backside shielding.
M10-60H/66H/72H/78H & M10-B/G-60H/66H/72H/78H
| Installation method | ① 4 bolts at the long frame (60H inner holes) | 4 bolts at the long frame (66H/72H/78H outer holes) |
| Bolt installation | ![]() | ![]() |
| Loading capacity | Test load: positive 3600Pa, negative 2400Pa Design load: positive 2400Pa, negative 1600Pa | Test load: positive 3600Pa, negative 2400Pa Design load: positive 2400Pa, negative 1600Pa |
| Installation method | ② 4 clamps at the long frame | ③ 6 clamps at the long frame |
| Clamp installation | ![]() | ![]() |
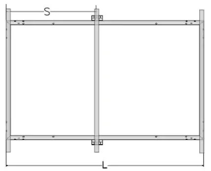
| Clamp position | (1/5L-50)<S<(1/5L+50) | (1/2L-80)<S<(1/2L-30) (1/6L-50)<H<(1/6L+50) |
| Loading capacity | Test load: positive 5400Pa, negative 2400Pa Design load: positive 3600Pa, negative 1600Pa | Test load: positive 5400Pa, negative3 600Pa Design load: positive 3600Pa, negative 2400Pa |
M10-54H & M10-B/G-54H
| Installation method | ① 4 bolts at the long frame | Installation method | ②4 clamps at the short frame |
| Bolt installation | ![]() | Clamp installation | ![]() |
| Clamp position | 0<H<1/4W | ||
| Loading capacity, | Test load: positive 5400Pa, negative 2400Pa Design load: positive 3600Pa, negative 1600Pa | Loading capacity | Test load: positive 2400Pa, negative 1600Pa Design load: positive 1600Pa, negative 1067Pa |
| Installation method | ③ 4 clamps at the long frame | ④ 6 clamps at the long frame | |
| Clamp installation | ![]() | ![]() | |
| Clamp position | (1/5L-50)<S<(1/5L+50) | (1/2L-80) <S<(1/2L-30) (1/6L-50) <H<(1/6L+50) | |
| Loading capacity | Test load: positive 5400Pa, negative 2400Pa Design load: positive 3600Pa, negative 1600Pa | Test load: positive 5400Pa, negative 3600Pa Design load: positive 3600Pa, negative 2400Pa | |
M2、P1、G1、M6-66H/72/72H & M2、P1、G1、M6-B/G-66H/72/72H
| Installation method | 1. 4 bolts at the long frame (inner holes) | 2. 8 bolts at the long frame |
| Bolt installation | ![]() | ![]() |
| Loading capacity | Test load: positive 3600Pa, negative 2400Pa Design load: positive 2400Pa, negative1600Pa | Test load: positive 5400Pa, negative 3600Pa Design load: positive 3600Pa, negative 2400Pa |
| Installation method | 3. 4 clamps at the long frame | 4. 6 clamps at the long frame |
| clamp installation | ![]() | ![]() |
| Clamp position | (1/4L-50)<S<(1/4L+50) | (1/2L-80)< S <(1/2L-30) (1/6L-50)< H <(1/6L+50) |
| Loading capacity | Test load: positive 5400Pa, negative 2400Pa Design load: positive 3600Pa, negative1600Pa | Test load: positive 5400Pa, negative 3600Pa Design load: positive 3600Pa, negative 2400Pa |
M2、P1、G1、M6—66H/72/72H & M2、P1、G1、M6-B/G-66H/72/72H
| Installation method | 5. frame 4 clamps at the short | 6. Short side in-rail installation +long side reinforce with clamps |
| Clamp installation | ![]() | ![]() |
| Clamp position | 0c4<1mw | (1/2L-80)< S <(1/2L-30) |
| Loading capacity | Test load: positive 1600Pa, negative 1600Pa Design load: positive 1067Pa, negative 1067Pa | Test load: positive 5400Pa, negative 2400Pa Design load: positive 3600Pa, negative 1600Pa |
| Installation method | 7. Long side in-mil installation | 8. Short side in-rail installation |
| In-rail installation | ![]() | ![]() |
| Loading capacity | Test load: positive 5400Pa, negative 2400Pa Design load: positive 3600Pa, negative 1600Pa | Test load: positive 1600Pa, negative 1600Pa Design load: positive 1067Pa, negative 1067Pa |
M2、P1、G1、M6—60/60H & M2、P1、G1、M6-B/G-60/60H
| Installation method | 1. 4 bolts at the long frame (inner holes) | 2. 8 bolts at the long frame |
| 13olt installation | ![]() | ![]() |
| Loading capacity | Test load: positive 5400Pa, negative 2400Pa Design load: positive 3600Pa, negative 1600Pa | Test load: positive 5400Pa, negative 3600Pa Design load: positive 3600Pa, negative 2400Pa |
| Installation method | 3. 4 clamps at the long frame | 4. 6 clamps at the long frame |
| Clamp installation | ![]() | ![]() |
| Clamp position | (1/4L-50)<S<(1/4L+50) | (1/2L-80) <S<(1/2L-30) (1/6L-50) <H<(1/6L-F50) |
| Loading capacity | Test load: positive 5400Pa, negative 2400Pa Design load: positive 3600Pa, negative 1600Pa | Test load: positive 5400Pa, negative 3600Pa Design load: positive 3600Pa, negative 2400Pa |
M2、P1、G1、M6—60/60H & M2、P1、G1、M6-B/G-60/60H
| Installation method | 5. 4 clamps at shorter frames | 6. Short side in-rail installation + long side reinforce with clamps |
| Clamp installation | ![]() | ![]() |
| Clamp position | 0<H<1/4W | (1/2L-80)<S<(1/2L-30) |
| Loading capacity | Test load: positive 2400Pa, negative 1600Pa Design load: positive 1600Pa, negative 1067Pa | Test load: positive 5400Pa, negative 2400Pa Design load: positive 3600Pa, negative 1600Pa |
| Installation method | 7. Long side in-rail installation | 8. Short side in-rail installation |
| In-rail installation | ![]() | ![]() |
| Loading capacity | Test load: positive 5400Pa, negative 2400Pa Design load: positive 3600Pa, negative 1600Pa | Test load: positive 2400Pa, negative 1600Pa Design load: positive 1600Pa, negative 1067Pa |
Electrical Installation
- All components to be used must match well, not only mechanically, but also will not lead to galvanic corrosion. Galvanic corrosion is not cover under the warranty.
- It is not recommended to use modules with different configurations (grounding, wiring) in the same system.
- Excessive cables must be organized or fixed in an adequate way, e.g. attached to the mounting structure by using non-metallic cable ties. Solar cables, connectors and junction boxes should not be exposed to water exposure, and snow, and rain or water submersion for a long period of time (IP65/67/68).
- For applications requiring high operating voltage several modules can be connected in series to form a string of modules; the system voltage is then equal to the sum of the voltage of each module.
- For applications requiring high operating currents several strings of modules can be connected in parallel; the system current is then equal to the sum of the current of each string of modules.
- The maximum system voltage is 600 volts, 1000 volts or 1500 volts depending on the product family DC according to standards.
- The maximum number of series connected modules depends on system design, the type of inverter used and environmental conditions.
- Based on the maximum series fuse rating of module and local electrical installation code, always make sure DMEGC PV modules are assembled with the appropriate string fuse for circuit protection.
There is no specific limitation on the number of modules that can be connected in parallel, the number of modules is determined by system design parameters such as current or power output. - When designing large modules arrays connected to a single inverter, always take into account the resulting isolation resistance (Riso), which decrease increasing the number of modules in the array. A too low Riso can results in inverter faults. Any choice of a different connector type other than specified may void the warranty of the module.
- To prevent the cables and the connectors from overheating, the cross section of the cables and the capacity of the connectors must be selected to suit the maximum system short circuit current. The recommended cable is PV wire with a cross section of at least 4mm.
- Caution: do not secure the cables too tight. Any cable damage caused by cable management system is not covered under DMEGC’s warranty.
- Please refer to local regulations to determine the system wires size, type and temperature.
- DMEGC modules are supplied with connectors used for system electrical connections. We strongly recommends using the genuine connector type specified by DMEGC’s product data sheet.
- To ensure reliable electric connection and to prevent possible intrusion of humidity, two connectors must be mated and locked together until a click can be heard.
- Long-term exposure to wet environments may cause connectors’ poor connectivity, resulting in current leakage and poor conductivity which voids the warranty. DMEGC recommends proper connector/cable/wire management to prevent moisture intrusion. Depending on the amount of humidity, DMEGC recommends periodic inspections of the installation system to maintain optimal module performance.
- The DC current generated by photovoltaic systems can be converted into AC and fed into a public Grid. As local utilities’ policies on connecting renewable energy systems to the Grids vary from region to region. Always seek the advice from a qualified system designer or integrator. Building permits, inspections and approvals by the local utility are generally required.
- DMEGC recommends lightning protection should installed following the local requirements and regulations.
Grounding
For grounding and bonding requirements, please refer to regional and national safety and electricity standards. If grounding is required, use a recommended connector type for the grounding wire.
DMEGC PV Modules use an anodic oxidized aluminum frame to resist corrosion, so the frame of Modules should be connected to the equipment grounding conductor to prevent thunder and electrical shock.
The frame rails have pre-drilled holes marked with a grounding sign, these holes should be used for grounding purposes and should not be used for mounting the Modules.
We recommends always refer to local state and national code requirements for PV module grounding.
DMEGC highly recommends negative grounding if it’s allowed by local authorities.
When attaching the frame grounding hardware and wire to the frame it must be placed corresponding to the ground symbol stamped location to ensure proper electrical connection.
DMEGC recommends one of the following parts for grounding:
6.1 Grounding by grounding bolt
Use M8 bolt and washer to bond the ground wire and aluminum frame through the grounding hole (as shown below left). The tightening torque is 3-7N.m. All nuts and washers should be made of stainless steel.
4-14 mm² (AWG 6-12) exposed copper wire is recommended as ground wire. 
6.2 Grounding by using grounding clamp
As shown in the figure on the right above, the grounding clip assembly consists of a slider, base, and self–captivating thread–cutting screw or 8–32 screw and hex nut. The grounding clip accepts solid uninsulated copper wire sizes 10 or 12 AWG.
6.3 Addition Third-party Grounding Devices
DMEGC PV Modules can be grounded using third party grounding devices so long as they are certified for grounding modules and the devices are installed according to the manufacturer’s specified instructions.
Maintenance
It is required to perform regular inspection and maintenance of the modules, especially during the warranty period. To ensure optimum module performance, DMEGC recommends the following maintenance measures: If necessary, clean the glass surface of the module with a soft sponge or a cloth dampened with water.
7.1 Visual Inspection
Inspect the modules visually to find if there are any visual defects, If there are, the following items should be evaluated:
- If modules are observed having slight cell color differences at different angles, this is a normal phenomenon of modules with anti-reflection coating technology.
- Whether the glass is broken.
- No sharp objects are in contact with the PV module surfaces.
- PV modules are not shaded by unwanted obstacles and; or foreign material.
- Corrosion along the cells’ bus-bar. This kind of corrosion is caused by the damage of the package material on the surface of the module during installation or transportation, resulting in water vapor penetrating into the inside of the module;
- Check whether the back sheet is burn out.
- Check if screws and mounting brackets are tight, adjust and tighten as necessary.
7.2 Cleaning
- Clean the glass surface of the module as necessary. Always use water and a soft sponge or cloth for cleaning.
- A mild, nonabrasive cleaning agent can be used to remove stubborn dirt.
- In order to reduce the potential for electrical and thermal shock, DMEGC recommends cleaning PV modules during early morning or late afternoon hours when solar radiation is low and the modules are cooler, especially in regions with hotter temperatures.
- Never attempt to clean a PV module with broken glass or other signs of exposed wiring, as this presents a shock hazard.
- Never use chemicals when cleaning modules as this may affect the module warranty and energy output.
7.3 Inspection of Connector and Cable
It’s recommended to implement the following preventive maintenance every 6 months:
- Check the sealing gels of the junction box for any damage.
- Check the tightness of the connector, whether the cable connector is firm, and whether the modules are well grounded.
If any problem arises, consult a professional solar service provider for suggestions. Caution: observe solar manufacturers’ maintenance instructions for all components used in the system, such as support frames, charging regulators, inverters, batteries etc.
Disclaimer of liability
Nothing in this manual constitute a warranty or guarantee from DMEGC, explicitly or implicitly. DMEGC is not responsible for any damage of any kind, including but not limited to any physical damage, injury or property loss resulting from or in connection with handling modules, system installation, or compliance or non-compliance with the instruction set forth in this manual.
DMEGC reserves the rights to modify this manual without notice in advance. It is recommended to visit our website regularly at www.dmegc.solar for the latest version of this installation manual. Failure of the customers to follow the requirements outlined in this installation manual will result in the invalidity of product’s limited warranty provided by DMEGC.
Appendix:
| Glass/Foil Modules | Double Glass Modules |
| DMXXXM10-54HSW/HBW/HBB | DMXXXM10-G/B54HSW/HBW/HBB/HBT |
| DMXXXM10-60HSW/HBW/HBB | DMXXXM10-G/B72HSW/HBW/HBB/HBT |
| DMXXXM10-66HSW/HBW/HBB | DMXXXM10-G/B78HSW/HBW/HBB/HBT |
| DMXXXM10-72HSW/HBW/HBB | DMXXXM6-G/B60HSW//HBW/HBB/HBT |
| DMXXXM10-78HSW/HBW | DMXXXM6-G/B72HSW/HBW/HBB/HBT |
| DMXXXM6-60HSW/HBW/HBB | DMXXXG1-G/B60HSW/HBW/HBB/HBT |
| DMXXXM6-72HSW/HBW/HBB | DMXXXG1-G/B72HSW/HBW/HBB/HBT |
| DMXXXG1-60HSW/HBW/HBB | DMXXXG1-G/B60SW/BW/BB/BT |
| DMXXXG1-72HSW/HBW/HBB | DMXXXG1-G/B72SW/BW/BB/BT |
| DMXXXG1-60SW/BW/BB | DMXXXM2-G/B60HSW/HBW/HBB/HBT |
| DMXXXG1-72SW/BW/BB | DMXXXM2-G/B72HSW/HBW/HBB/HBT |
| DMXXXM2-60HSW/HBW/HBB | DMXXXM2-G/B60SW/BW/BB/BT |
| DMXXXM2-72HSW/HBW/HBB | DMXXXM2-G/B72SW/BW/BB/BT |
| DMXXXM2-60SW/BW/BB | |
| DMXXXM2-72SW/BW/BB |
Hengdian Group DMEGC Magnetics Co., Ltd
Hengdian Industrial Area, Dongyang City, Zhejiang Province China
Tel: +86-579-86310330
E-mail: [email protected]
Ver: 202112














































