
steel Panel Radiator
V10222 5059340419039 BX220IM
5249BTU Double-Panel Double Convector Radiator 600 x 900mm White
IMPORTANT – These instructions are for your safety. Please read through them thoroughly prior to handling the product and retain them for future reference.
Parts
you will need
Product Description
Panel radiators comply with EN 442, and are manufactured under quality management system approved by EN ISO 9001 an environmental management system approved by ISO 14001 and an occupational health and safety management system approved by ISO 45001. Maximum operating pressure: 10 Bars. Maximum operating temperature: 120°C.
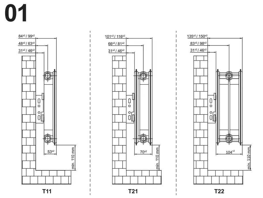
| TYPE 11 | |||
| L (mm) | X (mm) | No. of Brackets | W (mm) |
| 400 | 117 | 4 | N/A |
| 500 | 117 | 4 | |
| 600 | 117 | 4 | |
| 700 | 117 | 4 | |
| 800 | 117 | 4 | |
| 900 | 117 | 4 | |
| 1000 | 117 | 4 | |
| 1100 | 117 | 4 | |
| 1200 | 117 | 4 | |
| 1400 | 117 | 4 | |
| 1600 | 117 | 4 | |
| 1800 | 117 | 6 | 883.335 |
| Type 21/22 | |||
| L (mm) | X (mm) | No.of Brackets | W (mm) |
| 400 | 101 | 4 | N/A |
| 500 | 101 | 4 | |
| 600 | 101 | 4 | |
| 700 | 101 | 4 | |
| 800 | 101 | 4 | |
| 900 | 101 | 4 | |
| 1000 | 101 | 4 | |
| 1100 | 101 | 4 | |
| 1200 | 101 | 4 | |
| 1400 | 101 | 4 | |
| 1600 | 101 | 4 | |
| 1800 | 101 | 6 | 900 |
| 2000 | 101 | 6 | 1000 |
| Type 11/21/22 | ||
| FI (mm) | Y (mm) | Z (mm) |
| 300 | 120 | 85 |
| 400 | 120 | 185 |
| 500 | 120 | 285 |
| 600 | 120 | 385 |
| 700 | 120 | 485 |
Safety
Before you start
- Please check that all components are present and that you are ENTIRELY happy with the size, design and finish before starting installation.
- Blind plug, purge plug, and fastenings in the package; The package should be removed from the bottom of the radiator. Take care when removing this so as not to damage the paint on the radiator.
- If there are any missing or damaged parts, please contact the supplier immediately.
- The radiator should be installed using the brackets supplied.
- Fixings supplied are for use in solid wall connections, if connecting to hollow walls (e.g. plasterboard) where possible fix to internal timbers, or ensure appropriate fixings are used.
- When drilling or fixing into walls, floors or ceilings it is essential that you check for any pipes & wires before commencing.
- Plastic caps on each threaded connection of the radiator should be removed and disposed of before installation.
- Ensure that the radiator is positioned in order that it can be easily connected to the central heating system. Refer to the dimensioned sketches to drill your holes at the correct positions.
- Please note radiator valves are not supplied and must be installed. It is recommended that a thermostatic valve be installed to control the local temperature for your comfort and economy.
- Fitting reflective panels on the wall behind the radiator is a further option to improve efficiency.
Safety
- Never allow children or persons unable to operate the appliance safely, to use this appliance without supervision.
- Please dispose of plastic bags carefully and keep them away from children
- Note that the contents include small/sharp components that should be handled with care. Keep away from children.
- Lift the radiator using correct posture and by holding from both ends. Call for assistance if too heavy.
Warning
- Once fitted this radiator will require plumbing and commissioning into a central heating system. If unsure seek professional advice.
- Panel radiators should never be left without water. Dehydrated panel radiators are pierced due to the corrosion effect. In addition, changing the panel radiator water frequently and filling new oxygen-rich water causes the corrosion (rusting) to accelerate and thus the panel radiator to perforate prematurely.
- Panel radiators should not be used in outdoor areas. The ambient temperature where the panel radiator is located should not fall below 0°C. Freezing of the water in the installation damages both the panel radiator and the installation.
- This radiator is NOT recommended to be used in centralized national heating systems. If installed in such systems then your warranty will be reduced to a maximum of 2 years only, as the product could be adversely corroded.
- Read all instructions carefully and be sure they are fully understood before fitting the radiator.
- The surface of this product can reach very high temperatures and therefore would not be suitable for use in an environment where there might be risks. Persons with disabilities and young children should not be left unattended near the radiator.
- The radiator is not designed to take the excessive weight. Do not hang heavy objects or lean body weight against it.
- Never cover the top of your radiator. Covering the top of the radiator prevents air circulation and decreases heating efficiency. In addition, wet clothes cause corrosion in the radiators in the course of time.
Important
- Read and follow all safety rules and operating instructions before using this product.
- Even if the radiators are packaged, they should not be exposed to external environmental conditions (rain, snow, sun etc.). It should be stored in dry and closed storage conditions.
- The shrink-wrapped packaging on the panel radiator should not be removed until the radiator is ready to fit to the wall. Panel radiators on which plaster or paint has been poured cannot be cleaned and restored.
- Installation should be carried out by a qualified professional or other fully competent person and in accordance with the relevant British and European Standards (BS7593:2006 & EN14336:2004)
- This radiator is made from mild steel and is therefore susceptible to corrosion. Install only in systems where the water circuit has a chemical inhibitor added. After the radiator has been installed, apply the correct inhibitor into the system following the manufacturers. guidelines. Always maintain the correct level of water pressure in the system. Seek the advice of a competent plumber if unsure.
- This mild steel radiator is not suitable for ‘direct central heating systems’ (where the same hot water flowing through the radiators is used in the kitchen/bathroom taps). This is because no corrosion inhibitors or other chemicals can be added to this type of system.For such direct systems an aluminum or stainless steel radiator should be used. Seek the advice of a competent plumber if unsure.
- Ensure the central heating system is isolated before any work is carried out.
- Please ensure you use the correct tools and fittings and wear all necessary PPE.
Guarantee
We take special care to select high-quality materials and use manufacturing techniques that allow us to create products incorporating design and durability. This product has a manufacturer’s guarantee of 15 years against manufacturing defects, from the date of purchase (if bought in-store) or date of delivery (if bought online), at no additional cost for normal (non-professional or commercial) household use To make a claim under this guarantee, you must present your proof of purchase (such as a sales receipt, purchase invoice or other evidence admissible under applicable law), please keep your proof of purchase in a safe place. For this guarantee to apply, the product you purchased must be new, it will not apply to second-hand or display products. Unless stated otherwise by applicable law, any replacement product issued under this guarantee will only be guaranteed until expiry of the original period guarantee period.
This guarantee covers product failures and malfunctions provided the product was used for the purpose for which it is intended and subject to installation, cleaning, care and maintenance in accordance with the information contained in these terms and conditions, in the user manual and standard practice, provided that standard practice does not conflict with the user manual.
This guarantee does not cover defects and damage caused by normal wear and tear or damage that could be the result of improper use, faulty installation or assembly, neglect, accident, misuse, or modification of the product. Unless stated otherwise by applicable law, this guarantee will not cover, in any case, ancillary costs (shipping, movement, costs of uninstalling and reinstalling, labor etc), or direct and indirect damage.
If the product is defective, we will replace or refund, it within a reasonable time. Rights under this guarantee are enforceable in the country in which you purchased this product. Guarantee-related queries should be addressed to the store you purchased this product from.
The guarantee is in addition to and does not affect your statutory rights.
IMPORTANT – RETAIN THIS INFORMATION FOR FUTURE REFERENCE: READ CAREFULLY
Assembly

![]() | ![]() |
![]() | ![]() |
![]() | ![]() |
To put the radiator in use, open the radiator valve. Make sure that the central heating system is operating.
Check if the radiator gets warm. If not, take all the air out of the radiator until water comes out, by loosening the bleed valve with a bleed key or screwdriver. In case of a problem, get authorized service support.
Care and Maintenance
After use
Wipe the surface clean with a soft, damp cloth. Never use any solvents, scourers, abrasives, bleach, acids, strong detergents, aggressive chemical cleaners or solvent-type cleaning solutions on the product. When disposing of this radiator, it should be sent to a metal recycling centre and the rules of your locality be followed.
To prevent you from returning a product, missing or damaged parts may be available. Please check with the store if spare parts are available.
| 6059340419046 5059340419053 5059340419060 5059340419077 6059340419084 5059340419091 5059340419107 5059340419114 5059340419121 5050340419118 5059340419145 5059340419152 5059340419189 5059340419178 5059340419183 5059340419190 5059340419206 5059340419213 5059340419220 5059340419237 5059340419244 5059340419251 5059340419268 5059340419305 5059340419312 5059340419329 5059340419336 5059340419343 5059340419350 6059340419387 5059340419374 5059340419398 5059340419404 5059340419411 5059340419428 5050340419435 5059340419442 5059340419510 5059340419627 5059340419534 5059340419541 5059340419558 5059340419585 5059340419572 5059340419596 5059340419640 5059340419657 5059340419664 5059340419671 5059340419688 5059340419895 | 6059340419701 5059340419718 5059340419725 5059340419732 6059340419749 5059340419756 5059340419763 5059340419770 5059340419787 5059340419794 5059340419800 5059340419817 505934041E824 6059340419831 5059340419848 5059340419855 5059340419882 6059340419879 5059340419886 5059340419985 5059340419992 6059390420004 5059340420011 5059340420028 5059340420035 5059340420042 5059340420059 5059340420066 5059340420073 605914042009D 5059340420097 5059340420103 5059340420110 5059340420127 5059340420134 5059340420141 5059340420158 5059340420185 6059340420172 5059340420189 5059340420196 5059340420202 6059340420219 5059340420226 5059340420233 5059340420240 6059340420267 5059340020269 5059340420271 5059340420288 6059140420295 | 6069340420301 5059340420318 5059340420325 5069340420332 6069340420349 5059340420158 5059340420363 5059340420370 6059340420347 6069340420394 5059340420400 5059340420417 5069340420424 6064340420431 5059340420448 5059340420455 5069340420462 6069340420479 5059340420488 5059340420493 5069340420509 6069340420618 5059340420738 5059340420745 5069340420752 6069340420789 5059340420776 5059340420783 5059340420790 6064340420808 5059340420813 5059340420820 5059340420837 5069340420844 6059340420851 5059340420868 5059340420875 5059340420882 6069340420899 5059340420905 5059340420912 5069340420929 6069340420938 5059340420943 5059340420950 5069340420967 6069340420974 5059340420981 5059340420998 5059340421001 6069340421018 | 5059340421026 5059340421032 5059340421049 5059340421056 5059340421083 5059340421070 5059340421087 5059340421094 5059340421100 5059340421117 5059340421124 5059340421131 5059340421148 5059340421155 5059340421162 5059340421179 5059340421188 5069340421193 5059340421209 5059340421216 5059340421223 5069340421230 5059340421247 5059340421254 5059340421261 5059340421278 5059340421285 5059340421292 5059340421308 5059340421315 5059340421322 5059340421339 5059340421348 5059340421353 5069340421360 5059340421377 5059340421384 5059340421391 5069340421407 5059340421414 5059340421421 5059340421438 5069340421445 5059340421452 5059340421469 5059340421476 5059340421483 5059340421490 5059340421506 5059340421513 5059340421520 | 5059340421537 505934421544 5059340421551 5050340421568 6059340421575 505934421582 5059340421599 5059340421605 5059340421812 50593400215E29 5059340421636 5059340021643 5059340421850 5059340421667 5059340421674 5059340021681 5059340421698 6059340021704 5059340421711 5059340021728 50560340421735 5050340421742 5059340421759 5059340421766 5050340421773 5059340421780 5059340421797 5059340421803 5050340421810 5050340421827 505934421534 5059340421841 5059340421858 5059340421865 5059346421672 5059340421889 5059340021896 5059340421902 6059340421919 5059340421926 5059340021933 6056034421940 6059340421967 505934049039 |
Manufacturer • Fabricant
UK Manufacturer: Kingfisher International Products Limited, 3 Sheldon Square, London, W2 6PX United Kingdom
EU Manufacturer: Kingfisher International Products B.V. Rapenburgerstraat 175E 1011 VM Amsterdam
The Netherlands www.kingfisher.com/products
www.diy.com
www.screwfix.com
www.screwfix.ie
To view instruction manuals online, visit www.kingflsher.com/products

























