Flomasta 2352BTU Double-Panel Plus Single Convector Radiator Instruction Manual
IMPORTANT – These instructions are for your safety. Please read through them thoroughly prior to handling the product and retain them for future reference.
Parts

You will need

Product description
Panel radiators comply with EN 442, and are manufactured under quality management system approved by EN ISO 9001 an environmental management system approved by EN ISO 14001 and an occupational health and safety management system approved by ISO 45001.
Maximum operating pressure: 10 Bars. Maximum operating temperature: 120°C.
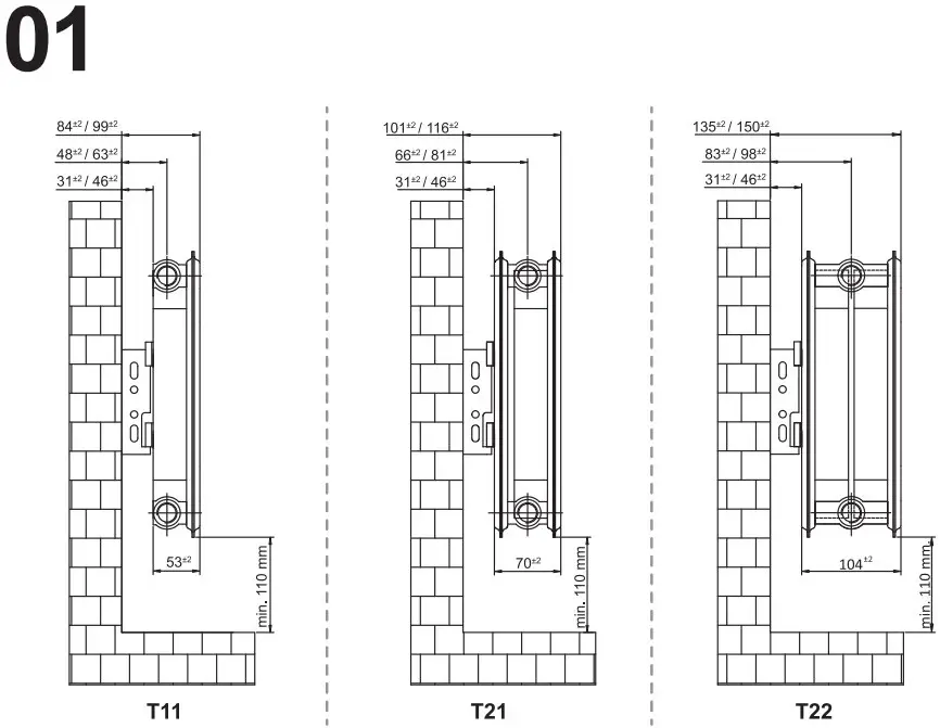
| TYPE 11 | |||
| L (mm) | (mm) X (mm) | No. of Brackets | W (mm) |
| 400 | 117 | 4 | N/A |
| 500 | 117 | 4 | |
| 600 | 117 | 4 | |
| 700 | 117 | 4 | |
| 800 | 117 | 4 | |
| 900 | 117 | 4 | |
| 1000 | 117 | 4 | |
| 1100 | 117 | 4 | |
| 1200 | 117 | 4 | |
| 1400 | 117 | 4 | |
| 1600 | 117 | 4 | |
| 1800 | 117 | 6 | 883.335 |
| Type 21/22 | |||
| L (mm) | X (mm) | No. of Brackets | W (mm) |
| 400 | 101 | 4 | N/A |
| 500 | 101 | 4 | |
| 600 | 101 | 4 | |
| 700 | 101 | 4 | |
| 800 | 101 | 4 | |
| 900 | 101 | 4 | |
| 1000 | 101 | 4 | |
| 1100 | 101 | 4 | |
| 1200 | 101 | 4 | |
| 1400 | 101 | 4 | |
| 1600 | 101 | 4 | |
| 1800 | 101 | 6 | 900 |
| 2000 | 101 | 6 | 1000 |
| Type 11/21/22 | ||
| H (mm) | Y (mm) | Z (mm) |
| 300 | 120 | 85 |
| 400 | 120 | 185 |
| 500 | 120 | 285 |
| 600 | 120 | 385 |
| 700 | 120 | 485 |
Before you start
- Please check that all components are present and that you are ENTIRELY happy with the size, design and finish before starting installation.
- Blind plug, purge plug and fastenings in the package; The package should be removed from the bottom of the radiator. Take care when removing this so as not to damage the paint on the radiator.
- If there are any missing or damaged parts, please contact the supplier immediately.
- Radiator should be installed using brackets supplied.
- Fixings supplied are for use in solid wall connections, if connecting to hollow walls (e.g. plasterboard) where possible fix to internal timbers, or ensure appropriate fixings are used.
- When drilling or fixing into walls, floors or ceilings it is essential that you check for any pipes & wires before commencing.
- Plastic caps on each threaded connection of the radiator should be removed and disposed of before installation.
- Ensure that the radiator is positioned in order that it can be easily connected to the central heating system. Refer to the dimensioned sketches to drill your holes at the correct positions.
- Please note radiator valves are not supplied and must be installed. It is recommended that a thermostatic valve be installed to control the local temperature for your comfort and economy.
- Fitting reflective panels on the wall behind the radiator is a further option to improve efficiency.
Safety
- Never allow children or persons unable to operate the appliance safely, to use this appliance without supervision.
- Please dispose of plastic bags carefully and keep them away from children
- Note that the contents include small/sharp components that should be handled with care. Keep away from children.
- Lift the radiator using correct posture and by holding from both ends. Call for assistance if too heavy.
Warning
- Once fitted this radiator will require plumbing and commissioning into a central heating system. If unsure seek professional advice. Panel radiators should never be left without water. Dehydrated panel radiators are pierced due to corrosion effect. In addition, changing the panel radiator water frequently and filling new oxygen rich water causes the corrosion (rusting) to accelerate and thus the panel radiator to perforate prematurely.
- Panel radiators should not be used in outdoor areas. The ambient temperature where the panel radiator is located should not fall below 0°C. Freezing of the water in the installation damages both the panel radiator and the installation.
- This radiator is NOT recommend to be used in centralised national heating systems. If installed in such systems then your warranty will be reduced to a maximum of 2 years only, as the product could be adversely corroded.
- Read all instructions carefully and be sure they are fully understood before fitting the radiator.
- The surface of this product can reach very high temperatures and therefore would not be suitable for use in an environment where there might be risks. Persons with disabilities and young children should not be left unattended near the radiator.
- The radiator is not designed to take excessive weight. Do not hang heavy object or lean body weight against it.
- Never cover the top of your radiator. Covering the top of the radiator prevents air circulation and decreases heating efficiency. In addition, wet clothes cause corrosion in the radiators in the course of time.
Important
- Read and follow all safety rules and operating instructions before using this
- Even if the radiators are packaged, they should not be exposed to external environment conditions (rain, snow, sun etc.). It should be stored in dry and closed storage conditions.
- The shrink-wrapped packaging on the panel radiator should not be removed until the radiator is ready to fit to the wall. Panel radiators on which plaster or paint has been poured cannot be cleaned and restored.
- Installation should be carried out by a qualified professional or other fully competent person and in accordance with the relevant British and European Standards (BS7593:2006 & EN14336:2004)
- This radiator is made from mild steel and is therefore susceptible to corrosion. Install only in systems where the water circuit has a chemical inhibitor added. After the radiator has been installed, apply the correct inhibitor into the system following the manufacturers guidelines. Always maintain the correct level of water pressure in the system. Seek the advice of a competent plumber if unsure.
- This mild steel radiator is not suitable for ‘direct central heating systems’ (where the same hot water flowing through the radiators is used in the kitchen/bathroom taps). This is because no corrosion inhibitors or other chemicals can be added to this type of system.For such direct systems an aluminium or stainless steel radiator should be used. Seek the advice of a competent plumber if unsure.
- Ensure the central heating system is isolated before any work is carried out.
- Please ensure you use the correct tools and fittings and wear all necessary PPE.
Assembly







To put the radiator in use, open the radiator valve. Make sure that the central heating system is operating.
Check if the radiator gets warm. If not, take all the air out of the radiator until water comes out, by loosening the bleed valve with a bleed key or screw driver. In case of a problem, get authorized service support.
Care and Maintenance
After use
Wipe the surface clean with a soft, damp cloth. Never use any solvents, scourers, abrasives, bleach, acids, strong detergents, aggressive chemical cleaners or solvent type cleaning solutions on the product. When disposing this radiator, it should be sent to a metal recycle centre and the rules of your locality be followed.
To prevent you from returning a product, missing or damaged parts may be available. Please check with the store if spare parts are available.
Guarantee
We take special care to select high quality materials and use manufacturing techniques that allow us to create products incorporating design and durability. This product has a manufacturer’s guarantee of 15 years against manufacturing defects, from the date of purchase (if bought in store) or date of delivery (if bought online), at no additional cost for normal (non-professional or commercial) household use
To make a claim under this guarantee, you must present your proof of purchase (such as a sales receipt, purchase invoice or other evidence admissible under applicable law), please keep your proof of purchase in a safe place. For this guarantee to apply, the product you purchased must be new, it will not apply to second hand or display products. Unless stated otherwise by applicable law, any replacement product issued under this guarantee will only be guaranteed until expiry of the original period guarantee period.
This guarantee covers product failures and malfunctions provided the product was used for the purpose for which it is intended and subject to installation, cleaning, care and maintenance in accordance with the information contained in these terms and conditions, in the user manual and standard practice, provided that standard practice does not conflict with the user manual.
This guarantee does not cover defects and damage caused by normal wear and tear or damage that could be the result of improper use, faulty installation or assembly, neglect, accident, misuse, or modification of the product. Unless stated otherwise by applicable law, this guarantee will not cover, in any case, ancillary costs (shipping, movement, costs of uninstalling and reinstalling, labour etc), or direct and indirect damage.
If the product is defective, we will replace or refund, within a reasonable time.
Rights under this guarantee are enforceable in the country in which you purchased this product. Guarantee related queries should be addressed to the store you purchased this product from.
The guarantee is in addition to and does not affect your statutory rights.
IMPORTANT – RETAIN THIS INFORMATION FOR FUTURE REFERENCE: READ CAREFULLY
Manufacturer
Fabricant UK Manufacturer:
Kingfisher International Products Limited, 3 Sheldon Square, London, W2 6PX United Kingdom
EU Manufacturer:
Kingfisher International Products B.V. Rapenburgerstraat 175E
1011 VM Amsterdam The Netherlands
www.kingfisher.com/products www.diy.com
www.screwfix.com
www.screwfix.ie
To view instruction manuals online,
visit www.kingfisher.com/products



















