

OCULAR IQ
WALLBOX
INSTALLATION GUIDE
IOCAH10-7S/7T & IOCAH10-22S/22T
OCULAR CHARGING AUSTRALIA
Email: [email protected]
Web: www.ocularcharging.com.au
OCULAR IQ WALLBOX ![]()
IMPORTANT !
READ THIS ENTIRE DOCUMENT BEFORE INSTALLING OR USING THE CHARGER. FAILURE TO DO SO OR TO FOLLOW ANY OF THE INSTRUCTIONS AND WARNINGS IN THIS DOCUMENT CAN RESULT IN FIRE, ELECTRICAL SHOCK, SERIOUS INJURY OR DEATH.
THE CHARGER MUST BE INSTALLED BY A QUALIFIED ELECTRICIAN.
THE ENTIRE INSTALLATION MUST COMPLY WITH THE LATES AS 3000 STANDARDS
V 1.0
2022 . 12. 9
For information on how to charge your electric vehicle, refer to the documentation provided with your vehicle.
SPECIFICATIONS
All specifications and descriptions contained in this document are verified to be accurate at the time of printing. However, because continuous improvement is a goal at Ocular Charging, we reserve the right to make product modifications at any time.
| Model | IOCAH10-7S / 7T | IOCAH10-22S / 22T |
| Voltage and Wiring | 230V AC single-phase: LIVE, NEUTRAL ,and EARTH. | 400VAC three-phase:L1,L2,L3,NEUTRAL,and EARTH. |
| Current and Power | Maximum 32A and 7kW | Maximum 32A and 22kW |
| Frequency | 50-60 Hz | |
| Internal RCD | AC 30mA, DC 6mA | |
| Data Protocol | OCPP 1.6J | |
| Charging Connector | SAE J1772, IEC62196 Type-2 | |
| Buttons | 1 x Physical Button | |
| RFID | ISO 14443 A/B | |
| Display | 2.8’’ LCD | |
| Network Connectivity | Ethernet, WLAN | |
| Working Temperature | -30°C to 50°C | |
| Storage Temperature | -40°C to 70°C | |
| Working Humidity | 5% – 95% without condensation | |
| Enclosure Dimensions | 380 x 288 x 141 mm | |
| Shipping Dimensions | 495 x 375 x 330 mm | |
| Shipping Weight | 6.7Kg | 7.7Kg |
| IP Rating | IP54 | |
| Certifications | EN IEC 61851-1, EN IEC 61851-21-2, EN 61008-1, IEC 62955 | |
SELF-MONITORING AND RECOVERY
The charger will automatically resume charging after a minor fault such as OVP, UVP, OTP or OCP, with no user intervention required.
OCPP 1.6J FULL PROFILES & SMART CHARGING SUPPORT
The charger supports OCPP 1.6J including the latest smart charging profile to balance the load of charging stations with limited power supply.
PRODUCT OVERVIEW

No. | Item |
1 | LED indicator |
2 | 2.8’’ LCD screen |
3 | Status indicator, Fault, Online, Charging |
4 | RFID card reader |
5 | Physical button |
6 | Type-2 charging socket |
SAVE THESE IMPORTANT SAFETY INSTRUCTIONS
This document contains important instructions and warnings that must be followed when installing and maintaining the workplace pedestal charger
WARNINGS: ![]()
Do not install or use the charger near flammable, explosive, harsh, or combustible materials, chemicals, or vapors.
Turn off input power at the circuit breaker before installing or maintaining.
Do not use or stop using the charger if it is defective, appears cracked, frayed, broken or otherwise damaged, or fails to operate.
Do not attempt to open, disassemble, repair, tamper with, or modify the charger. The charger is not user serviceable. Contact iocharger or authorized service provider for any repairs.
Do not touch the charger sockets with sharp metallic objects, such as wire, tools or needles.
Do not put fingers into the charger sockets.
Do not use this charger if the EV charging cable is frayed, has broken insulation, or displays any other indication of damage.
Do not use this charger if the enclosure or the EV charging connector is broken, cracked, open, or shows any other indication of damage.
Ferrules must be used to ensure warranty is valid
![]()
CAUTIONS: ![]()
The charger should be installed only by a qualified approved technician.
Make sure that the materials used and the installation procedures follow local building codes and safety standards.
Incorrect installation and testing of the charger could potentially damage either the vehicle’s Battery and/or the charger itself. Any resulting damage is excluded from the warranty for both the vehicle and the charger.
Do not operate the charger in temperatures outside its operating range of -30°C to +50 °C.
Ensure that the EV charging cable is positioned properly to the charging sockets.
Do not use cleaning solvents to clean any of the charger’s components.

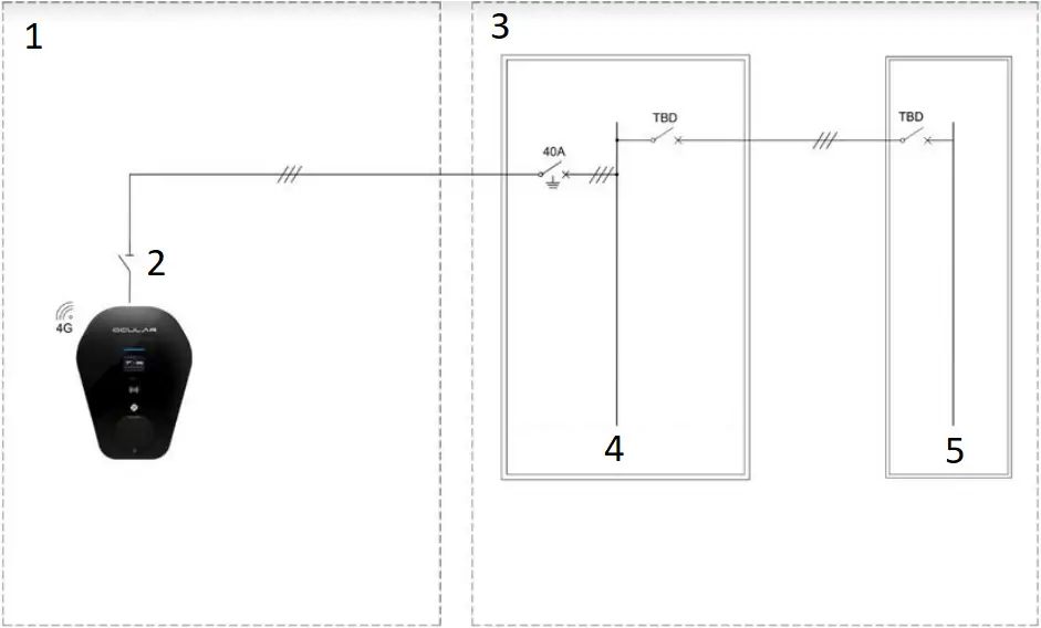
- EV parking space
- Optional Isolator
- Electrical Room
- EV Distribution Board
- MSB
Regarding the installation of the Ocular IQ Wallbox, each charger will need a power connection and additional internet connection to allow smart charging with Energy Tracking , Smart Control and Load Management.
- Power connection
- Internet connection (required for smart functions)
Regarding the power connection of the chargers, each charger will have its own designated circuit from the distribution board as per required in Appendix P, AS 3000:2018 Australia Standard for EV charging stations. We recommend 40A type A RCBO for the IQ Wallbox to avoid nuisance tripping
Regarding the Internet connection, we recommend running an Ethernet cable from the communication infrastructure comms cabinet to the charger for internet connection.
NOTES BEFORE INSTALLATION
The charger should be protected by an external Residual Current Device (RCD) to be installed in the upstream circuit which complies with the following:
- Rated residual operating current not exceeding 30 mA
- Type-A
TOOLS REQUIRED
- Philips #2 screwdriver
- Electric drill
OVERVIEW OF STEPS
TURN OFF THE POWER SUPPLY. Then follow these steps to install the Charger:
- Check box contents
- Wall mounting & wiring
- Install the charger
- Internet connection
- Verify the installation
- Web configuration
STEP ONE – CHECK BOX CONTENTS
If any of these components are damaged or missing, contact Ocular Charging.

EV Charger with backplate

User Manual x 1

Ferrule crimps x 4 Ferrule crimps x 3 Expansion screws x 3
Ferrule crimps must be used to ensure warranty is valid
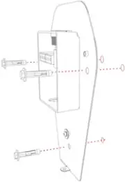
STEP TWO – WALL MOUNTING & WIRING
1. Remove the backplate from the charger and mount the backplate to the wall

2. Connect the cable through the bottom of the junction box ensure conduit is connected to the bottom of the power box

- conduit
3. Electrical Connection
In Australia only the TN network is used, as shown on the label on the back plate.

Ferrule crimps must be used to ensure warranty is valid
STEP THREE – INSTALL THE CHARGER
1. Install the charger to the backplate

2. Fix the charger and backplate with screw

- Screw
- Button
STEP FOUR – INTERNET CONNECTION
Ethernet – Commercial, Apartment or Home installations
Please connect the ethernet cable to the WAN port this should connect automatically to the internet if there’s no IT restrictions,
( if static IP address is required please refer to the Ocular Configuration manual)
(See Ocular or local supplier for manual)

Wi-Fi
(Not recommend in commercial installations or apartments.) Please note: unstable/weak WI-FI connection may cause undesired operational issues. Please call installer if Wi-fi signal is insufficient.
Wi-Fi Connection Guide-
Do not change settings other than outlined below as this may affect operations.
Step 1: Find the chargers’ local hotspot
This hot spot will have the following SSID: IOC – 2.4GHz – ******
The password for this Hotspot is: IOC12345
Step 2: Navigate to the web-interface of the Ocular Charger
After being connected to the Hotspot, open Microsoft Edge or Google Chrome and navigate to: 192.168.10.1:8900
The web interface will ask for Username and Password, the information is:
Username : install
Password : installer123
Step 3: Navigate to the Network and set up WIFI configuration
Ocular charger support connection via WiFi. Simply press the “Scan” button to start scanning for available WiFi network

After this, press the down arrow in the drop list to see all the available WiFi networks

Choose the Wi-Fi SSID that you prefer, and then input the Wi-Fi Password

If Static IP address is required, simply disable DHCP under WiFi section and put in the Static IP Address for the device

Step 4: Submit and reboot the charger to apply for changes
STEP FIVE – VERIFY THE INSTALLATION
1 Verify the power cables are wired properly
2 Close the upstream RCD to power on the charger unit, and you should see the LED lights sequentially illuminate blue.
3 If the LED red light illuminates or flashes, refer to the Troubleshooting table on page 13.
4 Check on the screen display whether internet is available and back office is connected, refer to page 11-12.
5 Test the live charging process with simulator or electric vehicle if the installation is completely verified.

LCD SCREEN DISPLAY DETAILS

Welcome Screen Scan the QR code or swipe the RFID card to start charging

Connect the charging plug Charging in process

Suspended by EV Suspended by EVSE

Remove the charging plug Automatic upgrade mode activated

Software downloading and upgrading automatically Network upgrade mode

Micro SD card upgrade mode Software update error

Factory Reset Invalid Authorisation

Service not available RFID Activated

Reserved Mode Explanation of ICONS
TROUBLESHOOTING
Situations | Actions | |
| Status indicator is not blue after the charger is powered on | 1 | Make sure the AC power input is connected correctly. |
2 | Turn OFF the charger and then back ON using the switch. | |
3 | If the problem persists, contact your installer for Technical Support. | |
| Status indicator does not flash blue when the charger is connected to the EV | 1 | Unplug the charging plug and reconnect it fully to the receptacle on the EV. |
2 | Inspect the cable and plug for damage. | |
3 | Inspect the EV and its receptacle for damage. | |
4 | If the situation persists, contact your installer for Technical Support. | |
| Status indicator flashes red while charging | 1 | There is a temporary error. |
2 | Wait until the temporary error is resolved and the charger returns to normal condition. It usually takes less than 10 seconds. | |
3 | If the status indicator doesn’t return to blue, turn OFF the charger and then back ON. | |
4 | If the situation persists, contact Ocular Charging for Technical Support. | |
| Status indicator is solid red | 1 | There is a critical error. |
2 | Unplug the charging plug from the EV immediately. | |
3 | Turn OFF the charger and then back ON. | |
4 | If the situation persists, contact your installer for Technical Support. | |
MAINTENANCE AND REPAIR
Regularly inspect the Charger components for damage. If damage is found, contact Ocular Charging
The Electric Vehicle Charger contains no user-serviceable components. If the unit is not operating correctly, contact your installer. Wipe the outside of the Charger regularly with a clean damp cloth to remove any accumulation of dust and dirt.

OCULAR CHARGING AUSTRALIA
Email: [email protected]
Web: www.ocularcharging.com.au

















