WCM
INSTALLATION INSTRUCTIONS
PRODUCT SAFETY
When using electrical equipment, basic safety precautions should always be followed, including the following:
READ THESE INSTRUCTIONS BEFORE USING THIS PRODUCT.
Do not mount near gas or electric heaters.
Equipment should be mounted in locations and at heights where it will not readily be subjected to tampering by unauthorized personnel.
The use of accessory equipment is not recommended by Encelium as it may cause an unsafe condition.
Do not use this equipment for other than the intended use.
SAVE THESE INSTRUCTIONS.
GETTING STARTED
Overview
The Wireless Control Module (WCM) allows luminaires and occupancy sensors to communicate via a mesh network based on Zigbee® standards. Individually addressable, the WCM enables each ballast or LED driver to be independently controlled and configured.
The WCM is available in two models:
- Indoor
- Damp Rated
WIRELESS SYSTEM OVERVIEW
This illustration shows how each component is easily integrated into the Encelium X Lighting Control System.

INSTALLATION
In a typical installation, the WCM connects to electronic dimming, non-dimming, HID, etc., ballasts or LED drivers to make each individual device controllable by the Encelium X or Encelium Edge Lighting Control System.
Notes: The WCM is to be installed in dry, indoor locations ONLY. For damp installations, ensure to use the appropriately rated version of the WCM Module (see Models section of this manual). Damp locations are defined as interior locations subject to moderate degrees of moisture, such as some basements, some barns, some cold-storage warehouses, and the like, and partially protected locations under canopies, marquees, roofed open porches, and the like.
MOUNTING OPTIONS
- Option 1 —Luminaire Mount
The mechanical construction allows for simple installation of the module in an available Pg-7 (0.5 inch) trade-size knockout on top or side of a luminaire.
- Option 2—Junction Box Mount
For some installations, a junction box may be required. It is recommended to securely mount the WCM to the junction box using an available Pg-7 (0.5 inch) trade-size knockout and retainer nut.

ELECTRICAL CONNECTIONS
- Luminaire Wiring
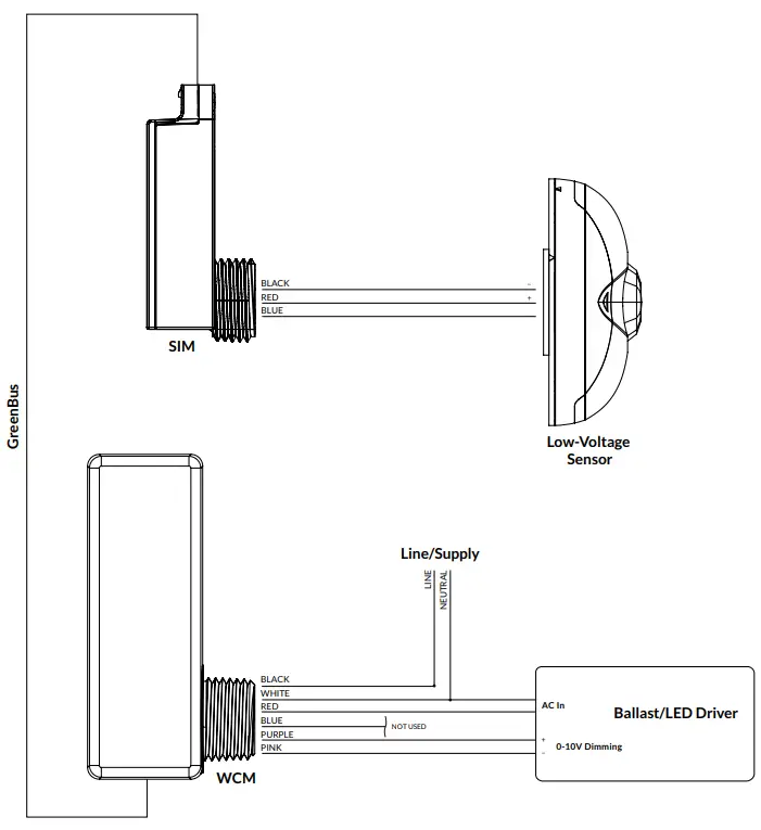
GreenBus communication wiring is still accessible from the outside of the luminaire, while all necessary wiring to the electronic dimming ballast is available on the inside. The WCM dimming interface (purple and pink wires) is a galvanically isolated 0-10V circuit such that it may be wired as NEC Class 1 or 2.
The module has been tested in accordance with UL2043 and is suitable to be used in plenum or “plenum rated” areas. All wiring is rated 600V, 105ºC (221ºF) for use in luminaires. The black and red wires connect to the internal relay and allow the module to interrupt power to the load for complete shutoff. Refer to local electrical code, etc.
To control multiple ballasts, parallel all ballast input wires (line, neutral, and control wires purple and pink). It is recommended to observe the maximum ratings of the WCM to ensure maximum ratings are not exceeded.
Recommended branch circuit, 120-347V, 20A maximum. Recommended dimming signal capacity, 0-10V, 30mA maximum (sinking).
Due to the internal relay, the power feed to the luminaire may be live even if the lights are off. Turn off power at circuit breaker or fuse before installing or servicing module. Observe lockout procedures.
GreenBus uses proprietary connectors and jacks for ease of installation only. GreenBus is a proprietary standard. Connect to Encelium X Lighting Control System only. Do not connect to other circuits. - Non-Dimmable Luminaire Wiring
Connect line voltage AC power to WCM and ballasts.
- Dimmable Luminaire Wiring
Connect line voltage AC power to WCM and ballasts. Dimming wires (Purple and Pink) from WCM can be run either as Class 1 or Class 2 (consult applicable local electrical and building codes).
- WCM to LCM Wiring

- WCM to SIM Wiring

Note: As the Sensor Interface Module (SIM) is not supported by the Encelium Edge System, this is only available with the Encelium X Lighting Control System. - WCM Emergency Lighting Wiring

- WCM to LCM Emergency Lighting Wiring

Note: Please refer to LCM wiring and installation manual (included with applicable product) for connection information. As the LCM is not supported by the Encelium Edge System, this is only available with the Encelium X Networked System. - Class 1 and Class 2 Wiring
The WCM may be wired as a Class 1 or a Class 2 device on the blue, violet, and pink wires. If these wires are connected to a Class 1 signal, ensure to install the provided cap over the GreenBus connector. To remove the GreenBus cap, insert a flat screwdriver beneath the pry portion of the cap and pry outward until the cap slides out.
Failure to install black cap for Class 1 wiring schemes may result in exposed hazardous voltages at the GreenBus adapter. - GreenBus
The GreenBus wiring originates at the WCM and supports a single GreenBus device to be connected per WCM. The GreenBus wires must be used with proprietary connectors supplied. Insert the connectors to the WCM GB ports.
GreenBus must be laid out as per supplied system layout drawing. If changes are required, determine an optimum wiring path utilizing the supplied cables, based on the position of the devices
To remove the wires, use a flat head screwdriver to release the wires from the terminal blocks.
HARDWARE BARCODE LOGBOOK
For Encelium Edge installations, remove the barcode sticker from the transparent bag that is supplied in the product packaging and place the sticker in the supplied handbook.

EMERGENCY LIGHTING
Central Power Sense, Stand-Alone WCM
Mains Connection
- WCM is connected to a branch circuit that is connected to the backup power circuit.
- The Encelium X Wireless Manager or the Encelium Edge Controller is NOT connected to emergency backup power.
Condition Prior to Emergency
- Luminaire is functioning normally.
Emergency Condition
- WCM loses normal power when a power outage occurs.
- Emergency/backup power system is initiated via central sense or switchgear.
Emergency Behavior
- WCM regains power feed when backup power comes on. It releases the dimming control and turns on the internal relay to pass back-up power to the emergency luminaire.
Note: The WCM will begin dimming again when the Wireless Manager or Encelium Edge Controller comes back online.
Local Power Sense, WCM with LCM
Mains Connection
- WCM is NOT connected to an emergency backup power branch circuit. The WCM detects power loss in this configuration (“local sense”).
- The Encelium X Wireless Manager or the Encelium Edge Controller is NOT connected to emergency backup power.
- Luminaire Control Module (LCM) is connected to a branch circuit that is connected to backup power.
Condition Prior to Emergency
- Luminaire is dim (or off).
Emergency Condition
- WCM and GreenBus Luminaire Control Module (UL924 recognized) loses power when a power outage occurs.
Emergency Behavior
- GreenBus Luminaire Control Module regains power feed when backup power comes on.
- WCM does NOT regain power feed because it is not connected to an emergency backup power branch circuit.
- The GreenBus Communication Bus is released allowing the GreenBus Luminaire Control Module to release dimming control and turn on the internal relay to pass backup power to the emergency luminaire.
Note: The WCM and GreenBus Luminaire Control Module will begin dimming again when the normal power is restored.
TROUBLESHOOTING
There are no user-serviceable parts inside. For detailed information about how to set up, install, use, and maintain Encelium hardware and software, please visit: help.encelium.com
Copyright © 2021 Digital Lumens, Incorporated. All rights reserved. Digital Lumens, the Digital Lumens logo, We Generate Facility Wellness, SiteWorx, LightRules, Lightelligence, Encelium, the Encelium logo, Polaris, GreenBus, and any other trademark, service mark, or tradename (collectively “the Marks”) are either trademarks or registered trademarks of Digital Lumens, Inc. in the United States and/or other countries, or remain the property of their respective owners that have granted Digital Lumens, Inc. the right and license to use such Marks and/or are used herein as nominative fair use. Due to continuous improvements and innovations, specifications may change without notice.
DOC-000428-00 Rev B 12-21









To remove the wires, use a flat head screwdriver to release the wires from the terminal blocks.



















