LS04U-NA Lite 4 Person Hot Tub Spa
Owner’s Manual

LS04U-NA Lite 4 Person Hot Tub Spa
Owner’s Manual
| LS04U-NA LR04U-NA LS06U-NA LR06U-NA | LS04U-GR LR04U-GR LS06U-GR LR06U-GR |
QUESTIONS? PROBLEMS?MISSING PARTS?
For FAQ, Manuals, Videos or Spare Parts, please visit www.the-mspa.com/support
PLEASE DO NOT RETURN THE PRODUCT TO THE STORE
Due to MSpa’s continuous product improvement process, MSpa reserves the right to change the specifications and appearance of its products, which may result in updates to the instruction manual without prior notice.
ENTER THE WORLD OF MSPA
Welcome,
Thank you for choosing MSpa and for your confidence in our brand. We believe that you will enjoy many benefits of using MSpa products for years to come.
To guide you in your initial MSpa experience, we are pleased to present you with this instruction manual. Please read this manual carefully before using the product for the first time.
We are delighted to welcome you to the MSpa family, and look forward to sharing with you the full spectrum of our expertise.
Enjoy your MSpa!
http://www.the-mspa.com/support
SAFETY PRECAUTIONS
For your own safety and that of your product, please make sure to follow the safety precautions below. Failure to follow the instructions may result in serious injury, property damage or death. Improper installation or operation will void the warranty.
PLEASE ENSURE THAT YOU READ, UNDERSTAND AND FOLLOW ALL INSTRUCTIONS KEEP THIS MANUAL FOR FUTURE REFERENCE
DANGER
- Risk of Accidental Drowning. Extreme caution must be exercised to prevent unauthorized access by children.
- Risk of drowning. Inspect the spa cover regularly for leaks, premature wear and tear, damage or signs of deterioration. Never use a worn or damaged cover as it will not provide the level of protection required to prevent unsupervised access to the spa by a child.
- Risk of drowning. Always lock the spa cover after each use.
- Risk of injury. The suction fittings in this spa are sized to match the specific water flow created by the pump. Never operate the spa if the suction fittings are broken or missing. Never replace a suction fitting with an incompatible one.
- Risk of injury. If the supply cord is damaged, it must be replaced by the manufacturer, a service agent or a similarly qualified person in order to avoid hazards.
- Risk of Electric Shock. Do not permit any electrical appliances, such as lights, telephones, radios or televisions, within 1.5m (5 feet) of a spa tub.
- Risk of Electric Shock. Do not use the spa when it is raining, thundering or lightning.
WARNING
- To reduce the risk of electric shock, do not use an extension cord, timers, plug adaptors or converter plugs to connect the unit to the electrical supply; provide a properly located outlet.
- This appliance with its incorporated heating elements must be connected to a grounded mains supply socket with a supply cord fitted with a plug and a PRCD (portable residual current device) with a tripping current of 10mA.
- This appliance with earthing must only be plugged directly into an earthed socket-outlet for fixed wiring.
- Parts containing live components, except those parts supplied with safety extra-low voltage not exceeding 12V, must be inaccessible to anyone using the spa.
- Parts incorporating electrical components, except remote control devices, must be located or fixed so that they cannot fall into the spa.
- Electrical installation should fulfill the local requirement or standards.
- The wired controller must be properly stored in the side pocket when not in use,, to protect it from falling or other hazards.
- This appliance can be used by children aged 8 years and above and by persons with reduced physical, sensory or mental capabilities or a lack of experience and knowledge, provided that they are supervised or have been instructed on the safe use of the appliance and understand the hazards involved. Children must not play with the appliance or perform any cleaning or user maintenance operations without supervision.
- To reduce risk or injury, keep children away from this product unless they are closely supervised at all times.
- To reduce the risk of child drowning, supervise children all times. Attach and lock the spa cover after each use.
- Make sure that the floor is able to support the expected load, which can be found on the specifications sheet. You will need to calculate the expected water capacity load plus the total weight.
- An adequate draining system must be provided around the spa to deal with overflow water.
- To reduce the risk of injury:
a) Lower water temperatures are recommended for young children and when spa use exceeds 10 minutes. In order to avoid the possibility of hyperthermia (heat stress) occurring, it is recommended that the average spa-pool water temperature does not exceed 40°C (104°F).
b) Since excessive water temperatures have a high potential for causing fetal damage during the early months of pregnancy, pregnant or possibly pregnant women should limit the spa water temperature to 38°C (100°F).
c) Before entering the spa or hot tub, the user should measure the water temperature with an accurate thermometer since the tolerance of water temperature regulating devices may vary.
d) The use of alcohol, drugs or medication before or during spa use may lead to unconsciousness with the possibility of drowning.
e) The use of alcohol, drugs or medication can greatly increase the risk of fatal hyperthermia in spas.
f) The causes and symptoms of hyperthermia may be described as follows: Hyperthermia occurs when the internal body temperature reaches a level several degrees above the normal body temperature of 37°C (98.6°F).The symptoms of hyperthermia include an increase in the body’s internal temperature, dizziness, lethargy, drowsiness, and fainting. The effects of hyperthemia include a failure to perceive heat; a failure to recognize the need to exit the spa; an unawareness of impending hazards; fetal damage in pregnant women; a physical inability to exit the spa; and unconsciousness resulting in the danger of drowning.
g) Obese persons or persons with a history of heart disease, low or high blood pressure, circulatory system prob lems, or diabetes should consult a physician before using a spa.
h) Persons using medication should consult a physician before using a spa since some medication may induce drowsiness or affect the heart rate, blood pressure, or circulation.
i) Check with a doctor before use if pregnant, diabetic, in poor health, or under medical care. - People with an infectious disease should not use a spa or hot tub.
- To avoid injury, exercise care when entering or exiting the spa or hot tub.
- Water temperatures in excess of 40°C (104°F) may be injurious to your health.
- Never use a spa or hot tub alone or allow others to use the spa alone.
- Do not use a spa or hot tub immediately following strenuous exercise.
- Spa heat in conjunction with alcohol, drugs, or medication can cause unconsciousness.
- Exit immediately if uncomfortable, dizzy, or sleepy. Spa heat can cause hyperthermia and unconsciousness.
- To prevent freezing, the spa must not be exposed to temperatures below 0°C (32°F) if there is still water in the pool. It is helpful to place a temperature barrier mat between the spa pool and the ground. A similar mat made of foam or any other material with a heat barrier function can also be used. Do not turn on the spa when the water is frozen.
- Never pour water with a temperature higher than 40°C (104°F) into the spa directly.
- Always unplug the product from the electrical outlet before removing, cleaning, servicing or making any adjustments.
- Never jump or dive into a spa or any shallow body of water.
- No part of the electric appliance is to be located above the bath during use.
- Do not bury the electrical cord. Locate the cord where it will not be damaged by lawn mowers, hedge trimmers or any other equipment.
- Do not attempt to plug in or unplug the product while standing in water or when your hands are wet.
- Do not use the spa if it is damaged on delivery and/or if it malfunctions in any way.
- Contact the MSpa service center for further instructions.
- Keep all pets away from the spa to avoid any damage.
- Do not add bath oil or bath salt to the spa water.
- Avoid putting your head under the water at all times.
- Avoid swallowing the spa water.
- The spa contains a UVC emitter. To replace or repair the UVC emitter, contact a professional operator.
- Unintended use of the appliance or damage to the housing may result in the escape of dangerous UVC radiation. UVC radiation, even in small doses, may cause harm to the eyes and skin.
WARNING: Do not operate the UVC emitter when it is removed from the appliance enclosure.
CAUTION
- Always add chemicals to water, never add water to chemicals. Adding water to chemicals may cause strong fumes or violent reactions and hazardous chemical spray.
- For water that has already been used, dispose of it promptly or use water chemicals for cleaning. Usually, it is recommended to drain and refill a spa with clean water every 3-5 days.
- Use the chemical kit for disinfection in accordance with manufacturer’s instructions.
- Do not leave or set up the spa with a temperature lower than 4°C (39°F) if the heater is not operating.
- Always enter and exit the spa or hot tub slowly and cautiously. Take extra care if the floor is wet.
- To avoid damage to the pump, never turn on the spa or hot tub if it is not filled to the minimum water line.
- The spa or hot tub must only be placed on a properly prepared site that meets the floor loading requirement.
- Do not leave the spa empty for an extended period of time. Drain the spa completely if it is not going to be used for a long period of time. Do not expose the spa to direct sunlight. Check regularly before each use. When the spa is not in use, store it away immediately or keep it in an enclosed area.
- Open the spa top lid when the Bubble function is on.
- In order to avoid a hazard due to the inadvertent resetting of the thermal cut-out, this appliance must not be supplied through an external switching device, such as a timer, or connected to a circuit that is regularly switched on and off by the utility.
- Once the spa is installed, refer to the relevant chapters for details concerning cleaning, periodic checks and other maintenance.
SPA LINER WARNING EXPLANATION
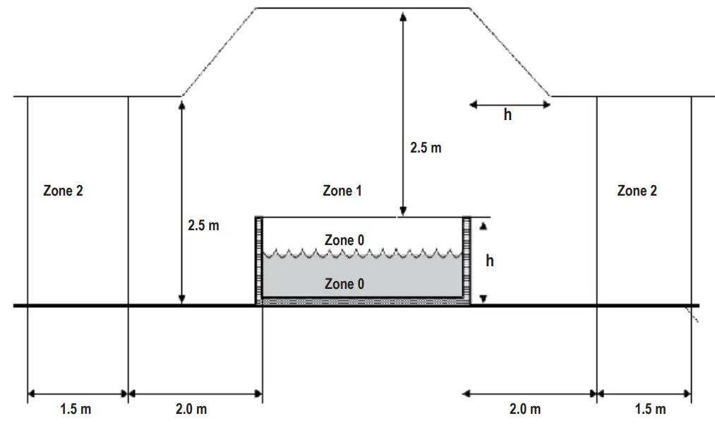
Warning: The appliance’s water protection levels vary across different product zones, as shown in the following diagram. (The installation regulations comply with IEC 60364-7-702.)
NOTE – The measured zone dimensions are limited by walls and fixed partitions. Zones Description of the zones Zone 0 Zone 0 is the interior of the basin including any recesses in the walls or floor.
| Zones | Description of the zones |
| Zone 0 | Zone 0 is the interior of the basin including any recesses in the walls or floor. |
| Zone 1 | Zone 1 is limited by · Zone 0 · A vertical plane 2m from the rim of the basin. · The floor or the surface expected to be occupied by the users. · The horizontal plane 2.5m above the floor or the surface. |
| Zone 2 | Zone 2 is limited by · A vertical plane external to zone 1 and a parallel plane 1.5m from the former. · The floor or surface intended to be occupied by the users. |
SPECIFICATIONS
BUBBLE SPA
| Model No. I Code | Shan. | Seating Capacity | Water Capacity | Outside Dimensions | Inside Dimensions | Height | Weight |
| LSO4U-NA LSO4U-GR | Square | 650 L (171 Gal.) | 1.58 x 1.58 m (62″ x 62″) | 1.18 x 1.18 m (46.5″ x 46.5″) | 0.68m (27″) | 20 kg (49.6 Ibs) | |
| LSO6U-NA LSO6U-GR | Square | 930 L (245 Gal.) | 1.85 x 1.85 m (73″ x 73″) | 1.45 x 1.45 m (57″ x 57″) | 0.68m (27″) | 23 kg (56.2 Ibs) | |
| LRO4U•NA LRO4U-GR | Round | 700 L (148 Gal.) | 01.80 m (71″) | 01.4 m (55″) | 0.70m (28″) | 20.5 kg (50.7 Ibs) | |
| LRO6U-NA LRO6U-GR | Round | 930 L (245 Gal.) | 02.04 m (80″) | 01.6 m (63″) | 0.70m (28″) | 22.5 kg (55.1 Ibs) |
Control System Specs
| Control System | AC 220-240V~ 50Hz |
| Rating Power | 2100W |
| Heater | 1500W |
| Massage Air Blower | 600W |
| Filter Pump | 1325L/hr |
| UVC Radiant flux | 2000uW |
| Top Lid | Rhino-Tech™ reinforced PVC |
| Liner Material | PVC + Premium Rhino-Tech™ reinforced PVC |
PARTS DESCRIPTION
Packaging content
| REF. NO. | PARTS DESCRIPTION |
| A | Buckle spa cover |
| B | Spa tub |
| C | Wired controller |
| D | Filter cartridge * 2 |
| E | Garden hose adaptor |
| F | Repair kit |
| G | Inflation hose |
| H | Manometer |
NOTE: The drawings are for reference only. Actual products may vary. Not to scale. Use accessories exclusively provided by MSPA for safety reasons. When ordering parts, be sure to quote the SPA model number and description.
FIRST USE AND SETUP PREPARATION
Site preparation and requirements
- The spa can be installed indoors or outdoors in around 10 minutes by one or more persons. For household use only.
- The spa must be set up on a flat, smooth and supporting surface that is able to bear the maximum load of the filled spa with the listed maximum number
of occupants. Check with a qualified contractor or structural engineer to verify the requirement. - Make sure the area is free of sharp objects under or around the spa. Uneven or unsound surface can damage the spa and void your warranty.
- Level the surface before filling the spa with water.
- Provide an adequate drainage system around the spa to deal with overflow water and splashes.
- Make sure there is enough clearance around the spa for full access to the equipment for maintenance and/or servicing.
- Consider positioning the spa to minimize noise disturbance as much as possible.
Additional requirements for indoor installation
- Humidity is a natural side effect of indoor spa installation. The room must be properly ventilated to allow moisture to escape. Install a ventilating system to prevent excess condensation moisture in the room.
- Ensure the spa can be removed from the building without destroying any part of the built structure.
- Consider any local regulations on these topics.
Additional requirements for outdoor installation
- Do not set up the spa on grass or dirt, as this will increase the amount of debris entering the spa and will damage the floor.
- To ensure a longer lifespan, do not leave the spa tub exposed to direct sunlight.
- Always keep the manometer within the yellow section when using the spa at a temperature higher than 20°C (68°F) or when exposing it to sunlight for a short time.
- Do not install or use the spa outdoors at a temperature lower than 4°C (39°F). Do not use the spa when the water inside the circulation system, pump,
or pipework is frozen. - Put a heat preservation mat (optional accessories) between the base of the spa and the ground to prevent heat loss from the bottom of the spa and to provide better heat retention.
PRCD Testing
WARNING
Risk of electric shock: This product is provided with a PRCD located at the end of the power cord. The PRCD must be tested before each use. Do not use the spa if the PRCD does not function properly. Disconnect the power cord until the fault has been identified and corrected. Contact a licensed electrician to correct the fault. There are no serviceable parts inside the PRCD. Opening the PRCD will void the warranty.
- Plug the machine into the mains.
- Press the RESET button on the PRCD. The indicator turns red.
- Press the TEST button on the PRCD. The red color shown on the indicator should disappear. Otherwise the PRCD is faulty. Do not use the spa if the spa is faulty. Contact a qualified electrician to correct the fault.
- Press the RESET button on the PRCD again. The indicator should turn red. When it does, the spa is ready for use.

Spa Control Unit Connected External Equipotential Bonding Conductors
A qualified electrician should wire the spa control unit to the household equipotential terminal using a minimum 1.5mm² solid copper conductor.
SPA SET-UP

NOTE: Your spa will require additional air to be added from time to time. Changes in temperature from day to night will change the pressure in the spa and may cause a certain amount of deflation.
IMPORTANT: ALWAYS READ THE MANOMETER TO ENSURE THAT THE SPA IS FILLED AT THE CORRECT AIR PRESSURE FOR THE CONDITIONS.
Ensure the manometer points to the Yellow section in the following conditions
- After inflation, before filling the water.
- When leaving the spa outdoors unattended for long periods of time at a temperature higher than 20°C (68°F).
Ensure the manometer points to the Green section in the following conditions
- When the spa is filled with water.
- When the spa is in use.
WARNING: If the manometer points to the White section, the air pressure of your spa is too high. Press the black button on the bottom of manometer to release some air until the pointer returns to the Green or Yellow section.
Make sure the filter cartridge remains in place when the spa is filled with water.
NOTE: It is recommended to fill the spa with lukewarm water for quick heating and energy saving.
NOTE: Ensure the manometer points to the Green section when the spa is filled with water.
WARNING: Do not drag the spa after filling it with water. Do not operate the spa until the water reaches the Minimum line. The water temperature should not be higher than 40°C / 104°F.
Heating the water
Place the cover over the spa. Refer to “Controller operation” to turn on the heater.
The hourly heating rate is around 2°C – 2.5°C (2.5°F – 3.5°F) for a 2-person spa or a 4-person square spa, 1.5°C – 2°C (2.5°F – 3.5°F) for a 4-person round spa, and 1.2°C – 1.8°C (2°F – 3°F) for a 6-person spa.
Buckle Lock Operation
CONTROLLER OPERATION

LED display
Once powered-up, press the RESET on the PRCD. The LED displays the current water temperature automatically.
NOTE: The actual water temperature may vary from the temperature displayed on the LED screen by as much as approximately 1°C.
UVC SANITIZER
UVC Press
the UVC button to turn the UVC sanitizing system on/off. When the light above this button is green, the UVC sanitizing system is activated.
HEATING
- Press the
HEATER button to turn the heating system on/off. When the light above the heat button is red, the heating system is activated.
When the light is green, the water is at the set temperature and the heating system is at rest. - Pressing the UP
or
DOWN button will cause the LED to flash. When it is flashing you can adjust the water to the desired tempera ture setting (from 20°C to 40°C ). The new and desired temperature setting will remain on the LED display for 3 seconds to confirm the new value.
NOTE: The default temperature is 38°C.
NOTE: If the heating system is turned on, the filtration system will automatically start.
NOTE: When the water temperature is below 1°C (33.8°F), the anti-icing system will be activated automatically to heat the water to 3°C (37.4°F).
IMPORTANT: The following conditions will lead to slow water heating
- An ambient temperature lower than 10°C (50°F).
- An outdoor wind speed above 3.5-5.4m/s (8-12mph).
- If the air bubble function is activated when the heater is on.
- If the spa cover is not properly in place when the heater is on.
FILTRATION
Press the
FILTER button to turn the function on/off. The light turns to green when the function is activated.
NOTE: The filtration system will automatically start when the heating or UVC sanitizing system is activated.
NOTE: After turning off the heating system, the filtration system will automatically stop in 30 seconds. Filter Cartridge Cleaning Reminder: When the FILTER button is flashing or displays red, the filter cartridge must be cleaned or replaced. Once this has been done, press the Filter button for 3 seconds to reset the reminder.
BUBBLE MASSAGE
Press the
BUBBLE button to turn the massage system on/off. The Bubble button displays green when activated.
IMPORTANT: Do not turn on the massage system when the cover is attached. Air can accumulate inside the spa and cause irreparable damage and bodily harm.
NOTE: The bubbling massage function will shut down automatically after every 20 minutes of operation as a safety precaution. This can be reactivated after 10 minutes by pressing the BUBBLE button again.
1-99H HEATING
To set the number of hours FROM NOW when the heater will activate:
- Press the
TIMER button to enter pre-setting mode. The button displays green. - Pressing the UP
or
DOWN button will cause the LED to flash. While it is flashing, you can adjust the number of hours before heater activation (from 1 to 99 hours). The desired timer setting will remain on the LED display for 3 seconds to confirm the value.
To modify the timer setting: Press the Timer button again and use the UP or the DOWN button to adjust. Cancel the setting: Press the TIMER button for 3 seconds.
NOTE: Activating the heating system or rebooting the spa will cancel the timer setting.
SAFETY LOCK
Press the UP
and
DOWN buttons at the same time for 3 seconds to lock/unlock the controller. In safety lock mode, the controller is disabled and the spa retains all previous settings.
Celsius/Fahrenheit Toggle Button
The temperature can be displayed in either Celsius or Fahrenheit. Long press DOWN DOWN button for 3 seconds to switch.
WATER MAINTENANCE AND CHEMICALS
CAUTION: ALWAYS ENSURE THE SPA IS UNPLUGGED BEFORE BEGINNING ANY MAINTENANCE WORK TO AVOID THE RISK OF INJURY OR DEATH.
FILTER CARTRIDGE MAINTENANCE
1. Inspect and clean the filter cartridge gently after each use. Follow the steps below:
NOTE: Change the filter cartridge every 3-5 days, or if the filter cartridge remains soiled and discolored.
NOTE: When the spa is filled with water, there should always be a filter cartridge installed on the base.
NOTE: Turn off all the functions before changing or cleaning the filter cartridge.
2. The spa inlet and outlet are integrated into one part. If this becomes clogged with dirt, unscrew the component counter-clockwise by hand to clean it.
NOTE: Before unscrewing the part, make sure the spa is empty. Never unscrew this component when the spa is filled with water!
SPA WATER
- Change the spa water every 3-5 days depending on use. If dirt is visible in the water or if the water becomes cloudy and the correct water chemistry does not clear it up, change the water and clean the spa tub. See the “Cleaning, draining and storage” section for instructions.
- We recommend taking a shower before using the spa, as cosmetic products, lotions and other residues on the skin can quickly degrade the water quality.
- When the spa is not in use, cover it with the buckle cover to prevent pollution.
- Use spa chemicals to maintain the proper water conditions. Spa damage resulting from the misuse of chemicals or the mismanagement of spa water is not covered by the warranty. Consult with your local spa or pool retailer for more information on chemical use.
Water Sanitation
The spa owner must regularly check and keep the spa water sanitized with scheduled maintenance (daily, if necessary). Adding sanitizer or other chemicals will control bacteria and the reproduction of viruses in the spa water. Maintaining the correct water balance through the appropriate use of sanitizers is the most important factor in maximizing the life and appearance of the spa and ensuring clean, healthy and safe water. Adopting the proper technique is important for testing and treating the spa water. Contact your spa professional if you have any questions on chemicals, sanitizers, test kits or test procedures.
Water Balance
Follow the instructions below to maintain your spa water.
| PARAMETER | TEST FREQUENCY | CORRECT LEVEL |
| pH | Daily | 7.2-7.6 when using Chlorine; 7.2-7.8 when using Bromine |
| Free Chlorine | Daily | 3-5 ppm |
| Bromine residual | Daily | 2-4 ppm |
| Total Alkalinity (TA) | Weekly | 80-120 ppm |
| Total Hardness (TH) | Weekly | 200-500 ppm |
NOTE
- A low pH will damage the spa tub and pump. Any damage resulting from a chemical imbalance will void the warranty.
- A high pH (hard water) will result in white coagulations inside the filter pump, which may lead to pump damage.
Water Treatment:
- It is good practice with an existing spa to keep all air jets open and valves closed to allow chemically treated water to flush through all pipework.
- Always follow the chemical manufacturer’s directions, and the health and hazard warning.
- Never mix chemicals together. Add the chemicals to the spa water separately. Thoroughly dissolve each chemical before adding it to the water. Please note that chlorine and bromine products should never be mixed.
- This is extremely dangerous. If you usually use chlorine-based products and you want to switch to bromine-based products, or vice versa, it is essential that you change the spa water first.
- Do not add chemicals if the spa is occupied. This can cause skin or eye irritation.
- Do not overuse chemicals or use concentrated chlorine. This can damage the spa tub and cause potential hazard to your skin. Improper chemical use will void the warranty.
DRAINAGE, CLEANING AND STORAGE
Spa Drainage
Turn off all the functions
Spa Tub Cleaning
After the spa water is drained, use a sponge and a mild soap solution to wipe away any soil or stains on the inside of the spa wall. Rinse thoroughly before refilling with clean water.
IMPORTANT: Do not use steel wool, hard brushes or abrasive cleaners.
Deflation Instructions
- Unscrew the whole valve on the spa pool to deflate the spa.
- Once it is deflated, replace the valve.
Spa Tub and Air Bladder (*Optional) Repair
Use the enclosed repair patch to repair any puncture:
- Clean and dry the area to be repaired thoroughly
- Apply the glue to the PVC patch and quickly attach it onto the damaged surface. (Glue is not included)
- Smooth the surface to remove any air bubbles and allow it dry for 5-10 minutes
NOTE: Glue is not included.

Storage and Preparation for Future Use
- Drain and clean the spa by following the “Drainage” and “Spa Cleaning” sections. SUN
- Refer to the instructions to deflate and disassemble the spa tub, spa control unit and air bladder (*optional).
- Make sure all the spa components and accessories are thoroughly clean and dry before storage. Air-dry the spa tub in mild sunlight for an hour before folding.
- Fold the spa tub loosely and avoid any sharp corners to prevent damage or leakage to the spa liner.
- Prepare a new additional cartridge for next time use.
- Store the spa and accessories in a dry, temperature-controlled storage area (between 0°C and 40°C (32°F – 104°F).
- The original packaging is recommended for storage.
DISPOSAL AND ENVIRONMENTAL PROTECTION
This marking indicates that the product should not be disposed of with other household waste. To prevent possible harm to the environment or human health from uncontrolled waste disposal, recycle the product responsibly to promote the sustainable reuse of material resources. Information on disposal can be obtained from your local authorities.
To return your used device, please use the return and collection systems or contact the retailer where the product was purchased for environmentally safe recycling.
TROUBLESHOOTING
ERROR CODE CHART
| LED READING | CAUSE | SOLUTION |
| … | Signal wire is loose | Contact the MSpa Service Center |
| Communication failed | Contact the MSpa Service Center | |
| FO | Water temperature is below 0°C (32°F) or exceeds 50°C (122°F) | Change the water |
| Temperature sensor failure | Contact the MSpa Service Center | |
| F1 | F1 immediately shows after pressing FILTER , HEATING or UV | Clean the parts and tubes that the water goes through |
| Fl shows 15s after pressing FILTER, HEATING or UV | 1.Add more water to the minimum line 2.Clean the parts and tubes that water goes through 3.Contact the MSpa Service Center |
| PROBLEM | CAUSE | SOLUTION |
| NO DISPLAY ON THE CONTROL PANEL | Power socket failure | Change a socket or repair the socket before use |
| PRCD is off | Reset the PRCD by following the PRCD Testing section | |
| Press the Reset button, controller is not displayed | Contact the MSpa Service Center | |
| PRCD broken | Contact the MSpa Service Center | |
| SPA LEAKING | Spa in&outlet connection not securely tight | Tighten the in&outlet connection |
| Drainage valve is not closed completely | Close the drainage valve. Contact the MSpa Service Center, if spa is still leaking | |
| Water leaks from the spa pool body | Repair the leaking hole/split with the repair kit material | |
| NOT HEATING PROPERLY | Temperature set too low | Set a higher temperature |
| Dirty filter cartridge | Clean or replace the filter cartridge | |
| Water level is not at the minimum water line | Add more water to the minimum line | |
| Heater failure | Contact the MSpa Service Center | |
| Filter pump DOES NOT WORK | Refer to the “FILTER PUMP DOES NOT WORK” section |
| PROBLEM | CAUSE | SOLUTION |
| SPA LOSES AIR | Air valve is loose | Inflate the spa till Yellow section of the manometer is pushed out. Make sure the valve is screwed tightly. Replace the valve if necessary. |
| Hole or split on the spa tub | Fill a squirt bottle with soapy water and spray on the seams. If there is a leak, small bubbles will come out. When you have located the leak, clean and dry the leaking area, then use the repair patch supplied with your spa. Check the repair section on P13. | |
| WATER NOT CLEAN | Water has been used for long period of time | Change the water |
| Insufficient filtering time | Extend the filtration time | |
| Dirty filter cartridge | Clean or replace the filter cartridge in time | |
| Improper water maintenance | Refer to the chemical manufacturer’s instructions | |
| SPA TUB IN AN ABNORMAL SHAPE | Extra air pressure due to strong sunlight | ce Check the air pressure and release air if necessary During hot weather, it is advisable to check whether some air should be released to avoid any possible damage to the spa pool. |
| BUBBLE AIR BLOWER DOES NOT WORK | Auto-off 10 minutes | Wait for 10 minutes and turn on the Bubble button again |
| Internal parts damaged | Contact the MSpa Service Center | |
| FILTER PUMP DOES NOT WORK | Filter cartridge clogged by dirt or other objects | Clean or replace the filter cartridge |
| Fitter system failure | Contact the MSpa Service Center |
Where can I find the serial number?
At the back of controller. Or at the foot of the control box.
How can I find my service contact?
Scan the QR code below or visit https://www.the-mspa.com/after-sales.
- Input the serial number of your spa.
- The corresponding service provider will be displayed.
CONTACT YOUR LOCAL MSPA DEALER OR SERVICE CENTER FOR ANY PRODUCT-RELATED QUESTIONS OR PROBLEMS.
MSPA LIMITED WARRANTY
MSpa® has been manufactured with reliability and simplicity in mind. All products have been inspected and found free of defects prior to leaving the factory.
MSpa warrants this product against defects in material and workmanship for a period of:
TWELVE (12) months
– Electric Parts (Control Box) SIX (6) months
– Spa pool.
The warranty period begins on the date of purchase and MSpa requires presentation of the original proof of purchase to ascertain the date. During the warranty period, MSpa will either repair or replace, at its discretion, any defective products. Replacement products or repaired parts will be warranted for only the unexpired portion of the original warranty.
Shipping Policy
Consumers are responsible for the shipping/freight when return the defect parts to MSpa authorized service center or ORPC-Oriental Recreational Products (Shanghai) Co., Ltd.
Warranty Policy
- This limited warranty does not apply to any defect resulting from negligence, accident, misuse, or any other reason beyond MSpa’s reasonable control, included but not limited to: normal wear and tear, negligence or failure to follow the product instructions, improper or inadequate maintenance; connection to an improper power supply; chemical water damage, loss of pool water, unauthorized product modification or repair; use for commercial purposes; fire, lightning, flood or other external causes.
- This warranty is valid only in the country of purchase in such countries where MSpa sells and services the same model with identical technical specifications.Warranty service outside the country of purchase is limited to the terms and conditions of the corresponding warranty in the country of service. Where the cost of repairs or replacement is not covered by this warranty, MSpa will advise the owners and the cost shall be charged to the owner.
- This warranty only applies to the original purchaser and terminates upon any transfer of ownership.
- All repairs for which warranty claims are made must be pre-authorized by ORPC through an accredited distributor or agent provided that the defective part be returned to the distributor or agent Transportation Prepaid, if requested.
- The authorized selling dealer is responsible for all in-field service work carried out on your MSpa product. ORPC will not be liable for the cost of any workmanship carried out by an unauthorized service person.
- Products marked with both MSpa and importer are governed exclusively by the warranty provided by the importer.
Warranty Registration
Please Always keep the purchase receipt and warranty card in case of a future warranty inquiry. All claims must be submitted to an MSpa authorized dealer or service partner. Warranty contact information is provided on the back of the warranty card. It is essential that all submitted claims provide all the necessary information, including Customer name, Purchase receipt, Serial No., Product No., Problem, and Parts requested.
Annex A
Ensure that you read carefully, understand and follow all of the information in this user manual before installing and using your spa. These warnings, instructions, and safety guidelines address some common risks associated with water recreation, but they cannot cover all risks and dangers in all cases. Always use caution, common sense, and good judgment when enjoying any water activity. Retain this information for future use. In addition, the following information can be supplied depending on the spa type:
Safety of non-swimmers
- Continuous, active, and vigilant supervision of weak swimmers and non-swimmers, especially in exercise spas, by a competent adult is required at all times (remembering that children under eight years of age are at the highest risk of drowning).
- Designate a competent adult to supervise the spa each time it is being used.
- Weak swimmers or non-swimmers should wear personal protection equipment, especially when using the exercise spa.
- When the spa is not in use, or unsupervised, remove all toys from the spa and its surrounding area to avoid attracting children to the spa.
Safety devices
- A safety cover or other safety protection device must be used, or all doors and windows (where applicable) shall be secured to prevent unauthorized access to the spa.
- Barriers, covers, alarms, or similar safety devices are helpful aids, but they are not substitutes for continuous and competent adult supervision.
Safety equipment
- It is recommended to keep rescue equipment (e.g. a ring buoy) by the spa (if appropriate).
- Keep a working phone and a list of emergency phone numbers near the spa.
Safe use of the spa
- Encourage all users, especially children, to learn how to swim.
- Learn Basic Life Support (Cardiopulmonary Resuscitation — CPR) and refresh this knowledge regularly. This can make a life-saving difference in the event of an emergency.
- Instruct all spa users, including children, on what to do in case of an emergency.
- Never dive into any shallow body of water. This can lead to serious injury or death.
- Do not use the spa when using alcohol or medication that may impair the bather’s ability to safely use the spa.
- When covers are used, remove them completely from the water surface before entering the spa.
- Protect spa occupants from water-related illnesses by advising them to keep the water treated and practice good hygiene.
- Consult the water treatment guidelines in the user’s manual.
- Store chemicals out of the reach of children.
- Use the signage provided on the spa or within 2000 mm of the spa in a prominent visible position.
www.the-mspa.com

















