INVENTUM IMC6035RT Built In Microwave Oven with Grill

Introduction
HOW TO USE THIS DOCUMENT
- Read this document completely. Make sure that you know and understand all the instructions.
- Obey the safety instructions to prevent injury and/or damage to the appliance and its surroundings.
- Do the procedures completely and in the given sequence.
- Keep this document in a safe area for future use. This document is a part of the appliance.
SYMBOLS USED IN THIS DOCUMENT
| Safety symbol | Function | Description |
![]() | Warning | “Warning” means that injury or death is possible if you do not obey the instructions. |
![]() | Caution | “Caution” means that damage to the appliance is possible if you do not obey the instructions. |
![]() | Note | “Note” is used to give additional information. |
Safety
SAFETY INSTRUCTIONS
- Read the instructions before operating the appliance and keep the instructions for future use.
- The appliance is only intended for domestic use within a home. Do not use corrosive chemicals or vapors in this appliance. This appliance is specifically designed to heat. It is not designed for industrial or laboratory use.
- Do not attempt to operate the appliance with the door open. This can result in harmful exposure to microwave energy.
- Do not place any object between the door of the appliance. Do not allow soil or cleaner residue to accumulate on the sealing surfaces.
- If the door or the door seal is damaged, the appliance must not be operated until it has been repaired by a competent person.
- Do not heat liquids and other foods in sealed containers because the container can explode.
- Only a competent person is allowed to carry out any service or repairs that involve opening the base unit that protects against exposure to microwave energy.
- Keep the appliance out of reach of children. Children do not understand the danger of handling electrical appliances.
- This appliance cannot be used by children from 0 to 8 years. This appliance can be used by children aged from 8 years
and above if they are continuously supervised. The appliance can also be used by people with reduced physical, sensory or mental capabilities or lack of experience or knowledge, if they have been given supervision or instruction concerning use of the appliance in a safe way and understand the hazards involved. Keep the appliance and its cord out of reach of children aged less than 8 years. - Cleaning and maintenance cannot be done by children.
- Children must not play with the appliance.
- Only use materials that are suitable for use in (microwave) ovens.
- The appliance must be cleaned regularly and any food deposits must be removed.
- When heating food in plastic or paper containers, keep an eye on the appliance for possible ignition.
- When you see smoke, switch off and unplug the appliance. Keep the door closed in order to stifle any flames.
- Do not overcook the food.
- Do not place items on the door of the appliance.
- Do not use the inside of the appliance for storage purposes. Do not store items, such as bread, cookies, etc. inside.
- Remove metal wire twisties and metal handles from paper or plastic containers/bags before placing them in the appliance.
- Install the appliance only in accordance with the installation instructions.
- Eggs in the shell and whole hard-boiled eggs must not be heated in the appliance since the eggs can burst, even after the appliance is switched off.
- Always carry out regular checks of the appliance and the mains cable to make sure that no damage is evident. Should there be any signs that the appliance or the mains cable is damaged in the slightest degree, the entire appliance should be returned to the Customer Service Department. For your own safety, only use the accessories and spare parts from the manufacturer which are suitable for the appliance.
- Only use and store the appliance indoors.
- Do not use the appliance near water, in a wet basement/garage or near a swimming pool.
- Avoid touching hot surfaces, especially the inside of the appliance.
- Do not cover any vents of the appliance.
- Do not bend the mains cable and keep it away from the heated surface.
- Failure to keep the appliance clean could lead to deterioration of the surface that could adversely affect the life of the appliance and possible result in a hazardous situation.
- The contents of feeding bottles and baby food jars must be stirred or shaken and the temperature must be checked before consumption, in order to avoid burns.
- Heating beverages in the appliance can result in delayed eruptive boiling. Always place a plastic or ceramic spoon in the cup. Be careful when handling the container.
- The appliance is not intended to be operated by means of an external timer or separate remote-control system.
- The appliance can only be used when it is built in kitchen furniture.
- Never leave the appliance unattended when in use.
- For your own safety, only use the accessories and spare parts from the manufacturer that are suitable for the appliance.
- Never unplug the appliance from the mains socket by pulling the mains cable.
- Always make sure that your hands are dry before handling the mains cable, mains plug or switch.
- Should you decide not to use the appliance anymore, make it inoperative by cutting the mains cable after removing the mains plug from the mains socket. Make all potentially dangerous parts of the appliance harmless, particularly for children who might be tempted to play with it.
- Never immerse any part of the main body, lid, mains cable and mains plug in water or any other liquid to protect against electrical hazards.
- If the appliance is used for other purposes than intended, or if it is not handled in accordance with the instruction manual, the full responsibility for any consequences will rest with the user. Any damages to the appliance or other things are not covered by the warranty.
- This appliance is intended to use in household and similar applications, such as shops, offices and other working environments, farm houses, customers of motels, hotels and other residential environments and bed and breakfasts.
- The appliance is intended for heating food and beverages. Drying of food or clothing and heating of warming pads, slippers, sponges, damp cloth and similar may lead to risk of injury, ignition or fire.
- Never use a pressure cleaner or steam cleaner to clean the appliance.
- Be careful if materials can be used in the appliance. For an overview, refer to section Materials suitable for use in the
appliance. - Legislation requires that all electrical and electronic equipment must be collected for reuse and recycling. Electrical and electronic equipment marked with the symbol indicating separate collection of such equipment must be returned to a municipal waste collection point.
- Do not use the microwave function when the appliance is empty.
- Do not cover the bottom of the appliance with aluminium foil. The aluminium foil stops the heat and causes poor results and damage to the enamel.
- The appliance has a fan that continues after operation.
- Only a qualified installer is allowed to install the appliance.
- In case of incorrect installation or connection, the warranty becomes invalid.
- If the mains cable is damaged, it may only be replaced by the manufacturer, its service organisation or similarly qualified persons, in order to prevent hazardous situations.
- The electrical connection must meet national and local regulations.
- The mains socket and mains plug must always be within reach.
- The appliance may not be connected to the mains supply via a power strip or extension cable. If this is not observed, the safety of the appliance cannot be guaranteed.
- The appliance must be earthed.
- Only connect the appliance to alternate current, to an earthed mains socket. Make sure that the voltage in your home corresponds with the voltage printed on the type plate of the appliance.
ENVIRONMENTALLY-FRIENDLY DISPOSAL
Note:
- Recycling – WEEE
- Dispose of packaging in an environmentally-friendly manner.
- This appliance is labelled in accordance with European Directive 2012/19/EU concerning used electrical and electronic appliances (waste electrical and electronic equipment – WEEE). The guideline determines the framework for the return and recycling of used appliances as applicable throughout the EU.
Description
INTENDED USE
- The appliance is intended to be used for preparing food.
- Do not use the appliance for any other purpose than described in this document.
BUILT-IN MICROWAVE OVEN
(Figure 1)
- An Insert levels
- B Door
- C Door handle
- D Control panel
- E Baking tray
- F Grill rack
| Item | Function |
| Insert levels | Refer to the section Using the insert levels. |
| Door | To open the appliance. |
| Door handle | To open and close the door. |
| Control panel | Refer to section Control panel. |
| Baking tray | To cook food. Use the baking tray for cake rolls and roasting. |
| Grill rack | To cook food. Use the grill rack for grilling meat and for toasting bread. |
CONTROL PANEL
(Figure 2)
- A Function indicator
- B Oven indicator
- C Clock
- D Temperature indicator
- E Power indicator
- F Start/pause button
- G Lamp button
- H Weight button
- I Clock/temperature button
- J Automatic-program button
- K Up button
- L Slider
- M Down button
- N Function button
- O Quick-preheat button
- P Delayed-start button
- Q Timer/child-lock button
- R Microwave button
- S Cancel button
| Item | Function |
| Function indicator | To show the selected function (timer, microwave, quick preheat, defrost, delayed start, automatic programs, light). |
| Oven indicator | To show the available and selected oven functions. Refer to section Oven modes. |
| Item | Function |
| Clock | • To show the remaining time during operation. • To show the current time when the appliance is off. |
| Temperature indicator | To show the selected temperature. |
| Power indicator | To show the selected microwave power. |
| Start/pause button | To start or pause the appliance. |
| Lamp button | To activate/deactivate the lamp inside the appliance. |
| Weight button | To select the weight. |
| Clock/temperature button | To set the clock or select the temperature. |
| Automatic-program button | To select an automatic program. |
| Up button | To adjust the settings. |
| Slider | To adjust the settings. Touch and hold the slider to the left to decrease the setting. Touch and hold the slider to the right to increase the setting. |
| Down button | To adjust the settings. |
| Function button | To select a function. |
| Quick-preheat button | To select the quick-preheat function. |
| Delayed-start button | To select the delayed-start function. |
| Timer/child-lock button | To use the timer or to activate/deactivate the child lock. |
| Microwave button | To select the microwave function. |
| Cancel button | To cancel a function or program. |
Note:
You can use both the up/down button or the slider to adjust the settings of the appliance. All three buttons have the same function.
Installation
SAFY INSTRUCTIONS FOR INSTALLATION
- Safety during use can only be guaranteed if installation was done correctly and according to the instructions. The installer is liable for damage caused by incorrect
- stallation.
- The electrical installation must be carried out by a qualified electrician. The electrician must comply to national and local regulations.
- The appliance has protection class I and may only be used in combination with an earthed connection.
- The appliance must be connected to a permanent installation in which provisions for switching off are integrated, in accordance with the installation instructions.
Make sure that the mains cable does not get jammed during installation or is running along sharp edges. The mains cable must be placed in such a way that no contact is - made with hot parts of the appliance.
- The connection point, mains socket and/or mains plug must always be accessible.
- The kitchen furniture in which the appliance is installed must be heat resistant to at least 90°C. This also applies to the doors or front of the furniture.
- Make sure that the kitchen furniture in which the appliance is installed is firmly attached, for example by fastening the furniture to adjacent elements.
- In case of incorrect installation or connection the warranty becomes invalid.
- Changes to the appliance, including replacing the mains cable, must be carried out by a certified installer.
- Make sure that there is sufficient ventilation and fresh air around the appliance.
UNPACKING
- Remove the packaging.
- Examine the appliance for damage.
- Make sure that the voltage is the same as on the type plate.
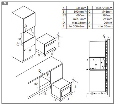
PREPARING FOR INSTALLATION
(Figure 3)
The minimum dimension for B1 is 585 mm and the maximum dimension is 595 mm.
Note:
Make sure that the kitchen furniture is prepared according to the dimensions of the appliance.
INSTALLING THE APPLIANCE Preliminary requirements
- Make sure that the kitchen furniture is prepared according to the correct dimensions.
Warning:
- Two persons are required to install the appliance.
Caution:
- Make sure that the mains cable does not get jammed during installation or is placed on top of the appliance.
Caution:
- Do not cover the opening between the kitchen furniture and the top of the appliance. The opening is required for ventilation.
Note:
- It is possible to connect the appliance to the mains supply before positioning the appliance.
Procedure
- Put appliance (A) in the center of the kitchen furniture.
- (Figure 4) (Figure 5) (Figure 6)

- Caution:
- Make sure that there is a minimum space of 2 mm between the appliance and the walls of the kitchen furniture.
- (Figure 4) (Figure 5) (Figure 6)
- Open the door (E) of the appliance.
- Place the appliance in the kitchen furniture.
- Install the plugs (B).
- Fasten the appliance to the kitchen furniture. Use the screws (D).
- Install the covers (C).
- Close the door.
- Connect the appliance. Refer to section Connecting the appliance.
CONNECTING THE APPLIANCE
- Make sure that the voltage in your home corresponds with the voltage of the appliance.
- Make sure that the electrical system in your home is supplied with a 16 Amp fuse.
- Note:
- If you replace the supplied mains cable, make sure that the new mains cable has a minimum core cross-section of 2.5 mm2 and a length of 1.5 m. If you use a mains cable that is too short, you cannot connect the appliance and position it in the kitchen furniture before connecting the appliance to the mains socket.
- After connecting, the clock shows ’00:00′ and you will hear a sound signal. After connecting, the clock shows ’00:00′ and you will hear a sound signal.
Operation
PREPARING FOR OPERATION
- Clean the appliance and the accessories. Use warm water and a mild cleaning agent.
- Rinse the appliance and the accessories thoroughly with water.
- Dry the appliance and the accessories.
- Use the oven function for 60 minutes with a temperature of 250°C to remove any production residues, such as oil and to prevent bad smells. Refer to section Using the oven function.
- Warning: Make sure that the room is properly ventilated.
- 5. Let the appliance cool down.
Clean the appliance again. Use warm water and a mild cleaning agent. - Rinse the appliance thoroughly with water.
- Dry the appliance.
- Install the guide racks. Refer to sections Installing the hooks for the guide racks and Installing the guide racks.
INSTALLING THE HOOKS FOR THE GUIDE RACKS
- Identify the hooks for the rear (A) and the front (B).
- Install hook (C) in the top opening (D).
- Install the hook in the bottom opening (E).
- Push the hook down.
- Repeat the procedure for the other hooks.
INSTALLING THE GUIDE RACKS
Note:
The procedure shows the installation for the guide rack of the right side of the appliance. The procedure for the left side is the same, however the hooks are mirrored.
- Identify the guide racks for the left side (A) and the right side (B).
- Carefully push the guide rack (C) in the hook (D).
- Push the rack to the rear of the appliance.
- Push the rack down.
SETTING THE CLOCK
- Touch the clock/temperature button. The clock display shows ‘00:00’ and the value for hours flashes.
- Touch the up/down button or the slider to adjust the hours.
- Note:
- The value must be between 0 and 23.
- Touch the clock/temperature button again. The value for minutes on the clock display flashes.
- Touch the up/down button or the slider to adjust the minutes.
- Note:
- The value must be between 0 and 59.
- Touch the clock/temperature button to save the settings. The ‘:’ in the clock display flashes.
- Repeat the procedure to adjust the time.
SETTING THE KITCHEN TIMER
The kitchen timer can be used independently from the cooking timer.
- Touch the timer/child-lock button. ‘00:00’ flashes on the clock display.
- Touch the up/down button or the slider to adjust the hours.
- Note:
- The value must be between 0 and 23.
- Touch the timer/child-lock button again. The value for minutes on the clock display flashes.
- Touch the up/down button or the slider to adjust the minutes.
- Note:
- The value must be between 0 and 59.
- Touch the timer/child-lock button to save the settings. The ‘:’ in the clock display flashes and the timer counts down.
When the kitchen timer finishes, you will hear a sound signal 10 times and the clock display shows the current time. The appliance does not automatically switch off and the program or function continues.
SETTING THE COOKING TIME
The cooking time can be set for the oven function, the microwave function and the combi function.
- Touch the clock/temperature button. ‘00:00hr’ flashes on the clock display.
- Touch the up/down button or the slider to set the cooking time.
When the cooking time finishes, you will hear a sound signal times and the appliance goes into standby.
USING THE DELAYED-START FUNCTION
You can use the delayed-start function to make sure that your dish is ready at a preset time. The appliance will
automatically start.
Note:
Make sure that the clock is set before you use the delayed-start function. Refer to section Setting the clock.
Note:
You cannot use the kitchen timer when the delayed-start function is active
- Touch the delayed-start button. The indicator for the delayed-start function on the display is on and the value for hours flashes.
- Touch the up/down button or the slider to adjust the hours.
- Note:
- The value must be between 0 and 23.
- Touch the delayed-start button again. The values for minutes on the display flashes.
- Touch the up/down button or the slider to adjust the minutes.
- Note:
- The value must be between 0 and 59.
- Touch the delayed-start button to save the settings.
- Touch the function button to select a desired function (e.g. oven, microwave etc.).
- Touch the up/down button or the slider to select the temperature.
- Touch the clock/temperature button to set the time.
- Touch the start/pause button to finish. The indicator for the delayed-start function on the display flashes.
- When the delayed-start time finishes, you will hear a sound signal and the appliance starts
USING THE INSERT LEVELS
The appliance has 5 insert levels to ensure that you can partly remove the grill rack or baking tray without tilting. As a result, you can safely remove the dish from the appliance and the grill rack or baking tray will not accidentally fall from the appliance.
Caution:
For safety reasons, the baking tray should be placed in one of the insert levels. Do not place the baking tray on the bottom of the appliance.
- Use the guide racks to correctly place the grill rack (A) or baking tray (B) in the appliance.

- Make sure that the accessories are fully placed in the appliance and that they do not make contact with the door.
USING THE OVEN FUNCTION
For an overview of the available oven modes, refer to section Oven modes.
- Touch the function button. The oven indicator shows the conventional mode.
- Touch the function button again to select the desired oven mode. The oven indicator shows the selected mode.
- Touch the up/down button or the slider to select the temperature.
- Set the cooking time. Refer to section Setting the cooking time.
- Touch the start/pause button to start the appliance.
Note:
If you open the door of the appliance during cooking, you must touch the start/pause button to continue the cooking.
USING THE QUICK-PREHEAT FUNCTION
You can use the quick-preheat function to quickly preheat the appliance to a set temperature
Note:
The quick-preheat function cannot be used for automatic programs or dough proving (oven mode).
- Touch the function button to select the desired oven mode.
Note:
If the mode does not support the quick-preheat function you will hear a sound signal. - Touch the quick-preheat button. The indicator for the quick-preheat function on the display is on. When the appliance is preheated, a sound signal sounds and the indicator for the quick-preheat goes off. You can now place your dish in the appliance.
USING THE MICROWAVE FUNCTION
Warning:
Only use materials that are suitable for use in a microwave oven.
Warning:
Heating beverages can result in delayed eru tive boiling. Always place a plastic or ceramic spoon in the cup. Be careful when handling the container.
Warning:
The contents of feeding bottles and baby food jars must be stirred or shaken and the temperature must be checked before consumption, in order to avoid burns.
Caution:
Always use heat resistant oven dishes made of pottery, glass or plastic. These materials allow the microwaves to pass properly. Do not use oven dishes made of metal or with metal decorations.
Caution:
Do not use the baking tray when you use the microwave function.
Note:
Use the grill rack when you use the microwave function. For the best cooking result place the grill rack on insert level 2.
For an overview of the suggested power for microwave cooking, refer to section Power settings for microwave cooking.
- Touch the microwave button. The power indicator shows the default microwave power (800 W) and the default cooking time (1 minute) flashes on the clock display.
- Touch the microwave button again to set the microwave power.
- Touch the up/down button or the slider to set the power.
- Set the cooking time. Refer to section Setting the cooking time.
- Toch the start/pause button to start the appliance.
Note:
If you open the door of the appliance during cooking, you must touch the start/pause button to continue the cooking.
USING THE COMBI FUNCTION
The combi function allows you to use the microwave and the oven at the same time. The microwave function ensures quick cooking and because of the oven function your dishes are nicely browned.
For an overview of the available combination menus, refer to section Combi functions.
Note:
Always use the grill rack during the combi function. For the best cooking result place the grill rack on insert level 2.
- Touch the microwave button. The power indicator shows the default microwave power (800 W) and the default cooking time (1 minute) flashes on the clock display.
- Touch the function button to select the desired oven mode. The oven indicator shows the selected mode.
- Touch the up/down button or the slider to select the temperature.
- Set the cooking time. Refer to section Setting the cooking time.
- Touch the microwave button to set the microwave power.
- Touch the up/down button or the slider to set the power.
- Touch the start/pause button to start the appliance.
Note:
You can also select the oven mode first and then select the microwave power.
Note:
If the oven mode does not support the microwave function you will hear a sound signal.
USING THE AUTOMATIC PROGRAMS
When using the automatic programs you only have to select a program and set the weight. The microwave power, the time and the temperature are preset.
For an overview of the available automatic programs, refer to section Automatic programs.
Caution:
Do not preheat the appliance when using automatic programs.
- Touch the automatic-program button. The display shows ‘A’ and the first automatic program number (d01).
- Touch the automatic-program button or the slider to select an automatic program. The display shows the selected program, the temperature and the weight.
- Touch the weight button.
- Touch the up/down button or the slider to select the weight.
- Touch the start/pause button to start the appliance.
When the automatic program finishes, you will hear a sound signal and the appliance goes into standby.
Note:
- Once you selected an automatic program you cannot change it.
- You cannot change the cooking time.
Note:
Some automatic programs use preheating. During preheating the cooking time pauses and the display shows the preheat icon. When preheating is finished, you will hear a sound signal and the pre-heat icon on the display goes off. You can place your dish in the appliance.
Note:
If you open the door of the appliance during cooking, you must touch the start/pause button to continue the cooking.
CHANGING THE TEMPERATURE DURING COOKING
You can change the temperature at any time.
- Touch the clock/temperature button two times.
- Touch the up/down button or the slider to adjust the temperature. The temperature indicator shows the selected temperature.
CHANGING THE POWER SETTING DURING COOKING
You can change the power setting at any time.
- Touch the microwave button.
- Touch the up/down button or the slider to adjust the power. The power indicator shows the selected power.
CHANGING THE COOKING TIME DURING COOKING
For the oven function and the combi function you can change the cooking time at any time.
- Touch the clock/temperature button.
- Touch the up/down button or the slider to adjust the time.
PAUSING THE APPLIANCE
- Push the start/pause button to pause the appliance.
- Push the start/pause button again to start the appliance again.
ACTIVATING AND DEACTIVATING THE CHILD LOCK
When the child lock is activated, you cannot operate the touch buttons.
Activating the child lock
- Touch and hold the timer/child-lock button for 3 seconds to activate the child lock. You will hear a long sound signal and the clock display shows a lock.
Deactivating the child lock
- Touch and hold the timer/child-lock button for 3 seconds to deactivate the child lock. You will hear a long sound signal and the clock display no longer shows a lock.
STOPPING THE APPLIANCE
- Touch the start/pause button to stop the appliance.
Note:
When you are choosing a cooking function, the cancel button can also be used to cancel the function at any time.
Cleaning and maintenance
CLEANING THE APPLIANCE
Warning:
Make sure that the appliance is switched off and cooled down before cleaning.
Caution:
Do not use a pressure cleaner or steam cleaner to clean the appliance.
Caution:
Do not use abrasive cleaning agents or sharp scrapers.
- Clean the inside of the appliance after every use. Use a damp cloth.
Note: You can remove the guide racks to easily clean the inside. Refer to section Removing the guide racks. - In case of heavy dirt, clean the inside of the appliance with warm water and a mild cleaning agent. Thoroughly rinse and dry the inside after cleaning.
- Clean the accessories. Use warm water and a mild cleaning agent. Dry the accessories after cleaning.
- Clean the outside of the appliance. Use a damp cloth or sponge.
- In case of heavy dirt, clean the outside of the appliance with a mild detergent.
- If necessary, you can remove bad smells from the appliance:
- a. Place a cup of water with a few drops of lemon juice in the appliance. Make sure that you also place a (plastic) spoon in the cup to avoid delayed eruptive boiling.
- b. Use the microwave function at the highest power setting for 1 to 2 minutes. Refer to section Using the microwave function.
REMOVING THE GUIDE RACKS
- Remove the clamping bushes (A).
- Remove the guide racks (B).
- After cleaning, install the guide racks again. Refer to section Installing the guide racks.
Extra information
MATERIALS SUITABLE FOR USE IN THE APPLIANCE
| Material | Suitable |
| Aluminium foil | Yes (*) |
| Paper | Yes (**) |
| Cling film | Yes |
| Aluminium tray | No |
| Microwave dishes | Yes |
| Heatproof plastic | Yes |
| Unglazed pottery | No |
| Metal cooking utensils | No |
| Ovenproof glass and ceramics | Yes |
| Normal glass | Yes |
| Metalic twists | No |
| Plate with metalic decoration | No |
| Mercury thermometer | No |
| Closed jar | No (***) |
| Bottle with a narrow neck | No |
| Roasting bags | Yes |
- By covering thinner parts of foods (such as chicken legs), you prevent them from cooking too quickly.
- Use undecorated kitchen paper to cover food and to absorb grease.
- Remove the lid and make sure that the jar is not heated too long. The jar may break.
OVEN MODES
POWER SETTINGS FOR MICROWAVE C
| Microwave power (W) | Application |
| 80 | Softening ice cream. |
| 240 | Softening butter, melting chocolate, defrosting. |
| 400 | Defrosting meat and vegetables. |
| 560 | Cooking rice and soup. |
| 800 | Heating, boiling water, cooking chicken, fish and vegetables and heating drinks. |
COMBI FUNCTIONS
| Microwave function | Microwave power (W) | Standard temperature | Temperature range | Time range |
| Microwave | 800 | – | – | 00:10-30:00 min |
| Microwave + hot air | 320 | 160°C | 50-250°C | 00:01-1:30 hour |
| Microwave + double grill + fan | 320 | 180°C | 50-250°C | 00:01-1:30 hour |
| Microwave + pizza | 320 | 180°C | 50-250°C | 00:01-1:30 hour |
AUTOMATIC PROGRAMS
| Program | Application | Weight (g) |
| d01 (*) | Defrosting meat | 100-1500 |
| d02 (*) | Defrosting poultry | 100-1500 |
| d03 (*) | Defrosting fish | 100-1000 |
| A01 (*) | Popcorn | 100 |
| A02 | Potatoes au gratin | 500 |
| A03 | Cheese cake | – |
| A04 (**) | Quiche lorraine | – |
| A05 | Meatloaf | 500 / 1000 |
| A06 | Cake | – |
| A07 (**) | Flatbread | – |
| A08 (**) | Apple pie | – |
| A09 (**) | Fresh pizza (baking tray) | – |
| A10 | Apple pastry with crumble | – |
- These automatic programs only use the microwave function.
- These automatic programs are preheated for a set time:
- A04: 10 minutes.
- A07 & A09: 8 minutes.
- A08: 7 minutes
Note:
- Only use frozen food stored at -18°C. Make sure that you freeze food in portions and as flat as possible to fasten the defrosting process.
- Remove the packaging and weigh the defrosted food. You need to set the weight for the defrost programs.
- Liquid can be produced during defrosting meat and poultry. Drain the liquid when you turn the food.
- Make sure that the liquid does not come into contact with other food.
- Place the food on the glass baking tray or in a dish that is suitable for a microwave oven.
- After defrosting, leave the food to rest for 10 to 30 minutes to make sure that the complete dish has the same temperature. Large pieces of meat require more time.
Note:
- When you defrost meat or poultry, you will hear a sound signal 3 times that indicates that the food must be turned. Consequently, touch the start/pause button to continue the program.
Troubleshooting
GENERAL TROUBLESHOOTING PROCEDURE
- Try to find a solution for the problem with the help of the troubleshooting table.
- If you cannot find a solution for the problem, contact the Inventum-servicedienst
TROUBLESHOOTING TABLE
| Problem | Possible cause | Possible solution |
|
The appliance does not start. | There is no power supply. | Do a check on the fuse, if necessary replace the fuse. |
| The mains cable is not connected. | Make sure that the mains cable is correctly connected to the mains socket. | |
| The power is interrupted. | Do a check if the power in the kitchen is working. | |
| The appliance does not start and the clock display shows a lock. | The child lock is activated. | Deactivate the child lock. Refer to section Activating and deactivating the child lock. |
| The display shows ‘00:00’. | The power was interrupted. | Set the clock. Refer to section Setting the clock. |
| The microwave function does not start. | The door is not closed correctly. | • Do a check if something blocks the door. If so, remove the blockage. • Close the door correctly. |
|
Heating food with the microwave function takes longer. | The selected microwave power is too low. | Select a higher microwave power. Refer to section Power settings for microwave cooking. |
| The portion of food is larger. | Larger portions of food take longer to heat. Select a longer cooking time. | |
| The food is cold. | Stir the food during the cooking. | |
| A function or setting cannot be selected. | The temperature, power or combined setting is not available for the selected function. | Make sure that you select a setting that is available for the selected function. |
| The lamp does not work. | The lamp is broken. | Replace the lamp. |
Product fiche
TECHNICAL SPECIFICATIONS
| Item | Specification |
| Model | IMC6035RT |
| Voltage | 230 Volt ~50Hz |
| Input power | 2880 Watt |
| Microwave power | 800 Watt |
| Capacity | 72 liter |
| Item | Specification |
| External dimensions (without door handle) | 596 x 595 x 546 mm |
| Net weight | 45 kg |
General terms and conditions of service and warranty
We do not need to remind you of the importance of service. After all, we develop our products to a standard so that you can enjoy them for many years, without any concerns. If, nevertheless, there is a problem, we believe you are entitled to a solution straight away. Hence our products come with an exchange service, on top of the rights and claims you are entitled to by law. By exchanging a product or part, we save you time, effort and costs.
2-year full manufacturer’s warranty
- Customers enjoy a 2-year full manufacturer’s warranty on all Inventum products. Within this period, a faulty product or part will always be exchanged for a new model, free of charge. In order to claim under the 2-year full manufacturer’s warranty, you can either return the product to the shop you bought it from or contact the Inventum costumer service department via the form at ‘https://www.inventum.eu/service-aanvraag‘.
- The 2-year warranty period starts from the date the product is bought.
- In order to claim under the warranty, you must produce a copy of the original receipt.
- The warranty applies only to normal domestic use of Inventum products within the Netherlands.
5-year Inventum warranty
- Inventum offers a 5-year warranty on most large domestic appliances and a selection of small domestic appliances. This 5-year Inventum warranty consists of a 2-year full manufacturer’s warranty, extended by a further 3-year warranty. The only thing you need to do to qualify for the 3-year extended warranty is to register the product within 45 days of purchase. You can read more about registering the product in the following paragraph.
- In accordance with the 5-year Inventum warranty provisions, a faulty product or part will always be exchanged for a new model during the first 2 years under the warranty. During the 3rd to 5th year under the warranty, you will only pay the costs of exchange. The current costs of exchange are listed at ‘https://www.inventum.eu/omruilkosten‘.
- In order to claim under the 5-year Inventum warranty, you can either return the product to the shop you bought it from or contact the Inventum costumer service department via the form at ‘https://www.inventum.eu/service-aanvraag‘.
- The 5-year warranty period starts from the date the product is bought.
- In order to claim under the warranty, you must produce a copy of the original receipt.
- The warranty applies only to normal domestic use of Inventum products within the Netherlands.
Product Registration
- The 3-year extended warranty is easy to obtain, free of charge, by registering the product within 45 days of purchase, via the website
https://www.inventum.eu/garantie-registratie‘. If you did not register the product within 45 days of purchase, you can still do so up to 2 years after the purchase date. However, there will be a charge. The one-off registration charge is 89 for each separate product. Registration is possible only for products that are subject to the 5-year Inventum warranty. Whether the product qualifies for the 5-year Inventum warranty is stated in the product user manual and in the product information sheet, on Inventum’s website. - The warranty period always starts from the date the product is bought. If the product is registered for the extended warranty at a later date, the warranty period still starts from the original date of purchase.
- The 3-year extended warranty can only be applied for if you are in the possession of a copy of the original receipt and the Inventum 5-year warranty certificate.
Large domestic appliances
- Breakdowns or faults in large domestic appliances (separate and built-in white goods) can be registered via the form at ‘https://www.inventum.eu/service-aanvraag‘, by calling the Inventum costumer service department or in the store where you bought the device. The telephone number of the costumer service department can be found at ‘https://www.inventum.eu‘.
- In the event of breakdowns or faults in large domestic appliances, Inventum will have the option to have a service engineer inspect the faulty device onsite at the customer in the Netherlands and to carry out repairs, there and then. The Inventum customer service department can also decide to have the device exchanged.
- If you suffer a breakdown or fault in a large domestic appliance during the first 2 years from the date of purchase, Inventum will not charge any costs for the exchange, call-out or for parts and labour.
- If you registered the product as described before at ‘https://www.inventum.eu/garantie-registratie‘ and you subsequently report a breakdown of a large domestic appliance in the 3rd to 5th year of the date of purchase, the 5- year Inventum warranty applies and the device will be repaired or exchanged, free of charge. In the event of a repair or exchange of the device, you only pay the costs of exchange. The current costs of exchange are listed at ‘https://www.inventum.eu/omruilkosten‘. If you did not register the product, the 3-year extended warranty does not apply.
- When reporting a breakdown or fault, a service engineer will contact the customer within 1 working day in order to make an appointment. When the report is made in a weekend or during a public holiday, this will be the next working day.
- If you report a breakdown or fault via the form at ‘https://www.inventum.eu/service-aanvraag‘, you will be kept informed of the progress via mobile messages and e-mail.
- The warranty period starts from the date the product is bought.
- In order to claim under the warranty, you must produce a copy of the original receipt and the Inventum 5-year warranty certificate.
- The warranty applies only to normal domestic use of Inventum products within the Netherlands.
Breakdowns or faults outside the warranty period
- Breakdowns or faults in small or large domestic appliances outside the warranty period, can be reported to the costumer services department via the form at ‘https://www.inventum.eu/service-aanvraag‘ or by calling the costumer services department.
- The costumer services department may ask you to send the product for inspection or repair. The costs of dispatch will be at your expense.
- The inspection to establish whether repair is possible involves a charge. You need to grant your permission for this, in advance.
- In the event of a large domestic appliance, Inventum, at your request, can send out a service engineer. In that case, you will be charged the call-out costs, as well as parts and labour.
- In the event of an instruction to repair, the repair costs must be paid in advance. In the event of a repair by a service engineer, the costs of the repair must be settled with the engineer onsite, preferably by means of PIN payment.
Warranty exclusions
- The following is excluded from the aforesaid warranties:
- normal wear and tear;
- improper use or misuse;
- insufficient maintenance;
- failure to comply with the operating and maintenance instructions;
- unprofessional installation or repairs by third parties or the customer himself;
- non-original parts used by the customer;
- use for commercial or business purposes;
- removal of the serial number and/or rating label.
- In addition, the warranty does not apply to normal consumer goods, such as:
- dough hooks, baking tins, (carbon) filters, etc.;
- batteries, bulbs, carbon filters, fat filters, etc.;
- external connection cables;
- glass accessories and glass parts such as oven doors;
- and similar items.
- Transport damage not caused by Inventum is also excluded. Therefore, inspect your new device before starting to use it. If you detect any damage, you must report this to the store where you purchased the product within 5 working days, or to the Inventum customer service department via the form at ‘https://www.inventum.eu/service-aanvraag‘. If transport damage is not reported within this period, Inventum does not accept any liability in this respect.
- The following are excluded from warranty and/or replacement: faults, loss of and damage to the device as a result of an event that is normally insured under the home contents insurance.
Important to know
- The replacement or repair of a faulty product, or a part thereof, does not lead to an extension of the original warranty period.
- Parts that have been replaced, packaging material and exchanged devices are taken back by the service engineer and become the property of Inventum.
- If a complaint is unfounded, all costs arising from it will be at the customer’s expense.
- Following expiry of the warranty period, all costs of repair or replacement, including administration costs, dispatch and call-out charges, will be charged to the customer.
- Inventum cannot be held liable for damage as a result of devices built in incorrectly.
- Inventum cannot be held liable for damage caused by external events, unless this liability arises from mandatory statutory provisions.
- These warranty and service provisions are governed by Dutch law. Disputes will be settled exclusively by the competent Dutch court.
























