W50522 Tool Tray Kit
User Guide

Cautionary and Warning Statements
- If spot welding is used to assemble the tool tray, additional safety measures should be followed.
- Welding of galvanized steel should always be done in well-ventilated locations to prevent the inhalations of fumes, due to the potentially toxic nature of lead and zinc. If adequate ventilation cannot be provided, personnel who might be exposed to fumes must be equipped with hose masks or air respirators.
- This kit is designed and intended for educational purposes only.
- Use only under the direct supervision of an adult who has read and understood the instructions provided in this user guide.
- Read warnings on packaging and in the manual carefully.
Materials Included
- 1 piece of sheet metal (2″ x 13″)
- 2 pieces of sheet metal (6-15/16″ x 5-1/4″)
- 1 piece of sheet metal (10-1/2″ x 12″)
Items Required (not included)
- 1/8″ rivets
- Rivet gun
- Drill with a 1/8″ metal bit
- Straight snips
- Metal file
- Hand seamer or metal brake
- Fine-tip marker
- 12″ ruler
Layout and Assembly
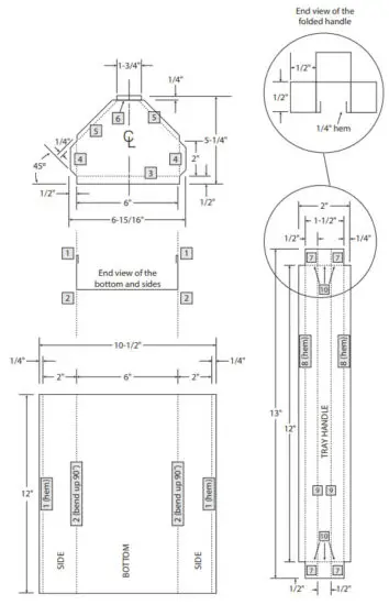
- To make the body, measure and mark all the lines on the 10-1/2″ x 12″ piece of sheet metal using the measurements in the diagram. There is no cutting on this piece. Using a hand seamer or metal brake, bend Line 1 at each side back on itself to create the 1/4″ hems. Bend each Line 2 up 90 degrees.
- To make the ends, measure and mark all lines on each 6-15/16″ x 5-1/4″ piece of sheet metal. Using the center line (CL) as a guide, mark and cut the outlines. Fold Lines 5 and 6 back on themselves 1/4″. Then, bend each Line 3 and then each Line 4 up 90 degrees.
- For the handle, measure and mark all the lines on the 2″ x 13″ piece of sheet metal. Make the 1/2″ cuts (Line 7). Notch each corner 1/2″ x 1/4″ using straight snips. Next, bend each Line 8 back on itself to create a 1/4″ hem. Bend along each Line 9 up 90 degrees. Bend the Line 10 tabs out and bend the middle tab down.
- Assemble the tray bottom and the ends with the end flaps (Lines 3 and 4) toward the outside of the body sides (Line 2). Drill and set two rivets into each of the four flaps to fasten them to the tray body (Figure 1).


- Holding the handle in place, drill and set a rivet in each end to fasten the handle to the ends.
- File off all sharp corners and edges.
Care and Maintenance
- As the material is galvanized steel, it will not be inclined to rust. If you wish to paint the tool tray, first etch it by wiping it with vinegar.
- Use a metal primer as an undercoat and then apply a spray enamel paint.
P.O. Box 1708 • Pittsburg, KS 66762
www.pitsco.com
Toll-Free Orders 800-835-0686
Tool Tray Kit User Guide 15096 V0921



















