THE HOME DEPOT CO1B281 Bed Tiny Home Steel Frame Building Kit



NOT TO SCALE – COLOURS ARE INDICATIVE ONLY. SUBJECT TO CHANGE
Upgrade option available for the Chillout ADU Raise it above ground on Stilts contact us about a flooring system and deck

Web – www.plus1homekits.com
Email – [email protected]
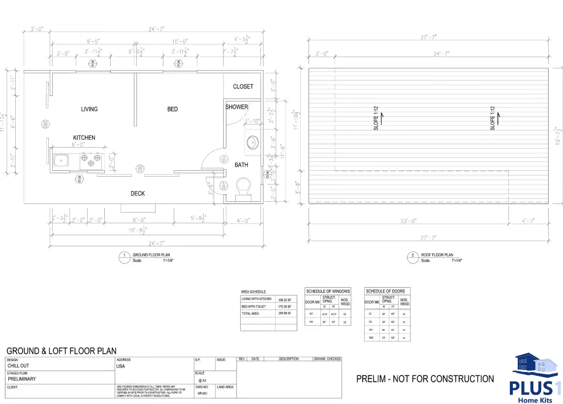
USE FIGURED DIMENSIONS AT ALL TIMES. REFER ANY ENQUIRES TO BUILDING CONTRACTOR. ALL DIMENSIONS TO BE VERIFIED ON SITE PRIOR TO CONSTRUCTION. ALL WORK TO COMPLY WITH LOCAL AUTHORITY REGULATIONS.

















