

Product May Vary Slightly From Pictured.
CAUTION:
Weight on this product should not exceed 350 lbs.
This Product is Distributed Exclusively by
2040 N Alliance Ave, Springfield, MO 65803
Customer Care 1 (800) 375-7520
www.staminaproducts.com
WARNING
Exercise can present a health risk. Consult a physician before beginning any exercise program with this equipment. If you feel faint or dizzy, immediately discontinue use of this equipment. Serious bodily injury can occur if this equipment is not assembled and used correctly. Serious bodily injury can also occur if all instructions are not followed. Keep others and pets away from equipment when in use. Always make sure all bolts and nuts are securely tightened prior to each use. Follow all safety instructions in this manual.
When calling for parts or service, please specify the following numbers :
Model#: 55-5602
S/N: _____________
United States and/or International patents apply and/or are pending. See www.staminaproducts.com for details.
STAMINA PRODUCTS MADE IN CHINA
© 2018 Stamina Products, Inc. 2020, 01

ACCESS YOUR ONLINE WORKOUT VIDEOS!
How to Access Your Videos
- Go to video.staminaproducts.com
- Click REDEEM A CODE
- Enter your product DIVDEO CODE
Your video code is the model number+serial number. This info can be found on the serial decal.
*EXAMPLE ONLY. USE MODEL NUMBER + SERIAL NUMBER FROM THE DECAL ON YOUR PRODUCT.
SAFETY INSTRUCTIONS
![]()
Cancer and Reproductive Harm www.P65Warnings.ca.gov
![]()
Consult your physician before starting this or any exercise program. This is especially important if you are over the age of 35, have never exercised before, are pregnant, or suffer from any health problem. Failure to follow all warnings and instructions could result in serious injury or death.
![]()
To reduce the risk of serious injury, read the following Safety Instructions before using the AeroPilates® Precision Series Cadillac.
- Save these instructions and ensure that other exercisers read this manual prior to using the AeroPilates® Precision Series Cadillac for the first time.
- Read all warnings and cautions posted on the AeroPilates® Precision Series Cadillac.
- The AeroPilates® Precision Series Cadillac should only be used after a thorough review of the Owner’s Manual. Make sure that it is properly assembled and tightened before use.
- We recommend that two people be available for assembly of this product.
- When exercising on this product, do not exercise at an intensity that causes the product itself to move. This could result in damage to your joints and to the product.
- Keep children away from the AeroPilates® Precision Series Cadillac. Do not allow children to use or play on the AeroPilates® Precision Series Cadillac. Keep children and pets away from the AeroPilates® Precision Series Cadillac when it is in use.
- It is recommended that you place this exercise equipment on an equipment mat.
- Set up and operate the AeroPilates® Precision Series Cadillac on a solid level surface. Do not position the AeroPilates® Precision Series Cadillac on loose rugs or uneven surfaces.
- Make sure that adequate space is available for access to and around the AeroPilates® Precision Series Cadillac.
- Before using, inspect the AeroPilates® Precision Series Cadillac for worn or loose components, and tighten or replace any worn or loose components prior to use.
- Consult a physician prior to commencing an exercise program and follow his/her recommendations in developing your fitness program. If at any time during exercise you feel faint, dizzy, or experience pain, stop and consult your physician.
- Always choose the workout which best fits your physical strength and flexibility level. Know your limits and train within them. Always use common sense when exercising.
- Do not wear loose or dangling clothing while using the AeroPilates® Precision Series Cadillac.
- Be careful to maintain your balance while using, mounting, dismounting, or assembling the AeroPilates® Precision Series Cadillac. Loss of balance may result in a fall and bodily injury.
- The AeroPilates® Precision Series Cadillac should not be used by persons weighing over 350 pounds.
- The AeroPilates® Precision Series Cadillac should be used by only one person at a time.
EXTEND YOUR PARTS WARRANTY TO 180 DAYS FROM THE DATE OF PURCHASE, REGISTER YOUR PRODUCT.

NEED HELP?
CONTACT US FIRST
1 (800) 375-7520
[email protected]
Hi! From all of us here at Stamina Products, thank you for your purchase. We know that you have big fitness goals in mind and we are here to help you along. Call us, email us, or send us a message on Facebook. Be sure to contact us if you have any questions on your new product. We look forward to hearing from you!
With your body in mind, Stamina Customer Care
To enact your extended warranty and to help us better serve you, please go online and register your new product.
register.staminaproducts.com
It is quick and easy to register online, but if you’re a little old school or just need a reason to raise that little flag on your mailbox, fill out the info on the last page of this manual and mail it in.

ONLINE
[email protected]
www.staminaproducts.com

TELEPHONE
1 (800) 375-7520

FAX
(417) 889-8064

MAIL
Stamina Products, Inc. ATTN: Customer Care 2040 N Alliance Ave Springfield, MO 65803

facebook.com/StaminaProducts
facebook.com/AeroPilates
CUSTOMER CARE HOURS:
Monday-Thursday, 7:30 AM-5:00 PM, Central Time
Friday, 8:00 AM-3:00 PM, Central Time
BEFORE YOU BEGIN
Thank you for choosing the AeroPilates® Precision Series Cadillac. We take great pride in this quality product and hope it will provide many hours of quality exercise to make you feel better, look better, and enjoy life to its fullest.
It’s a proven fact that a regular exercise program can improve your physical and mental health. Too often, our busy lifestyles limit our time and opportunity to exercise. The AeroPilates® Precision Series Cadillac provides a convenient and simple method to begin your journey of getting your body in shape and achieving a happier and healthier lifestyle.
Before reading further, please review the drawing below and familiarize yourself with the parts that are labeled. Locate the serial decal on the product and write the serial number on the cover of the manual in the space provided. See page 6 for an image of the serial decal. Model number and serial number are required when calling for assistance.
Read this manual carefully before using the AeroPilates® Precision Series Cadillac. Providing you with a quality product is Stamina’s
top priority. However, sometimes there could be a missing or incorrectly sized part. If you have any questions or problems with the parts included with your AeroPilates® Precision Series Cadillac, please do not return the product. Contact us FIRST!
If a part is missing or defective, please contact Customer Care for assistance. Call us toll free at 1-800-375-7520 (in the U.S.) or live chat on staminaproducts.com. Our Customer Care Staff is available to assist you from 7:30 A.M. to 5:00 P.M. (Central Time) Monday through Thursday and 8:00 A.M. to 3:00 P.M. (Central Time) on Friday.
Be sure to have the name and model number of the product available when you contact us.
THE FOLLOWING TOOLS ARE INCLUDED FOR ASSEMBLY :
![]()
Combination Wrench
![]()
Allen Wrench (4mm)
![]()
Allen Wrench (6mm)
EQUIPMENT WARNING, CAUTION & NOTICE LABELS
This chart is provided to help identify the warning, caution, and notice labels on the AeroPilates® Precision Series Cadillac. Please take a moment to familiarize yourself with all of the warning, caution, and notice labels.
CAUTION LABEL(187)
CAUTION
For consumer use only. Failure to follow all warnings and instructions could result in injury or property damage. Before assembling or using this product, read and follow the Owner’s Manual and all other warnings and instructions that accompany this product. Replace this caution label if damaged, illegible, or removed. Keep others including children & pets away from equipment when in use. Consult your physician before starting this or any exercise program. This is especially important if you are over the age of 35 or have any pre-existing health condition. Always make sure all nuts and bolts are securely tightened before using this product. This product should not be used by person weighing more than 250 lbs. unless otherwise stated in your owner’s Manual.
PULL-THRU BAR CAUTION DECAL(188)![]()
CAUTION
Always secure safety chain prior to using the push-thru bar.
SERIAL DECAL(189)
To best serve you, our Customer Care Representatives will need your serial number. For quick access, write in your serial number on the cover of the manual.
HARDWARE IDENTIFICATION CHART
This chart is provided to help identify the hardware used in the assembly process. Place the washers or the ends of the bolts or screws on the circles to check for the correct diameter. Use the small scale to check the length of the bolts and screws.

NOTICE: The length of all bolts and screws, except those with flat heads, is measured from below the head to the end of the bolt or screw. Flat head bolts and screws are measured from the top of the head to the end of the bolt or screw.
After unpacking the unit, open the hardware bag and make sure that you have all the following items. Some hardware may be already attached to the part.
| Icon | Part Number | Description | Qty |
![]() | 176 | Bolt, Flat Socket Head (M6 x 1 x 20mm) | 8 |
![]() | 177 | Bolt, Button Head (M6 x 1 x 15mm) | 16 |
| 179 | Bolt, Button Head (M8 x 1.25 x 20mm) | 4 | |
![]() | 180 | Bolt, Button Head (M8 x 1.25 x 65mm) | 8 |
![]() | 181 | Arc Washer (M6) | 16 |
![]() | 183 | Washer (M8) | 12 |
![]() | 184 | Nylock Nut (M8 x 1.25) | 8 |
ASSEMBLY INSTRUCTIONS
Place all parts from the box in a cleared area and position them on the floor in front of you. Remove all packing materials from your area and place them back into the box. Do not dispose of the packing materials until assembly is completed. Read each step carefully before beginning. If you are missing a part, please go to staminaproducts.com under the Customer Care section and order the part needed, e-mail us at [email protected], or call us toll free at 1-800-375-7520 (in the U.S.). Our Customer Care Staff is available to assist you from 7:30 A.M. to 5:00 P.M. (Central Time) Monday through Thursday and 8:00 A.M. to 3:00 P.M. (Central Time) on Friday.
Some product parts are fit tested at the factory to ensure proper fit and alignment. Marks in the paint may be noticeable, but are not an indication of damage.
NOTE: The AeroPilates® Precision Series Reformer 610 (55-5610) is not included with the AeroPilates® Precision Series Cadillac (55-5602).
STEP 1
Remove the FOOTBAR(32) and PULLEY RISERS(16) from the AeroPilates® Precision Series Reformer 610 by unscrewing LOCKING KNOBS(41). Pull to remove the FOAM PADS(27).
STEP 2
Refer to the illustration. Remove the four BUTTON HEAD BOLTS(M8x1.25x15mm)(77) and WASHERS (M8)(86) from the REAR LEG(3) on the outside on both sides.
NOTE: DO NOT SECURELY TIGHTEN ALL BOLTS UNTIL STEP 5.
STEP 3
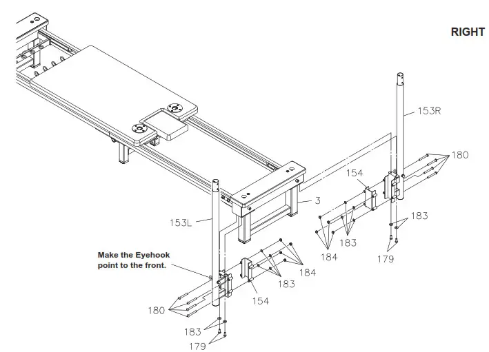
Make the EYEHOOK(171) point to the front. Attach the RIGHT LOWER UPRIGHT(153R) to the REAR LEG(3) with BUTTON HEAD BOLTS(M8x1.25x20mm)(179) and WASHERS(M8)(183). Attach the FIXING BRACKET(154) over the REAR LEG(3) and secure to the RIGHT LOWER UPRIGHT(153R) with BUTTON HEAD BOLTS(M8x1.25x65mm)(180), WASHERS(M8)(183), and NYLOCK NUTS(M8x1.25) (184). see inset. Repeat on other side.
STEP 4
Make the EYEHOOKS(171) point to the front. Insert the UPRIGHTS(152) onto the LOWER UPRIGHTS (153) and secure with BUTTON HEAD BOLTS(M6x1x15mm)(177) and ARC WASHERS(M6)(181).
STEP 5
Insert the TOP BEAM(151) onto the UPRIGHTS(152) and secure with BUTTON HEAD BOLTS (M6x1x15mm)(177) and ARC WASHERS(M6)(181).
Securely tighten the four BUTTON HEAD BOLTS(M8x1.25x20mm)(179) from STEP 3. Then securely tighten all of the bolts from STEP 3 to STEP 5.

STEP 6
NOTE:
- There are four adjustment holes in each UPRIGHT(152) that allow you to attach the PUSH-THRU BAR(155) to four different heights.
- Push in the button on the “T” end of the LOCKING PIN(167) see inset to release the Steel Ball on the other end of the pin. Then you can insert the LOCKING PIN(167) into the adjustment hole. Push the button to remove the pin.
Refer to illustration A. Bolt the PUSH-THRU BARS(155), CROSSING BAR(156), and HANDLEBAR(157) together with FLAT SOCKET HEAD BOLTS(M6x1x20mm)(176). Attach the PUSH-THRU BAR ASSEMBLY (155) to one of the adjustment holes in the UPRIGHTS(152) with the LOCKING PINS(167). Always make sure SAFETY CHAIN(175) is connected with the LINKS(174) when the PUSH-THRU BAR(155) is in use.
STEP 7
NOTE: Always use SECURING STRAP(164) to keep the PUSH-THRU BAR(155) in a secure position when not in use.
Attach the SECURING STRAP(164) onto the center EYEHOOK(171) with the LINK(174) on the top of the TOP BEAM(151). Slide the PLATFORM(17) to the back end. Carefully place the CADILLAC CUSHION(158) onto the Aluminum Rails of AeroPilates® Precision Series Reformer 610.
OPERATIONAL INSTRUCTIONS
TO USE THE ACCESSORIES:
NOTE: Prior to adding the PUSH-THRU SPRING(169) to the PUSH-THRU BAR(155) make sure the SAFETY CHAIN(175) is at a length that allows enough clearance to get under the PUSH-THRU BAR(155).
PUSH-THRU BAR
When doing exercises that require the spring resistance to come from above the bar, attach the PUSH-THRU SPRING(169) to the hook on the upper side of the PUSH-THRU BAR(155) with the DOUBLE ENDED CLIP (173). Attach the other end of the PUSH-THRU SPRING(169) to one of the eyehooks on the UPRIGHT(152) with the LINK(174). When doing exercises that require the spring resistance to come from below the bar, attach the PUSH-THRU SPRING(169) to the hook on the underside of the PUSH-THRU BAR(155) with the DOUBLE ENDED CLIP(173). Attach the other end of the PUSH-THRU SPRING(169) to one of the eyehooks on the LOWER UPRIGHT(153) with the LINK(174). Be sure that the SAFETY CHAIN(175) is always connected to the PUSH-THRU BAR(155) when in use.
![]()
When using the PUSH-THRU SPRING(169) from below, you must hook the spring onto the LOWER UPRIGHT(153) with the LINK(174) and make sure the SAFETY CHAIN(175) is connected. Ensure that the SPRING SLEEVE(166) which covers the PUSH-THRU SPRING(169) is moved over the lower part of the spring to avoid pulling the user’s hair or clothing.
SAFETY CHAIN
The SAFETY CHAIN(175) must be used as follows: When using the PUSH-THRU BAR(155) with spring attached from below to do arm or leg exercises, the chain must be attached to the hook on the upper side of the bar on the same side as the spring and to an EYEHOOK(171).
ROLL-DOWN BAR
The ROLL-DOWN BAR(160) attaches via the ARM SPRINGS(170) to the eyehooks on the TOP BEAM(151) between the two UPRIGHTS(152) with the LINKS(174). Attach the springs to the ROLLDOWN BAR(160) with the DOUBLE ENDED CLIPS(173). Ensure the links and clips are completely closed and secure. CAUTION: ROLL-DOWN BAR(160) can release at high velocity due to spring tension. Make sure a secure grip is used at all times.
ARM EXERCISES
Attach ARM SPRINGS(170) to eyehooks at desired height with the LINKS(174). Attach the other ends of the springs to the HAND/FOOT STRAPS(165) with the DOUBLE ENDED CLIPS(173). Ensure the links and clips are completely closed and secured.
LEG EXERCISES
Attach LEG SPRINGS(168) to eyehooks at desired height with the LINKS(174). Attach the other ends of the springs to the HAND/FOOT STRAPS(165) with the DOUBLE ENDED CLIPS(173). Ensure the links and clips are completely closed and secured.
PRECISION SERIES CADILLAC
Leg Springs
Circles – Lie on back with head near tower, approximately arms length away, hands holding tower, or arms by side holding Cadillac cushion. Feet in straps of leg springs. Begin with legs near a 45 degree angle and turned out at hip joint.
Inhale, moving from hip, bring feet up towards ceiling, then open legs out to sides Exhale, circle legs around to starting position. Complete 5-10 repetitions and then reverse circles.
Side Lying Leg Lifts – Lie on one side with head towards tower. Bottom arm holding tower or supporting head and neck. Bottom leg straight or bent slightly to assist with balance and stability. Begin with top leg foot in strap of leg spring and leg straight in line with the body.
Inhale to point foot and lift leg slightly higher than hip height Exhale flex foot and lower leg back to starting position Complete 5-10 repetitions on both sides.
Push Through Bar with Springs from Below
Adjust push thru bar on tower to best fit your height. Attach safety chain to one eye hook on top and spring from the bottom to bottom eye hook.
Chest Press – Lie under bar with shoulders approximately under bar. Knees bent, feet flat on cushion. Hands on bar with elbows out to sides. Inhale to prepare Exhale to press the bar away Inhale to control the bar back to starting position Exercise can be repeated with elbows by sides/ribcage Complete 5-10 repetitions.
Leg Press – Lie under bar with one foot, toes wrapped around bar in parallel position. Other leg can be straight or bent with the foot flat on cushion. Inhale to press bar away, straightening leg Exhale to flex anke and stretch calf Inhale to point foot Exhale to bend knee and return to starting position Complete 5-10 repetitions on each leg
Push Through Bar Springs from Above
Attach 1 or 2 arm springs to the push through bar top eye hooks
Leg Springs- Lie on back with head towards tower. Hands holding bar overhead. Knees bent, feet on cushion. Inhale to bring bar in front of face and nod the head Exhale, rolling up to sitting position and lift legs, straightening knees to the teaser V Inhale, begin roll back down Exhale, bend knees, continue to roll down, placing feet back on cushion and pressing bar overhead Complete 5-10 repetitions.
Swan Dive – Begin on stomach, head towards tower, arms holding bar overhead, legs wider than hips and turned out. Inhale to lift into back extension off the cushion keeping arms straight and abs engaged Exhale to lower back to starting position Complete 5-10 repetitions then finish by carefully returning bar back up and pressing back into a shell stretch
Arm Springs
Bicep Curls – Standing with good posture on Cadillac cushion facing tower. Springs attached to eye hooks that most closely line up with height of shoulders. Arms lifted up in line with shoulders. Inhale to prepare Exhale to flex elbow and curl biceps Inhale to return to starting position Complete 5-10 repetitions.
Salute – Stand facing away from tower, slight lean forward from hips, hands at forehead with springs passing over the shoulders Inhale to prepare Exhale to lengthen elbows and press hands away from forehead Inhale to bring elbows to starting position Complete 5-10 repetitions.
Roll Down Bar
Roll Down – Seated on Cadillac cushion facing tower, hands on roll down bar at outside of springs. Feet with toes resting up against tower uprights Inhale to prepare Exhale to press gently down on bar and begin to roll down slowly, articulating each vertebrae onto the cushion until head rests on cushion. Inhale to nod the head and begin to slowly roll back up Exhale to continue to roll the spine off the cushion, returning to starting position Complete 5-10 repetitions.
Port de bras Prep – Seated on Cadillac cushion facing tower, feet with toes resting against tower uprights. One hand placed at center of bar, the other hand underneath bar.
Inhale to rotate spine to one side Exhale keeping the slight rotation and roll down to the cushion articulating the spine Inhale to nod head Exhale to roll back up maintaining the slight rotation and return to starting position Complete 5-10 repetitions on each side.
STORAGE
- To store the AeroPilates® Precision Series Cadillac, simply keep it in a clean dry place.
- It is recommended that two people be available to move the AeroPilates® Precision Series Cadillac and AeroPilates® Precision Series Reformer 610 (55-5610).
- To move the AeroPilates® Precision Series Cadillac and AeroPilates® Precision Series
Reformer 610 (55-5610): First, attach one of the TENSION SPRINGS(55, 56) to the EYEHOOK(45) to prevent the PLATFORM(17) from moving. Second, grasp the REAR BRACE(5) and lift the unit from the back. Third, roll the AeroPilates® Precision Series Reformer 610 (55-5610) on the MOVING WHEELS(22) that are attached to the FRONT LEG(1).
MAINTENANCE
The safety and integrity designed into the AeroPilates® Precision Series Cadillac can only be maintained when the AeroPilates® Precision Series Cadillac is regularly examined for damage and wear. Special attention should be given to the following:
- It is the sole responsibility of the user/owner to ensure that regular maintenance is performed.
- Worn or damaged components must be replaced immediately or the AeroPilates® Precision Series Cadillac removed from service until repair is made.
- Verify that the CAUTION LABEL(187) is present and legible. Replace the CAUTION LABEL(187) if it is missing or damaged.
- Check the HAND/FOOT STRAPS(165) for damage. Replace damaged parts.
- Check the FOAM GRIP(163). Replace if damaged or worn.
- Check the CADILLAC CUSHION(158) and replace if it is damaged or worn.
- Only Stamina Products supplied components should be used to maintain/repair the AeroPilates® Precision Series Cadillac.
- Keep your AeroPilates® Precision Series Cadillac clean by wiping with an absorbent cloth after use.
CONDITIONING GUIDELINES
How you begin your exercise program depends on your physical condition. If you have been inactive for several years or are severely overweight, start slowly and increase your workout time gradually. Increase your workout intensity gradually by monitoring your heart rate while you exercise.
Remember to follow these essentials:
- Have your doctor review your training and diet programs.
- Begin your training program slowly with realistic goals that have been set by you and your physician.
- Warm up before you exercise and cool down after you work out.
- jTake your pulse periodically during your workout and strive to stay within a range of 60% (lower intensity) to 90% (higher intensity) of your maximum heart rate zone. Start at the lower intensity, and build up to higher intensity as you become more aerobically fit.
- If you feel dizzy or lightheaded you should slow down or stop exercising.
Initially you may only be able to exercise within your target zone for a few minutes; however, your aerobic capacity will improve over the next six to eight weeks. It is important to pace yourself while you exercise so you don’t tire too quickly.
To determine if you are working out at the correct intensity, use a heart rate monitor or use the table below. For effective aerobic exercise, your heart rate should be maintained at a level between 60% and 90% of your maximum heart rate. If just starting an exercise program, work out at the low end of your target heart rate zone. As your aerobic capacity improves, gradually increase the intensity of your workout by increasing your heart rate.
Measure your heart rate periodically during your workout by stopping the exercise but continuing to move your legs or walk around. Place two or three fingers on your wrist and take a six second heartbeat count. Multiply the results by ten to find your heart rate. For example, if your six second heartbeat count is 14, your heart rate is 140 beats per minute. A six second count is used because your heart rate will drop rapidly when you stop exercising. Adjust the intensity of your exercise until your heart rate is at the proper level.
Target Heart Rate Zone Estimated by Age*
| Age | Target Heart Rate Zone (55%-90% of Maximum Heart Rate) | Average Maximum Heart Rate 100% |
| 20 years | 110-180 beats per minute | 200 beats per minute |
| 25 years | 107-175 beats per minute | 195 beats per minute |
| 30 years | 105-171 beats per minute | 190 beats per minute |
| 35 years | 102-166 beats per minute | 185 beats per minute |
| 40 years | 99-162 beats per minute | 180 beats per minute |
| 45 years | 97-157 beats per minute | 175 beats per minute |
| 50 years | 94-153 beats per minute | 170 beats per minute |
| 55 years | 91-148 beats per minute | 165 beats per minute |
| 60 years | 88-144 beats per minute | 160 beats per minute |
| 65 years | 85-139 beats per minute | 155 beats per minute |
| 70 years | 83-135 beats per minute | 150 beats per minute |
* For cardiorespiratory training benefits, the American College of Sports Medicine recommends working out within a heart rate range of 55% to 90% of maximum heart rate. To predict the maximum heart rate, the following formula was used: 220 – Age = predicted maximum heart rate
WARM-UP and COOL-DOWN
Warm-Up The purpose of warming up is to prepare your body for exercise and to minimize injuries. Warm up for two to five minutes before strength training or aerobic exercising. Perform activities that raise your heart rate and warm the working muscles. Activities may include brisk walking, jogging, jumping jacks, jump rope, and running in place.
Stretching Stretching while your muscles are warm after a proper warm-up and again after your strength or aerobic training session is very important. Muscles stretch more easily at these times because of their elevated temperature, which greatly reduces the risk of injury. Stretches should be held for 15 to 30 seconds. Do not bounce.
Suggested Stretching Exercises

Lower Body Stretch
Place feet shoulder-width apart and lean forward. Keep this position for 30 seconds using the body as a natural weight to stretch the backs of the legs. DO NOT BOUNCE! When the pull on the back of the legs lessens, gradually try a lower position.

Bent Torso Pulls
While sitting on the floor, have legs apart, one leg straight and one knee bent. Pull the chest down to touch the thigh on the leg that is bent, and twist at the waist. Hold this position at least 10 seconds. Repeat 10 times on each side.

Floor Stretch
While sitting on the floor, open the legs as wide as possible. Stretch the upper body toward the knee on the right leg by using your arms to pull your chest to your thighs. Hold this stretch 10 to 30 seconds. DO NOT BOUNCE! Do this stretch 10 times. Repeat the stretch with the left leg.

Bent Over Leg Stretch
Stand with feet shoulderwidth apart and lean forward as illustrated. Using the arms, gently pull the upper body towards the right leg. Let the head hang down. DO NOT BOUNCE! Hold the position a minimum of 10 seconds. Repeat pulling the upper body to the left leg. Do this stretch several times slowly.
Remember to always check with your physician before starting any exercise program.
Cool-Down The purpose of cooling down is to return the body to its normal, or near normal, resting state at the end of each exercise session. A proper cool-down slowly lowers your heart rate and allows blood to return to the heart. Your cool-down should include the stretches listed above and should be completed after each strength training session.
PRODUCT PARTS DRAWING

PARTS LIST
| PART# | PART NAME | QTY |
| 151 | Top Beam | 1 |
| 152 | Upright | 2 |
| 153 | Lower Upright | 2 |
| 154 | Fixing Bracket | 2 |
| 155 | Push-Thru Bar | 2 |
| 156 | Crossing Bar | 1 |
| 157 | Handlebar | 1 |
| 158 | Cadillac Cushion | 1 |
| 159 | Wooden Guide | 2 |
| 160 | Roll-Down Bar | 1 |
| 161 | Plastic Bushing | 4 |
| 162 | Round Plug (Ø38.1mm) | 2 |
| 163 | Foam Grip (Ø36 x Ø43 x 472mm) | 1 |
| 164 | Securing Strap | 1 |
| 165 | Hand/Foot Strap | 2 |
| 166 | Spring Sleeve | 1 |
| 167 | Locking Pin | 2 |
| 168 | Leg Spring (Ø2.3 x Ø29.2 x 610mm) | 2 |
| 169 | Push-Thru Spring (Ø2.67 x Ø29 x 500mm) | 1 |
| 170 | Arm Spring (Ø2.0 x Ø23 x 477mm) | 2 |
| 171 | Eyehook (Ø6 x Ø26 x 80mm, M6 x 1 x 54mm) | 19 |
| 172 | Short Eyehook (Ø6 x Ø26 x 74mm, M6 x 1 x 47mm) | 2 |
| 173 | Double Ended Clip | 5 |
| 174 | Link | 8 |
| 175 | Safety Chain (Ø7 x 27mm x 52mm x 24 links) | 1 |
| 176 | Bolt, Flat Socket Head (M6 x 1 x 20mm, with threadlocker) | 8 |
| 177 | Bolt, Button Head (M6 x 1 x 15mm, with threadlocker) | 16 |
| 178 | Bolt, Button Head (M6 x 1 x 20mm) | 8 |
| 179 | Bolt, Button Head (M8 x 1.25 x 20mm) | 4 |
| 180 | Bolt, Button Head (M8 x 1.25 x 65mm) | 8 |
| 181 | Arc Washer (M6) | 58 |
| 182 | Washer (M6) | 8 |
| 183 | Washer (M8) | 12 |
| 184 | Nylock Nut (M8 x 1.25) | 8 |
| 185 | Nut (M6 x 1) | 21 |
| 186 | Acorn Nut (M6 x 1) | 21 |
| 187 | Caution Label | 1 |
| 188 | Pull-Thru Bar Caution Decal | 1 |
| 189 | Serial Decal | 1 |
| 190 | Combination Wrench | 1 |
| 191 | Allen Wrench(4mm) | 1 |
| 192 | Allen Wrench(6mm) | 1 |
| 193 | Manual | 1 |
| 194 | Workout Chart | 1 |
| 195 | AeroPilates® Primer Plus (DVD) | 1 |
LIMITED WARRANTY
MODEL 55-5602
WARRANTY
Stamina Products, Inc. (“Stamina”) warrants to the original purchaser that this product will be free from defects in materials and workmanship that arise under normal use, service, proper assembly and proper operation in accordance with product warnings/instructions for a period of 90 days on the parts and five years on the frame from the date of the original purchase from an authorized retailer. THIS WARRANTY SHALL NOT APPLY TO ANY PRODUCT WHICH HAS BEEN SUBJECT TO ABUSE, MISUSE, ALTERATION OF ANY KIND OR TO ANY DEFECT OR CHANGE CAUSED BY IMPROPER ASSEMBLY, REPAIR, REPLACEMENT, SUBSTITUTION OR USE WITH PARTS NOT PROVIDED BY STAMINA.
To implement this limited warranty, send a written notice stating your name, date, and place of purchase and a brief description of the defect along with your receipt to Stamina Products, Inc. 2040 N Alliance Ave, Springfield, Missouri, USA, MO 65803, or email us at [email protected], or call us at 1-800-375-7520. If the defect is covered under this limited warranty, you will be requested to return the product or part to us for free repair or replacement at our option.
NO ACTION FOR BREACH OF THIS LIMITED WARRANTY MAY BE COMMENCED MORE THAN ONE (1) YEAR AFTER THE DATE THE ALLEGED BREACH WAS OR SHOULD HAVE BEEN DISCOVERED. NO ACTION FOR BREACH OF ANY IMPLIED WARRANTY (INCLUDING MERCHANTABILITY AND FITNESS FOR A PARTICULAR PURPOSE) MAY BE COMMENCED MORE THAN ONE (1) YEAR AFTER DELIVERY OF THE PRODUCT TO THE PURCHASER. These warranties are not transferable. IF ANY PART OF THE PRODUCT IS NOT IN COMPLIANCE WITH THIS LIMITED WARRANTY OR ANY IMPLIED WARRANTY, THE REMEDY OF REPAIR OR REPLACEMENT IS THE EXCLUSIVE REMEDY. If any claim is made under this limited warranty or any implied warranty, Stamina reserves the right to require the product to be returned for inspection, at the purchaser’s expense, to Stamina’s premises in Springfield, Missouri. Return of the enclosed warranty registration card is not required for warranty coverage, but is merely a way of establishing the date and place of purchase.
Stamina SHALL NOT BE LIABLE FOR THE LOSS OF USE OF ANY PRODUCT, LOSS OF TIME, INCONVENIENCE, COMMERCIAL LOSS OR ANY OTHER INDIRECT, CONSEQUENTIAL, SPECIAL OR INCIDENTAL DAMAGES DUE TO BREACH OF THE ABOVE WARRANTY OR ANY IMPLIED WARRANTY.
THIS LIMITED WARRANTY IS THE ONLY EXPRESS WARRANTY. NO ORAL OR WRITTEN INFORMATION GIVEN BY STAMINA, ITS AGENTS OR EMPLOYEES, SHALL CREATE A WARRANTY OR IN ANY WAY INCREASE THE SCOPE OF THIS WARRANTY. This warranty gives you specific legal rights, and you may also have other legal rights which vary from state to state. ANY OTHER RIGHT WHICH YOU MAY HAVE, INCLUDING ANY IMPLIED WARRANTY OF MERCHANTABILITY OR FITNESS FOR A PARTICULAR PURPOSE, IS LIMITED IN DURATION TO THE DURATION OF THIS WARRANTY.
The laws in some states affect the disclaimer or limitation of implied warranties and consequential and incidental damages. If any such law is found applicable, the foregoing disclaimers and limitations of and on implied warranties and consequential and incidental damages shall be deemed to be modified to the extent necessary to comply with applicable law.
TO CONTACT CUSTOMER CARE
For your convenience, Stamina’s customer care representatives can be reached by email at customer.care@staminaproducts. com or by phone at 1-800-375-7520 (in the U.S.). Our customer care representatives are available Monday through Thursday from 7:30 a.m. until 5:00 p.m., and Friday 8:00 a.m. until 3 p.m. Central Time.

ONLINE
CUSTOMER CARE
[email protected]
www.staminaproducts.com

TELEPHONE
CUSTOMER CARE
Tel: 1 (800) 375-7520

FAX
CUSTOMER CARE
Fax: (417) 889-8064

MAIL
STAMINA PRODUCTS, INC.
ATTN: Customer Care
2040 N Alliance Ave, Springfield, MO 65803
Would you like to recieve email information or special offers from Stamina Products? Register at contact.staminaproducts.com
TO REGISTER YOUR PRODUCT
To enact your warranty, please register your product by going to register.staminaproducts.com. Please have your product model number (printed on the cover of this owner’s manual) and the serial number (printed on the black and white sticker on your product) ready.
If you don’t have internet access, you can call customer care at 1-800-375-7520, or fill out and mail the product registration form below to Stamina Products, Inc.; 2040 N Alliance Ave, Springfield, MO 65803.
PRODUCT REGISTRATION FORM
Stamina Products, Inc.
2040 N Alliance Ave, Springfield, MO 65803
Model Number: …………………………………………………………………………..Serial Number: …………………………………………………………………………………
Product Name:…………………………………………………………………………………………………………………………………………………………………………………………
Place Purchased: ……………………………………………………………………………………………………………………………………………………………………………………..
Date of Purchase: ……………………………………………………………………….Purchase Price: ………………………………………………………………………………..
First Name: ………………………………………………………………………………..Last Name: ………………………………………………………………………………………
City: …………………………………………………………………..State: ……………………………………………………………Zip Code: ………………………………………….
Email Address: ……………………………………………………………………………Phone #: ( ) …………………………………………………………………………..
Would you like to receive email information or special offers from Stamina Products?* ____Yes ____No *If yes, be sure your email address is included above.
Detach and Mail or Fax the Form Above
TO ORDER PARTS
If there are missing or damaged parts, you can go to parts.staminaproducts.com and order those parts. If you have questions, please contact customer care. Do not return the product. To order parts by mail, fill out the sheet below and fax it to 417-889-8064. The part will be mailed to your address.
Detach and Mail or Fax the Form Below
PARTS ORDER FORM
Stamina Products, Inc.
2040 N Alliance Ave, Springfield, MO 65803
Mr./Ms:……………………………………………………………………………………………………………………………………………………………………………………………………
Address: …………………………………. ………………………………………………………………………………..Apt. #:………………………………………………………………..
City: …………………………………………………………State: ……………………………………………………….Zip Code: ………………………………………………………….
IMPORTANT : We require your phone number to process the order!
Phone #: ( ) ……………………………………………………………………..
Work Phone #: ( ) …………………………………………………………..
Date of Purchase: ……………………………………………………………Model #: ………………………………………………………………………………………………………
Purchased From: ……………………………………………………………………………………………………………………………………………………………………………………
IMPORTANT: Before filling out the portion below, make sure you have the correct information. Refer to the parts list to make sure you’re ordering the right parts!
PART# | DESCRIPTION | QUANTITY |
| EXAMPLE: 1 | Rear Unit Assembly | 1 |
References
Customer Care - Exercise Equipment | Stamina Products
Customer Care - Exercise Equipment | Stamina Products
Customer Care - Exercise Equipment | Stamina Products
Quality Home Fitness & Exercise Equipment | Stamina Products
P65Warnings.ca.gov
Quality Home Fitness & Exercise Equipment | Stamina Products


























