SaunaFin HEMLOCK Sauna Liner Kit

Instruction
HEMLOCK
SAUNA LINER KIT INSTALLATION
** BEFORE YOU BEGIN: READ ALL THE WRITTEN AND DRAWN INSTRUCTIONS AND REVIEW THE MATERIAL LIST ***
Remember the old carpenters proverb: “Measure Twice, Cut Once.
*** SPECIAL NOTE FOR CONTRACTORS: ***
We realize you already possess the skills to build the sauna and you may choose not to read these instructions. At the very least, make sure you carefully review the material list before you begin cutting.
Material is supplied in specified lengths for particular uses.
Confirm hemlock direction on ceiling
The kit has been counted twice before it leaves our factory. 95% of the time, “shortages” are a result of certain pieces being cut incorrectly, leaving a shortfall elsewhere.
GRADING AND SELECTION:
You may find certain boards that you do not like. Pre-sort your sauna kit to find this material and make an effort to “hide” these boards. Install these boards behind the bench where they will not be visible. In the case of front wall boards, cut them so that you can hide less attractive boards behind the heater.
The hemlock is finished on two sides to give you more flexibility in selecting the face you prefer.
When assembling benches, select nicer side to be bench top.
YOUR SAUNA DETAILS
Material List itemizes lengths provided and for which wall (based on quotation and order placed).
Do NOT reassign or reallocate material without first speaking with us.
The material supplied for ceiling is clearly indicated.
If the material delivered does not correspond to your sauna design or layout, contact us before you install. Do not cut down boards intended for something else. We will not
provide additional material in these circumstances.
FRAMING:
This instruction manual has no details for general framing. It is assumed that you possess basic carpentry skills to install this kit and have the know-how to frame the walls and hang a door.
The instructions note blocking as required to support the heater.
Use 2″ x 4″ kiln-dried SPF (spruce, pine, fir) studs to frame the walls and ceiling.
Unless otherwise specified, kits up to 8′ x 8′ are lined horizontally (see drawing #1).
Kits over 8’x 8′ are usually lined vertically and should be strapped horizontally (see drawing #2).
Standard framed height is 83-1/2″. (Check material list to confirm your sauna height as ordered.)
Provide extra blocking for heater mounting brackets. (See drawing #4).
See Material list for your door rough opening.
Frame the walls at 16″ on centre. If the walls are already framed and you wish to change the direction, they should be strapped using 1″ x 2″ spruce strapping at 16″ on centre.
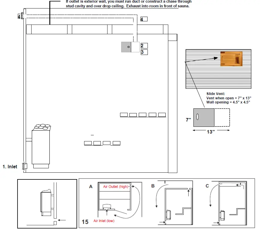
VENTING: (see drawings #6 & #7)
Sauna venting does not mean exhaust venting as you would for a shower. The purpose of venting is to optimize sauna function. To pull hot air from heater and drag it to the far corner.
Inlet and outlet vents should be on opposite sides. They should not be on same wall.
Sauna venting goes from inside house to inside house. Do not vent to the outdoors.
(Outdoor saunas present an enigma. In general, for outdoors, you have access to all walls after the fact. You could choose not to install vents initially, with the knowledge that it may be required later).
One outlet slide vent cover is included with kit.
Inlet vent is typically a series of holes drilled through hemlock lining. The heater conceals the holes.
(An optional hemlock grill may be provided if ordered.) If there is gap under door and heater is close, the door gap can act as the inlet vent.
Exterior grill not included. Use painted aluminum (or other) to match exterior decor.
Our outlet vent requires 4.5″ x 4.5″ opening. Most use spruce studs to box opening. Inlet area should be 19 square inches.
Sometimes, what is outside the sauna can limit the ability to easily install simple vents through the wall. In such cases, it may be possible to duct over drop ceiling and vent to an open indoor area.
IS VENT REQUIRED?
The short answer is: We cannot say for sure until sauna is operational. And at that point it may be not be possible to add. Our Rule of Thumb: If venting access is “now or never”, now is better.
- Poor ventilation can lead to:
- Insufficient heat at benches further from heater.
- Sauna heater integral high limit switch “tripping” because heat is trapped.
DOOR: (See drawing #8)9)
See Your Material List to Verify “YOUR” Door selection and Rough Opening.
Doors to NOT come in Hemlock. We offer frameless glass door with cedar veneer jambs or various styles of cedar doors
Frameless Glass door rough opening is 27-1/2″ x 76-1/2 to finished floor.
Allows for the 74″ jamb and the 1-1/2″ spacer with gap to install below jamb threshold. (Door = 24″ x 72″)
Cedar Framed Insulated Glass door rough opening is 26″ x 76-1/2″ to finished floor. (Door = 24″ x 74″) There is gap under door to allow for a back-up air inlet.
WIRING:
See electrical wiring drawings packed with selected heater/control.
The Wiring Should Be Done Only by A Qualified Electrician.
Electrical rough-in wiring should be done at this time. Wire size and wire pathway is dependent on heater model and size.
If using an outside control (not built into the heater), the thermostat should be installed at this time. Install on the wall outside the sauna with the sensing bulb located as indicated in heater instruction manual.
Tylo Sport & Saaku: Supply wire to heater. Controls on heater. Sensor built into heater.
Tylo Plus or Combi with Pure or Elite control: Supply wire to heater.
Sensor from heater to 1” down from ceiling, 3″ from the edge of the heater, (NOT in corner).
Note: Control cable is 15’, from bottom of heater to control location. (50’ available as option.)
Sauna Craft Controls: (TPT3 or EL13) 3-gang box provided with control for installation outside sauna. Controls are line voltage. Locate the sensing bulb 1” maximum down from the ceiling 1′-2’ away from the heater.
For heaters up to 6kw, Supply wire goes first to control and then from control to heater.
For heaters 7.5 kw and larger there is a magnetic contactor and additional wires for the control circuit (field supplied)
Standard light fixture included is surface mounted marine light. Wall mount recommended Requires octogen electrical box (not included)
Light has a separate 120-volt power supply. Light switch is not provided.
If you have Tylo with Plus or Elite control, you can direct 120v through heater and use control to operate light.
Optional recessed ceiling lights be also be used
INSULATION
The walls and ceiling should be insulated in the with 3 1/2″, R-12 fiberglass insulation. Rockwool can be used as well.
FOIL BARRIER:
Install aluminum foil. Staple to the inside edge-face of studs over the insulation. Overlap the seams approximately 3”. If paper backed, install with “shiny” side facing into the sauna.
DO NOT TAPE SEAMS.
The foil is intended more as a heat reflector than vapor barrier. Taping seams can impede air flow. (If seams are taped, properly install sauna vents are imperative.
TONGUE & GROOVE LINING (d(see drawing #6)5)
While not required, most choose to line the ceiling first.
Before you begin, examine all the pieces of tongue and groove hemlock. You may find certain boards that you do not like, whether it is due to a knot or color. Make an effort to “hide” these boards. Install these boards behind benches or heater where they will not be visible.
Kit come with several extra pieces of t & g hemlock at no additional charge.
Use the specified lengths of tongue and groove hemlock (see “Material Packing List”).
You are expected to trim each board to fit. Nail through the tongue only in order to conceal all
nail heads (Blind nailing – see drawing #4).
HORIZONTAL LINING: (see drawing #1 & #3)
The hemlock wall pieces should be left about 1/2″ off the floor. If a tile baseboard has been installed, you start above the base. Start at the floor and work your way up. Ensure the first
board is level. Check the level every 4-6 boards. The first hemlock piece should be installed with the tongue facing up. There is up to a 1/32″ variation in width. Corners may not line up perfectly. Corner molding is supplied as 5/8 x 5/8 cedar or 1×4 hemlock to be ripped and fabrcated on site.
VERTICAL LINING: (see drawing #2)
The hemlock wall pieces should be left about 1/2″ off the floor. If a tile baseboard has been installed, you can start above the base or overlap it.
EXTERIOR
Not included unless ordered as option. For exterior walls: drywall or paneling may be used to match your decor.

BENCHES: (See Drawings #9 – #11 for construction details).
Clear hemlock 1 x 4 boards for the bench TOPS.
Bench GIRTHS (sleepers) are knotty cedar
BEFORE DOING ANY FASTENING, select the boards to make sure the BETTER side of the board comes out on the sitting surface. While you build the benches, the better side will be faced down because you are fastening from the bottom. (That way you do not get any screws showing up on finished surface.) Use the nails supplied. (See Drawings #7 and #8 for bench assembly.)
If the sauna is 5′ or more deep, the top bench is 20″ wide (5 boards) and bottom bench is 16″ wide (4 boards). If the sauna is 4′ deep, make the benches 20″ and 8″ (or 16″ and 12″). The material provided allows you to choose either.

BENCH SUPPORTS (foFor 1×4 bench tops)
BENCH GIRTHS: (Knotty Cedar)
Girths are fastened to the bottom of the bench (see drawing #9-#11).
BENCH Sub-Structure (legs): (SPF i.e.spruce studs))
Customer supplies own spruced framing to build bench supports. Hemlock bench top and skirting will fully conceal studs (see drawing #3).
HEATER:
Sauna Craft heaters (up to 9kw) can be mounted in the corner or on a straight wall. Generally, the least amount of space is occupied by mounting the heater on the wall, 2″ from the corner.
Tylo and Saaku heaters can only be mounted on a straight wall.
GUARD RAIL: (See drawing #14)
Use the 2×2 for the vertical posts and the 1×3 for the horizontal rails.
Tylo Heaters have a cool-touch shell & some choose not install guard. However, a guard is provided for you and it is recommended that you install it.
METAL FASTENERS
Nails are galvanized. Screws are treated.
FLOOR: (option) (See drawing #15)
Use 1×4 cedar, square edge laid over 1×4 knotty cedar sleepers. Top boards should be spaced 1/2″ apart. The sleepers should be placed at 1′-0″ on centre.

BACKREST & BENCH SKIRT: (See drawing #16) (LK Plus option. Included with LK Premium)
HOW TO TAKE A SAUNA
- Start with a brief shower using warm water and soap. Rinse thoroughly. Do not towel dry.
- Enter the pre-heated sauna – 80°-90° C⋅ (176°-194° F) Relax and allow your body to perspire freely in the soft dry heat. Do not throw water on the rocks in this first session. Do not expect to begin and finish your sauna in a few minutes. Even in the extreme heat of a sauna, it takes time for your body temperature to rise and for you to begin to perspire freely.
- Cool off with a cold shower.
- How long you stay in the sauna is up to you. It depends on your comfort level. It is not an endurance test. People often start at 5–10 minute intervals and work up to longer periods.
- Re-enter the sauna. Sprinkle water on the hot rocks to bring up a little steam and increase the humidity. This will increase the feeling of heat and assist the perspiration process. If you like add a few drops of scented essence such as eucalyptus into the water you splash on the rocks. It will disperse throughout the sauna.
- Take a cold shower. Repeat the sauna/cold water cycle as often as you desire.
- Dry yourself completely. Then sit or lie down, letting your body relax.
- Dress and have a light sauna snack.
NOTE: When used for the first time, you will notice smoke coming off the heater elements. This is normal. Leave the door open and allow the sauna to run about 20 minutes.
For additional information:
SAUNAFIN SAUNA & STEAM 115 Bowes Road, Unit #2, Concord, Ontario L4K 1H7 Phone: (905) 738-4017
HORIZONTAL LINING IS STANDARD. CHECK YOUR MATERIAL LIST TO VERIFY YOUR LINING
SIDE VIEW CROSS SECTION (FOR SAUNAS LINED HORIZONTALLY) (NOT TO SCALE)

TOP VIEW CROSS SECTION (FOR SAUNAS LINED HORIZONTALLY) (NOT TO SCALE)

SIDE VIEW CROSS SECTION (FOR SAUNAS LINED VERTICALLY) (NOT TO SCALE)

TOP VIEW CROSS SECTION (FOR SAUNAS LINED VERTICALLY) (NOT TO SCALE)
NOTE: This drawing is generic and does not necesarily reflect your exact sauna. Check your Sauna Material List for specifics on you sauna.
RESIDENTIAL SAUNA SECTION , BOXED BENCHES-S4S

REINFORCING STUDS for HEATERS

Tounge & Groove Hidden Nailing
1-1/4″ galvanized finishing nails for lining (supplied) Many prefer to use their own brad nail gun. Nail through tongue. And hide inside groove.

Vent Details
A NOTE ON VENTING:
In many cases a vent is not required for normal sauna function. If you have access to vent walls after the fact, you may elect to forgo vents with the knowledge that they could be added at a later date.
If you do not have access after the fact, it is more of a “now or never” scenario. In this case we recommend you install the cross ventilation. If wall inaccessible (i.e. exterior wall), you can look at options of venting over the ceiling and ducting to open area. We do not recommend venting to the outdoors
OUTLET located high on wall diagonal from inlet
Cedar slide vent on sauna side.
Exterior has aluminum grill (not included) to match exterior decor.
Slide Vent Cover

- Inlet vent low behind heater approx. 6″ above floor. Cut opening or drill holes. Exterior: use painted aluminum grill (not supplied)
- Outlet vent installed far corner from heater. Generally, high on wall, but can be on ceiling.
- Vent to room adjoining sauna. Do not vent to outdoors.
- If outlet is exterior (block) wall, you must duct or construct chase through stud cavity and over drop ceiling. Exhaust into room in front of sauna.
The inlet vent should be driven straight through the wall directly below the center of the heater.
The cross-section of the vent for a wall mounted sauna is approx. 19 sq.in.
For larger saunas approx. 40 sq.in
Position the air inlet and outlet vents as far away from one another as possible (diagonally opposite). The outlet vent should be located high on a wall or in the ceiling, and should have the same cross-section area as the inlet vent. Spent air should always be led back into house – it should not be discharged directly to the outside.
Do not install inlet and outlet vents on same wall.
Bad ventilation can be worse than no ventilation.
- A: Outlet vent through the sauna wall (seen from above). The vent is placed high up, near the ceiling.
- B: Outlet vent through the cavity above the sauna ceiling (seen from the side).
- C: Outlet vent through a drum under the ceiling in the sauna (seen from the side). The outlet duct should be placed at an angle between the ceiling and the wall. The drum can be built of wooden panelling and have the same area as the outlet vent.
- Inlet: If drilling holes for inlet, must equal specified sq inch requirement. Six 2″ or eight 1.75″ holes are sufficient.
SAUNA DOORS
NOTE: Rough Opening means above “finished” floor; i.e. above tile 
Frameless
- R/O=27-1/2″ x 76-1/2 incl bottom spacer with gap (Hinge is reversible)
Cedar Framed Insulated Glass
- R/O=26″ x 76-1/2 gap under door (non-reversible)
NOTE: Gap or spacer can be deleted if you have effective cross ventilation as detailed in manual
Trim/Double Header
If you don’t use frameless door bottom spacer, or door is shorter than R/O for another reason, you can “double case” header

Tips
If you don’t want to see scres on jamb, you can screw behind stops

After installing door, replace center screw on each hinge with onger screws provided with kit

NOTE: We do provide instructions for how to hang a door. That is not something unique to saunas. We assume installer is familiar with how to shim, square and secure a door in place. If not there are numerous YouTube video demonstrations.
Jamb Extention Detail

Where stud wall is thicker than standard; i.e 2×6 studs, a 1×2 for jamb extension.
Secure jamb extension to jamb so that it extends flush with inside cedar lining of sauna.
Install inside casing to conceal the gap at the jamb.
Exterior finish & Casing (By others)

BENCH CONSTRUCTION-1X4 OVER 1X4 (Skirt constructed same)

BOTTOM VIEW OF BENCH
NOTE: Fasten girths from bottom to avoid exposed nails on sitting surface Be carefull not to nail through seating surface. We recommend carpernter’s glue along with suplied nails.
*For benches, use nails with heads (supplied).nsures nails do not pierce seating surface

RESIDENTIAL SAUNA SECTION , BOXED BENCHES-S4S

STANDARD HEATER GUARD FENCE
Heater Guard: two sided, three sided or high sided as required

OPTIONAL1″ x 4″ DUCKBOARD FLOOR (where ordered)
















